CENTRO MARCONI POLYTECHNIC CAMPUS
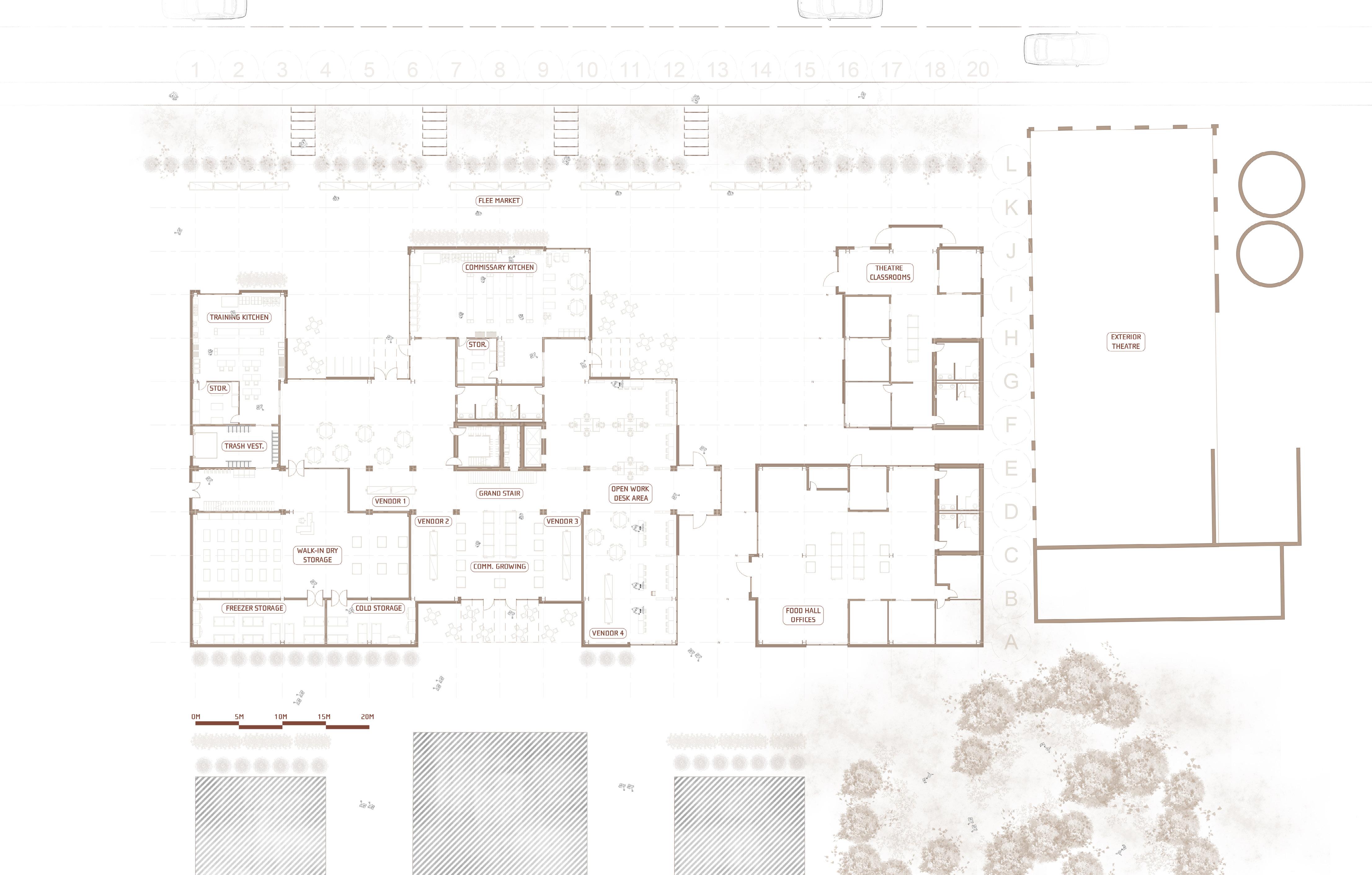
Once home to the Mira Lanza Soap Factory, the Centro Marconi Polytechnic Campus turns a forgotten corner of the Marconi neighborhood into a cultural, educational, and communal core. Supporting the existing theater culture and activity on the site, the Centro Marconi campus introduces vocational laboratories—including woodworking, metalworking, and textile weaving spaces—for set design and job training, classrooms, exhibition spaces, and support spaces intended to bring forward the neighborhood’s unique character. The master plan also dedicates a portion of the site to greenhouses and horticultural education for the neighboring elementary and high school students to learn about urban farming and produce food for the food hall and the neighborhood. To add communal activities, the masterplan introduces a food hall, vendor spaces, a café, a gelato shop, a bar, retail spaces, a bakery, classrooms, offices, and pocket gathering spaces hidden in the building courtyards. Reintegrating the Mira Lanza site into the neighborhood, we take a holistic approach to program, space, and design to create a cohesive and inviting center for the community.






