Propuesta de Diseño Salón de Té Na-bi

Page 1

PROPUESTADEDISEÑO

-biNa

Salóndetéeinfusiones

A cargo de: Aslan Romero

Villagarcia

PROPUESTADEDISEÑO

-biNa

Salóndetéeinfusiones

Esta es nuestra propuesta de diseño del establecimiento de consumo de té Na-bi que tiene como principal objetivo generar consciencia ambiental en quienes lo visiten

Concepto de Diseño

Kitsugi

Es una técnica de origen japonés para arreglar fracturas de la cerámica con barniz de resina espolvoreado o mezclado con polvo de oro, plata o platino dándole un valor a su defecto y resaltándolo

Criterios de Diseño

Formas: Perfiladas imperfectas agrietada

Sensaciones:

Resistencia unión delicadeza tranquilidad, restauración maleabilidad

Las texturas y formas ayudarán a la sensación de conexión con la naturaleza, los colores cálidos del estilo mediterráneo y la simpleza característica de la estética asiática

Generar un diseño sustentable y con bajo impacto de huella de carbono Uso de materiales reciclados, de bajo impacto contaminante y larga vida útil

Crear un ambiente de reunión y descanso para el público

Ubicación

Nuestro Salón de té está ubicado en la Av San Luis 2031 San Borja 1503 un lugar de fácil acceso y alcance para mayor personas

Mobiliario La gran mayoría de mobiliario y materiales del salón será hecho usando materiales reciclador

Planta de Distribución Escala 1/50 Corte Longitudinal Escala 1/25 Corte Transversal Escala 1/25 SectoraTrabajaraDetalle
M A D E R A T E R R A Z O P E R F I L

MoodboarddeDiseñoparaSalón deTé

Kintsugi

Na-Bi
Labellezaenlaimperfección

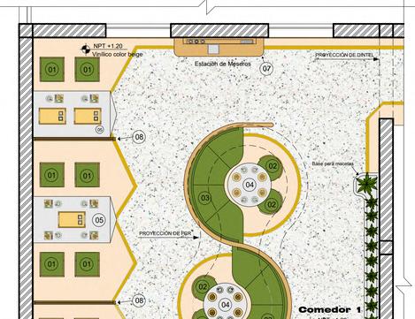
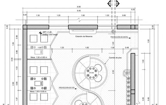
Planta técnica de sector

Mobiliario de Planta de Sector

Corte A - A de Sector

Corte B - B de Sector

Espacio:Comedor2

Dimensiones:69m2

Cemento

blancoexpuesto

Cartón

Kraftde8/13mm

Listones

demaderapintada

Tono verde y amarilla

de tono natural

Laminada
Madera
Terrazo Pintura De botellas recicladas
Yute

Espacio:ServiciosHigiénicos

Dimensiones:6m2

Tejas

Porcelánicas

Porcelanato

Condiseñodorado

Aluminio

Sobreequipamiento

Con diseño dorado

Blanca en inodoro

Sobre molduras y detalles

Epóxica de color

gris y tono amarillo

Porcelana
Dorado Resina
Porcelanato

Turn static files into dynamic content formats.

Create a flipbook
Issuu converts static files into: digital portfolios, online yearbooks, online catalogs, digital photo albums and more. Sign up and create your flipbook.