ARCHITECTURE PORTFOLIO - Asif S

Page 1

Portfolio

2019-2022 ASIF S MANIPAL SCHOOL OF ARCHITECTURE AND PLANNING
Contents 1. 4.Miscellanious- Photography 3.Working Drawing HIG Mass Housing, Manipal /Sem VII, 2020 /Sem VI, 2022 2.KinderGarden Design /Sem III, 2020
85% 35% 80% 35% 45% 85% AUTOCAD 55% 60% LUMION 75% ARCHITECTURE STUDENT ASIF S EXPERIENCE EDUCATION SKILLS CONTACT +91- 8848900321 asif.s@learner.manipal.edu Bismi Land, PRA-124, Kollam, 691504 IamAsifS,pursuing4thyearinBachelorofI Architecture I’mcurrentlyseekingaprofessional internshipinArchitecturefor2023 REVIT SKETCHUP TWINMOTION ACHIEVEMENTS SKILLS AND EXPERTISE DESIGNTEAMFOR MAHE-UTSAV2021 MEDIACOUNCILHEADOFMSAP2021-22 EVENTMANAGEMENT PARTICIPATEDINSOLARDECATHLON2020-21 STARTEDONLINETUTORIALSFORCOLLEGE STUDENTS BIMSOFTWARES PHOTOGRAPHY GRAPHICDESIGN MEDIAHANDLING LEADERSHIP&TEAMMANAGEMENT EVENTORGANISING ENSCAPE PHOTOSHOP CANVA MS OFFICE 2014 2017 2017 2019 Chinmaya Vidyalaya TKM Higher Secondary School HIGHER EDUCATION HIGHER SECONDARY EDUCATION Manipal School of Architecture and Planning B arch 2019 2022
1HIG MASS HOUSING
BRIEF BUILT-UPAREA:1,16,362 FARMAXIMUM:25 FARACHIEVED:248 FLOORS TOWER1:19 TOWER2:19 BUILDUPAREAUSED:116070 TOTALNUMBEROFUNITS:682
THE
UDYAVARA, UDUPI,
APPROXIMATELY
HIGH-RISE RESIDENTIAL APARTMENTSARE TO BE PLANNED, TARGETING
SERVICES AND
NEEDED
SUPPORT THE RESIDENTIAL DEVELOPMENT AHIGH-RISEBUILDINGASOPPOSEDTOALOW-RISEBUILDINGANDISDEFINED DIFFERENTLYINTERMSOFHEIGHTDEPENDINGONTHEJURISDICTION.RESIDENTIAL HIGH-RISEBUILDINGSAREALSOKNOWNASTOWERBLOCKSANDMAYBEREFERRED TOAS“MDUS”,STANDINGFOR“MULTI-DWELLINGUNIT”.•ASPERTHENATIONAL BUILDINGCODEOFINDIA-2016,ABUILDING15MANDABOVEINHEIGHT (IRRESPECTIVEOFITSOCCUPANCY)ISCONSIDEREDASHIGH-RISEBUILDINGS
PROJECT
ABOUT THE SITE:
SITE IS NEAR KORANGRAPADY,
HAVING AN AREA OF 11 ACRES
THE SITE IS WELL CONNECTED FROM THE MAIN CITY BY THE (UDUPI-MANGALORE)NATIONAL HIGHWAY NH-66 THE SITE FALLS BETWEEN ALEVOOR AND UDYAVARA THE SITE HAS A FLAT TERRAIN WITH VEGETATION MOSTLY AT THE PERIPHERY A 9 0 M WIDE ROAD ABUTS THE SITE ON THE NORTHER SIDE
HIG, WITH NECESSARY
AMENITIES
TO
1 KEY PLAN 1- 0 eve2- 3m eve3-+6m 4-+9 5eve6- 15m 7- 18 8- 2 eve9-+24m 10- 27 ee - 30 eve12-+33m 13- 36 eve14- 39m eve15-+42m 16- 45 eve17- 48m 18-+5 19- 53 eve20- 57m leve-1- -4m leve1- -8m ELEVATION1 ELEVATION2 SECTION1 SL no SPACES AREA 1 LIVING ROOM 29 sq m 2 DINING ROOM 21 sq m 3 MASTER BEDROOM 22 sq m 4 ATTACHED WASHROOM 4 9 sq m 5 BED ROOM 2 19 4 sq m 6 ATTACHED WASHROOM 4 4 sq m 7 KITCHEN 16 3 sq m 8 UTILITY 2 7 sq m 9 COMMON BEDROOM 14 5 sqm 10 COMMON
4 5 sq m ACADEMIC WORK-HIG MASS HOUSING FLOORPLAN2BHKTOWER
WASHROOM

level18- +51m

level17- +48m

level16- +45m

level15- +42m

level14- +39m

level13- +36m

level12- +33m

level11- +30m

level10- +27m

level9- +24m

level8- +21m

level7- +18m

level6- +15m

level5- +12m

level4- +9m

level3- +6m

level19- +53m ELEVATION1

ACADEMIC WORK-HIG MASS HOUSING SLno SPACES AREA 1 LIVINGROOM 29sqm 2 DININGROOM 21sqm 3 MASTERBEDROOM 22sqm 4 ATTACHEDWASHROOM 49sqm 5 BEDROOM2 194sqm 6 ATTACHEDWASHROOM 44sqm 7 KITCHEN 163sqm 8 UTILITY 27sqm 9 COMMONBEDROOM 145sqm 10 COMMONWASHROOM 45sqm

BUILDING HEIGHT- 57.7 m BUILT AREA= 778 sq m No of units in a floor= 4 No of Floor= 19 Total no of units in the Block = 76 - 3BHK's Area of a 3BHK = 150 sq m MAX NUMBER OF USERS = 456 per block(max)

level2- +3m

level20- +57m Noofunitsinafloor= 4 Nooffloors= 19 Noofsimilarblocksinthesite= 2 198 x 2 = 152 units assumingnoofpersonin 3BHK's=3 152 x 3 =456users unitbuiltarea= sqm

N VEHICLEOUT UNITPLAN 3 2 5 7 VEHICLEIN KEYPLAN
level1- +0m
ACTIVITY ROOM TOILET LIBRARY INDOOR PLAY AREA SLEEPING AREA STAFF ROOM PRINCIPAL CABIN KITCHEN DINING DINING 2KINDERGARDEN DESIGN THEPROJECTSAKINDERGARTENLOCATEDIN MANIPALKARNATAKA ITISTOPROVIDEAPLATFORMFORPARENTS toENROLLTHEIRKIDSINALEARNING EXPERIENCETODEVELOPTHEIRKIDS PHYSICALSOCIAL,EMOTIONALLANGUAGE ANDLITERACY,ANDTHINKINGSKILLS TOPROVIDEANEXPERIENCEFORTHEKIDS TOLEARNBEYONDBOOKSAND CLASSROOMSTOINTRODUCEKIDSTOTHE FOUNDATIONSOFSUBJECTAREASLIKE SPEAKINGANDLISTENING,READING, WRITING,SCIENCE,MATH SOCIALSTUDIES, CREATIVEARTS,
PROJECT KINDERGARDEN LOCATION MANIPAL,UDUPI,KARNATAKA TOTALSITEAREA 1TO1 5ACRES(5979sq m) CLIMATE WARMANDHUMID TOPOGRAPHY FLATTERRAIN SOILTYPE REDLATERITESOIL STRUCTURE LOADBEARING(G/G+1) METERIAL RCCANDTIMBER STRUCTUREOFEDUCATION PLAYSCHOOL,PRE-KG,LKG,UKG NOOFUSER 40-60 CIPAL,KIDS(AGE2NING URPOSEHALLAND SPACES

REFERENCEUSEDFORGREENROOF

LONGPLANTATIONISNOTPROVIDED BECAUSEITWOULDREQUIREMORE MAINTAINANCE ITALSOINCREASESTHELOADONTHE STRUCTUREHENCEINCREASINGTHE STRUCTURALCOST ALTHOUGHGRANULARDRAINAGEINCREASES THELOADONSTRUCTURE,ITMAINTAINSTHE NATURALITYINTHEGREENROOFFORPLANTS TOHAVEHEALTHYGROWTH GEOFOAMBOARDREDUCESTHE STRUCTURALPRESSURE

USEDGREENROOFSYSTEM

DOORS DIMENSION WINDOW DIMENSION

D1 2.6m*2.1m W1 2.1m*1.5m

D2 1.5m*2m W2 2.2m*1.5m

D3 1.7m*2m W3 300mm(dia) D4 0.7m*2m W4 1.2m*0.9m

KINDER GAREDEN FINISHEDFLOORLVL–VITRIFIEDTILE WORK-10mm CONCRETEBED-100mm GRAVELLAYER-100mm MUD-240mm WALLFOUNDATIONCONNECTEDWITH ASLAB-300mm EARTHSHOWN
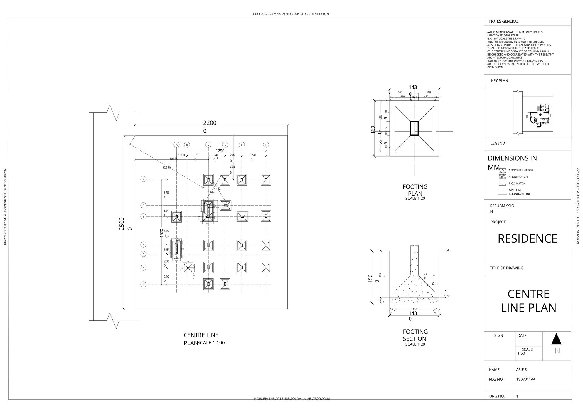
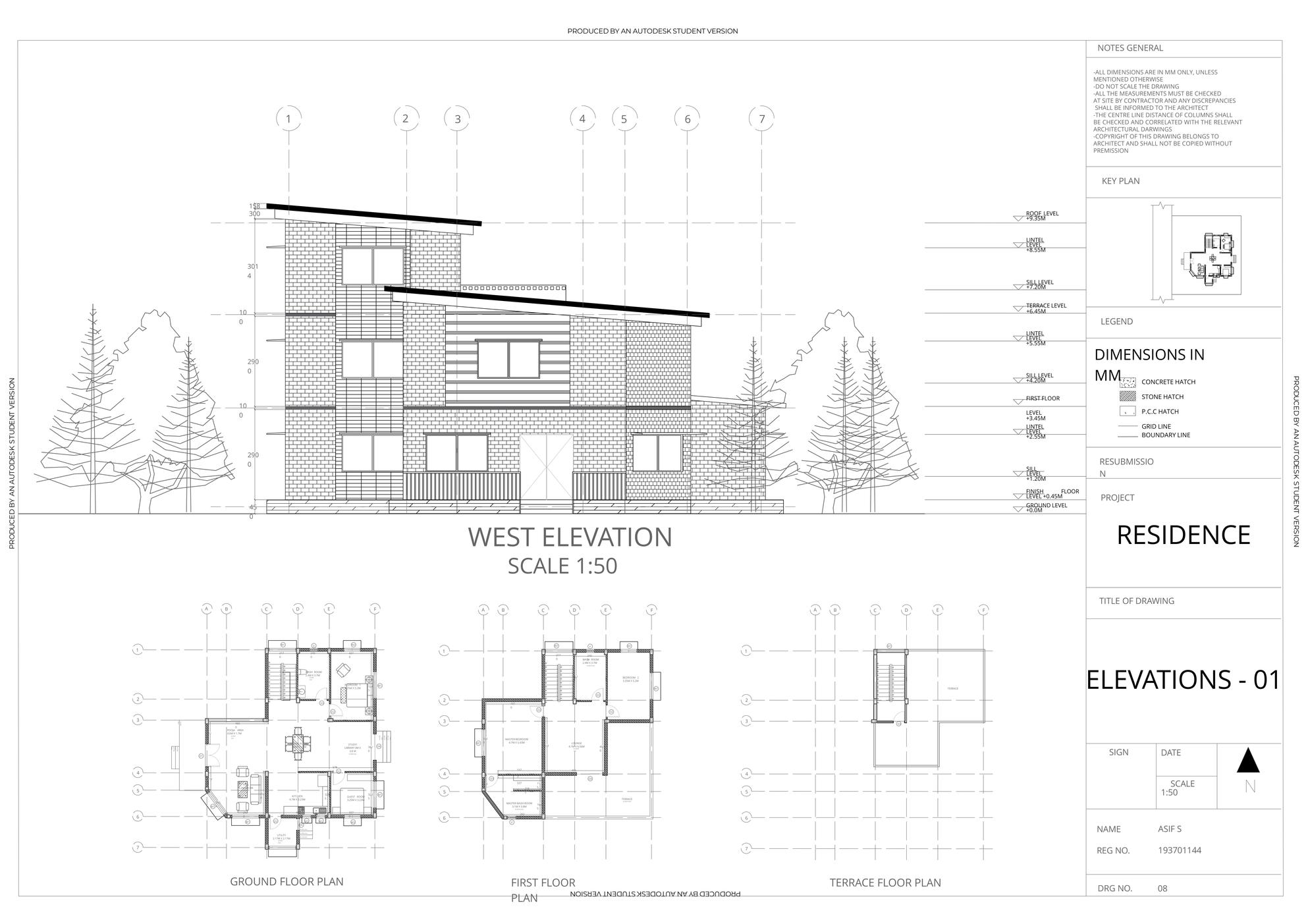
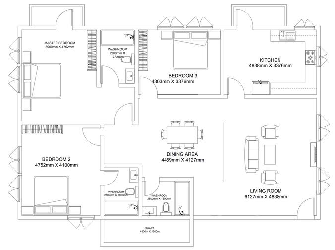
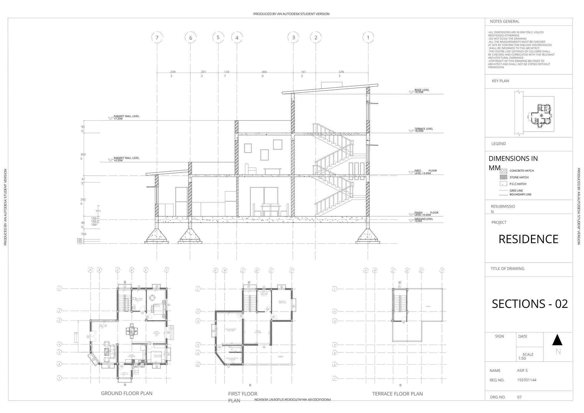
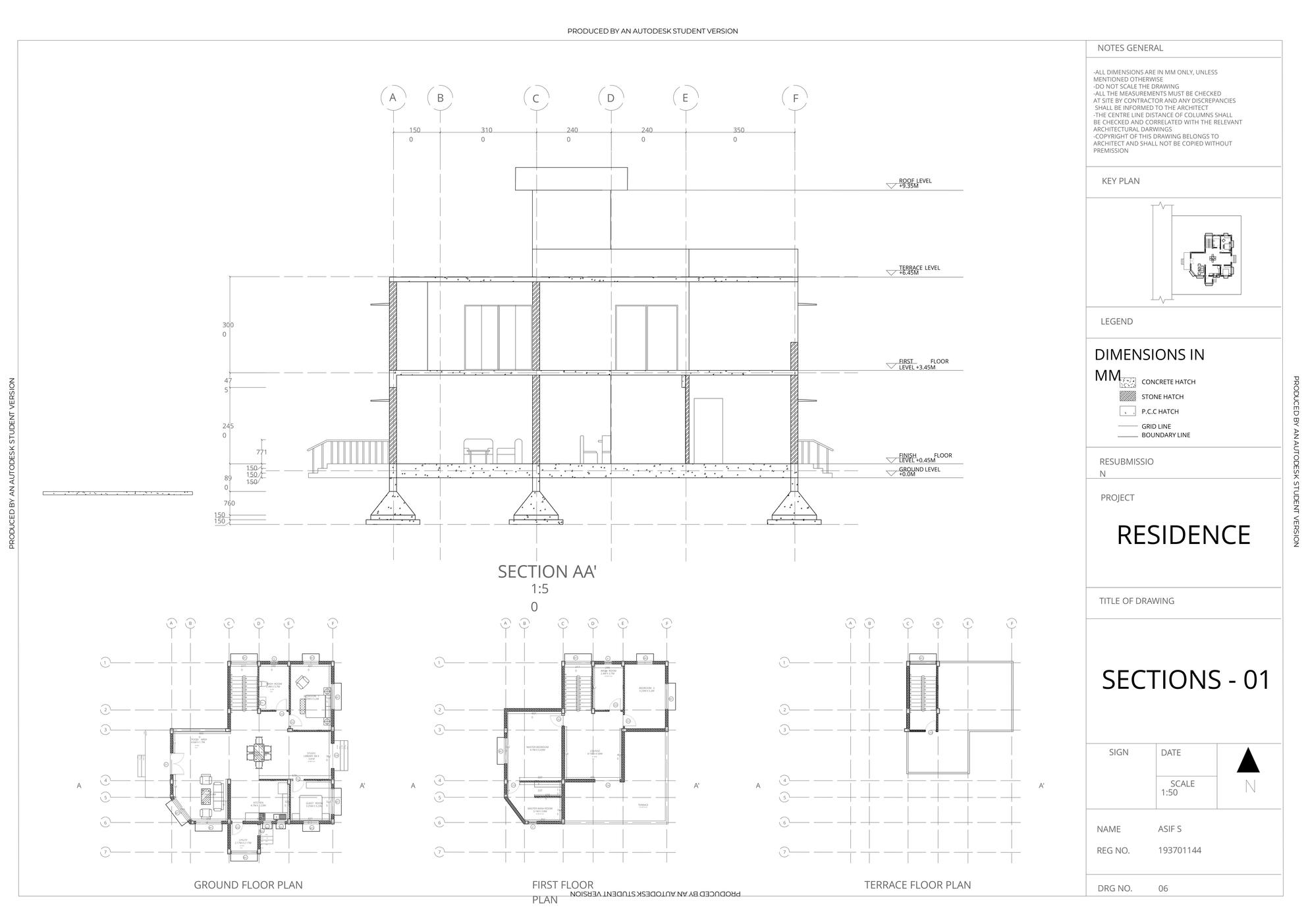
3WORKING DRAWING
WORKING DRAWING
WORKING DRAWING
WORKING DRAWING
WORKING DRAWING
4MISCELLANIOUS- PHOTOGRAPHY

Turn static files into dynamic content formats.

Create a flipbook
Issuu converts static files into: digital portfolios, online yearbooks, online catalogs, digital photo albums and more. Sign up and create your flipbook.
ARCHITECTURE PORTFOLIO - Asif S by ASIF S - Issuu