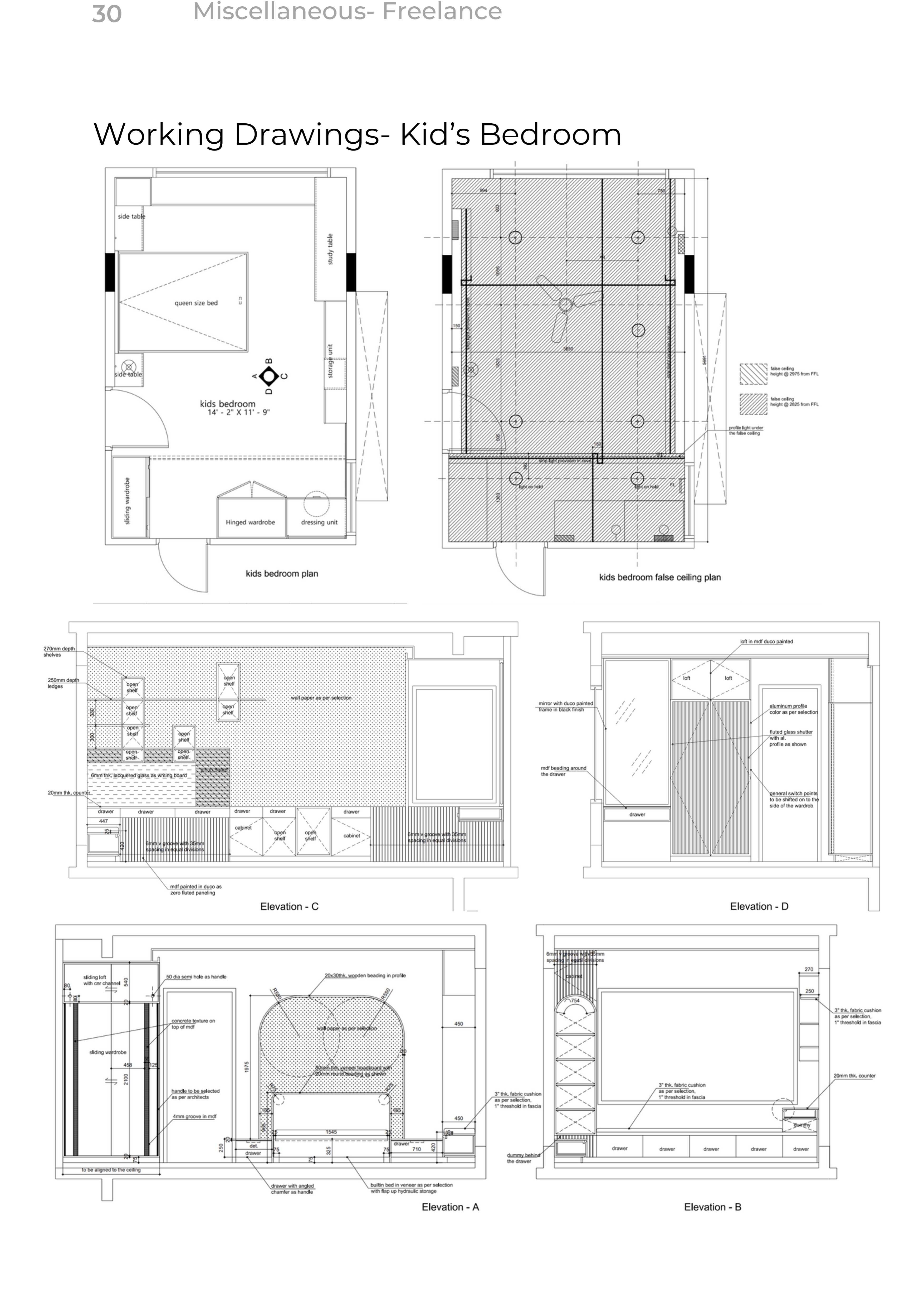
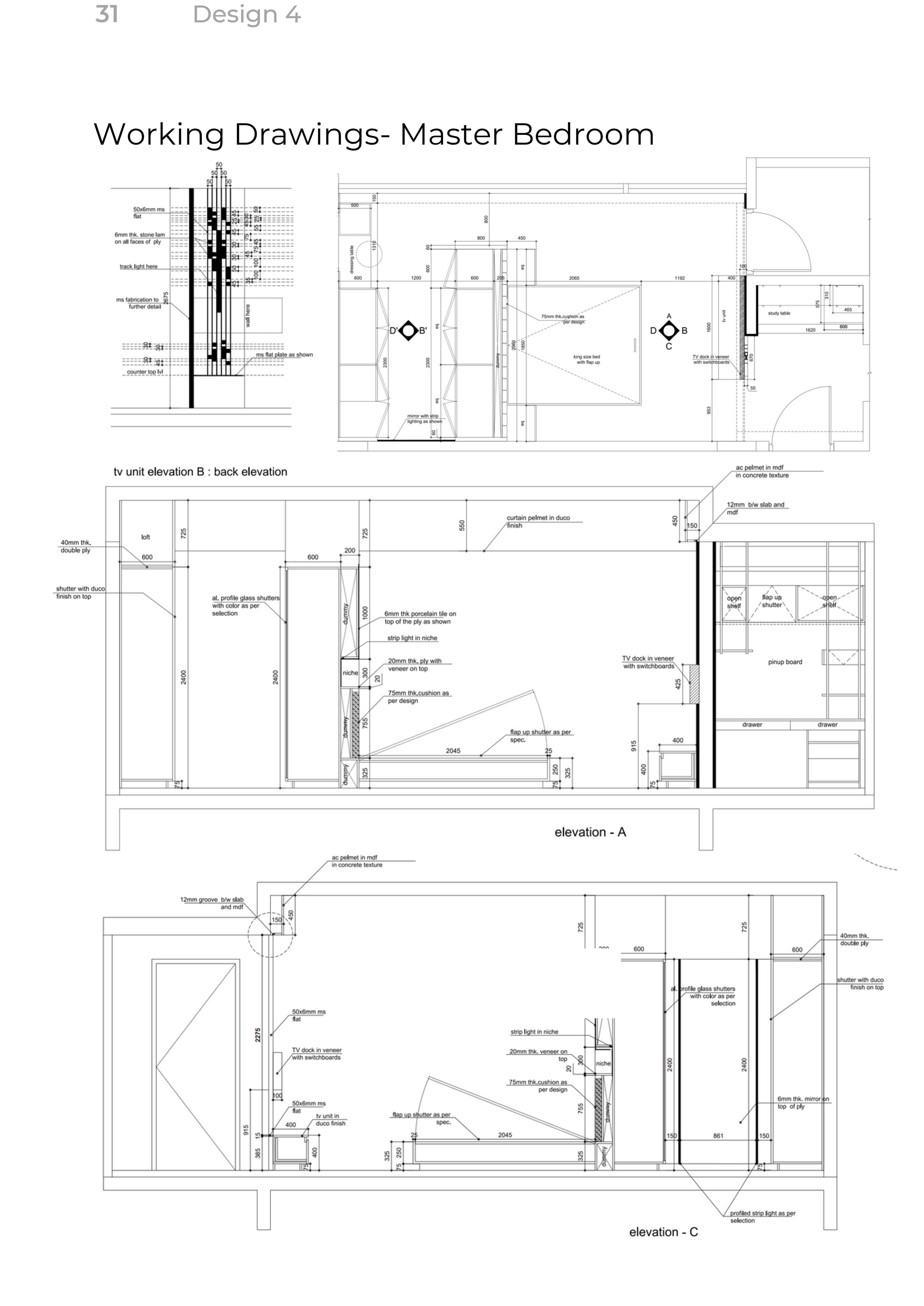
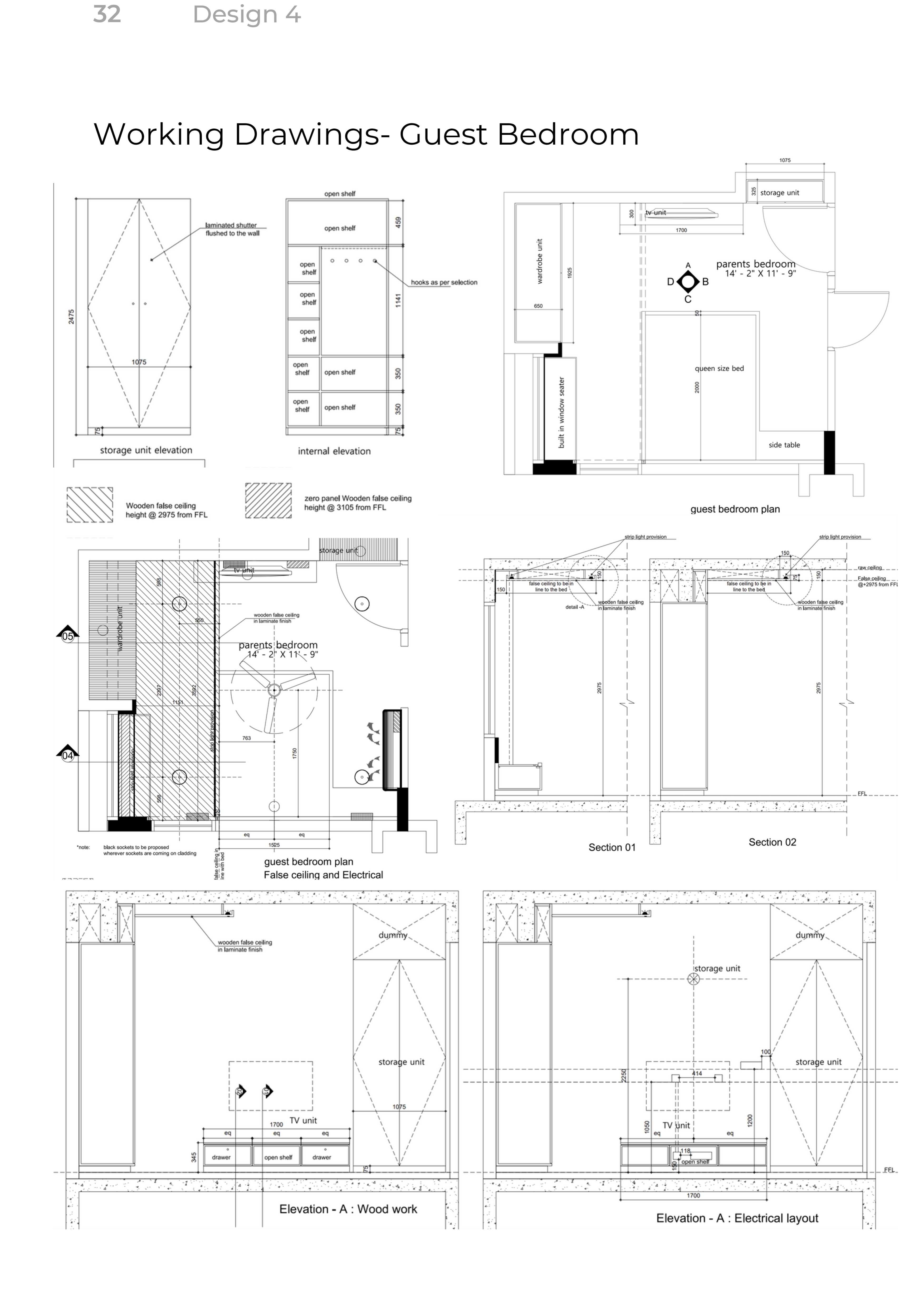
This architecture portfolio features a curated selection of my designs and projects, illustrating my commitment to creating functional and aesthetically pleasing spaces. It captures my journey through various architectural concepts, from initial sketches to final realizations, emphasizing my dedication to innovation, detail, and thoughtful design.