Architectural Portfolio-ASHLY REHIM

Page 1

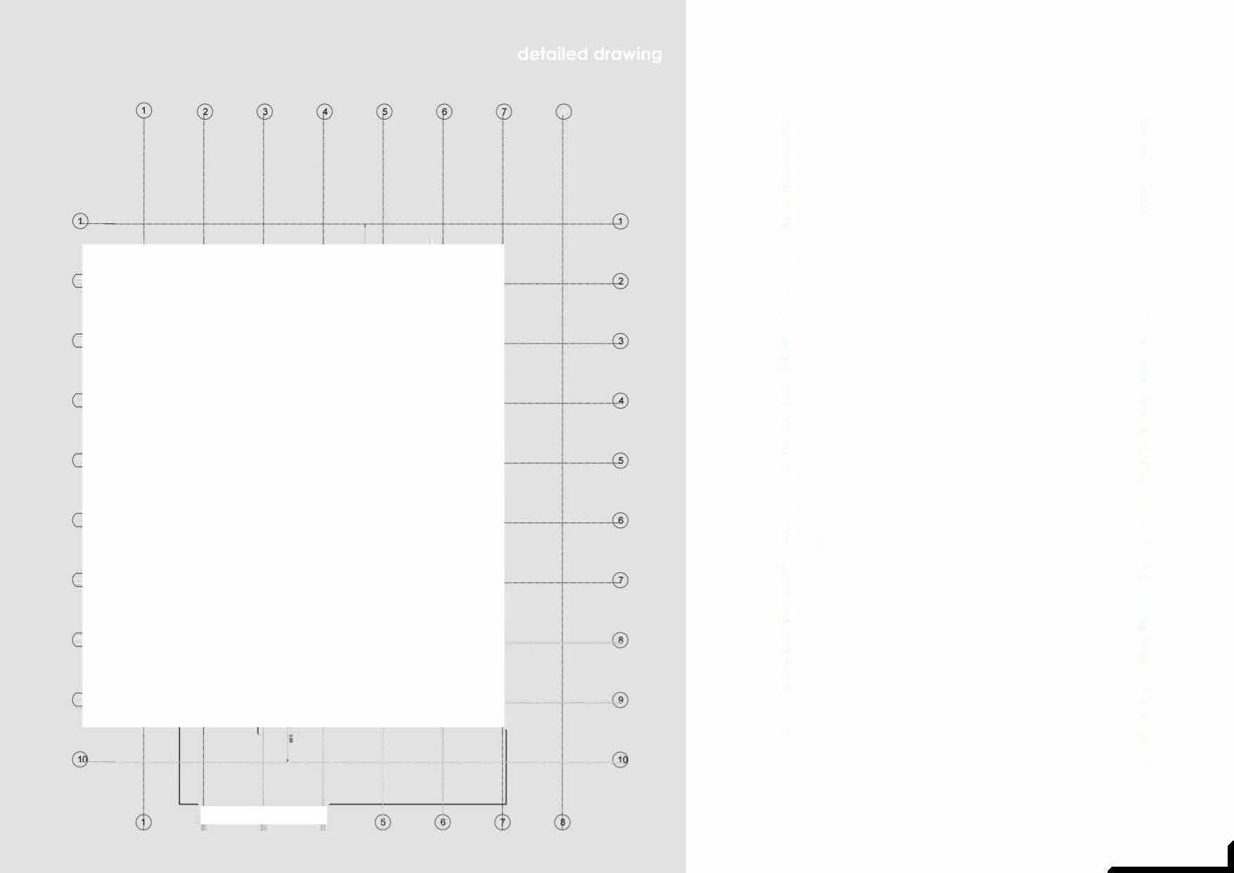
01
01

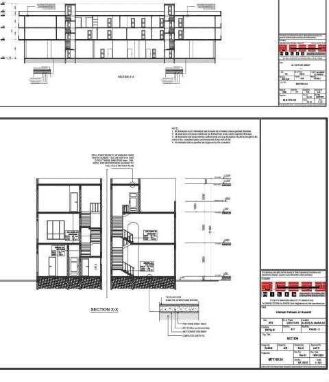
Approvedgreycoloured0.7fromgauge longspane.lumIrnum roofingsheetbolted and laidonsteelportalframes(lo s1ructural engln eer'sdrawlngs)

Approved waterproofingon 150mmthick c 1 � rcslab ----,p<- �

Approvedgypsumbo,Jrdceiling

0 00 i I

Approvedgranitefloa-ing onsand cementscreed

Approvedwaterproo11ngon 15Cmm thick reslab

Approvedgrffy coloured O 75mm gauge longspanalumiriun roofing sheetbolted and laidongalvanizedsteelroofing trusses

Aluminium

Le el 4 (Parapet Level)

�---�0400

<

(1'; i (3� (I CJ) T (a) (?; 0 (-,' (-i ' "�'.: T - - T ( T T

3• � :;, o;..:;�o � g �{� g R om02 r

2 M ; M 3m' � 0�

�(o I -· "'·=w n, 134m' -

Approved gypsunboard ceiling

Approved'J"f'd'fcoloured0.75mmgauge longspanaluminiumroofingsheetbolted endleid onsteelportalframes to

�" }n §l § E El§ ,,, UUL UL Kr1 HH::... u� strudtxala;g1neer'sdraw1ngs) �

Approvedgypsumboardceiling -----� (n?'

(,;-:', l

Approved waterproofingon150nm thick reslab

I l:III seater �"u ll

§ 3 El El §13 El§ i-,-- Hl w,,

I '"f)I V'

� ">

(-�T _

Lasercutaluminiumpanels bolted to steelframe supportsalongthepffimeter ofconference hall ('t T ¥') I 3"

�r ('I ; I

0 Aluminium capping fixedandboltedto 'lt1etopofparapetwalls (,-2� Level 4 (Parapet Level) r 0400 b � \ ��·�•::;,:..�"" Roof) -ER] §§§§tilmf '""":5 I 0 9300 0 <D Level 2 (Mess) 31c M

� 5700 I UU Lr � 0 store 0 A H H r- :1 fl1 m ,� ) Level1 n--T - 600

150mmthickstamped concrete, cast in squarepatterns, laid on300mm thickwellcompactedhardcorelayer

'T

L3vel0 0 - - Alumlnh.m cappingfixedandbolted to the top ofparapetwalls T

Level 4 rarapet Level) y 10400

Lev(Cll2 (Conf Hall) y -Les600 y 600

---------------�
Lasercutaluminillll panels, bolted togee1 framesupportsalmg theperimeterof conferencehall
Approvedgraniteflooring onsandcementscreed ----�
(
<
capping11:x:ed an dboltedto thetopofpare.petwalls
T
0<)
LevelO 0 .....
..... ..... ..... ..... 01
.....

Lasa-cutalu' panels,bolte framesupp externalpffi�F�+==!=.---c-"" rooms '�

I-_, Cl

ApprovedgreycolouredO75mm � �€;��oltectandlaidonga�van 1 gaugeloogspai aluminiumroon �.:.:)steelroofingtrusses-- '-- v'

Approved polyurethane waterproofing on 150mmthick r�1b '·� '�' {__)

J\JuminiLXn capping ___) -r��fixe.d..andboltedtothe �topofparapetwalls

-- AllW:./Sh Appr-oyedceramic matt�tiling l�ifF=-=�['.\:�onloiletintefiorwalls

Approvedceramic mattetiling onsandcement scree.

3) 1'-'1--""!!i<-

I I I
,,-""__/,,.,, /,,./_,,-
(D (�\ (�) (Zi)(i)0) l I
{E) T (0) (;-) T r i�" 1J 1�' ,,. ('- (0 ,? l f,..0 (f Tf11i'�)Ti�' --l__Jc: L...l.==.......�LJL--4-'-�_.JL I- h". !"':::�_!:"��_:-_:-_,-_...- .,.- - -_,_ ...-I J ,t (b�G :l) <b,,� 01
1� :�;- ----; {
01

kildo

M tci1f A. f'nUP.

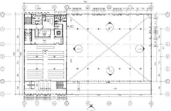
Category:- Interior Fitout

Status:- Completed

Location:- Mirdif, Dubai, UAE

Type:- Cafe

Client:- Kado Fine Sweets LLC

Consultant:- Fitout Bureau Interior

I
ki,do
Du.J UAF
02
§ 8 � �I �I � 8 J �SH was �(D �a.ff� B au -, ��-��:ri 4.SOIVl ,. ' (@J,--1---i=:i,U- =-� § a a� S05 � �i-
02
PAOLOZANETTI
ki1do
02
kitdo ;' ..,._- �If ·,/ /--:-. 11 - f-- ------� l - i I - (" { t� f ·· ·' ,, 02

MUSCAT. OMAN

Miles Engineering Consultancy isanarchitecturalconsulting bureau basedinSultanateof Oman. Itwasformedwiththegoalofproviding imaginative architectural solutions within the economic and developmental constraintsofallclients. Ar. Rasem hasmorethan 29yearsofexperienceinthefieldofarchitec tural planning, interior design, landscaping andtownplanning.

KERALA, INDIA

Terrafirm Global Academy wasincorporated in the year 2003 and head quartered in Kochi, the commercial capital of Kerala, India. Founded by George Mathai, a qualifiedarchitect, entrepreneurandplanter, the company has since ventured into multiple avenues of operations including Art & design, Interior design and architectural technology

Ar. Rasem Al Heraki Ar. George Mathai
03
.,_, IL " ' "'' -e_, if " q:,ai 6)9 @II Moll:(!)a> 1[1(11 ([II]) "" I"'"'4--� iiiil Ti ! ,; - ., �� d � Ci --�-J�TI����il - '"""- -.['-,c;:iir.. II)@ 1W) IDlll€1 ai 0 h a e o � " ,.., .�· 1i . " GROUNDFLOORElllCTRICALI.IIYOUT ARSTFLOORELECTRICALLo\YOLIT OROIJNDF100RllLEC'l'llC•IJ.U\!YI 1'111.llll'IM:!O•�•-"'""A'..:t>I� ___,..,__ ·---....--.....--,w,...:;..,.-....lm:.��--===��in::=:-:-"��:. :�����..:"" .____,.,,___,.,_ """'"'""lt"''__...,..,l..lft'f ____..___LIii"__� LLW_A&Ml___..._.. _.,,,.,...._,..._,r __..___ ,1___ ....._.,_ .... ���� IJ,o,...0,--::,.......�::-r:-:-:--··------· _,.,,>.,--ll ll>ll ___,.._____ ..k<,Jr-_(1111,,,,__.,.__...... -�----·-····· ---.-,:..,:.-:.,:..-:..'t",.::::-...:::::::.:.-:.::-· ..:........ :�:-..:;;" ·:.:.."":":".:-..-03
1 - -
03
FAD.NTE.L.E.VAllON

lll'M QUANTITY/NO. RATE TOTAL RATE

Menllli!'!Pl'fWOOd1BMm S.4Slsq.m U,id;nl?'§S Glas:-s12mm Ui>4s m flxodrawersf".tde '

WenE:e-fiRislive�r 2.34'9s m

Vo!rll?M S.34750.M

Lelli!lad'uster '

Hi!Uid1Dl'8wl:!'lhaftdlettem117015S

JEWELLERYCOUNTER3fKATEFI

SL.NO, ITEM QUANTm/NO RATE

TOTALRATE PrAii,ll!"Plywood 83%:s.Qm l.8mmthiid:rie.n

GIB!!.Ul't'lnt 2.7l4� .m Ebc:odtawerslide 3 WeN!eflni,hverieer 3.975� .m ve�r B263!qm

Le'o'eliid ustef

H.t1ttichDl"a\\o-er ' lulndle �em11701S5-

JEWELLERYCOUNTER4SEATCR

SL.NO, lll'M QUANTm'/NO RATE TOTALRATE M.irint!�wood 11;l.15.sq.m lBmmlhickne.s.:s Glil!.1.l2mn1 2.956so.m Eb�o-dtllwe-t�1ide, W�ii;:eflnishveneH 4 416:u:i m Vl!fleer 17>42:sqrn let.'t!l.idRKl@r HettichDrawer tiande ltamll701.55

DIAMONDJEWELLERY

Vtmeer

L.eve.adJu.ster Hl!'tUdtOt.iwer ha,ridt1tetr11170155

QLJ.ANTJT(/tro 12.676M:t.M 7,004sq,m

.:1.7631.Q.m RA.TE TOTAL RATE 03

,, 1, .:�~·� .I[:7 --- -_-•- .' ' ,, ti) -m t;.;� =-W:::1 ,. !''j " .,, '" " ,· ,I• --. .: --, � �·-·C ::: �GOUllE.5 ¥1"'-',_.,,TIH'1..._0 lil.ECI.E. =��FAOO. NE",l!Vtfll..,',n,u:;oc� ''"'""" ,m11..�o COOtt.iG".J,l,f!Ei, 1nr,1�r.Ai!UMAN::HERll.ll'8£lr.Q CHlii'ClfliO,l,D,t,t._../D,,,My'BJPO. RAtH,DLI IHSl'b,tl I. h�H,HI" li0.LD n...u 2- 1"1�8111111� IUI J hc�M TuR, t0'-"1• I-■""" :riui I ......,....,.N■-U ·•I"•�·· (N""t' IQlf ....Nµn u � I (O["l■•it!5tl q, [f"AN£1"1Aii-OLOElt(i.it,t,NITE 5, BLAC-J -liAU.XV Low""' rl�•••• t•r•••n .,.o, ""�'� �[Al •lrlLAJl,,001" ll�•�h._◄ �I ---=--�•fc::;::::::,-="====;:::i-;-.t��-�--�. J � ·1c;:f-_=_=_=_=_=_=_=_=_=_=_=_=_=_=""':::;:i ·:._------,-,,...----' •lc;:::=====;:::i ;;_ I'' , .. ... " ,. �1• '" $rcn:,tlV,. S:TANOAt.ONEDISPI.AVUNII "-"' I I I I ·..__,___.!)_ IEr =·... '="_...,_ I I BU.OFMATERIAI..S
SLNO.
J�ELLERYCOUNTER2SfATER
COUNTER SUCI. ITEM QUANT1Tf/NO RA.TE TOTALRATE [ASHCOUNTE.R SLNO.
Ebc:odraw.etsllde .:1
12,4?7s,q,m
lll'M Matl!lePl'(IN(IOd 18mmthid�s W@11p;1!fi11i5h veneer Vu,ee Level..iclluster 14,05,3:sq,m
RESIDENCE Kerala RESIDENCE
04
Bangalore

housingproject

designing a neighbourhood

Introduction

TIMIprojem�wastodies5gnneight;lc;MJrhoodprofedathml:i;dony plo<n.,,..,_....oome_un_Tr.o-.llyofo�hlyo,ed �10tryMolt01tat,onandp,cse,acrR1ll"ly11oompar11inmodal C0ktQ8:ll'ldet'lduc8tlcll\alNIJ'lutlQnt..

The RHklenll■IDwtilllr,g•anaffararecluslfled ■a3bro:ad cata�.nama1.,:

(a) De� v.... TbNoc,iC1u11VO"'1Rnt we11Offllr.godon a plcturotquecn1sceritl'Olkl.nanJongll'legGGl'lol'ycllhtlgtotnatl1p11/'ld vh1wsaftheclubhouHbeyom.

(b).....onlyp,...,,_(R-..ro,mw,to,""""ono""'""' l)(O>ndodU.11tapoffpolnlolNd'lpfOt}Av;)fiotyOfPIOCslzolru,gu,grom 2.000�yeJdato250aqytfldl.arepro:vidadTI'MloPbttpraaintts:Brit, p«Nidedwilhcantf1111la,gf!!gTMnlungAp80B5111nlflUl11r�torvalslhat aonm,1111serie,ojloncbeopedg1;1J'del"lswithintile�r�-

(cl,,,,._,. u.a.will>O>-•"""'>"dR-Blocltl :11·0«11srtuatoddCt$aaolhoc.ommucl-DIapacnandwouldbedowalop,od Inconcurnnce-wllhthe••ma

OLocttl'onHmll-.lullcOotl1Ca�.�l(.u�:10.M1d6 f.}Lonoill.Hk::ra.341m

Total sito are: 40 acros

NeighbourhoodComponents

RESDENTIAL

•P1aCtDdhau5adawalopmonl:ll �....-..,..-

COMMERCIAL -Commen:ialMal..� ,Holol

WORKPLACE

...TPa!UOfflcbBuildinv

INSTITUTIONAL

-Schoo<&�

CLUBHOUSE

-Con�ndont.F1,inctlonhailt •t1c!n'ltlronlAini., Bllf&Rol!ai.mlntt -holol&pool

-Spo,t,Camp�•

-WatorsportsAten

•HealthAet�natlonandgym

SPORTS&GAMES

-Tennltcouru -BnJ:�IP&\Jolle)'ballcourt. -BadmintonCourtl

... -..... . ... .. ..
05

• .CiR(:UUTtON

• r,:��li)'rwid\lnhtlod'ln:fl'IM

oomm111<iolJ'MJd.1,QF.tlfl1Tli:l,t,t,'2'0IIJN, •�=-TM:iJ.11IIRI,�J+:HWQ-ff��•o.,utd ....... >Ml�'WM'l.,.UW,,:�111\.rt� tlJ�Jl!ICllt\lhyi:,it'tllh,.Jmlf/r,(lplr:..J.....,t-,'i'm■r,,, C.ur,■,t.,Muw,wn,;l(ir,/FR,1, 1.,,,_.,.1q;1_,:,t,:o,d1n■IC;ltltt

• CUM,O,TE

ioa!IWl'llliokl'J'"1QWlfl:ll1T�lll(lfrlitm'tdtn.W. S,,,:,i,....�ltifj;,lh•..:,,,,111wlillilllln't�Lil= Ni1.f(lf""111 ,-,:..ino,1.J,ltltC!!Q�w,lf'ICr1tf 111m<dil'1J11!11>.8tIn�rwt.f-,� andM:N.R.ilai,;.,,,,,'hl�r.

SITE ANALYSIS

0......

Site plan

r

3u,1o�·.....,� Q�m■l•-f'lotpo'1. ljlbU.u;SIH"'---_n..11....na1

� 1JW1plp11lln11-

fjre:�l(fll:i

ri ,111Pattm11ntlhrMJbtlkt,--lbnt

• $llll)llr1rt�l�hc)Pt,j•ttnt O Pood

...:::,(,,··"
: ■
'••: ......,....... �-. ..t• ..." ···•·\.---■ / ;.�� ... •-) "" .-) •-----
lllt'1�
..., \fl: \ __.. i-l ·· \ •
-..._
}..••.c.
�('._�
0 N 0 "' z Cl iii uJ C
;;.
:=�fit�
r,;
rJ ap.w11lien1 lbll� r• �fhl,flMir.il 2111h rGIPJf1/IIIN11blA.
....W.-2bh� ,, �tll••tlf'I�
C CU�UPillc�ritratmu �11.11pnHP'Otll'III cl CIUll:llloUMl'part:lngu.. r re,11•u,.n11p;irry11a11 k �Jllldarprt.n
w
MASTER PLAN 0 "' 0 "' z Cl iii w C 05
0Y•l1'•Uc1Hnl

ROA.D HEJRARCHY:

l!xternaJ road ::r=�=:u:

10 MAND 15 M ROAD

HEIRARCHY OF SPACES

,,,_..,l'JO:l•N'-'1'11,Q•■dlm :"..;:....-..a..-1,� tli""iv""ci::.,ta"'_..., T'Nlll!fllmlZlllll�1111!11Q •(lw----...;!1!}11-11\,"lll:I1111,Ni\ol,I� �V1'"$�CUIIYI'■po,;,,....il!;I' 11'1110m-Mtl6111al:ll!Qlill :.����V E,.., oflCIWJl'TAQl!.:W.....,lmlCOI.. ::::nlnucwk.-.;.111111

O•"""'C:<111•uvtt,ll'ld ..1111lltltdbil�!l!ll!I �OAOttl;AAF!CH'I":Ml'IOIHTilrBE1'11'1<-1i1nd.a1'11 :::::•ndfMl.,....br<Ulng

d 6 M ROAD

PLOT DIVISION

RESIDENTIAL PRECNCTS:

CJ,g�p<1d Vil� tl111�1t �Illas ar11 .11�9'1'd on • piairaaq111t Cl«IKtlll n»<I Pim only pnal!Cts tulfy r�ndlot.\all�ra<iid1 t-,�wBift'dt1imia,6llllll� l)tO'll�lllttp,orfj)(lirlOfpttip,lo)..A-.wi41)'0rPI011Mff r1nglnglrom3110s.qm11t.l'toll0Mjfflllt41futprol'l(kld.Thi PIDUpnctllllUIanip,«1¥llit,dl'fflhc.antn1argagrun. 119'1!:I'-s.ptCH ,M f�l•rlrMQN.15 tt,111fQIJNI ' t"1nof l11lllllac�JMCIIJ,IID!lnswlt:111111IMIJ\llll'lllln..igt1b11urt11od... ofl�/TM,'lUrtlttillilhil'tMulllil(lr11j'edlltttt1ltJm'tth!ti81o<;llf [tdl�ff'P(,rJ,l!�rplla:M4),ThitH.,.,tt,9t.,d�IOI� Cc.m� SJIM!Hlnd WCdllll t. i:lw-al�d In CDl1CllfTDDG9wi'ttlth1tHIJIII, Alllh4, 1'1181.-0!l.alp,l'Mln�tt, ljlr� ��hf(! l!hn;iu� � 11coo11Myla)'tiol'6�u.r.urtytroml1'111M■lnlloolnard ,�,

ra1nporunlon

Totalbulltuparn ,... ,.. 20112.LI.$,IJ.m

18�/IP 28HICAP l41HKAP 1128'HK\913&HO,P 2128H�\2131$HKAr 4HWLA 311>.:Vlll.A 1.2 16,1 ���=�=-=�i:.� 0-,,.M -...,..--���""�,°�"'_,V,...ERA-GE�____, =••::-=•--=-�-"'= t=- " ��"� ,- ----1�t� """' O[NSm' ,...

""' Tif'El:15n'PE2:B lB f'fftl:4 " "M'[l:<I " TYr>t1:,s " IYP(l:<I " TYPf;ll4 • lYPt1:1 lYPfl1I

fM =Tou111uotar,atlfldfktors,/P1o-1ArH

$0Cliil"""'1-fllU14'1fll+1 1""""'"1"')'-......-l,._••OIIM�t◄tho DllllMo....,"IIDlo,...,.J.. nc,.)UIJlffl i.�hll JTM-So:nl c..-.,..,u ,_,_ ;:'.";:- .U'lli

ROAD HEIR.ARCHY:

Pedutrianroad 1.2MROAD

OTHER AMINITIES

o •tld e>,ilr,lt,111 c:trllft :lll'ti 1Uf11�P'IIMUIHriitirrrwl'fll:11.lilldn,gblo,i::a,01•Mp4rnt.<Ibf111St,,g1"1111111opctl'llflllc.11■.thiir■holl"l'lerllnbtd�ltiur-kl'lll'ff�-rl■i.t'.M!Rd wa/�.,..•Y•1Mfn'lr■,_prnrrle'lia!Rand■ffl'nll NMt-iln���li.ottl�lfl'n'III pn.111:111c:ifklrs.mchllk:..c:irorc:ipot1pc:i1n,a:1. parthlluu,.11dti1tln.tlonwlthtnth11 dubt11 i11 TholFDfllllll1nclLnlimn..tunctJQn111nth11S

i1¥11'11 l■Jllml'II Ylltlia.Jlnr -■rn'Rbnd pldtup t,Olnt411�11r�

3

ROAD HEIRARCHY ...
N 0 N z Cl iii uJ C
���t:6:
OHlllttlllrY DUG�Al)ON HEIGHTOfTHCl�DWG NO0fUt,llfSNGF PUMmtO DESIGN FIE.Sl!Hntal S5'6 Fle:sdenU&I 46,26'/II, ornmerdal J� Ccmmt!fdel:5.179'
AREA STATEMENT 1129' Tr.insprnUtiOn ll.02'!. NoOl-dw�llln unite�tobe8Chh
'led t10UNITS
Perrl!'WnltilaCO-.,aruaandfar Gfoul"'ldCiwmu fi6"Ei "'
AREA STATEMENT HEIRARCHY+ PLOT DIVISION fQTALHOQFnOCJIIIIS NOO.-!J�f$ " " ' " 12 " " ----•nu1.u.,.1 _.,,.,.,..,...l...i"'-'ho �....-.....,-,uti~.. .._._....{_......o:IJl'Mf116<YH". ...... $"1.,fltl(llla.o,..,11,)l;M_,,.......... --•w-C-n�..-, .lltl"•"-•-llltotodC<:m--. i::.....--1i'f.rt1,11o-1th"llot1111U1t1 •t..ia.t•N2Ml14"' S1 .. " .. .. .. 40 1 TOTAi.NO0,ClUS1111115 ,. 1Z !llltlll.■renot ta�al� �.. -I i::;' ,� ' I 1·-,: -- I • - Jr-----� 1_ \ """'"' � .. �s:.'ii. , :'" ' 'Alljiiiil , f .a-. �.-:.. � _,�rwc.-rur 11ATf� 1 BHK APARTMENT THREE-3 BHK, ONE-2 BHK PLAY AREA TW0-3 BHK. TW0-2 BHK 2 BHK APARTMENT VIEWS SECTION 3 BHK VILLA
BHK APARTMENT 4BHKVILLA CLUB HOUSE + BIRD EYE VIEW OVER HEAD TANK-LANO MARK SECTION : B-B' 0 N 0 N z Cl iii uJ C 05
Cul)}IQIUH �
DETAJL.S;RECREATIONALAREA outdoor I amphitheatre \ .tfod":Junciion:1 ', G) Noda: 111nlrane41 :1 NODES parking area recreational --::i ' \ \ \ I I I I ,I ., ., ltQ,l,DSCC:00111:., Greenspacesa,ebydesignlocatedu.aseparatorandconnector.Awidegreenstripaccompaniesallmalnroads give,anlmmorslvegte11!1'1e,:perlencewithinlheneghbourhood"r(l�10f11t11or"'11o"JQr..-.tt1n 1111Ln•�nllMknHj1UbilJty SECTOR DETAILS SECTOR-A 0 N 0 "' z Cl iii w C •l•l 2BHK-�UNI� HO'rTOSCALE 2Bl1K-I UNT 3 811�-3UNITS NOTTOSCALE TYPEl 3BHK·4UNITS NOTTOSCM.E! � l'ARJ(JNQLAYOUT SECTION >M - HEIGHT [ APARTMENTS �I I tl OIME,,!SIONS BeDROOM1:-4.SIii!JCU.S1,1. BEDFtOOMZ-:lJIMX.�ffM 1.IVJNGROOM:43M X6JM KlCtil!!N:l-..lMlX4.2!N TotLET':1l!illX1.4M rr! I iI I ' . OMENSIONS:1 BEOROOM1;-4..5MX3IM $E0AOOMz 441111J()91M SE.CROOMl :t,MX3111Ml LN1NGROOM:-4:)II X1.3II KITC:tlEN31MXA.DII TOlLET.!15IllXz.•M DIMENSIONS;1 &EOROOM1 41MJC3SM IEDROOMZ -'IIIMXUM AFDROOMll1,M>c31Ml LJVlfiK>ROOMi4..JM .IC5..3M KITCHEtM.3MXUM lOILE1'"15M)C.?4M I t=I I t PLANS/ PARKING PLAN/A M.t.JNU�It-a:.; Vl�W DN�SION"S:� BtD�OOMI tiIIX5-1SM BEOFlOOM2 J4MX4..IOM LIVINGIWOMI 4.,.3.M X53M KITC:HISN"1M14..:ZII T01t..H1...SMX1.•Pll •l l0 "' 0 z Cl iii w C 05
06

site details

SITE PLAN

FLOOR AREA CALCULATION

GROUND FLOOR

Floorarea(includlng verandah)=584.7 sq.m

• 6293.65S oqft

V•r•odah=16.5+9 7+134"39 61<1 m

Porc:h=17.8E<Q,m

TOTAL SITE AREA•1242 7sq:,m

FAR•0.470

Covorage=47'%

06
section masterplan
SECTION 8 SECTION A elevation ELEVATION A
06
ELEVATION B
masterplan 8 06
07
motherandchild specialized

D □ D □

D □ D □

D □ D □

D □ D □ D □I

D □iTI D □ □

D □ D □ D □

about theproject

This is a hospital design project of a specialized mother and child oriented healthcare. The building gets its form from the shape of a cuddling baby. Furthermore, the building is placed along the contour. Curved walls are used to incorporate a friendly and welcoming attire and to terminate the sense of fear. Some of the main OP departments include obsterics and gynaecology, paediatrics and neonatology.

D
D
□ □ D u □ □ D
□ □ D
□ south elevation DI □ I D D
D
a
DI D ID D
□I o
,DI D
D D D 0 D o LI □ □ n D D D □ □ □ □ □
□ ID I□I D DI ID I
D In
west elevation north elevation
07

ipdepartment

ipdepartment

ipdepartment

ipdepartment

�administration

�#

opdepartment

servicefloor

�-%diagnostics

�,4,p,icu&gynaecology

�#

�-%-otdepartment

�*emergency

verticalzoning
07
floorplans GROUNDFLOORPl.AN IL3LVl SCALE 1:100 ..., Pl OPDE:PARTN(NT IJLOCK2 FUtSTFlOORPl.AN USLVL SCAl.£11100 BLOCK1 HRSTFLOOR PLAN L17LVL SCALE1:100 01.AGNOSTICSOEJ'�RTMENl llLOCIIC"l THlkDFlOORPUN .USL\ll SCALE 1:100 07
07

This is the proposal of a business school project for a capacity of 360 students.

The site is located in Pala, Kottayam, Kerala.

The complex includes academic and residential spaces for staff and students. All blocks are accessed by covered pathways. Seating and recreational spaces are provided at the intersection of these nodes

campusplanning project

08

zoningand circulation

family residence sip

badminton court

faculty lounge

PUBLICZONE

SEMI-PUBLIC ZONE

PRIVATE ZONE

elevation

west elevation

mens hostel basketball court

CLASSROOMS

HOSTEL BLOCKS

north elevation

t:!ll p,j 1311]
blockplan and section J3]:1•
■ FACULTY RESIDENCE secu;rty cabin 08

rn""-l--f--II+j,i!J1t1w-rlt--________,'.�1-�-.��--1----�-,,,+lJ,,,,,lLJ,,,,,jf,uif�;;;;jll�illlj;:l;;�UIJJ��������

section a-a' ············ ----

1111111111111111111111] rn IIIIUl11"uIt#ffi\11I11111�9±/i:::::::,/frrr:::wr(g�;;��

section b-b'

section

canteen plan blockplan

08
blockplans
administration block plan faculty lounge plan administration block section faculty lounge section classroom plan hostel gf plan
08
classroom section hostel block section
09

lampdesign

moodboards

10

NASA

competition works

�........._!1.1)11.H�l.....,,'1•..,M!ll,.',11,WO,. DCT-.�--MO(M-"'""1,/L&dl<'-u.1.11
" N O C l 0 I ii ...,.,..Sl'o,Eft(? l&H-WIF..aMl � -"'�Ktr-i! ,.,.____________.,.___.,..__ --- .. _.._ ..____ 11
The urban porklet

canvaspainting

12
-c ::::J" 0 .... 0 (Q � C -c ::::J" --< 13
13

Turn static files into dynamic content formats.

Create a flipbook
Issuu converts static files into: digital portfolios, online yearbooks, online catalogs, digital photo albums and more. Sign up and create your flipbook.