Skip to main content

Interior Design Portfolio

Page 1

Portfolio

Ashley Campbell

A hardworking and determined student with two completed years of higher-level education, looking to gain more knowledge in interior architecture and design through experience and collaboration

Bachelor of Arts in Interior Architecture and Design

University of Arkansas in Fayettevil e Minor in Sustainability

Study Abroad Experience

Florence University of the Arts | Florence Italy

90% New Arkansan Non-Resident Tuition Award

University of Arkansas out of state scholarship according to GPA

Dean's List

University of Arkansas awarding a 4 0 GPA

P R O J E C T S

Senior Living Facility

Expected Graduation: May 2025

Summer 2023

2021 - Present

2021 - 2022

Participated in a design project for the elderly to age in place independently Paderborn, Germany

Psychology Center

Created therapy offices for people suffering through trauma from the poor air quality Reserve, Louisiana

Habitat for Humanity

Worked 12 hours of community service

Built a home with a team of 12 people to benefit the underprivileged community

Nanny

Driving and caring for children weekly for 8 hours a day in Aledo Texas

Prepared food and engaged in enrichment time to promote healthy development

ASID Student member

American Society of Interior Designers student club at the Fay Jones School

Alpha Chi Omega | Delta Rho Chapter

Homecoming Chair 2022 | 25+ hours of service

Maintaining a minimum of a 3 2 GPA while supporting our philanthropy (Domestic Violence Awareness) through volunteer work with Peace at Home Family Shelter

Intramural Volleyball

Arkansas UREC Womens league

2023

2022

Fa l 2023

2019 - 2023

2023 - Present

2021 - Present 2023

F a y e t t e v i l l e A r k a n s a s 8 1 7 2 1 7 8 2 9 0 a b c 0 1 9 @ u a r k e d u C A M P B E L L A S H L E Y P R O F I L E S U M M A R Y
T E C H N I C A L S K I L L S
Revit, Adobe Creative Suite Microsoft Suite, Google Suite E D U C A T I O N A N D A W A R D S
Rhino,
V O L U N T E E R + W O R K E X P E R I E N C E
Florentine Art Walks I N V O L V E M E N T

Table of Contents

01 02 03

NEXT Architecture and Design Model Making Evergreen Senior Living Technical Drawings

Architecture and Design firm in Dallas, Texas; consisting of 11,000 square feet, not including an added mezzanine level.

Adaptive reuse project located in Paderborn, Germany; meant to provide housing for people aging independently.

Detailed Adobe Illustrator drawings modeled after chairs and door jamb systems.

04

Topography study model to understand the surrounding site of a current project as well as a programming concept model.

05

Psychology Center Segraves Residence

Project located in Reserve, Louisiana; meant to help those who were affected by the poor air quality.

Project involving a protected home in Fayetteville, Arkansas that was renovated to be accessible for the elderly.

06 07

Textures and Patterns

Experimenting with several shapes and textures to create shadows through different depths.

Creative Works

08

First year platonic solid study creating an aggregate garment out of tetrahedrons that symbolize fire elements.

NEXT Architecture and Design

Monumental Staircase

NEXT is an architecture and design firm located in Dallas, Texas. The office is on the third floor of the Victory Commons One building consisting of 11,000 square feet not including the mezzanine level. The surrounding site is in an urban Dallas area and consists of many trails, transportation options, event centers, and restaurants. NEXT really wanted to focus on their new goals with the company and this was created in the new space by bringing the idea of innovative synergy into it.

01

Gaming Space

Reception and Waiting Area

NEXT reception desk and waiting area for anyone who enters this floor of the building. A full-time receptionist occupies the space and is available for help as needed.

Workstations

Each staff member has their own personal workspace that includes a desk, chair, storage, and two large monitors. Staff have the freedom to personalize their spaces while being able to collaborate with others. There are also six work desks designated for guests working in the office.

Work Cafe

Evergreen Senior Living

Ground Floor Plan

An Adaptive Reuse building located in Paderborn, Germany. The building is a large site and close to a river that has biking and walking trails. The intention of the project was to create an adaptive reuse building that would establish a community with the housing for people aging independently. In this project, the clients asked for the outside community to be able to connect with residents as well. Overall, they imagined the residents to be a variety of people with different lifestyles.

UP UP UP UP BAR/CAFE FITNESS YOGA/DANCE STUDIO ADMINISTRATIVE SUPPORT MAIL ROOM RECEPTION AREA COURTYARD LAUNDRY LIBRARY PERFORMANCE SPACE CLASS SPACE MUSIC ROOMS GATHERING SPACE SINGLE RESIDENCES POOL DOUBLE RESIDENCES LOCKER ROOMS 02
First Floor Plan DN DN DN DN UP UP RESTAURANT GATHER SPACE GAME ROOM SINGLE RESIDENCES DOUBLE RESIDENCES LIBRARY DOUBLE RESIDENCES COURTYARD

Second Floor Plan

DN DOUBLE SUITE GATHER SPACE DOUBLE SUITE SINGLE SUITE GATHER SPACE 15' - 10 7/32"
Sequence Diagrams

Evergreen Entrance

The updated entrance into the building was once part of the historical old monastery and helps show how the building was once used.

Evergreen Bar & Cafe

The bar and cafe in the building allows the outside community in, and offers a variety of indoor and outdoor seating for residents and non-residents to interact.

Evergreen Library

Evergreen Single Suite Evergreen Double Suite
03
Chair Detail Drawing

Door Detail Drawing

Model Making

The site model helped to understand the surrounding topography of a current project to create a library of things. The concept model on the right is also part of the ongoing project and is helpful when thinking about the structures and floor plans abstractly.

04

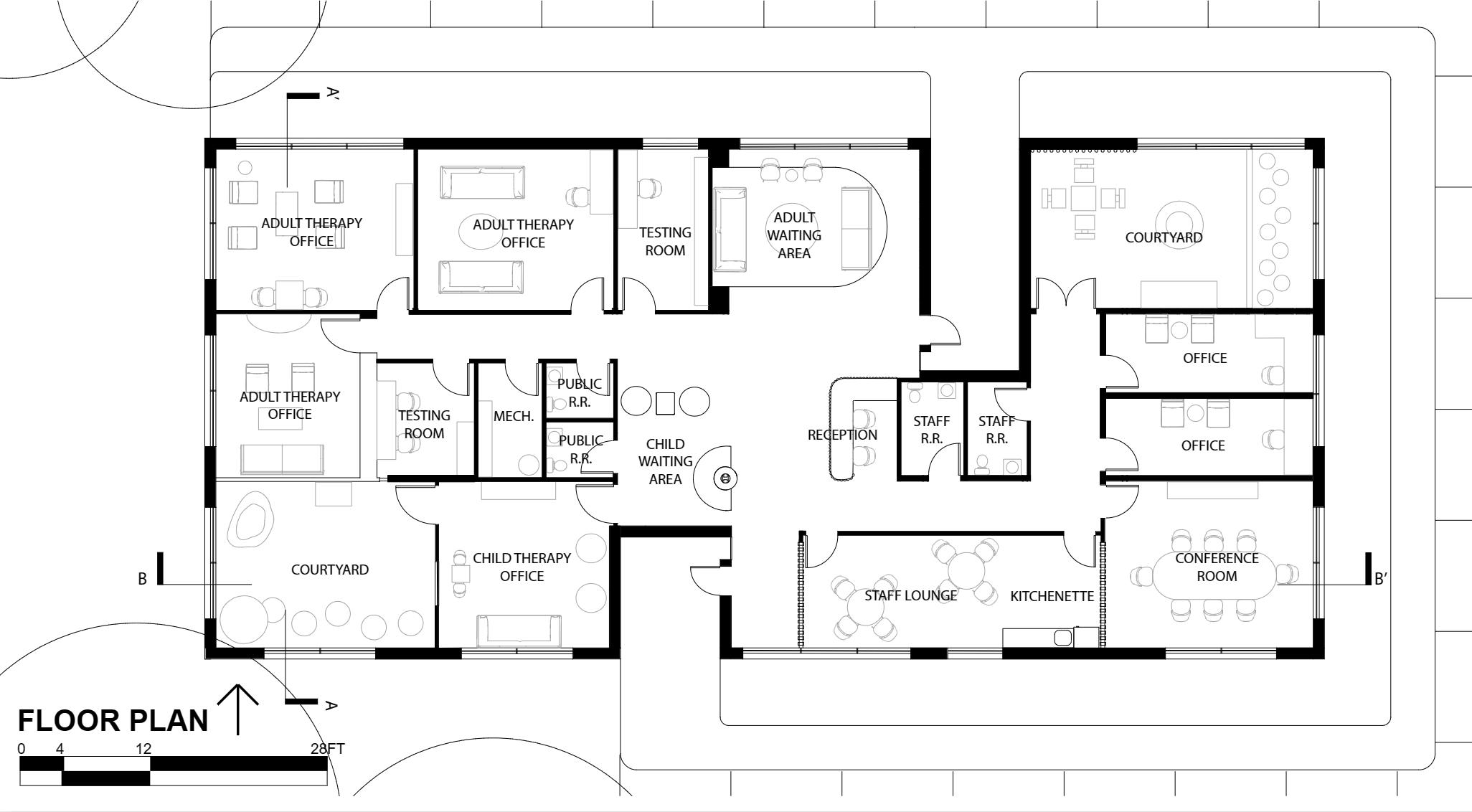
Psychology Center

The psychology center located in Reserve, Louisiana was designed for people affected by the poor air quality in the area. In the building, rounded edges are often included to give a sense of comfort to the patients. The idea of trees is also used in many of the spaces to reinforce the idea of healthy air quality. For the children’s courtyard, an atrium was created by making one half of the ceiling glass so that the patients feel like they can be there without the thought of unhealthy air exposure risks, but still gain access to more natural lighting. To tie all of these ideas together I created a collage for items that would be included in the cabinet of curiosity located in the building. I also gathered materials consisting of many types of wood and fabrics while using colors including browns, blues, greens, and oranges throughout.

05

Cross Section

ADULT THERAPY ADULT THERAPY CHILD COURTYARD
Ground Floor Plan Cabinet of Curiosity

Adult Therapy Office

Adult Waiting Area

Child Courtyard Child Waiting Area

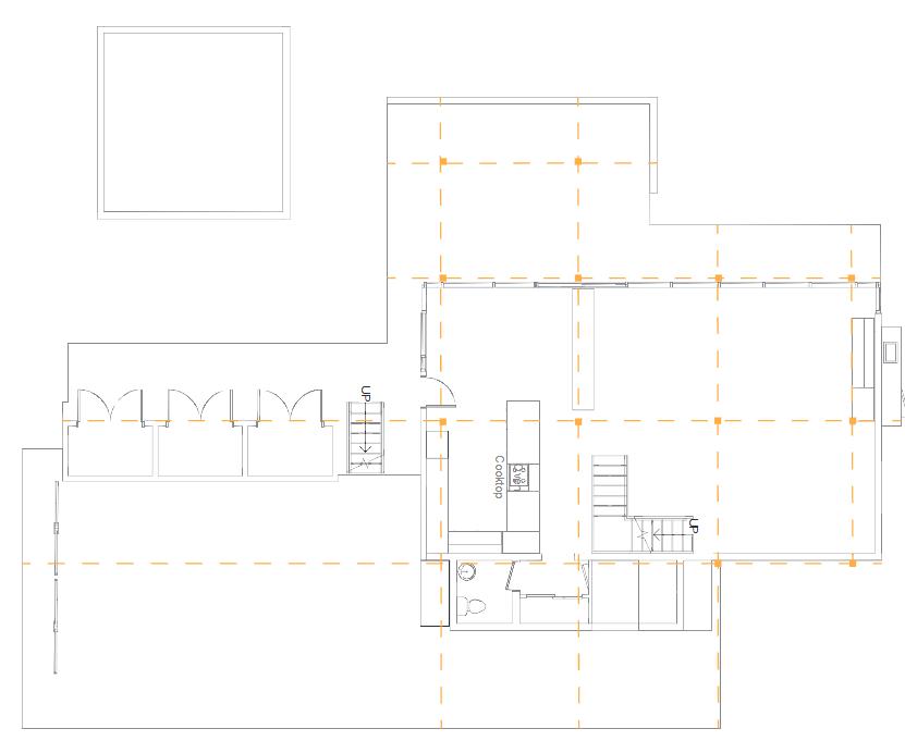
Segraves Residence

Protected Home Renovation

For Project Renovation, we were expected to renovate a protected home and make it accessible to the elderly. Specifically, the Segraves residence contains a mezzanine floor between the first and second floors. To be able to access either the first or second floor you must take the stairs down to the patio or up to the balcony. There is another main entry option that I felt was more appropriate for the home, where you enter on the mezzanine floor and can take the elevator up or down. The kitchen and the master bathroom are where the most renovations had to be done. The counter heights and cabinets in these spaces all had to be adjusted to keep an appropriate height and space between them. Sinks also had to be adjusted so that if needed in the future, the residents would be able to access them from a wheelchair. Counter heights consisted of 2 feet, and 5 inches and the clearance space was 3 feet. In the master bathroom, I went with an accessible shower with a seat for added flexibility as opposed to a bath which can be a safety hazard climbing in.

06

Restroom

Detail Drawings

Built-In Detail Drawings

Planning Diagrams

Textures and Patterns

Experimenting with different textures and patterns by showing shadows and unique shapes.

07

A garment created out of platonic solids. The tetrahedron represents fire elements, which is where the red, yellow, and oranges come from.

Aggregate 08

Thank You

abc019@uark.edu

Ashley Campbell Fay Jones School of Architecture and Design

Turn static files into dynamic content formats.

Create a flipbook