








![]()













I am a designer with training in both architecture and interior design. I hold a master’s degree in architecture and am currently pursuing an MFA in Design with a concentration in Interior Environments at Virginia Commonwealth University.
I am interested in projects that integrate design across scales. I see urban design, landscape, architecture, interiors, and furniture not as separate disciplines, but as connected parts of one design system.
I believe strong design responds to cultural, historical, and environmental context while expressing a contemporary architectural language. This approach aligns with contextual modernism.
Hand sketching is an important part of my design process. I use freehand drawing as a tool for visual thinking, rapid ideation, and concept development. My sketching skills have been recognized with awards such as the AIA Richmond Alice Lehmen Sunday Prize (2025).
Type: Academic Studio Project
School: Virginia Commonwealth University
Course: IDES 699 - Thesis Design Project
Professor: Roberto Ventura
Year: Spring 2026 (ongoing)
Role: Design, Development, and Documentation
Software: Revit
Description: This thesis project focuses on the adaptive reuse of the James River Steam Brewery Cellars in Richmond. The design transforms the historic ruin into a modern brewery with a new second-floor restaurant addition. The project includes interior renovation, structural interventions, vertical circulation, and integration with the surrounding neighborhood, landscape, and river context. Guided by the concept of integration, the design connects old and new, interior and exterior, and building and landscape. Curved forms inspired by the historic arched façade unify the architecture, interiors, and landscape, creating a cohesive experience that respects the existing masonry ruins while introducing contemporary elements.




























The James River Steam Brewery Cellars were built in 1866 by D.G. Yuengling, Jr. They were part of a brewery that made beer for the local community.
The underground cellars were used to store and cool beer before modern refrigeration.
In 1891, the building was damaged by a fire and has been abandoned since then. The brewery is located in a historic area with old warehouses and factories.




The historic ruins of the James River Steam Brewery Cellars are located along the James River in the Rockets Landing neighborhood of Richmond, with open views to the water.
The site sits between the river and the city, creating a strong connection between natural and urban environments. Several historic smokestacks and industrial chimneys remain around the structure, reflecting the area’s industrial past.
The Virginia Capital Trail runs directly in front of the building, bringing cyclists and pedestrians through the site, while Old Main Street, at a higher elevation behind the building, shapes access and circulation.

The design uses strategies at different scales to create a cohesive and improved experience.
At the urban scale, a sunken garden/courtyard connects the building to Old Main Street from the upper level, creating a second entrance.


At the landscape scale, new plazas and open spaces along the James River invite people to gather and connect with the waterfront.
At the architectural scale, the design preserves and stabilizes the historic masonry ruins using a façade retention strategy, while inserting a contemporary


structural system and curtain wall set back from the original walls to clearly distinguish old from new.
At the interior scale, new interventions are carefully set apart from the existing masonry so both can be experienced in their integrity.
At the furniture scale,
light, modern pieces such as the D’Urso Swivel Chair contrast with the heavy historic structure.
Inspired by the building’s arched openings, curved forms are used across all scales to unify the architecture, interior, and landscape into one integrated design.
















Sunken Garden/Courtyard


Sunken Garden/Courtyard











Forecourt Plaza


Forecourt Plaza













Memorial / Monumental











Facadism / Facade Retention


Facadism / Facade Retention











Curvilinear Language Across Scales

Interior Design with Light, Modern Furniture
Type: Professional Project
Firm: Poole & Poole Architecture (2PA)
Supervisor: Nea May Poole
Location: Richmond, VA
Year: Summer 2025
Role: Design, Development, and Documentation
Software: AutoCAD, SketchUp, Enscape
Description: This leasing office was designed in the midcentury modern style, highlighting clean lines and an inviting atmosphere. The space features wood flooring in a warm tone, wood panels that add texture, and sculptural pendant lights that serve as focal points. Mid-century modern furniture was carefully selected to look light and give a sense of floating.













Type: Professional Project
Firm: Poole & Poole Architecture (2PA)
Supervisor: Nea May Poole
Location: Richmond, VA
Year: Summer 2025
Role: Design, Development, and Documentation
Software: AutoCAD, SketchUp, Enscape
Description: This clubhouse was designed in the traditional style, with a layout that emphasizes symmetry and organizes spaces by function. Restrooms, MEP, and storage closets are placed together, while the pool equipment room and staff breakroom are located side by side for efficiency. In the Great Room, wainscoting highlights the grand scale, paired with warm wood flooring. The design balances harmony and variety while keeping a consistent traditional style throughout.













Type: Academic Studio Project
School: University of Guilan
Course: Undergraduate Final Architectural Studio
Professor: Mehrdad Javaherian
Year: Spring 2014
Role: Design, Development, and Documentation
Description: This project represents the conceptual foundation of my architectural thinking, such as exploring abstraction, climate responsiveness, and cultural continuity.
Located in Rasht, a city in northern Iran, this undergraduate studio project, explores how traditional architecture can inform modern design through abstraction rather than imitation. The design draws inspiration from the steep, layered thatched roofs of local vernacular buildings, which respond to heavy rainfall, and reinterprets these qualities as modern roof forms. This approach maintains a connection to local tradition while expressing a contemporary architectural language.










Presentation Model
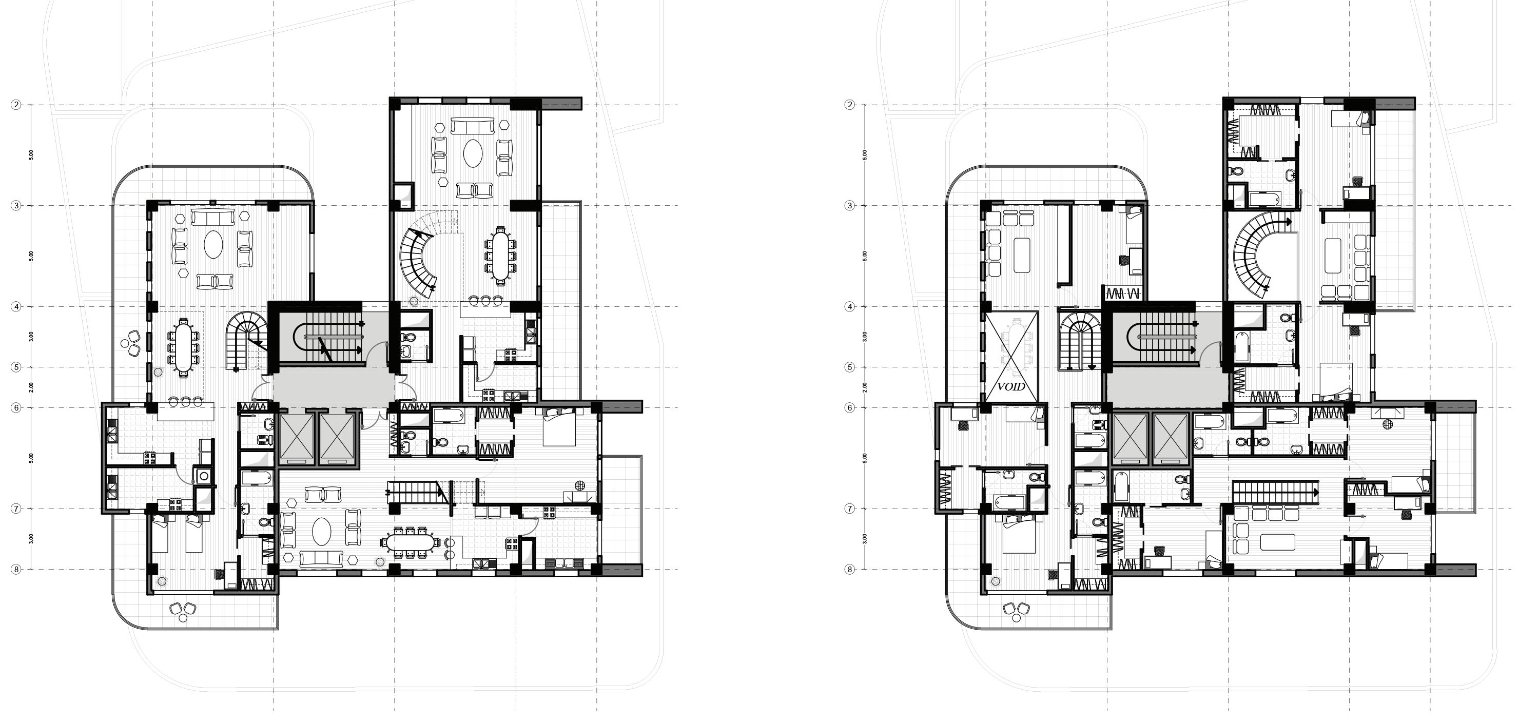
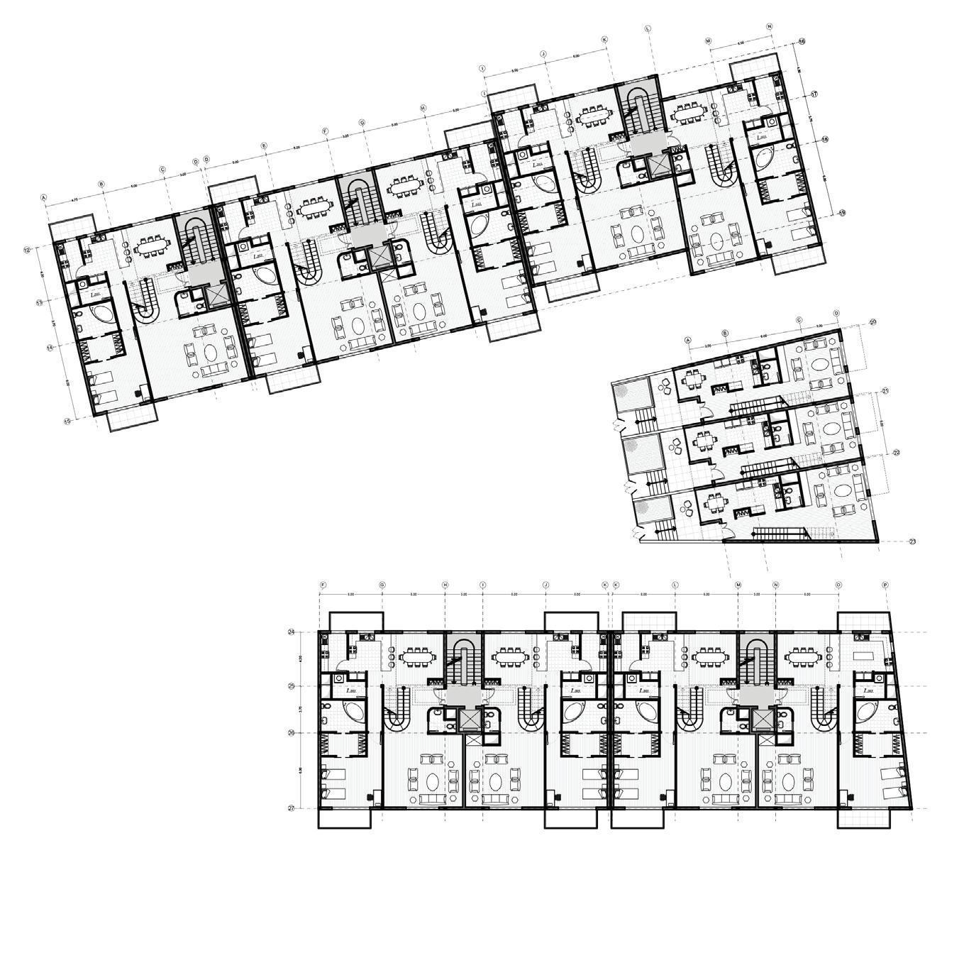
High-Rise Apartment Building Floor Plans



Type: Academic Studio Project
School: Virginia Commonwealth University
Course: URSP 526 - Design of Sustainable Places
Professor: James Smither
Year: Fall 2025
Role: Design, Drawing, and 3D Modeling
Software: SketchUp
Description: This Transit-Oriented Development (TOD) project creates a walkable neighborhood around a tram-lined commercial street. Housing, offices, shops, and public spaces are placed close together so people can easily walk, bike, or use transit instead of driving. The design includes a town green, plazas, and connected open spaces where people can gather, relax, and move through the neighborhood.







Aerial View of the Neighborhood
Type: Professional Project
Firm: Poole & Poole Architecture (2PA)
Supervisor: Nea May Poole
Year: Summer 2025
Role: Conceptual Design
Media: Hand Sketching
Description: During my time at Poole & Poole Architecture in Glen Allen, VA, I created a series of sketches to explore how multifamily residential projects could enhance the quality of life for residents while also engaging with their surroundings. The ideas included stepped terrace forms that capture more daylight and provide outdoor space, courtyards and stairways that foster social interaction, and public edges that connect the project with the neighborhood.




Urban Courtyard and Social Stairway

Public Corner

Connected Courtyards
