PORTAFOLIO

Page 1

PORTAFOLIO

alexis S. Valladares C.

mmxxiii DESIGN I ARCHITECTURE I PARAMETRIC I DIGITAL art
Proyectos realizados durante mi etapa de estudiante.
Universidad Ricardo Palma a lma M áter

CONTENIDO

01 multifamiliar post- covid

Una propuesta desarrollada en Surquillo, bajo el contexto del estado de emergencia y crisis sanitaria.

02 mercado grau ayacucho

La propuesta se desarrolla en Ayacucho, producto de un concurso público. El mercado aporta un respiro al centro histórico de la ciudad.

03 cite chancay

Se plantea la regeneración del Instituto Tecnológico, debido a la llegada del megapuerto y su impacto internacional, brinda oportunidad de proyectar un hito contemporáneo.

.

CONTENIDO

04 digital art explorative

Una justificación de inspiración a la cual recurro para explorar nuevos ámbitos de expresión artística mediante recursos digitales.

05 CV

curriculum vitae

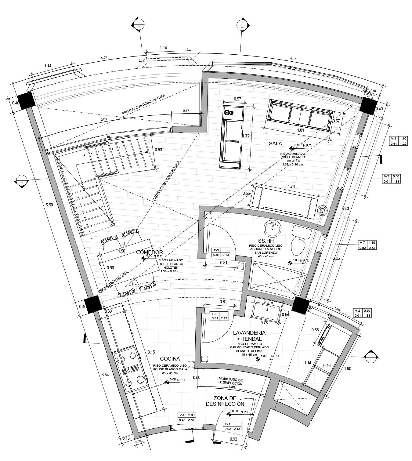
01

MULTIFAMILIAR

POST- COVID

Lugar: Surquillo - Lima

Software utilizado, Modelado: Revit

Planimetría: Revit

Render: Lumion

Post- Producción: Photoshop

Sobre el proyecto,

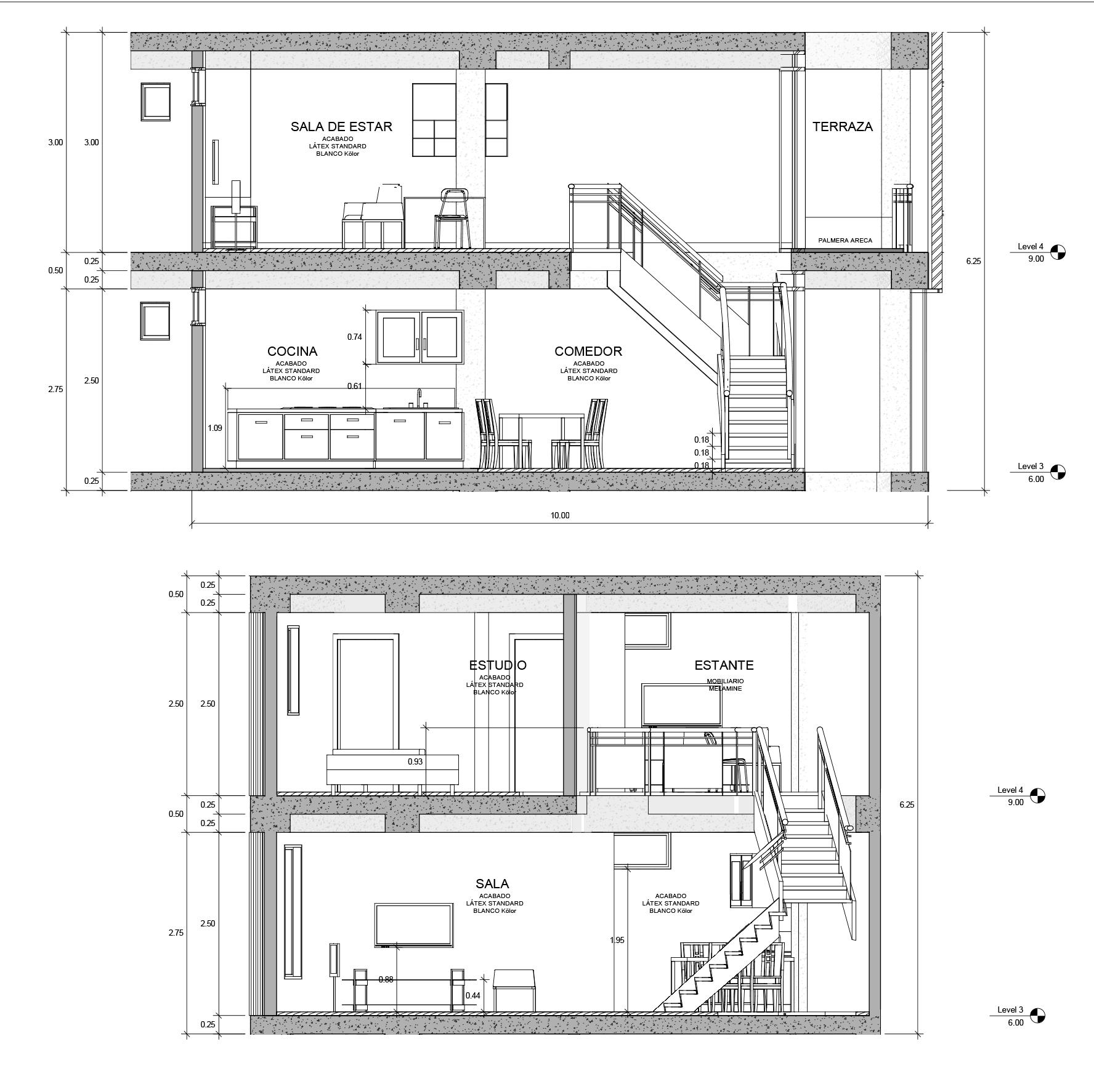
El multifamiliar post- covid es una nueva tipología de vivienda que busca prevenir los contagios entre los residentes, por lo que se implementan estrategias que favorezcan la constante ventilación y renovación del aire, asi mismo que refuerzen la iluminación del proyecto, se desarrolla una programación de acuerdo al estado de emergencia que limita las actividades por ello se plantea una arquitectura como herramienta que entienda las nueva dinámica de las actividades humanas.

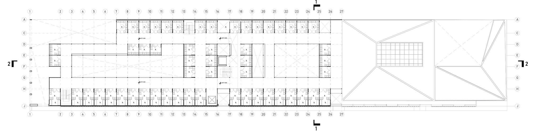
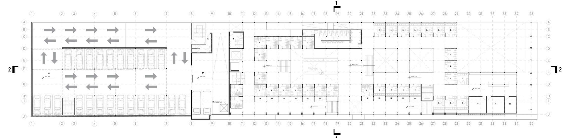
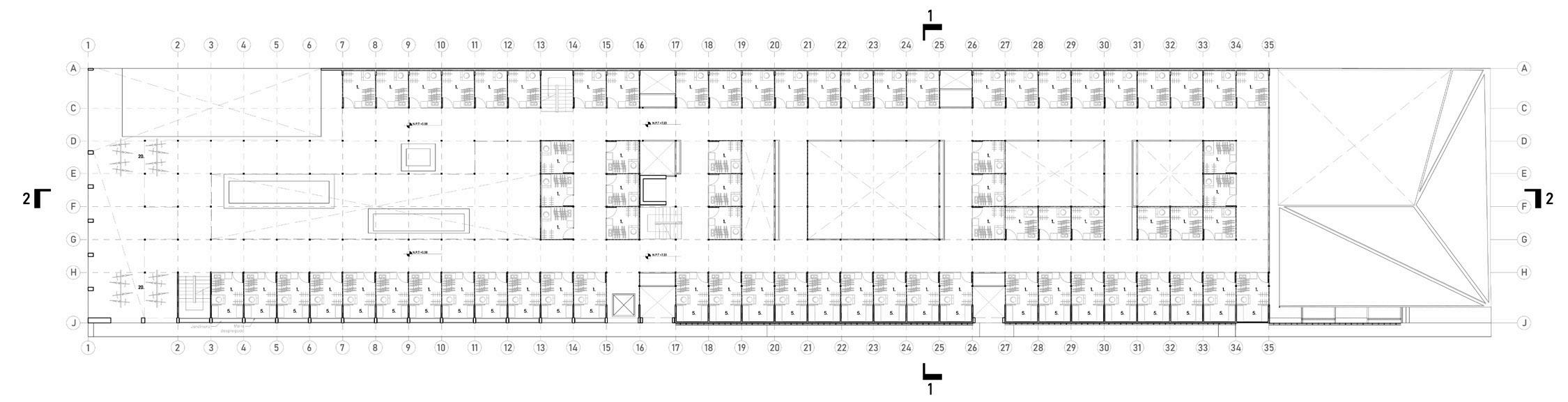
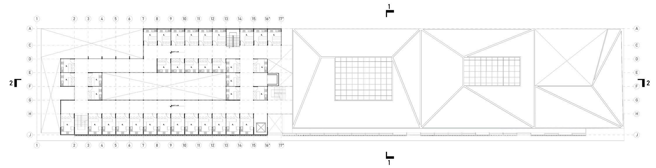
PRIMER NIVEL TERCER NIVEL SOTANO CUARTO NIVEL
OCTAVO NIVEL NOVENO NIVEL
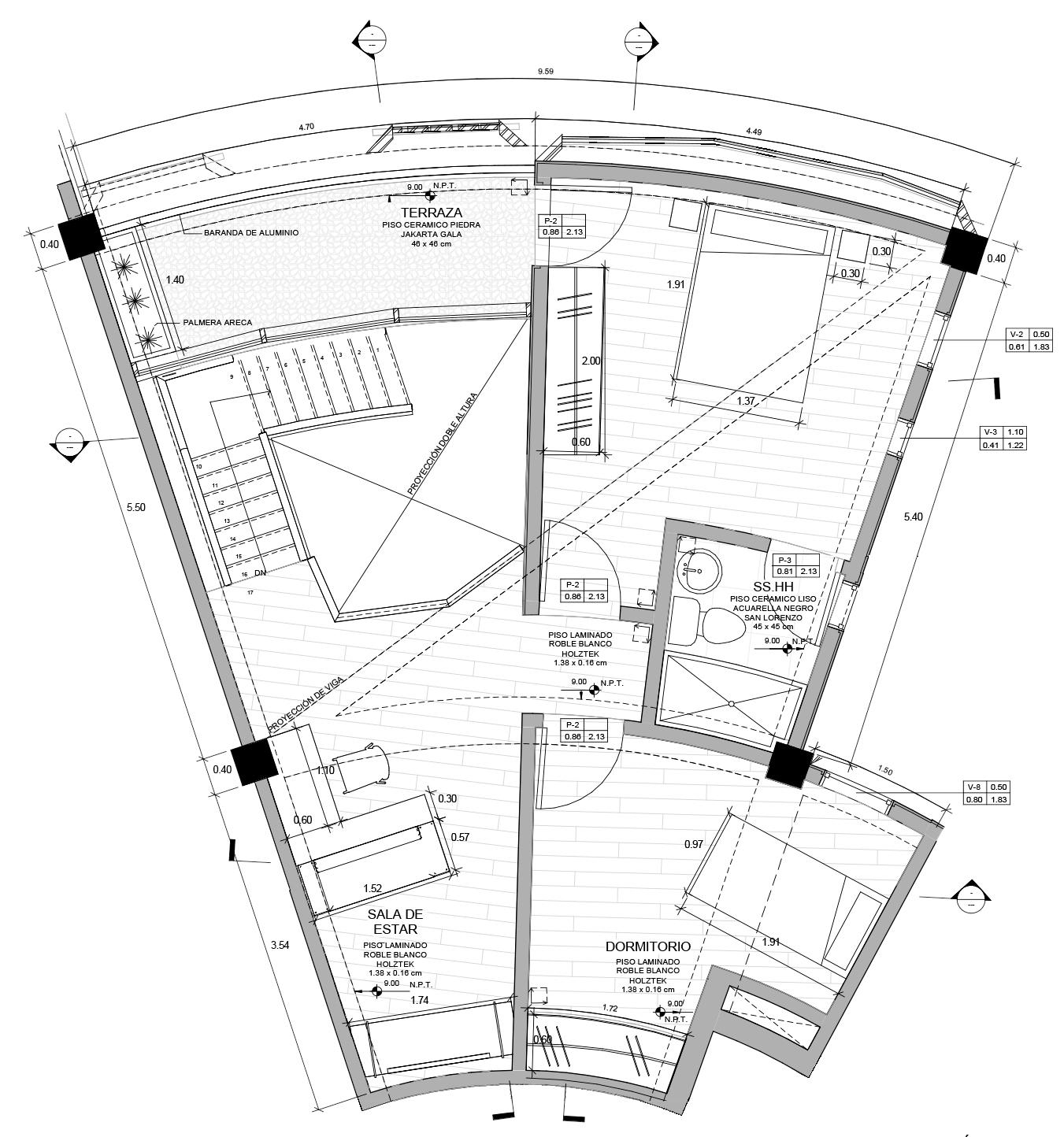
PRIMER NIVEL DUPLEX SEGUNDO NIVEL DUPLEX CORTES DUPLEX

Se desarrolla una programación de acuerdo al estado de emergencia que limita las actividades por ello se plantea una arquitectura como herramienta que entienda las nueva dinámica de las actividades humanas.d

DUPLEX

02

MERCADO GRAU

CONCURSO

Autores: Albert Solano, Ursula Rutti, Alexis Valladares

Lugar: Ayacucho- Perú

Software utilizado, Modelado: Sketchup

Planimetría: Autocad

Render: Lumion

Post- Producción: Photoshop

Sobre el proyecto,

Se busca revitalizar el espacio público en el centro histórico de Ayacucho, con la finalidad de articular las actividades desarrolladas mediante un enfoque integrador considerando el patrimonio de la ciudad.

El proyecto presenta un aterrazamiento de plataformas que lo divide en cuatro volumenes que presentan una continuidad interior debido a la integración de la parte superior con el segundo nivel de las plataformas.

NIVEL
SEGUNDO
PRIMER NIVEL SOTANO

TERCER NIVEL

NIVEL

CUARTO
TECHOS

TECHO

Recolección de agua pluvial. área verde

3ER NIVEL

Venta de calzado y accesorios

2DO NIVEL

Venta de ropa

1ER NIVEL

Venta de alimentos

ACCESO VEHICULAR

Sombra

MÓDULOS PREFABRICADOS

PANELES

Envolvente permeable y transparente

MURO ALINEADO AL ENTORNO RESPETAR EL CENTRO HISTÓRICO

INGRESO PRINCIPAL PLAZA

VEHICULAR

PATIO DE COMIDAS

ALERO

Sombra , recolección de agua y área verde

CIRCULACIÓN VERTICAL

Ascensor y escaleras

VENTA DE CARNE

Ternera, cerdo, cordero,

PATIOS INTERIORES

Refuerza ventilación e iluminación

El aterrazamiento de la propuesta, permite la evacuación de las aguas pluviales, asi mismo previene las posibles inundaciones en temporadas de lluvia, asi mismo, cuenta con una cobertura que facilita la recolección de lluvias a través de sus canaletas, permitiendo la existencia de vegetación de bajo requerimiento con la finalidad de filtro purificadorde primera instancia para el agua recaudada.

VENTA DE ABARROTES

Productos variados

ESPACIO DE AMORTIGUAMIENTO

Zona de alivio para la ciudad

Por otro lado, la vegetación aplicada, a la cobertura, permite controlar la ganancia de calor, asi como los paneles de acero perforado, que permiten un mayor control de la iluminación indirecta hacia los módulos comerciales.

El uso de patios interiores, ayudan con la iluminación y refuerzan la constante, ventilación y renovación del aire, además de brindar espacios agradables en contacto con la naturaleza, que ayudan a regular la temperatura.

ESTRATEGIAS BIOCLIMÁTICAS

03

CITE CHANCAY

Lugar: Chancay- Perú

Software utilizado, Modelado: Rhinoceros + Revit

Planimetría: Revit

Render: Lumion

Post- Producción: Photoshop

Sobre el proyecto,

Se busca revitalizar el instituto tecnologico superior de Chancay, con la finalidad de convertirse en un hito referente de la ciudad. Por ello el proyecto presenta un aterrazamiento de plataformas que se adapta al terreno , asi como una cobertura que envuelve y protegue le instituto, brindandole transparencia e identidad.

SEGUNDO NIVEL
PRIMER NIVEL
TERCER NIVEL TECHOS

CORTE A-A

Se muestra el desnivel topografico, se observan los laboratorios de investigacion y los de computacion, asi como las zonas de servicios complementarios,

CORTE C-C

Se muestran las aulas teoricas, una mediateca y la zona de registros y matriculas. Asi como tambien el gimnasio, la zona de baile y el sus vestidores

CORTES

CORTE B-B

Se muestran los accesos al teatro y el puente aereo que articula las aulas teoricas y los laboratorios de computacion con los servicios complementarios

ELEVACIONES

ELEVACION NORTE, Orientacion de las aulas con vista hacia el mar.

ELEVACION ESTE, Orientacion del puente aereo que articulas las aulas con los servicios complementarios

04
EXPLORATIVE
DIGITAL ART

Modelado: Rhinoceros + Grasshopper

Render: Keyshot

Modelado: Rhinoceros + Grasshopper

Render: Keyshot

Modelado: Rhinoceros + Grasshopper

Render: Keyshot

Modelado: Rhinoceros

Render: Keyshot

Modelado: Rhinoceros

Render: Lumion

Autores: Jhonny Flores, Alexis Valladares

Modelado: Rhinoceros + Revit

Render: Keyshot

Modelado:Midjourney

Post producción: Photoshop

Modelado: Rhinoceros + Grasshopper

Render: Keyshot
GRACIAS THANK YOU FAU- URP LIMA - PERU

Turn static files into dynamic content formats.

Create a flipbook
Issuu converts static files into: digital portfolios, online yearbooks, online catalogs, digital photo albums and more. Sign up and create your flipbook.