arturas narvydas portfolio

Page 1

PORTFOLIO ARTURAS NARVYDAS ART.NARVYDAS@GMAIL.COM
MULTIFUNCTIONAL (COMMERCIAL & RESIDENCIAL) CENTRE - MERKURIJUS ADDRESS: LAISVES AL. 60, KAUNAS , LITHUANIA DESCRIPTION: 7 STORY BUILDING WITH OFFICE, COMMERCIAL AND RESIDENTIAL FACILITIES (48 APARTMENT KEYS), CONFERENCE CENTRE, HOTEL (120 KEYS) WITH CATERING SPACE, RESTAU RANT AND TWO STOREY UNDERGROUND PARKING GARAGE. AREA: SITE AREA 7135 m² (1,76 ACRES), TOTAL BUILDING NET AREA 29 335,33 m²(315.759 SQ. FEET) STATUS: NEW CONSTRUCTION PERMIT ISSUED IN APRIL 21, 2022 COPYRIGHT: ALL COPYRIGHT BELOG TO UAB KANČO STUDIJA AUTHORSHIP: SOLELY WORKED ON REVIT MODEL, DID SPACIAL ARANGEMENT OF INTERIOR AND EXTERIOR SPACES AS WELL DID 3D CLASH DETECTION AND COORDINATION WITH STRUC TURE&MEP

Eastern facade

Western facade

Building section

Southern elevation

MIXED USE (RESIDENCIAL & COMMERCIAL) PROJECT - AUKSTAICIU 14

ADDRESS: AUKŠTAIČIU STREET 14, VILNIUS, LITHUANIA.

DESCRIPTION: 4 STORY BUILDING WITH COMMERCIAL AND RESIDENTIAL FACILITIES (19 APARTMENT KEYS), PARKING AT ADJACENT UNDERGROUND PARKING GARAGE. AREA: SITE AREA 709 m² (0.175 ACRES), TOTAL BUILDING NET AREA 1180 m² (12.700 SQ. FEET).

STATUS: RECONSTRUCTION PERMIT OF LISTED BUIDING IS EXPECTED IN LATE 2022. COPYRIGHT: ALL COPYRIGHT BELOG TO UAB KANČO STUDIJA.

AUTHORSHIP: WORKED ON REVIT MODEL AND DESIGN OF LISTED BUILDING ADJACENT TO OLD TOWN PART OF VILNIUS (UNESCO HERITAGE SITE). WAS RESPONSIBLE FOR FINDING THE BEST OPTION FOR BUILDING RENOVATION AND PLANING NEW SOCIAL ARRANGEMENT, AS WELL DID COORDINATION BETWEEN STRUCTURAL & MEP.

Northern elevation

Section C-C

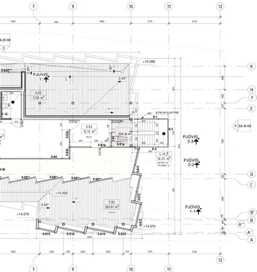
First floor plan

OFFICE

PROJECT

- SAVANORIU 239

ADDRESS: SAVANORIU 239, KAUNAS , LITHUANIA

DESCRIPTION: 5 STORY OFFICE BUILDING WITH TWO STOREY UNDERGROUND

PARKING GARAGE.

AREA: SITE AREA 1066 m² (0,26 ACRES), TOTAL BUILDING NET AREA 3000 m² (32.291 SQ. FEET), OFFICE AREA 1248 m² (13.433 SQ. FEET), UNDERGROUND PARKING GARAGE AREA 1176 m² (12.658 SQ. FEET).

STATUS: NEW CONSTRUCTION PERMIT ISSUED IN MARCH 1, 2022 , CURRENTLY UNDER CONSTRUCTION.

COPYRIGHT: ALL COPYRIGHT BELONG TO UAB KANČO STUDIJA

AUTHORSHIP: SOLELY WORKED ON REVIT MODEL, WORKED ON EXTERIOR DE SIGN OF THE BUILDING AS WELL AS SPACIAL ARRANGEMENT, DID 3D CLASH DETECTION AND COORDINATION WITH STRUCTURAL&MEP

Western facade
Southern facade Eastern facade Northern facade

Building scetion 3-3

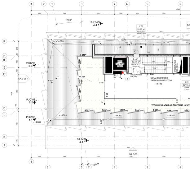
Fifth floor plan - technical level

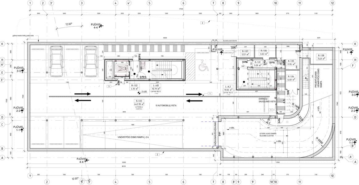
First floor plan - level 1

Building scetion 1-1

Fourth floor plan - level 4

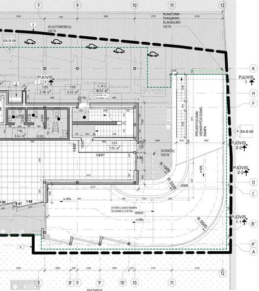
Undegroud parking garage - level minus 1

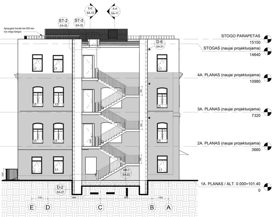
SINGLE FAMILY HOUSE BY THE BALTIC SEA ADDRESS: KUVERTO 13, NERINGA , LITHUANIA DESCRIPTION: COMPLEX OF TWO 2-STORY SINGLE FAMILY HOMES WITH ADJACENT ON SITE PARKING. AREA: SITE AREA 2770 m² (0,68 ACRES), TOTAL BUILDING NET AREA 537 m² (5780 SQ. FEET), 1ST BUILDING 301 m² (3240 SQ. FEET) 2ND BUILDING 235 m² (2530 SQ. FEET). STATUS: REALIZED IN 2022 COPYRIGHT: ALL COPYRIGHT BELONG TO UAB KANČO STUDIJA AUTHORSHIP: WORKED ON REVIT MODEL OF 2ND BUILDING, AS WELL ON EXTERIOR DESIGN INTERIOR SPACIAL ARRANGEMENT, DID COORDINATION WITH STRUCTURAL&MEP
Pictures from construction site

ADDRESS: 3838 LAKE TAHOE BLVD, SOUTH LAKE TAHOE, CA DESCRIPTION: 4-STORY, 120 GUESTROOMS HOTEL WITH AN INDOOR POOL, RETAIL SPACE, RESTAURANT AND PARKING

AREA: BUILDING AREA 79,739 SF, SITE AREA 2.51 ACRES (109.335 SF)

STATUS: BUILDING PERMIT ISSUED IN 2020, HOTEL WAS OPENED IN JUNE 2022.

COPYRIGHT: ALL COPYRIGHT BELOG TO DESIGNCELL

AUTHORSHIP: DESIGNCELLCELL, WORKING WITH THE TEAM, MY INPUT MORE THAN 40%

HAMPTON INN & SUITS BY HILTON
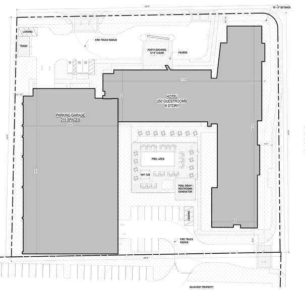
OVERALL SITE PLAN
PRESENT VIEW ON SITE
SMOKE RANCH SENIOR APARTMENTS ADDRESS: 2360 N. DECATUR BLVD, LAS VEGAS, NV DESCRIPTION: 4-STORY (162 KEYS) APARTMENT BUILDING AND ADJACENT TOWNHOUSE APARTMENTS (30 KEYS) WITH AN INDOOR POOL, CATERING SPACE, RESTAURANT AND PARKING AREA: APARTMENTS 167.800 SF, TOWNHOUSES 43.600 SF, SITE AREA 4.6 ACRES (205.090 SF) STATUS: CONSTRUCTION DOCUMENTS WERE SUBMITTED FOR BUILDING DEPARTMENT REVIEW, HOWEVER CONSTRUCTION WAS POSTPONED. COPYRIGHT: ALL COPYRIGHT BELOG TO DESIGNCELL AUTHORSHIP: WORKING WITH THE TEAM, MY INPUT MORE THAN 40%
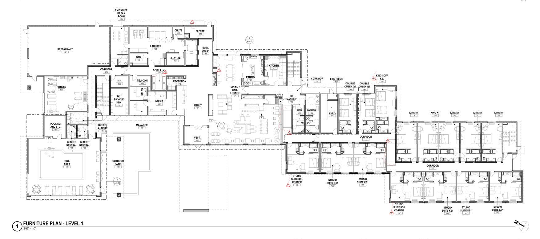
SENIOR APARTMENTS FIRST FLOOR PLAN TYPICAL PUBLIC SPACE AND APARTMENT SUIT INTERIOR SCHEME
HOLIDAY INN EXPRESS & SUITS BY HILTON ADDRESS: 167 E TROPICANA AVE., LAS VEGAS, NV 89109 DESCRIPTION: 5-STORY / 121 GUESTROOMS HOTEL WITH AN OUTDOOR POOL, RETAIL SPACE, RESTAURANT AND PARKING AREA: BUILDING AREA 69.793 SF, SITE AREA 4.7ACRES (205.090 SF) STATUS: CURRENTLY UNDER CONSTRUCTION AND OPENED IN 2020 COPYRIGHT: ALL COPYRIGHT BELOG TO DESIGNCELL AUTHORSHIP: WORKING WITH THE TEAM, MY INPUT MORE THAN 40%
OVERALL AND ENLARGED SITE PLANS
BUILDING ELEVATION
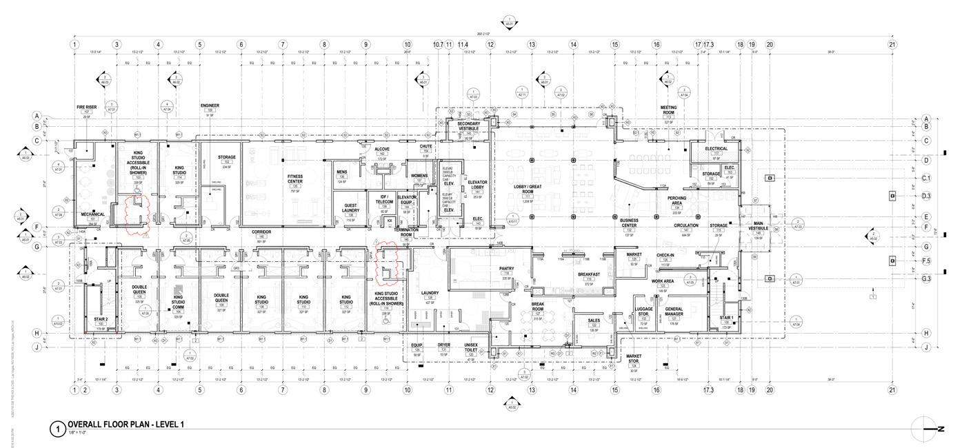
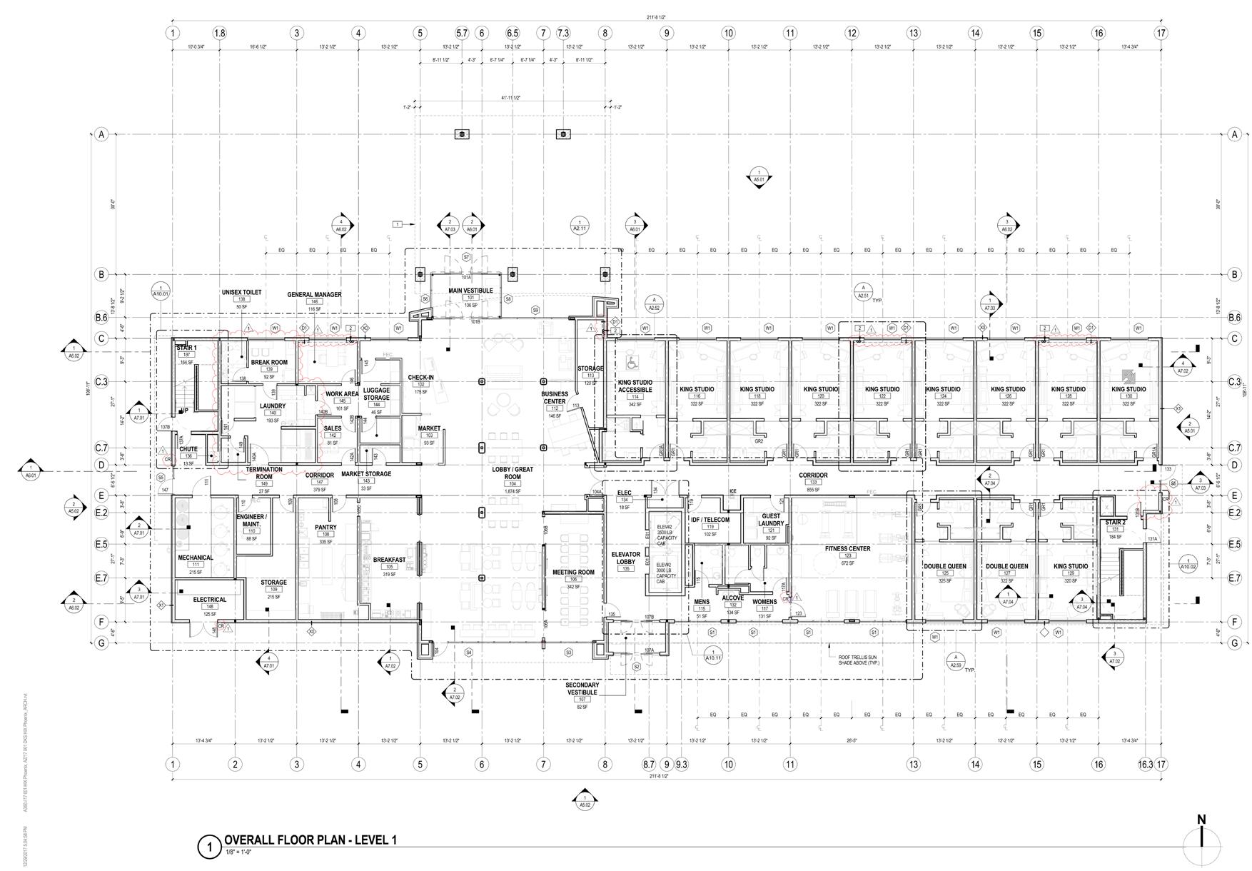
FIRST FLOOR PLAN
CONSTRUCTION SITE VIEW, IN LAS VEGAS , NV, YEAR 2019 CONSTRUCTION SITE VIEW, IN LAS VEGAS , NV, YEAR 2019
HOLIDAY INN EXPRESS & SUITS BY HILTON ADDRESS: 24655 NORTH 23RD AVENUE PHOENIX, AZ 85085 DESCRIPTION: 4-STORY / 96 GUESTROOMS HOTEL WITH AN OUTDOOR POOL, RETAIL SPACE, RESTAURANT AND PARKING AREA: BUILDING AREA 51.900, SITE AREA 3.01 ACRES (131.257 SF) STATUS: REALISED AND OPENED IN 2019 COPYRIGHT: ALL COPYRIGHT BELOG TO DESIGNCELL AUTHORSHIP: WORKING WITH THE TEAM, MY INPUT MORE THAN 40%

SITE PLAN

PROJECT BEING BUILT AT CONSTRUCTION SITE, IN PHOENIX , AZ, YEAR 2019
GARDEN INN BY HILTON ADDRESS: 470-490 LAWRENCE WAY, WALNUT CREEK, CA 94596 DESCRIPTION: 4-STORY, 124 GUESTROOMS-HOTEL WITH AN OUTDOOR POOL, RETAIL SPACE, RESTAURANT AND PARKING AREA: BUILDING AREA 75,238 SF STATUS: AWAITING BUILDING PERMIT, CONSTRUCTION TO BE PROJECTED IN 2020. COPYRIGHT: ALL COPYRIGHT BELOG TO DESIGNCELL AUTHORSHIP: WORKING WITH THE TEAM, MY INPUT MORE THAN 30%
PORTE COCHERE NIGHT VIEW PORTE COCHERE DAY VIEW
HILTON DUAL BRAND HOTEL ADDRESS: 755 SIERRA VISTA DR., LAS VEGAS, NV 89169 DESCRIPTION: 6-STORY, 250 GUESTROOMS HOTEL WITH AN OUTDOOR POOL, RETAIL SPACE, RESTAURANT AND PARKING GARAGE AREA: BUILDING AREA 141.400 SF, SITE AREA 2.478 ACRES / 107 963 SF STATUS: THIS HOTEL WAS OPENED IN 2020. COPYRIGHT: ALL COPYRIGHT BELOGS TO DESIGNCELL AUTHORSHIP: DEASIGN CELL, WORKING WITH THE TEAM, MY INPUT MORE THAN 30%
DINING AREA INTERIOR VIEW GUESTROOM INTERIOR VIEW

MASTERS FINAL WORK - PRINCIPLES OF SUSTAINABLE HOUSING DESIGN

Idea came out to recreate abandoned site area at the outskirts of Kaunas city. Currently devastated site put a threat for local inhab itants. Cite also borders a former garrison building complex built in the beginning of 20th century and listed as national heritage. These neighboring objects create special requirements for future development e.g. restrictions on building height, density and urban structure.

Research showed that social housing is one of the six sustainable hous ing streams. A complex of 14 social houses w/ commercial spaces and underground parking lot was proposed. Created sustainable living and working environment w/ parks and children playgrounds. Sustainable features were proposed:

1. Height limitation– building height 4 floors w/ roof top terrace.

2. Lighting – windows were designed facing the sun, to reduce heat ing no windows at the north.

3. Aesthetics – creating eye pleasing architecture.

4. Ecological building materials – cross laminated timber panels were proposed for outer cover.

5. Water reuse – rain water can be reused, it is collected and stored in the basement tanks.

6. Low heating cost – heating is provided w/ air source heating pump, cooling w/ natural ventilation.

7. Renewable energy – 25% estimated to be provided w/ solar cells, the rest could be generated w/ wind power and geothermal energy.

8. Greenery planting – vegetation on the roof and terrace provides

Main information:

- masters final work (finished with distinction) in 2012.

- proposal of sustainable social housing project at Kaunas city area.

- was presented at annual exposition at best masters final work competition, 2012

- site area 51.300 sq. meters

- build up area 5891 sq. meters

- density 11%

CONCEPT SCHEME OF BUILDING SITE

BUILDING SITE PLAN

SCHEME CONSTRUCTION MATERIALS SCHEME
SUSTAINABILITY FEATURES

BACHELOR FINAL WORK

Project idea was to invite people to come at the wa terfront and create attractive recreational environment. Main objects should be original and sustainable at the same time. Open green space was combined with closed boat harbor. Such scheme was dictated by project loca tion – terrain, river flow, prevailing winds as well function al project requirements.The projection of buildings allows the flow of natural light. In order to better incorporate the buildings into surrounding environment wood and glass were chosen as main materials.

Main project criteria were:

1. ecology - usage of ecological materials, alternatives sources of energy (geothermal and wind energy);

2. associative architecture – blended with surround ings, having idea of boats around the harbor;

3. functional – buildings must be in accordance with local regulations and usage requirements;

4. esthetical – surrounding environment must be appealing and sensual;

Main information: bachelor final work in 2010.

- proposal of small river port at Kaunas city area. site area 88.797 sq. meters build up area 4866 sq. meters density 18%

CONCEPT SCHEME:

1. new park area

2. restaurant and casino

3. main building - hotel and conference centre

4. boat facilities

5. yachting school

6. gas station

Turn static files into dynamic content formats.

Create a flipbook
Issuu converts static files into: digital portfolios, online yearbooks, online catalogs, digital photo albums and more. Sign up and create your flipbook.
arturas narvydas portfolio by arturas.narvydas - Issuu