Portafolio de Arquitectura Artist Pablo ZH

Page 1

Enero 2023

Autor: Pablo Zambrano Hidalgo

Está prohibido copiar o difundir los textos e imágenes del presente portafolio, sin previo aviso del autor y bajo las siguientes condiciones:

Reconocimiento: Los créditos de esta obtra deben reconocerse especificando el nombre del autor o el licenciador.

No comercial: No puede usar esta obra con fines comerciales.

Sin obras derivadas: No se puede alterar, transformar o generar una obra derivada a partir de esta obra.

PORTAFOLIO

Estudiante de Arquitectura, Artista Visual y 3D ARQUITECTURA Y ARTES VISUALES 2018 - PRESENTE

3 3
Pablo Francisco Zambrano Hidalgo Todos los derechos reservados

La condición de la arquitectura de estar situada en un lugar preciso y, por lo tanto, de enfrentar y configurar una situación, constituye una de sus notas fundamentales. La arquitectura se encuentra siempre en diálogo con otras formas o, al menos, con los trazos formales de una realidad que existe previamente a ella. De allí, la noción de preexistencia, o como se la suele denominar, preexistencia ambiental. Pero el lugar no es simplemente aquella realidad que está allí antes que la arquitectura; la obra de arquitectura contribuye decisivamente a configurar el lugar en que se sitúa. Este es parte de su sentido y es así como los lugares se establecen”.

La arquitectura despierta sentimientos en el hombre. Por lo tanto, la tarea del arquitecto, es hacer esos sentimientos más precisos.

(Alejandro. ARAVENA, 2007) Puruchuco Hernández (2015)

PRESENTACIÓN

Soy Pablo Francisco Zambrano Hidalgo, Pablo ZH o mejor conocido como ZH en instagram, soy estudiante de Arquitectura, Renderista, Artista visual, 3D dedicado al modelado 3D, las Artes Visuales y la Visualización Arquitectónica, empecé y me inspiré en el mundo 3D ya hace más 7 años y desde aquel entonces no he parado de investigar las posibilidades y sacarle máximo provecho a muchos software y uno de mis favoritos es Cinema 4D porque en ello expreso jugar con los materiales, pelos y texturas, pulir materiales y sobre todo me gusta explotar mi imaginación y sacarle el máximo partido con mis proyectos personales que me permite investigar nuevas ideas y técnicas, llenos de texturas y letterings imposibles, otro de ellos es Redshift y Octane Renderer porque me ayuda a que los colores, texturas se vean lo más real posible y apreciar bellas imágenes al espectador hacer que la gente tenga sentimientos en ello, aportar una paleta de color única a mis creaciones motivando a gente a inspirarse y seguir un nuevo mundo de posibilidades para Artistas 3D.

En el ámbito académico soy estudiante de Arquitectura por la Universidad de Guayaquil, Facultad de Arquitectura y Urbanismo, Arq. Guillermo Cubillo Renella. Además soy fundador de VisualRama, Estudio de Arquitectura, Visualización Arquitectónica y Artes Visuales y Co-Fundador de IDEAZ Estudio de Arquitectura, Ilustración, Visualización y Artes Visuales.

7 6 6 7

Curriculum Vitae

Pablo Francisco Zambrano Hidalgo

Enero 2023

Guayaquil, Ecuador

Educación

Secundaria: Unidad Educativa La Inmaculada Bahía de Caráquez, Manabí, Ecuador.

Título de Bachiller mención en Contabilidad por la Unidad Educativa La Inmaculada, Ecuador.

Universidad de Guayaquil, Facultad de Arquitectura y Urbanismo, Arq. Guillermo Cubillo Renella, actualmente cursando la carrera de Arquitectura, Guayaquil, Ecuador.

Experiencia

PZH Arquitectura: Estudio de Arquitectura,Guayaquil, Ecuador.

VisualRama: CEO Ejecutivo y Director Creativo, Estudio de Arquitectura, Visualización y Artes Visuales, Guayaquil, Ecuador.

IDEAZ Studio: Co-Fundador

Planos 2D, Experto en Visualización Arquitectónica y Artes Visuales, Guayaquil, Ecuador.

Cursos online y capacitaciones

Curso de Revit Arquitectónico, Estructuras

2021 - Guayaquil, Ecuador

Curso de Skecthup Básico y Avanzado por ARCUX

2021 - Guayaquil, Ecuador

Curso de 3DS MAX Studio con Vray por IONCE Arquitectos

2022 - Guanajuato, México.

Curso de Lumion 11 por el Arq. Salva Moret.

2022 - Valencia, España.

Curso de Photoshop por el Artista Carles Marsal

2021 - Barcelona, España.

2023 2021

Curso de Cinema 4D por los Artistas Fabian Oberhammer y Simon Kaempfer: Artista Italiano y Artista Estadounidense Italia y EEUU (Estados Unidos).

Curso de AutoCAD por ARCUX Guayaquil, Ecuador.

Software

AutoCAD: 4

Revit: 5

Cinema 4D: 6

Blender 5

Illustrator: 5

Photoshop: 5

Indesign: 4

Vray: 6

3Ds Max Studio: 5

Sketchup: 5

Corona Renderer: 6

Lumion 11: 6

Redshift Renderer: 6

Octane Renderer: 6

Idiomas

Inglés Español latino

Expertise

Investigación

Visualización

Arquitectónica

Portugués

Arquitectura

Urbanismo

Procesos Proyectuales

Artes Visuales

Ilustración

Letterings

Modelado 3D

Planos Arquitectónicos

9 8 9 8
2018 2018-Presente 2012-2018 2020 2023 2023 2021 2021 2021 2022 2022
1 10 Casa Viga La Caleta Villa Chapi Raíces Río Chumbao Arquitectura Diseño de Interior Urbanismo Paisaje Territorio 01 02 03 04 05 pág. 03 pág. 09 pág. 13 pág. 19 pág. 25

Ficha Técnica:

Proyecto: Diseño arquitectónico

Cliente: Luz Silva

Ubicación: Pucallpa, Perú

Área: 250 m2

Función: Proyectista

Casa Viga

El encargo del proyecto fue una vivienda unifamiliar en la selva rural de Pucallpa, Perú. Un paisaje natural selvático ubicado en un terreno de 10x25 metros. El proyecto plantea, mediante el uso de 2 vigas cruzadas y un plan de estructuras metálicas, el armazón para lo que es la construcción de 2 niveles, donde el cliente optó por solicitar una piscina en el 2do nivel con vista hacia el paisaje selvático y expuesta hacia la fachada. El reto se basa en sostener la piscina a través de 2 grandes vigas que atraviesan la estructura metálica y por debajo de ella se sitúa el área social (sala, comedor). En el segundo nivel se plantea una especie de doble altura, además de aprovechar mejor los vientos para una óptima ventilación, debido a las temperaturas fuertes del lugar.

El proyecto busca reflexionar mediante el uso de la luz, la sombra y el clima, diferentes experiencias microclimáticas que son capturadas a través de la misma propuesta arquitectónica. Los materiales utilizados para el proyecto son metal como estructura principal, concreto armado para las vigas y bases de una parte del 1er nivel, madera y vidrio.

3 01

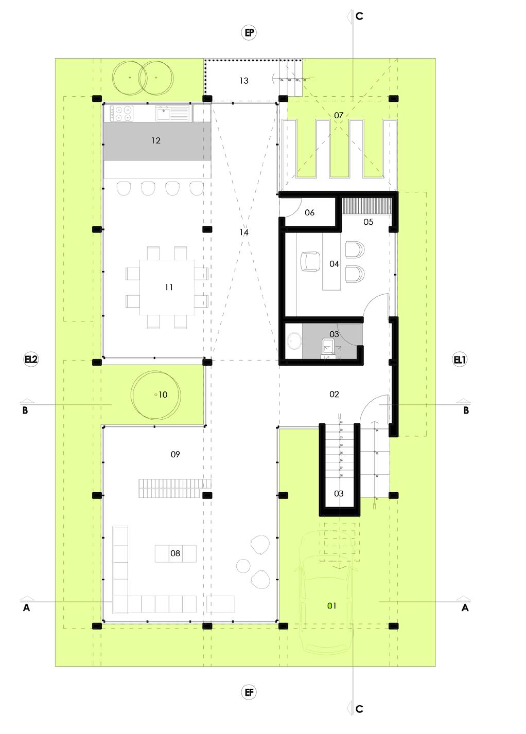
PRIMERA PLANTA

En el 1er nivel se plantea el área social y de servicio. Se accede por la fachada en el lado sur, ingresando a un recibo, el cual conlleva a la sala, comedor y cocina planteada en una hilera. Adyacente a ello, se plantea un paquete

SEGUNDA PLANTA

En el 2do nivel se plantea el área íntima a través de una doble hilera de dormitorios acompañadas con paquetes de baños. En el centro se sitúa la piscina, alineada a una doble altura vinculada con la cocina o zona social.

5 4
01 ESTACIONAMIENTO 02 RECIBO 03 SS.HH. VISITA 04 ESTUDIO 05 ARCHIVO OFICINA 06 ALACENA 07 HUERTO ORGÁNICO 08 SALA 09 BAR 10 JARDÍN 11 COMEDOR 12 KITCHENNET 13 BALCÓN 14 DOBLE ALTURA
01 HALL 02 ESCALERA 03 DORMITORIO 04 SS.HH. 05 LAVANDERIA TENDAL 06 DEPÓSITO 07 PASILLO 08 ESTAR 09 PISCINA 10 SOLARIUM 11 DORMITORIO PRINCIPAL 12 WALKING CLOSET 13 SS.HH. 14 DORMITORIO 2 15 SS.HH. COMÚN
DORMITORIO 3
16
de
servicio.
CORTE A - A CORTEC - C

El proyecto se plantea como un elemento de apertura, vinculado hacia el paisaje selvático, a través de una serie de mamparas en el 1er nivel, como una especie de planta libre. El 2do nivel, también cumple con la misma iniciativa, generando una comunicación visual hacia el exterior a través de la piscina suspendida y una celosía (en su fachada) que permite desde el interior, generar un vínculo con el exterior. Las perforaciones laterales permiten también la misma idea.

7 6 6
7

Ficha Técnica:

Proyecto: Remodelación

Cliente: José Aguirre

Ubicación: Camanà, Arequipa

Área: 200 m2

Función: Proyectista

La Caleta

El encargo consistió en una remodelación interior en la cadena de restaurantes-cevichería: “La Caleta”. Ubicado en el borde costero de Arequipa, playa de Camaná, Perú. El proyecto requerido partió de generar una nueva distribución a través de la selección de materiales como el carrizo, guayaquil, la madera, el petate, etc. El proyecto interior permite distribuir de manera equilibrada la posición de las mesas para el uso eficiente de los comensales, generando una organización espacial estructurada. El planteamiento de carrizo en diferentes sectores del espacio permite regular las temperaturas y los vientos en el interior del restaurante.

Por otro lado la barra, mediante un diseño eficiente y haciendo uso de guayaquil , carrizo y madera permite resolver de manera sintética la actividad del barman, como la actividad de cobro a los comensales y al mismo tiempo la exhibición de tragos en diferentes muebles planteados.

9 02

El proyecto de remodelación planteado en un área de 200 metros cuadrados propone un ingreso sugerido a través de un muro de guayaquil y carrizo (recortados en forma circular), acompañado de mesas para el uso de comensales en la parte exterior de la fachada.

El interior de la remodelación sugiere una intervención mínima apoyada de materiales rústicos, provocando una invitación visual hacia el paisaje marino. El uso de mobiliario en madera (mesas y sillas) permite adecuarse al diseño interior propuesto, generando así una

Los materiales usados se integran de manera efectiva. La base ya existente es de concreto. Las estructuras que soportan la cubierta son de guayaquil ó bambú (columnas y vigas). Las capas de cerramientos son de carrizo y encima de ella la estera, como una especie de piel que

Los interiores del proyecto se integran en color, textura y materia, generando una estructura integrada que permite visualizar una atmósfera acogedora para el lugar. La experiencia

propuesta permite generar una temperatura aclimatada al lugar, así como una ventilación adecuada y confortable.

11 10
PLANTA 01 COMEDOR TERRAZA 02 COMEDOR 03 BARRA 04 CAJA 05 SS.HH. DAMAS 06 SS.HH.VARONES 07 ALACENA 08 COCINA 09 SS.HH. SERVICIO 08 09 06 05 07 02 03 04 01 Bambú Carrizo Estera Madera
Concreto

Ficha Técnica:

Proyecto: Diseño arquitectónico urbano

Cliente: Arzobispado de Arequipa

Ubicación Chapi, Arequipa

Área: 2000 m2

Función: Proyectista

Villa Chapi

La idea del proyecto parte en generar el concepto de Villa-Ciudad con algunos componentes que generen mayor dinamismo. El proyecto está compuesto por 5 “Villas”, y un espacio para estacionamiento (90 autos). La idea de Villa es contener un espacio dinámico con múltiples actividades programáticas, que al mismo tiempo respondan a las necesidades del público, generando una serie de elementos resilientes al lugar. La vía se ha reducido a 9.50 metros de ancho, suficiente para 3 carriles, con ésta estrategia se ganan espacios comerciales y se amplían los espacios públicos al exterior.

El diseño del proyecto se realizó teniendo en cuenta las actuales manzanas, por ello se siguen manteniendo las 5 manzanas y sus respectivos lotes. Se han modificado algunas manzanas (morfología), adaptántolas hacia al paisaje y espacio de uso. La idea es que el propietario del terreno pueda tener diferentes posibilidades de mantener su espacio de uso, en algunos casos el espacio construido es más grande, sin embargo la idea es generar dinámica social y mantener la villa de forma colectiva, generando una economía comunitaria y de atracción.

13 03

La figura proyectual se emplaza en una especie de fondo de valle. El paisaje, ya intervenido por el hombre, denota un descuido en los alrededores, ahí donde nace la oportunidad para generar el proyecto.Son dos anclas las que definen la figura inicial, éstas anclas son 2 restaurantes con una escala favorable y estratégica para contener espacialmente a las personas. Por otro lado en el interior se proponen diferentes prototipos geométricos que van construyendo la idea de villaciudad, además de generar diferentes ingresos al norte y sur. El proyecto permite generar espacialidad mediante un juego de llenos y vacíos al interior, ésta figura se va repitiendo a lo largo de la curva en diferentes tamaños y formas geométricas.

Posicionamiento de la figura a los largo de la curva en diferentes tamaños, siendo resilientes al espacio.

15 14
OMMR OMMS OMMV OMNP OMNS
ESTADO ACTUAL VILLA ALDEA CASONAS ANCLA HUERTOS MURALLA COMERCIO CANCHAS PLAZAS

El proyecto se dispone en 1 sólo nivel para no alterar visualmente el paisaje. La propuesta de diferentes prototipos como restaurantes, boutique, tiendas y stand`s, evidencian la diversidad programática y la flexibilidad con la que puede interactuar en el interior de la figura propuesta.Los vacíos denotan fluidez de uso y libre trayectoria por parte del usuario para el aprovechamiento del espacio. La contención espacial por parte de los bordes de la figura genera un límite programático vinculado al interior y exterior de la villa-ciudad

17 16
RESTAURANTE:66m² BOUTIQUE:36m² TIENDAS:36m² STAND:18m² STAND:36m² BOUTIQUE:27 m² RESTAURANTE:66m²

Ficha Técnica:

Proyecto: Diseño del paisaje

Cliente: Municipalidad de Rímac

Ubicación: Lomas de Amancaes

Área: 10 000 m2

Función: Proyectista

Raíces

El proyecto raíces se ubica en el Rímac (Lima), donde se hallan las lomas de Amancaes. En un escenario paisajístico se extienden 237 hectáreas de área natural, un ecosistema único y de amplia biodiversidad y de especies emblemáticas de flora y fauna, como lo es la flor de amancaes. Raíces es un proyecto, cuyo objetivo es la conservación de las lomas, con la idea de evitar que se continúe invadiendo y depredando el área natural. El proyecto desprende una serie de estrategias tanto ecológicas como sociales que generan el interés de las personas que viven en los alrededores de éste paisaje.

Las lomas de amancaes concentra más de 350 viviendas en riesgo, pues la ubicación las hace vulnerables hacia cualquier evento fenomenológico, además de la depredación de las propias lomas.Por otro lado, las lomas en Lima, concentran el 42% como reserva ecológica, que equivalen a 22 mil hectáreas, ello, nos conlleva a repensar de manera seria un problema territorial y paisajístico de una gran ciudad como Lima.

19
04

Se han identificado 3 problemas puntuales: El primero responde a la ocupación informal del territorio, es decir invasiones, el 2do problema responde a la pérdida de identidad y sentido de pertenencia, pues la mayor parte de la población limeña viene de provincia y el 3er problema es la pérdida de ecosistemas naturales. Por otro lado se toman en cuenta 3 oportunidades para revertir los problemas mencionados: espacios residuales y andenes disponibles, tejido social, conocimiento y saberes latentes y el ecosistema dinámico como relación: hombre-naturaleza.

Se proponen 3 estrategias de intervención: La re-ocupación del territorio a partir de sistemas productivos sostenibles, la construcción de identidad a partir de saberes e inteligencias colectivas y la recuperación y restauración

de la infraestructura ecológica. Las 3 estrategias generan una visión específica de poner en manifiesto la importancia de un ecosistema como las Lomas de Amancaes, además de los efecto positivos que provocaría su conservación.

La primera intervención responde a la forestación, para así evitar que se siga depredando o invadiendo en las zonas más altas de las lomas. Los atrapanieblas serán dispositivos esenciales para ésta estrategia,

los cuáles recolectarán 400 litros de agua al día para abastecer el riego de los árboles y especies nativas y también a las familias que viven en extrema pobreza.

21
23 22

Ficha Técnica:

Proyecto: Estrategias territoriales

Cliente: Municipalidad de Adahuaylas

Ubicación: Andahuaylas, Apurímac

Área: 10 000 m2

Función: Diseñador

Río Chumbao

La idea del proyecto parte en generar el concepto de Villa-Ciudad con algunos componentes que generen mayor dinamismo. El proyecto está compuesto por 5 “Villas”, y un espacio para estacionamiento (90 autos). La idea de Villa es contener un espacio dinámico con múltiples actividades programáticas, que al mismo tiempo respondan a las necesidades del público, generando una serie de elementos resilientes al lugar. La vía se ha reducido a 9.50 metros de ancho, suficiente para 3 carriles, con ésta estrategia se ganan espacios comerciales y se amplían los espacios públicos al exterior.

El diseño del proyecto se realizó teniendo en cuenta las actuales manzanas, por ello se siguen manteniendo las 5 manzanas y sus respectivos lotes. Se han modificado algunas manzanas (morfología), adaptántolas hacia al paisaje y espacio de uso. La idea es que el propietario del terreno pueda tener diferentes posibilidades de mantener su espacio de uso, en algunos casos el espacio construido es más grande, sin embargo la idea es generar dinámica social y mantener la villa de forma colectiva, generando una economía comunitaria y de atracción.

25 05 25 25

La feria dominical se disgrega en distintos puntos estratégicos de la ciudad, quedando un porcentaje ligero de ventas artesanales de la zona y comercio en la Feria para no olvidar el uso que le daban los pobladores a través de los años ,se proponen algunas coberturas donde se expone la memoria de aquella feria que algún día existió, realizando venta de productos del lugar para el desarrollo comercial, sobre todo la construcción de coberturas que permiten captar la energía solar para iluminación en actividades nocturnas.

27 26 26
27
29 28 28 29

Turn static files into dynamic content formats.

Create a flipbook
Issuu converts static files into: digital portfolios, online yearbooks, online catalogs, digital photo albums and more. Sign up and create your flipbook.