APTO 720-BOSQUES DEL RIO.
Bosques del Río es un proyecto que hace parte de ciudad del Río( Plan parcial Simesa). Ubicado en un sector de gran renovación urbanística,en el suroriente de Medellin, zona que combina el comercio,vivienda y atracciones turisticas.
Vivienda.
Diseñado por: Gloria del Castillo. Albert Rubio
Urbanización Bosques del Río
Ubicado en: Cuidad del río
Dirección: Cl. 18 #43G-90, El Poblado, Medellín, El Poblado, Medellín, Antioquia
OBJECTIVES: Engaging architecture students in the professional context of architecture and/or related professions. The above is aimed at achieving an approach and understanding from the students regarding work dynamics, workflow processes, interactions with clients, suppliers and colleagues.
METHODOLOGY: The student is connected with a company of their choice, related to the profession, where the student must fulfill the assigned tasks by the tutor assigned by the company, keep a periodic record of the activities carried out and their learnings, demonstrating their work and acquired knowledge to the internal tutor assigned by the university.
SCOPE: To effectively interact with colleagues and professionals and apply the knowledge acquired during professional academic training in a clear, technical, and relevant manner for the design of an architectural project.
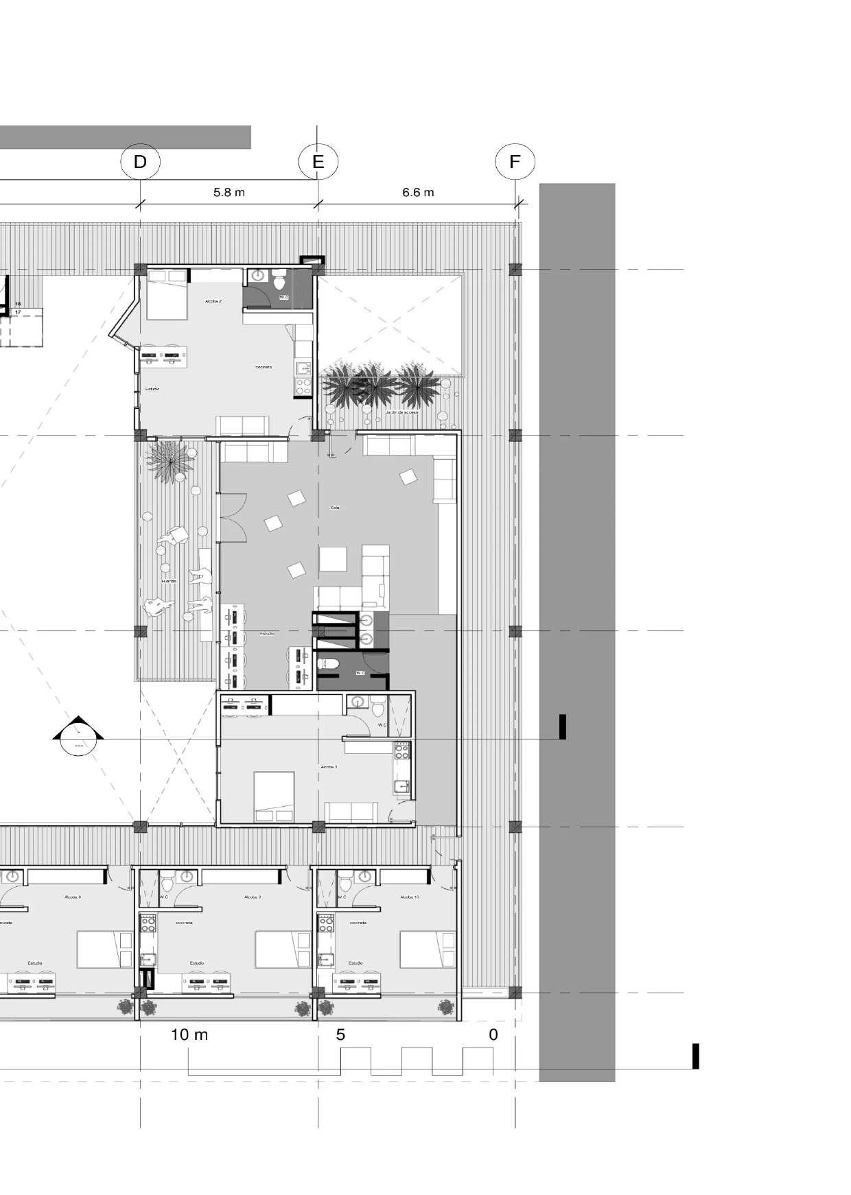
El proyecto cuenta con un area de 95.26m2. Como primera intervención del lugar, se propuso remover el espacio del baño social para tener mayor comodidad en la cocina. El apartamento se entrega con una base de pintura blanca.
El encargo para este proyecto era una remodelación completa del interior de este apartamento,comprendiendo estos espacios:
- 3 alcobas.
- 2 baños.
- Cocina.
- Sala.
- Comedor.
- Closets.
- Zona de estudio.
- Zona de lavado.
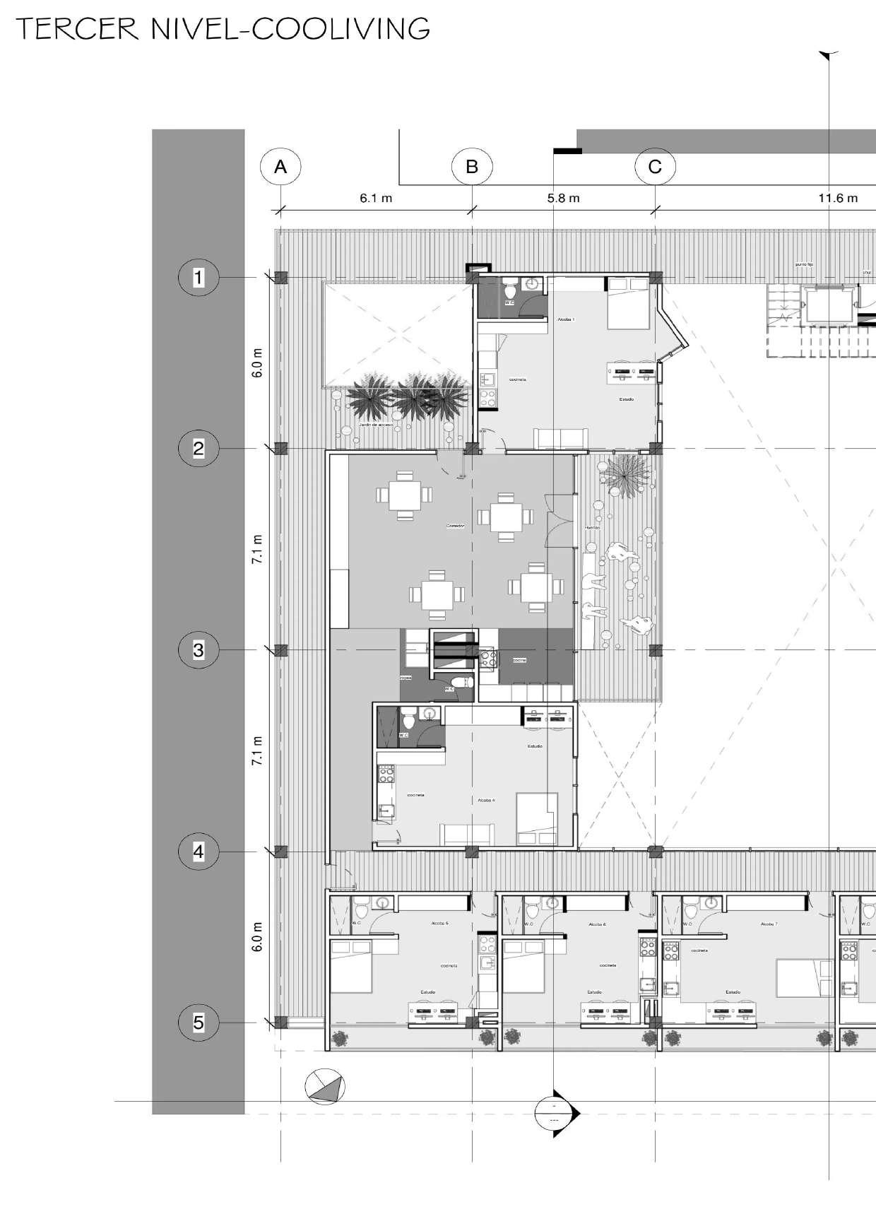
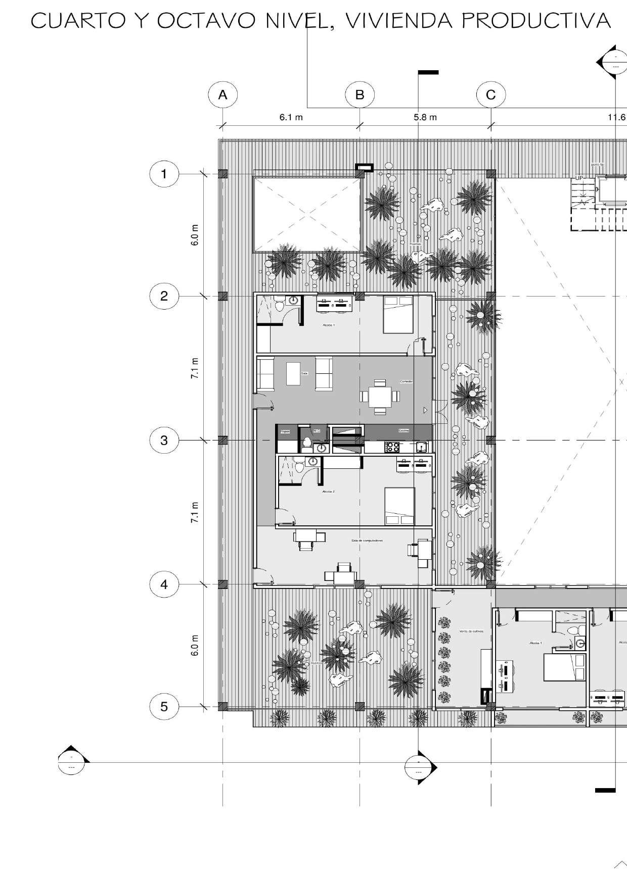
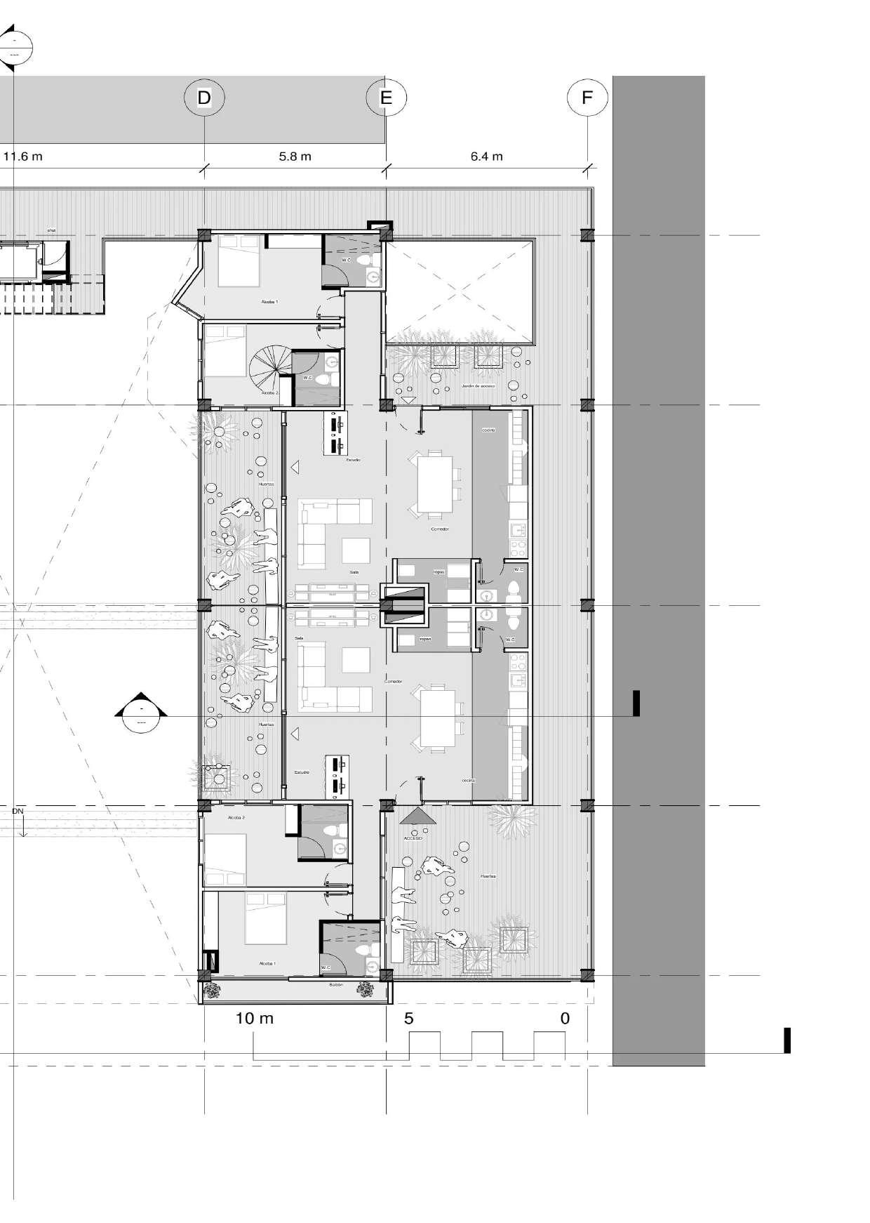
FIG 7: Sección general torreia
DocuSign Envelope
FIG 8: Planta arquitectonica, existencias.a
Arq. Gloria Del Castillo.
Arq. Juan David Ortiz.
FIG 5: Planta urbana, bosques del rio.
FIG 4: Localización, fuente Google
Antioquia. Medellín.
Fotografias de preexistencias:
Ciudad del Río.
Antes de sumergirnos en el diseño propiamente dicho, organizamos una reunión con el cliente para explorar y seleccionar cuidadosamente los materiales y colores que serían pieza clave en la creación del espacio. Durante este encuentro colaborativo, el cliente expresó su inclinación por tonalidades sumamente neutras. Esta elección no solo establece una base estética sobria y elegante, sino que también proporciona un lienzo versátil y atemporal sobre el cual podemos construir un ambiente acogedor y lleno de personalidad.
Los colores elegidos proporcionaron una base perfecta para resaltar la calidad de los materiales seleccionados, como maderas cálidas y textiles suaves. La luz natural se refleja de manera sublime en las paredes blancas y los tonos grises sutiles, haciendo que cada espacio parezca más amplio y luminoso.
FIG 18: Render interior-elaboración propia.
FIG 19: Render interior-elaboración propia.
FIG 20: Render interior-elaboración propia.
FIG 21: Render interior-elaboración propia.
FIG 23: Render interior-elaboración propia.
FIG 22: Render interior-elaboración propia.
FIG 24: Render interior-elaboración propia.
FIG 14: Despiece mobiliario-elaboración propia.
FIG 15: Despiece mobiliario-elaboración propia.
FIG 16: Despiece mobiliario-elaboración propia.
FIG 17: Despiece mobiliario-elaboración propia.
FIG 11: Render isometrico-elaboración propia.
FIG 12: Render interior-elaboración propia.
FIG 13: Despiece mobiliario-elaboración propia.
FIG 11: MoodBoard, elaboración propia.
APTO-BELLO
Vivienda
Diseñado por: Gloria Del Castillo Y Albert Rubio
Visualización: Albert Rubio
Ubicado en: Refugio Valle verde
Dirección: Av. 26 #52-81, Navarra, Bello, Antioquia
El encargo para este proyecto era una remodelación completa del interior de este apartamento, comprendiendo asi un diseño para la sala, cocina, alcobas y baños.
El estilo para este apartamento el cliente queria que fuese industrial, utilizando asi una combinación de metal y madera
REFERENTES ESCOGIDO
POR EL CLIENTE:
El diseño propone un estilo muy acorde a lo solicitado por el cliente, y uno de los proncipales retos de diseño fue la iluminación artificial, ya que la altura del apto es minima y proponer una iluminación empotrada en el drywall era reducir más esa altura.
Como solucíon se propuso iluminación en rieles que no descolgara mucho de cielo y que se conserve esa textura rustica para acompañar el estilo industrial.
DESPIECE
CONCLUSIÓN
La practica profesional resultó como una experiencia muy significativa para mi, los conocimientos teoricos y practicos me certifican a dia de hoy como alguien que ya esta a las puertas de ser arquitecto, en esta etapa aprendí a perder el miedo a equivocarme en el ejercicio del diseño, pues es mejor equivocarse y lograr comprender que el diseño no es algo estatico, si no un area de cambio.
incluso cuando ya está terminado el diseño, en la ejecución muchas cosas pueden cambiar para poder ser llevados a la realidad.
De la practica no solo aprendí de arquitectura, aprendí a relacionar con los clientes, a llevar el lenguaje complejo de la arquitectura a uno en el que todos entiendan.
Lo mas importante que me queda de la experiencia es la organización de tiempos, en las obras el tiempo es dinero, y es muy importante manejarlo y aprovecharlo al maximo, tambien es uno de los principales medios para convencer al cliente, pues, ellos siempre quieren todo rapido y establecer buenos tiempos les da la confianza con nosotros.
FIG
Despiece mobiliario- Elaboración propia.
FIG 34: Despiece mobiliario- Elaboración propia.
FIG 33: Despiece mobiliario- Elaboración propia.
FIG 32: Render interior-elaboración propia.
FIG 35: Despiece mobiliario- Elaboración propia.
TALLER9: Jardin
Botanico
OBJETIVO:
Realizar un ejercicio de razonamiento crítico independiente y autónomo para formular proyectos con alto nivel de experimentación, originalidad y ambición arquitectónica. Los proyectos deberán tener un marco conceptual claro formulando ideas potentes que posean y evidencien un alto grado de innovación.
METODOLOGÍA:
la metodología para abordar el ejercicio tipo concurso, al interior de cada grupo de trabajo se definirá la metodología para abordar el encargo. Para lograr el nivel esperado para el planteamiento y desarrollo de los proyectos los estudiantes deberán aplicar en el proyecto los conocimientos, aprendizajes y avances que se hagan en el Núcleo que complementa el Taller.
ALCANCE:
Capacidad para FORMULAR proyectos de arquitectura basados en posturas TEORICO-CRITICAS que materialicen soluciones EXPERIMENTALES, NOVEDOSAS E INNOVADORAS que permitan responder integralmente - por medio del proyecto - a problemas globales, del entorno, la ciudad y la sociedad, fomentando la argumentación teórica y las posturas críticas durante las diversas fases de materialización del proyecto.
COORDINADOR:
Arq. Carlos David Gonzales
DOCENTE AUXILIAR: Arq. Angela Tobón
DOCENTES:
Arq. Walter Villa
Arq. Hernan Muñoz
Arq. Juan Esteban Correa
Arq. Rodrigo Toledo
Arq. Juan Arteaga
ASESOR:
Arq. Ricardo Vasquez
NOTA: 3.72
La Sierra Nevada de Santa Marta está ubicada en el departamento del Magdalena, Colombia, Sur América.
EL JARDIN DE LOS SENTIDOS DEL TAYRONA.
OBJECTIVE:
Carry out an independent and autonomous critical reasoning exercise to formulate projects with a high level of experimentation, originality and architectural ambition. Projects must have a clear conceptual framework formulating powerful ideas that possess and demonstrate a high degree of innovation.
METHODOLOGY:
the methodology to address the competition-type exercise, within each work group the methodology to address the assignment will be defined. To achieve the expected level for the approach and development of the projects, students must apply in the project the knowledge, learning and progress made in the Core that complements the Workshop.
SCOPE:
Ability to FORMULATE architectural projects based on THEORETICAL-CRITICAL positions that materialize EXPERIMENTAL, NEW AND INNOVATIVE solutions that allow a comprehensive response - through the project - to global problems, of the environment, the city and society, promoting theoretical argumentation and positions criticism during the various phases of project materialization.
Tiene todos los pisos térmicos, desde el cálido seco hasta las nieves perpetuas de cuyo des hielo nacen lagunas y ríos, a 3.000 metros sobre el nivel del mar. Alrededor de los 29 ríos principales viven innumerables aves y monos aulladores que cantan la banda sonora de la Sierra.
Por debajo de los 2800 metros, el suelo es más fértil, por lo que hay bosques tropicales según el piso térmico. Entre los 2800 y los 4000 metros, el suelo permite el crecimiento de plantas como frailejones y pajonales. En el páramo de la montaña, el enclave más septentrional de páramos en América del Sur, por encima de 4500-5000 metros se encuentra una capa de nieve permanente.
Es el ecosistema más irremplazable del planeta.
El costado norte y occidental de la Sierra Nevada fue habitado desde el 200 d.C. hasta 1600 d.C por las sociedades conocidas como tairona y sus antecesores.
Hoy en día se encuentran poblaciones indígenas pertenecientes a los pueblos kággaba (kogui), ijka (arhuaco), wiwa (arzarios), kankuamo, y wayuu, comunidades campesinas migrantes en su mayoría de la región andina, y pobladores de los departamentos del Magdalena, Guajira, Cesar.
Todos estos grupos dependen para su supervivencia y economía de la vitalidad y salud de los ecosistemas de la Sierra Nevada de Santa Marta.
FIG 36: Render Collage mostrando diferentes climas del proyecto Elaboración propia.
FIG 37: Render Exterior Elaboración propia.
FIG 38: Render Exterior Elaboración propia.
FIG 39: Render Exterior Elaboración
FIG 40: Mapa de Colombia,Region Caribe - Imagen de google.
SOPORTE TEORICO
FIG 42: Esquema
FIG 41: Dibujo sierra nevada- elaborado por prosierra.
FIG 43: Esquema de idea basica,variedad de climas - Elaboración Propia.
FIG 44: Dibujo sierra nevada- elaborado por prosierra.
SOPORTE CONTEXTUAL.
La sierra nevada de Santa Marta es un lugar con condiciones naturales únicas en el mundo, debido a su gran variedad de “capas” térmicas que posee, condición que la idea generadora Jardín de los sentidos del Tayrona captura y nace con la intención de que los visitantes del jardín botánico conozcan y experimenten las distintas capas en una menor escala, recorriendo, observando, tactando los pisos térmicos de paramo, frio, cálido y cálido costero. Además, se pretende que sea una arquitectura que permita que el contacto con la naturaleza sea constante y que exista un límite difuso entre el exterior y el interior.
Bosque frondoso que conserva la naturaleza preexistente para genera un confort de SOMBRA para contrarestar el clima calido del territorio.
El bosque de “ENSUEÑO” es un espacio donde visitantes pueden llevar plantas para contriur “el nuevo mundo que quieren” y estas seran supervisadas por la comunidades del lugar.
Bosque deforestado para generar conciencia de la consecuencias climaticas que conlleva el no respetar la naturaleza. Espacio de poca sombra y abundante calor.
El emplazamiento se da a travez de una acción contraria al terreno permitiendo que el proyecto quede supendido en el aire se genere una permeabilidad en su primer nivel.
Premisas:
1. Jardines temáticos sensoriales: Se establecerán jardines temáticos que estimulen cada uno de los sentidos: vista, oído, olfato, gusto y tacto. Cada área estará dedicada a resaltar las características particulares de la flora y fauna del Tayrona relacionadas con cada sentido.
2. Conservación y vivero de especies: Se destinarán áreas para la conservación y propagación de especies nativas del Bosque Tayrona, con un enfoque especial en aquellas en peligro de extinción. El jardín botánico servirá como un centro de investigación y protección para la biodiversidad local.
El circulo nace desde lo mas alto del lote y genera un recorrido constante a travez de los distintos suelos.
El triangulo se vuelve la figura que al interceptar el circulo genera el acceso principal al edificio, ademas logra que el edificio se acople al lote.
El cuadrado aparece como referencia a la montaña de la sierra nevada que muestra los distintos climas que contiene, y ademas se ubica en el centro para que el circulo permita rodearlos como un ciclo.
Arquitectos: DARP - De Arquitectura y Paisaje
Área: 3787 m².
Año: 2020.
El Tropicario, como se denomina el proyecto, es la principal infraestructura de este plan, será el espacio para exhibir y promover los resultados de estas expediciones. El proyecto se emplaza sobre la huella de una antigua estructura, la cual se encontraba en un alto estado de deterioro. Del sitio de implantación, fue determinante la conservación de las palmas de cera que lo rodean, especie declarada árbol nacional, en vía de extinción y de crecimiento muy lento. Estas palmas viven más de 100 años, alcanzando alturas hasta de 70 metros. Alrededor del Tropicario, existen más de 70 palmas de este tipo en estado adulto. Esto planteó la necesidad de usar un sistema de formas flexibles, que no las afectara.


El programa se piensa como escenarios que una centralidad debe cuidad(Salon de la comunidad) dejando asi a estos como los hermanos mayores, tambien se propone un nuevo programa basados en Jardines con diferentes ambientes y tematicas distintas. La geometria del proyecto utiliza figuras geometricas muy puras como el triagulo,rectagulo y circulos interceptados entre ellos para responder a una geomtria irregular del lote.
FIG 48: Isometrico volumetrico, acciones formales.- Elaboración Propia.
FIG 49: Isometrico volumetrico,
Elaboración Propia.
FIG 47: Isometrico volumetrico, acciones formales.- Elaboración Propia.
Tropicario Jardín botánico de Bogotá
Programa.
Geometría
FIG 45: Isometrico del contexto inmediato-Lote, Elaboración propia.
FIG 52: Esquema a lapiz,masas de programa, elaboración propia.
FIG 53: Esquema de geometria, elaboración propia.
FIG 50 : Fotografia del tropicario, Bogotá- Fuente Archidialy
FIG 51: Sección del tropicario, Bogotá- Fuente Archidialy SOPORTE SINTESÍS
La planta arquitectónica integra jardines sensoriales que estim ulan cada sentido humano y áreas dedicadas a la conservación de especies nativas, especialmente las en peligro de extinción. En resumen, la planta logra una integración armoniosa con el entorno natural, enfocándose en la experiencia sensorial y la preser vación de la biodiversidad local.
FIG 58: Render exterior,luces encendidas- Elaboración Propia.
FIG 59: Render exterior, ingreso- Elaboración Propia.
FIG 55: Sección urbana del proyecto, elaboración propia.
FIG 56: Esquema en planta señalando corte, elaboración propia.
FIG 57: Render exterior, noche- Elaboración Propia. FIG
RECORRIDO PAISAJISTICO
El proyecto alcanza un nivel alto en atmosferas tanto interiores como exteriores, esto gracias a que las soluciones técnicas fueron las mas apropiadas para el diseño del proyecto.
Con la variedad de atmosferas del proyecto se localizaron puntos donde estas parecían mezclarse visualmente (como ocurre en la FIG 63) y en la sección se resalta los soportes técnicos de cada una de las salas térmicas.
CONCLUSIÓN
La experiencia en el taller de proyectos 9 fue transformadora. Diseñar un jardín botánico en la Sierra Nevada de Santa Marta me permitió integrar la experimentación creativa con un enfoque técnico detallado en el anteproyecto. Aprendí a equilibrar la funcionalidad arquitectónica con el respeto por el entorno natural, reforzando mi compromiso con la sostenibilidad. Esta experiencia no solo mejoró mis habilidades técnicas, sino que también amplió mi perspectiva sobre el papel de la arquitectura en la interacción con el paisaje y la cultura locales.
FIG 62: Sección Transversal,soluciones tecnicas, elaboración propia.
FIG 63: Render exterior,Bosque seco y sala tropical, elaboración propia. FIG 64:
FIG 65: Render interior,sala de plantas, elaboración propia.
FIG 66: Render ,sala abierta calido costero, elaboración propia.