CASA SAÚDE E BEM-ESTAR

Page 1

UM NOVO CONCEITO DE MORAR
SUA CASA CUIDA DA SUA SAÚDE? ?
E VOCÊ CUIDA DA SAÚDE DA SUA CASA? ?

BUSCAMOS FELICIDADE SEMPRE.

Viver em ambientes belos, harmônicos e que atendam as demandas familiares é um importante fator nesta busca. Mas para além disso, mais que nunca, outros paradigmas precisam ser considerados num projeto.

A ciência já comprovou que o ser humano tem necessidade de contato com a natureza para resguardar sua saúde física, mental, emocional e até espiritual, conforme preconiza também a organização mundial da saúde.

Pensando nisso a ARQVX criou um novo conceito projetual, a Casa Saúde e Bem-Estar, na visão hoje prevalente de que saúde é muito mais do que ausência de doenças, e sim um estado de completo bem-estar físico, mental e social.

Estudos indicam que 85% das determinantes de doenças crônicas são de fatores ambientais e comportamentais, ou seja, em tese poderiam ser evitados.

O espaço físico em que vivemos se enquadra nestes fatores ambientais e também influencia nos comportamentais.

1 2 3 4 5 6 7 8 9 VENTILAÇÃO QUALIDADE DO AR SAÚDE TÉRMICA PÓ E PRAGAS PROTEÇÃO E SEGURANÇA QUALIDADE DA ÁGUA RUÍDO ILUMINAÇÃO E VISTAS UMIDADE FONTE: Allen, Joseph G.. Edifícios saudáveis. Harvard University Press OS 9 FUNDAMENTOS DE UM EDIFÍCIO SAUDÁVEL
VENTILAÇÃO NATURAL ILUMINAÇÃO NATURAL EFEITO BACTERICIDA CONTATO COM A NATUREZA RUÍDO HORTA SAÚDE TÉRMICA
Sua casa atende suas demandas, faz você se sentir seguro, confortável, acolhido? Pesquisas indicam que passamos 90% do nosso tempo em espaços fechados. ?

A vida nas cidades costuma ser corrida e sem tempo para muita coisa. Mas, recentemente passamos até a trabalhar em casa. Então, para equilibrar as demandas de uma vida urbana, projetamos uma casa que abriga as necessidades e sonhos de uma família, além de cuidados extras com a qualidade de vida, criamos a Casa Novus, para um terreno com 250 m². Áreas de conhecimento como a neuroarquitetura, biofilia, psicologia das cores, desenho universal, conforto e sustentabilidade ambiental nos inspiram em nossos projetos.

A fachada tem traços marcantes, é harmônica e equilibrada em seu jogo de volumes, iluminação, cores e texturas.

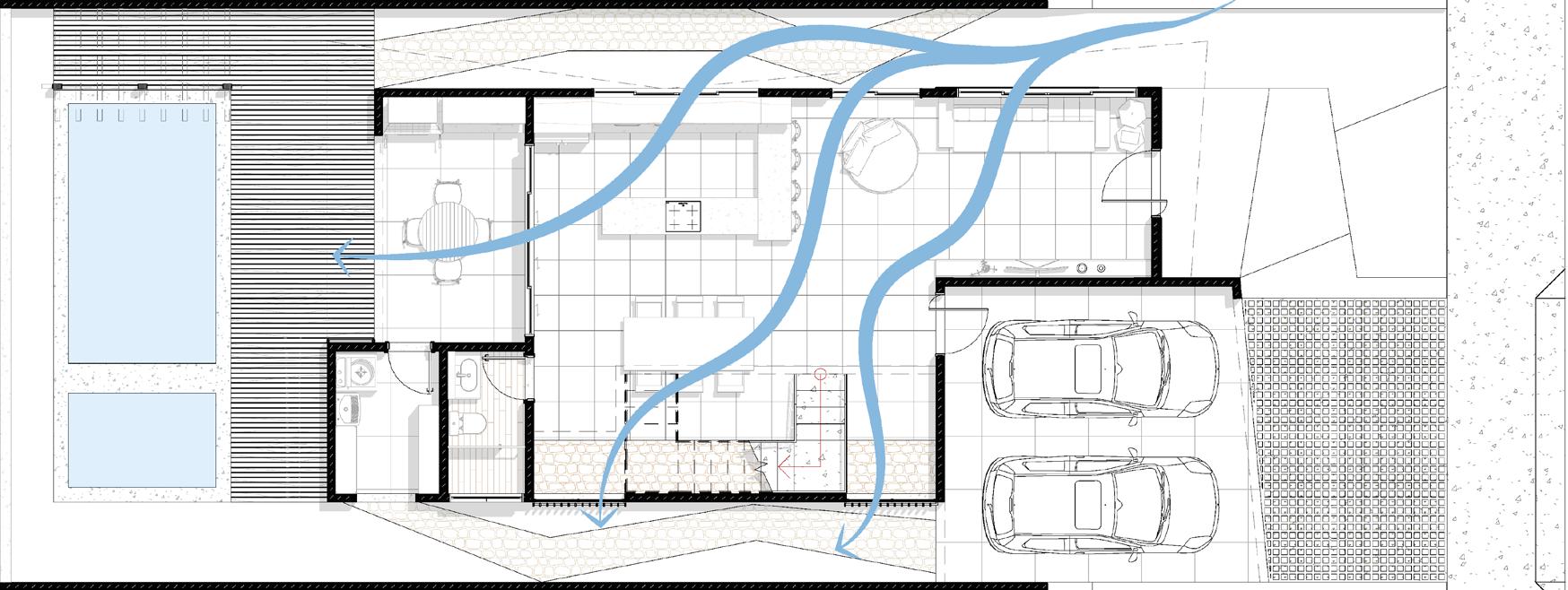
Projetamos os ambientes principais, como salas e quartos, para que a luz do sol entre e realize seu efeito bactericida, As janelas são posicionadas para permitir o cruzamento da ventilação natural, trazendo mais conforto térmico aos ambientes.

A relevância da ventilação natural fica demonstrada por pesquisas que indicam que 52% da baixa qualidade do ar vem de ventilação inadequada e que ventilação natural pode reduzir doenças pulmonares em até 20%.

TÉRREO PLANTA BAIXA 68,54 m²
1º PAVIMENTO PLANTA BAIXA 84,54 m²

Outro importante referencial utilizado foi da biofilia, quando buscamos um maior contato com elementos naturais, seja na decoração dos ambientes ou nas visadas para áreas externas com vegetação e cascata.

Mais de 10 anos, 19 cursos, diversos estudos, simulações e aplicações práticas nos levaram a consolidar o modelo projetual das Casas Saúde e Bem-Estar, que acreditamos realmente atender a demanda das pessoas por uma vida com mais equilíbrio.

Projetamos com estratégias focadas nesse conceito e verificamos em softwares seu efetivo funcionamento.

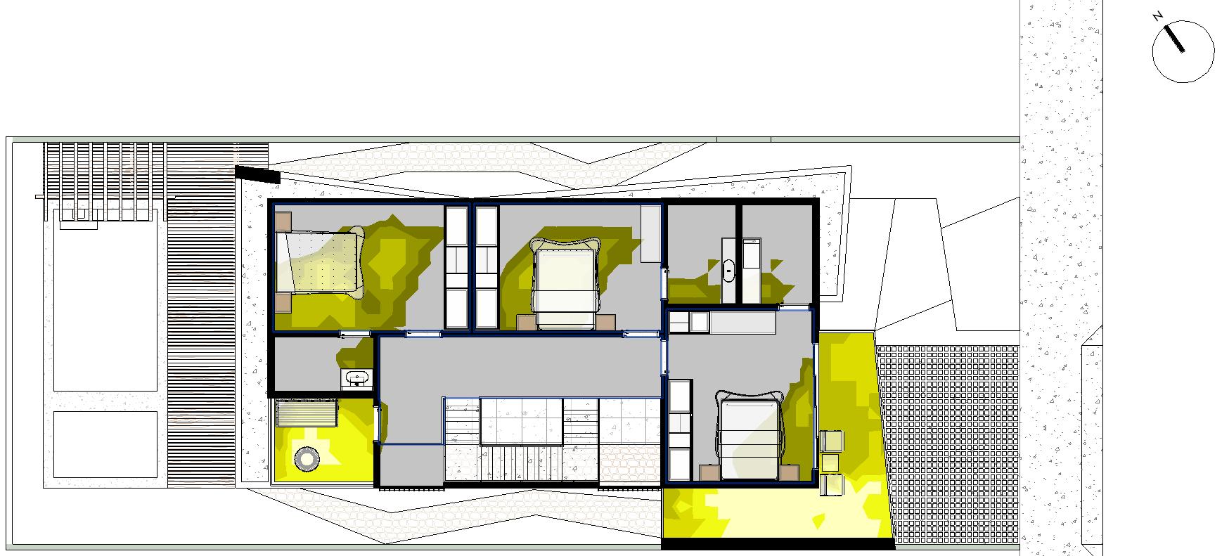
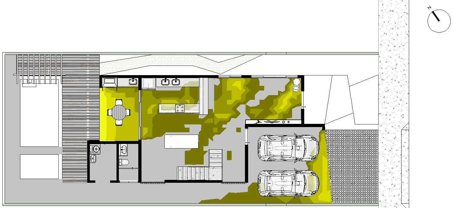
ACESSO SOLAR É a incidência direta de luz solar dentro dos ambientes. ALGUMAS ESTRATÉGIAS UTILIDADE: • Efeito bactericida; • Identificar os locais com no mínimo 2h de insolação direta. ACESSO SOLAR INVERNO - TÉRREO ACESSO SOLAR INVERNO – 1º PAVIMENTO
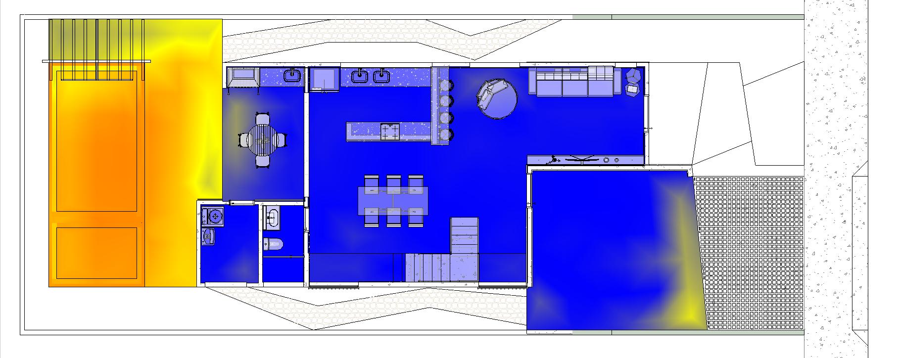
ALGUMAS ESTRATÉGIAS INSOLAÇÃO CUMULATIVA Quantidade de energia solar acumulada que chega numa superfície em um período pré determinado. UTILIDADE: • Determinar quais as superfícies recebem maior incidência solar e a partir daí pensar em dispositivos e estratégias de proteção. • Identificar melhor posição para instalar placas solares. INSOLAÇÃO CUMULATIVA - TÉRREO INSOLAÇÃO CUMULATIVA - 1º PAVIMENTO

INSOLAÇÃO CUMULATIVA

Em perspectiva

ALGUMAS ESTRATÉGIAS ILUMINAÇÃO NATURAL Técnica que se utiliza a luz solar como principal fonte de claridade dos ambientes internos. UTILIDADE: • Identificar a quantidade de iluminação natural que se projeta nos ambientes e fazer uma mesclagem com iluminação artificial de forma a atingir parâmetros mais saudáveis 29 lux 1000 lux ILUMINAÇÃO NATURAL - TÉRREO 29 lux 1000 lux ILUMINAÇÃO NATURAL – 1º PAVIMENTO

ALGUMAS ESTRATÉGIAS

Pensamos no acesso solar aos ambientes para o efeito bactericida, mas com cuidado e proteção ao excesso de insolação.

BRISES

Através de brises, esquadrias sombreadas e coberturas que protegem e marquises. ESQUADRIAS SOMBREADAS

PROTEÇÃO TÉRMICA NAS PAREDES E COBERTURA

ALGUMAS ESTRATÉGIAS

EXEMPLO DE PAREDE

EXEMPLO DE COBERTURA

VENTILAÇÃO CRUZADA

ALGUMAS ESTRATÉGIAS
ALGUMAS ESTRATÉGIAS SOLUÇÕES ANTI RUÍDO EXEMPLO DE PAREDE CLASSE DE RUÍDO l Nível de desempenho mínimo ≥ 20 D 2m,nT,w (dB)
ÍNDICE DE REDUÇÃO SONORA (Rw) de 45 dBEXEMPLO DE LAJE EXEMPLO DE ESQUADRIA

Além de outras estratégias, sempre incorporamos elementos de sustentabilidade aos projetos.

Projetar para beneficiar a Saúde e Bem-Estar, este é o nosso compromisso!

SISTEMA DE REUSO DE ÁGUA COM FILTRO

BOILER USANDO PLACAS SOLARES PARA AQUECIMENTO DE ÁGUA

PLACAS SOLARES PARA GERAÇÃO DE ENERGIA

PAISAGISMO IRRIGADO COM ÁGUA DE REUSO CAPTAÇÃO DE ÁGUA DA CHUVA

FILTRO

NEURO ARQUITETURA

neurociência aplicada aos espaços construídos, entendendo os impactos desses ambientes no cérebro e no comportamento do ser humano.

BIOFILIA

incorporar as características reais ou representativas da natureza aos espaços construídos, como água, vegetação, luz natural e elementos como madeira e pedra.

CONFORTO AMBIENTAL

promove estratégias passivas e naturais para o aproveitamento das condições climáticas da região, melhorando assim a eficiência do edifício.

SUSTENTABILIDADE

busca minimizar os impactos ao meio ambiente, mas também deve promover o desenvolvimento social e cultural, além de ser viável economicamente.

DESENHO

UNIVERSAL

é um enfoque no design de produtos, serviços e ambientes a fim de que sejam usáveis pelo maior número de pessoas independente de idade, habilidade ou situação.

PSICOLOGIA DAS CORES

analisa e define quais os efeitos que cada cor gera nas pessoas, como mudanças nas emoções, nos sentimentos, a criação de desejos e muito mais.

Nosso projeto cuida da sua família, desde 2009 Contatos: (79) 9 79 9860-1993 contato@arqvx.com.br Redes sociais: @arqvx www.arqvx.com ENTRE EM CONTATO CONOSCO! MEMBRO

Turn static files into dynamic content formats.

Create a flipbook
Issuu converts static files into: digital portfolios, online yearbooks, online catalogs, digital photo albums and more. Sign up and create your flipbook.