Portfólio Viviane Baldi

Page 1

PORTFOLIO viviane baldi arch i erutcettceles e dworks

portfolio selected works architecture

Arquiteta e Urbanista 09 | 04 | 1993 brasil +55 54 996539842 arquitetavivianebaldi@gmail.com

português : nativa espanhol : uente inglês : básico Insta: @_vivianebaldi

Viviane Baldi FORMAÇÃO

2011 - 2017

2015 - 2016

Graduação em Arquitetura e Urbanismo

UPF | Universidade de Passo Fundo, RS/Brasil. Graduação Sanduíche em Arquitetura, Urbanismo e Design

UNA | Universidade Nacional de Asunción, Asunción/Paraguay Bolsista CAPES .

2018- 2019

Grupo de cursos especializados em Design Gráfico

CalArts California Institute of the Arts (Composta por cinco cursos: Graphic design, Typography, Imagemaking, Ideas from the history of graphic design, Brand New Brand - plataforma Coursera.

EXPERIÊNCIAS PROFISSIONAIS

Universidade de Passo Fundo - monitoria de maquete física.

Zilmar Bastos Arquitetura Residencial

_Estagiária modelagem de projetos, gra cação e produção de imagens.

Ricardo Stolfo Arquitetura residencial e comercial _Estagiária modelagem de projetos, detalhamento de projetos executivos.

Point Of Sale - Agência especializada em varejo

_Arquiteta Criação, modelagem de projetos, representação grá ca técnica, produção de imagens, detalhamento de projetos executivos e acompanhamento de obra.

Apiácas Arquitetos

_Arquiteta Júnior Desenho técnico em Archicad e em AutoCad

OUTROS CURSOS

2019 BM Maquetes eletrônicas - Vray para SketchUp

2020 Arte moderna e novas ideias - MoMa museun

2019 BIM prático - Archicad - Hub

2020 Making Architecture - IE School of Architecture & Design

2021 Seeing Through Photographs - Courseira

2021 Vray Go - Hub

2022 BIM 2.0 - Archicad - Hub (versão 25 do archicad)

SOFTWARES

Archicad AutoCad SketchUp Pacote Office Pacote Adobe Vray Lumion 2015 2016 2017 2018 | 2021 2022 | atualmente

CASA E

Residência unifamiliar

Ano: 2021

Fase: anteprojeto

Cidade: Passo Fundo/RS

A pele externa da fachada em tijolos solo-cimento intercala fiadas paralelas com fiadas rotacionadas de acordo com o ângulo da insolação oeste, ao mesmo tempo, são permeáveis à ventilação e iluminação difusa.

Assim como precisamos de sol, precisamos de sombra e penumbra, espaços que nos permitam estar com nós mesmos, uma casa deve ser pensada para dentro, para que tenha sentido com ela mesma e com as pessoas que alí habitam, a fachada como consequencia da vida interna.

01 02 03 04 Social íntimo O L N S Implantação N

Cobertura

Primeiro pavimento

Terraço jardim/cobertura verde

Térreo social

Acessos

02
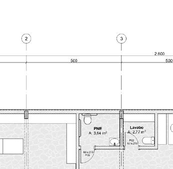
Planta baixa primeiro pavimento Planta baixa térreo
04 Corte Bb’
06
08
Casa E Ano: 2021 Cidade: Passo Fundo/RS

Casa E

Ano: 2021

Cidade: Passo Fundo/RS

10

Apartamento BA Apartamento casal

Projeto em desenvolvimento para um jovem casal. Ela trabalha em Home Office e ele estuda no tempo livre pra concursos, amam viajar e possuem uma coleção de cerâmicas, tiham o desejo de possuir um espaço só delas.

A planta original do apartamento possuia dois dormitórios, na proposta optou-se por transformar o espaço de forma mais fluída, onde as divisórias móveis fazem toda a diferença na divisão do espaço quando necessário entre dormitório e espaço de trabalho/estudo que fosse suficiente para abrigar duas pessoas.

A parte social trás protagonismo para o sofá feito sob medida e voltado para os dois lados, tanto pra televisão quanto para a mesa de jantar/cozinha, pois amam receber os amigos.

12
14
16

CASA VACACIONES

Ano: 2021 Fase: anteprojeto Cidade: Passo Fundo/RS

Proposta para uma residência de férias unifamiliar, a implantação acontece próximo ao rio Passo Fundo.

A família queria um espaço funcional e que fornecesse privacidade.

18 Planta baixa térreo

Cobertura verde

Laje de cobertura em CLT

Vigamento em MLC

Paredes em CLT e pilares de madeira

Pilares de fundação

20

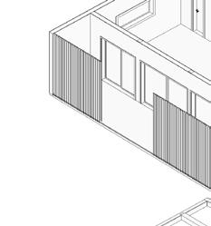
Estudos sobre a composição dos brises de madeira da fachada.

22

LOJA RAZAOINFO Loja de internet de fibra

Ano: 2020 Cidade: Passo Fundo/RS

Projeto Point of sale

Desenvolvimento do projeto: Arq. Viviane Baldi

O projeto parte da ideia inicial de resolução da apropriação de um espaço cúbico, a segunda premissa inicial são as cores da identidade da marca Razaoinfo, que são cores fortes e dominantes: preto e amarelo. Como solução espacial, tirando proveito do Cubo, constata-se que a melhor zona para exploração seria a parte cúbica superior, onde se encontram as informações de maior impacto visual.

A loja faz uso de mobiliário feito de chapas de compensado naval por conta de sua versatilidade visual, juntamente com o mdf branco. Com a metragem reduzida da loja, se fez necessário trazer o amarelo da marca para longe do contato visual imediato, aplicada a trás das estruturas metálicas superiores. Foi priorizado a disposição inteligente do mobiliário dentro do espaço, de acordo com a ocupação e necessidade dos serviços.com ela mesma e com as pessoas que alí habitam, a fachada como consequencia da vida interna.

24
26 01 Atendimento 02 Vendas 03 Espera 04 Suporte técnico
Loja Razaoinfo Ano: 2020 Cidade: Passo Fundo/RS Vista a partir do acesso. Loja Razaoinfo Ano: 2020 Cidade: Passo Fundo/RS Vista a partir do banco de espera.
28
Vitrina Rua Vitrina galeria Estrutura metálica Baias de atendimento Vendas Reclamações Espera coletiva

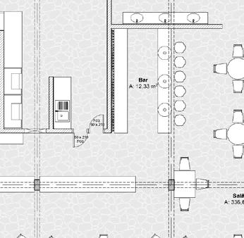
RAZERA COCINA Restaurante corporativo - Complexo Agrícola

Ano: 2022

Fase: Em construção Cidade: Passo Fundo/RS

Projeto arquitetônico para o restaurante do complexo agrícola Razera, o mesmo irá comportar os funcionários das lojas da Valtra e Fentd, além de toda a parte coorporativa e oficinas, somando cerca de 180 pessoas.

O volume formal não deveria tirar o protagonismo das lojas, buscou-se apenas utilizar os mesmos materiais, o concreto e as aberturas em vidro, mas nesse caso trazendo saliências e reentrâncias onde os brises de madeira protegem as aberturas para fornecer leveza ao concreto.

30
32
Planta baixa Restaurante

Platibanda

Laje de cobertura

Saliência laje de acesso

Pilares e vigas Laje

Vigas e fundaçoes

34

RAZERA AGRÍCOLA Complexo Agrícola de insumos e máquinas

Ano: 2022

Fase: Compatibilização com o estrutural Cidade: Passo Fundo/RS

Projeto arquitetônico para o complexo agrícola Razera, o mesmo irá comportar as lojas da Valtra e Fentd, além de toda a parte coorporativa e oficinas no primeiro pavimento.

O volume formal não deveria tirar o protagonismo das lojas, a estrutura deveria ser pré moldada, então resolvemos tirar proveito da mesma, fornecendo protagonismo ao concreto, as aberturas em vidro, geram uma resolução silenciosa e contemporânea e trazem leveza ao volume de natureza mais pesada.

36
Planta baixa subsolo
38
Planta baixa térreo Corte Aa” Corte
Bb”
40
Corte Aa” (corte anteprojeto)

CAPELA ABERTA MARTINELLI

Ano: 2019

Cidade: Engenho Velho/RS

“As religiões são caminhos diferentes convergindo para o mesmo ponto. Que importância faz se seguimos por caminhos diferentes, desde que alcancemos o mesmo objetivo?”

A primeira capela Martinelli foi construída no início do século XX, na comunidade que levava o nome da família, localizada no interior do município de Engenho VelhoRS, inicialmente a capela era apenas para que a família celebrasse a missa nos domingos, por isso, suas dimenões não passavam de 2,5 x 3 metros quadrados. Com o passar dos anos, a celebração dominical atingiu maiores proporções, tornando-se um evento que alcançava toda a cidade, as missas então, passaram a ser celebradas ao redor da Capela, pois a mesma não comporta um grande número de pessoas.

Edificação pré existente - Primeira capela Martinelli
42 1 1 - acesso pessoas 2 - acesso padre 3 - sacristia 4 - púlpito 5 - cruz um 6 - cruz dois para re exação de sombra durante o sol da tarde. 7 - acesso 8 - acesso 9 - acesso 10 - bancos 2 3 4 5 6 7 8 10 0 5 10 9

A resolução espacial do projeto parte da forma base de um retângulo. Nas extremidades menores, a primeira voltada para a posição solar norte, se localiza o altar, na posicionada à sul, temos dois acessos secundários. Neste caso optou-se por atribuir um efeito que provocasse maior impacto visual e consequentemente emocional fazendo uso das fachadas com maior incidência

02. A subtração

Existe uma subtração de natureza orgânica na elevação norte, para que atribua uma sensação de acolhimento ao espaço ao mesmo tempo que melhora a acústica no altar.

A cruz abstrata presente na elevação leste que faz frente com a capela existente, informa que a obra é de cunho religioso, a mesma é formada pela união espacial da subtração de cinco planos diferentes, para que a luz interna vaze para fora durante a noite e que a luz do sol entre no ambiente durante o dia.

04. A forma final

A forma final deveria fazer com que as pessoas que estivessem ao redor, sentissem que estavam conectados com seu interior de alguma forma e que não chamasse tanta atenção, pois o entorno da implantação da capela ainda possui vegetações nativas em grandes proporções.

44

A cruz abstrata

A cruz abstrata presente na elevação leste que faz frente com a capela existente,informando que a obra é de cunho religioso.

46

O interior

A capela original foi construída em honra a Nossa Senhora do Caravagio, portando possui em seu interior, bancos azuis, além das esquadrias, do altar e da cruz principal, todas na mesma cor, todo mobiliário original foi feito no antigo Engenho da cidade, que leva o seu nome (Engenho Velho). Na proposta, optou-se por respeitar a cor que possui muita ligação afetiva com os moradores. A cor azul foi atribuída aos bancos e a cruz principal. Na imagem podemos observar que a cruz posta em 45 graus, atrás de uma parede, para que nenhum dos fiéis a visse fisicamente, porém a pudesse sentir, atráves de sua sombra, que desce pelo piso até se encontar-se com a parede oposta, colocada no mesmo ângulo ao da cruz.

48

HABITAÇÕES DE INTERESSE SOCIAL

Ano 2017

Habitações sociais e regeneração urbana das margens do Rio Passo Fundo através de um sistema conector de moradia, lazer e trabalho.

O presente trabalho é resultado de reflexões sobre a cidade contemporânea, espaços públicos e as atuais inserções periféricas e desprovidas de infraestrutura básica das habitações sociais na cidade de Passo Fundo.

Para o desenho dos edifícios foi imprescindível o desenvolvimento de pontos de atração, que acompanhacem o trajeto percorrído pelas pessoas, desde o exterior dos edifícios até as suas habitações, sendo esse trajeto, um eixo de lazer, a transformação do espaço através de “pontes” que funcionariam como um sistema conector urbano, recebendo e conduzindo as pessoas por diferentes pontos espaciais, fazendo com que essa zona da cidade que atualmente é vazia e deteriorada, forneça estímulo para que as pessoas voltem a usá-la. As habitações sociais em centros urbanos, são antes de tudo, um ato de posicionamento de resistência política e espacial.

Planta de implantação

As pontes: Sistema conector urbano, recebe e conduz as pessoas por diferentes pontos espaciais, Possui ciclofaixas, arquibancada para contemplação do Rio, e faixa de grama.

50
Planta baixa pavimento Tipo
52
Corte longitudinal
54

DECA HOJA

A COZINHA

Dentre os cômodos mais conhecidos que compôem uma residência, a cozinha foi um dos que mais sofreram alterações durante as últimas décadas. Ela saiu dos fundos, da parte unicamente de serviço e hoje configura um dos locais de maior investimento financeiro, passando quase a fazer parte do lazer, é onde as pessoas se divertem, sentem prazer e permanecem. Ainda não é tão comum ser o antecessor ao acesso principal, aqui ela é.

A COMPOSIÇÃO FORMAL

A cozinha é o coração da casa, a arquitetura dessa em específico buscou ser um coração menos óbvio, mais escultórico. Parte da forma de uma folha, esculpindo as pontas, para que a volta ao redor dos elementos seja SINUOSA.

ESTUDO DA CRIAÇÃO FORMAL

A geração da cozinha 3D hoja, foi inspirada em uma folha, onde se retira as pontas, se duplica a forma e em seguida, é acrescentado o “limbo” são os poros do mobiliário principal, aqui caracterizado pela chapa metálica perfurada.

A cozinha conta com a segunda folha, menor, servindo como mesa de refeições demoradas, e pelo terceiro móvel que é discreto e se mescla à forma dos tijolos intercalados em 45 graus da parede.

Proposta projeto melhor cozinha - DECA Ano: 2021
01. A folha realista 02. Retirada das pontas 03. A folha esculpida Limbo: estrutura semelhante aos poros da pele humana Folha 1 “Limbo” Folha 2 04. A folha esculpida em 3D 05. O resultado

Cozinha Acesso

01. Isométrica geral

02. Isométrica especí ca

Isométrica hojas

Isométrica

56
Apoio Ilha/ hoja mesa/ hoja Bloco cerâmico
hojas
OBRIGADA! arquitetavivianebaldi@gmail.com +55 54 996539842 @_vivianebaldi

Turn static files into dynamic content formats.

Create a flipbook
Issuu converts static files into: digital portfolios, online yearbooks, online catalogs, digital photo albums and more. Sign up and create your flipbook.
Portfólio Viviane Baldi by arquitetavivianebaldi - Issuu