Portafolio 2023 - INGLES

Page 1

MARIELA SOFÍA CERÓN MÉNDEZ ARCHITECT WITH A SPECIALIZATION IN INTERIORS

GRUPO MODULARES

PROJECT MANAGER | DEC. 2021 AUG 2022

ARQUITECTURA SC

FOUNDER|

Project development of office construction projects in El Salvador and Guatemala City which include supervision, budget management, Client engagement and supplier management

LXGARQUITECTURA

JUNIOR ARCHITECT| JUL 2021 - DEC 2021

Development of interior house projects, drafting architectural plans and industrialdesign

GAPSA

SENIOR ARCHITECT| JUN. 2020 NOV. 2020

Quantification, supplier management, budgets, schedules, administration of productdelivery.

JUN. 2018 CURRENTLY Spanish English

PLANT

DESIGNER| AUG. 2019 FEB 2020

Landscaping Design, Budgets, supplier management of residential and commercialprojects.

Arquitectura SC was born with the first client “Geo Petroleos” which requested the design of a Gas Station and Shopping center in 2018.

The company has worked on the planning of 3 houses, the preliminary project of an apartment building, house architecture remodeling and interior design advice for 2 apartments.

Currently Arquitectura SC is working together with “Rafael Aycinena Arquitectos” on a restaurantplan

INTERSHIPS

STUDIODOMUS

DRAWING DEPARTMENT | AUG. 2016 OCT. 2016

QUALICONS

CONSTRUCTION SUPERVISION | MAY JUN. 2017

PAZARQUITECTURA

DRAWING DEPARTMENT

| MAY. JUN. 2018

Guatemala City, Guatemala

BACHELOR´S DEGREE IN
INTERIORS
2015 2020 EDUCATION DIGITAL SKILLS REVIT AUTOCAD SKETCHUP VECTORWORKS ILLUSTRATOR PHOTOSHOP LUMION LENGUAGES Km24.5carreteraal salvador, fraijanes CONTAC +502 45247712 sofi.ceronm@gmail.com www.linkedin.com/in/Sofi Ceronarq sofi.ceron GUATEMALA JUN,20.1997 PROFESIONAL EXPERIENCE CERTIFICATION PROGRAM BIM SPECIALIST
STRUCTURES
Curvabim Architecture,
April 2021 2D&3Dmodeling GraphicDesing RendersandPostProduction Others LUMION MSOFFICE LANDSCAPINGPRO LASERCUTTING
ARCHITECTURE WITH A SPECIALIZATION IN
• UniversidaddelIstmo,GuatemalaCity,Guatemala
2021 ARCHITECTURE AND
CENTRO CULTURAL SAN JOAQUÍN 01 TORRE MADELINNE 02 FUNDACIÓN WAYBE 03 RESIDENCIA ARGUETA 04 COFFEE SHOP 05 LA HERRADURA 06 CONTENTS

CENTRO CULTURAL SAN JOAQUIN

01

CENTRO CULTURAL SAN JOAQUÍN

SAN JOAQUÍN CULTURAL CENTER WAS CREATED AS ONE OF THE SOLUTIONS TO MITIGATE VIOLENCE IN THE SECTOR OF THE MUNICIPAL CAPITAL OF VILLA CANALES THE SECTOR PRESENTS THE PROBLEM THAT STUDENTS BEGIN TO GET INVOLVED IN CRIMINAL LIFE, SO A CULTURAL CENTER AND RECREATIONAL PARK WAS PROPOSED, WITH AREAS FOR AN OUTDOOR THEATRE, EXPO CENTER, LIBRARY AND MULTIPURPOSE ROOMS, THIS PROJECT ENABLES US TO PROVIDE WITH A SAFE AND HEALTHY PLACE TO THE SUROUNDING SCHOOLS.

01
PLANOFTHE ARCHITECTURAL COMPLEX

THE LOCATION OF THE PROJECT WAS AGREED IN CONJUCTION WITH THE LOCAL GOVERNMENT, CONSIDERING THE SURROUNDING POPULATION THAT COULD ATTEND AND TAKE ADVANTAGE OF IT. MAINLY PROVIDING AN EASY ACCESS SPACE FOR STUDENTS OF THE AREA

ONE OF THE MOST IMPORTANT PARTS OF THE PROJECT WAS TO CALL THE ATTENTION OF THE VIEWERS STARTING FROM THE ARCHITECTURAL SHAPE, AS WELL AS TO MAKE IT TRANSPARENT ENOUGH SO THE VIEWER COULD SEE WHAT IS HAPPENING INSIDE, AND THEREFORE HAVE THE CONFORT TO ENTER IT WAS CONSIDERED THAT ON THE MOST CRITICAL FACADES, DANPAL WILL BE USED, WHICH IS A MATERIAL THAT SEEKS TO PROVIDE SOME TRANSPARENCY, ALTHOUGH DURING THE DAY IT WILL STILL PROVIDE SUFFICIENT PRIVACY FOR THE INTERNAL SPACES, CONSIDERING THAT THE SUN WILL BE ON THE MAIN FAÇADE WAS ALSO PROPOSED TO IMPLEMENT A DOUBLE FACADE THAT WILL HELP WITH THE VENTILATION OF THE SPACES

THE APPROACH FOR THE MOVEMENT OF PEOPLE INSIDE THE COMPLEX IS FOCUSED ON GIVING THEM THE OPPORTUNITY TO ALWAYS SEE AND INTERACT WITH ART THAT´S THE REASON WHY IN THE SURROUNDINGS OF THE PROJECT THERE ARE PLACES THAT STRIVE TO BECOME EXTERNAL EXHIBITIONS AND SUPPORT LOCAL BUSINESSES

THE PARKING LOT AND THE RECREATIONAL PARK OF THE PROJECT WERE EXTENDED ALONG THE SURROUNDING SCHOOLS IN ORDER TO CREATE A COMPLEX THAT

NORTH WEST EAST SOUTH EXISTING BUILDING EXISTINGBUILDING EXISTING BUILDING EXISTING BUILDING EXISTING BUILDING 01 CENTRO CULTURAL SAN JOAQUIN

THE SHAPEOFTHEDESIGNVISUALYSEEKSTHATTHEBUILDINGISSEENLIKEIT´S ALMOST FLOATING, THAT SHAPE GIVES THE OPPORTUNITY TO HAVE INTERIOR EXTERIOR SPACES SUCH AS THE PLAZA LOCATED ON THE FIRST LEVEL OF THE MAINBUILDING

COLORISANIMPORTANTFACTORFORTHISPROJECT,DURINGTHEDAY,NATURE TAKESANIMPORTANTROLEANDREFLECTSHOWTHEAREAIS,ATNIGHT,DANPAL PLAYS THE MOST IMPORTANT ROLE, WICH IS LIGHTING UP THE BUILDING. IT IS PROPOSED TO USE COLORS BY THEME, SUCH AS ON NATIONAL HOLIDAYS, LIGHTING THE BUILDING WITH THE COLORS OF THE NATIONAL FLAG AND THEREFORE HAVE A MORE INTIMATE CONNECTION WITH THE USERS

THE TRIANGLES HAVE THE MOST IMPORTANTROLE IN REGARDS TO THE SHAPE THEY WERE HIGHLIGHTED ON THE STRUCTURE, ON THE MATERIALS OF THE FLOORS,ONTHESIGNALING,ONTHELIGHTING THISWASINSPIREDBYTHESHAPE OFTHE PINEAPPLE WHICH IS VERY IMPORTANTFOR THE SECTOR BECAUSEITIS THEMAINSOURCEOFTHEECONOMY.

02 TORRE MADELINE

THE MADELINNE PROJECT, DESIGNED WITH THE HIGHEST QUALITY, AIMS TO BE THE MOST INNOVATIVE PROJECT IN THE AREA, WITH A PRIVILEGED LOCATION AND EASY ACCESS TO HUEHUETENANGO´S CITY CENTER

IT IS CONSIDERED AS THE SHIFT TOWARDS VERTICAL HOUSING FOR HUEHUETECAN FAMILIES THE PROYECT´S 3 TOWER PROPOSAL POSSESSES A BALCONY DESIGN WHICH WAS INSPIRED BY THE FLUIDITY OF THE SURROUNDING MOUNTAINS

02 TORRE MADELINNE
ISOMETRIC
POSTERIOR ISOMETRIC
FRONT
114.6M2 145.6M2 29.14M2 179.6M2 140.6M2 21.71M2 33.94M2 19.25M2 LEVEL2 12
MULTIPURPOSE ROOM ADMINISTRATION SECURITY ROOM BATHROOM RECEPTION LEVEL1 TOWER 1 TOWER 2 TOWER 1 TOWER 2 1 PLAYGROUD COWORKING SPACE RECEPTION B D C A D LEVEL2-12 TOWER 1 TOWER 2 B
02 TORRE MADELINNE
03
FUNDACIÓN WAYBI

LOCATION

EDUCATIONAL CENTER FOR CHILDREN WITH ASD, IN GUATEMALA CITY IS A PROJECT THAT TAKES AS ITS MAIN OBJECTIVE TO EMBRACE THE EXISTING ARCHITECTURE, DISSIMULATE IT THROUGH SKIN FACEDES, AS WELL AS EXPANDING THE INTERNAL SPACES AND UNIFYING THE INTERIORS INTEGRATION OF THE EXTERNAL AREAS IS SOUGHT THROUGH: PLAZAS, GARDENS AND PATHWAYS

THE INTERIORS REFLECT THE COLOR PALETTE OF THE FOUNDATION, AS WELL AS THE SHAPES THAT HIGHLIGHT ITS LOGO

THE DESIGN OF FURNITURE AND SIGNAGE TAKES AN IMPORTANT ROLE IN THE INTERACTION WITH CHILDREN

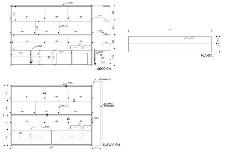
03 FUNDACIÓN WAYBE
FURNITURE PORPORSALS PLANT ELEVATION 1 ELEVATION 2 ELEVATION 3 ELEVATION 4 ISOMETRIC WOOD WOOL PLANT ISOMETRIC ELEVATION1 ELEVATION2 ELEVATION3 ELEVATION4 SECTION MATERIALS MATERIALS WOOD METAL SECTION ELEVATION SECTION MATERIALS WOOD STEEL ISOMETRIC PLANT
03 FUNDACIÓN WAYBE SIGNAGE HALLWAY TO CLASSES
RECEPTION
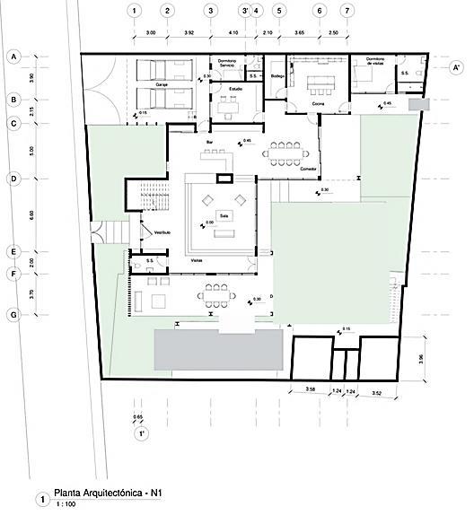
04 RESICENCIA ARGUETA

RESIDENCE LOCATED IN IPALA, CHIQUIMULA, A 3 LEVEL PROJECT, PLACES THE SOCIAL AREAS ON THE 1ST LEVEL, THE ROOMS ON THE 2ND LEVEL AND A FAMILY RECREATIONAL SPACE ON THE 3RD LEVEL

TAKING IN TO ACCOUNT THE HOT WEATHER, WIDE AND HIGH SPACES ARE PROPOSED, AS WELL AS AN OUTDOOR SOCIAL SPACE WITH A POOL AND GARDENS

04 RESIDENCIA ARGUETA FIRST LEVEL SECOND LEVEL
THIRD LEVEL

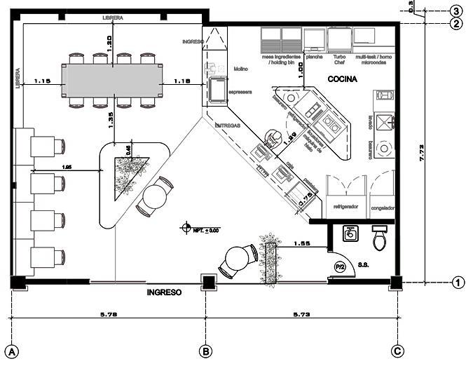
PROPOSAL FOR COMMERCIAL SHOP FOR ZONE 14, IN GUATEMALA CITY WHICH SEEKS TO GIVE THE OPPORTUNITY THE CUSTOMER WTH AN OPTION FOR A QUICK PURCHASE OR A UNIQUE STAY EXPERIENCE. IT WAS ESSENTIAL TO HAVE A WORK SPACE NEAR TO THE BOOKSTORES.

05
COFFEE SHOP
06
REMODELACIONES INTERIORES

LA HERRADURA, REDOMELATION OF ALMOST 100 % OF THE APARTMENT OF A RETIRED COUPLE, THEY REQUESTED TO KEEP SOME IMPORTANT FURNITURE AND SOME ART WORK, BASED ON THIS, CERTAIN SPACES BEGAN TO EMERGE

06 LA HERRADURA

LOBBY

THE APARTMENT HAD A SPACE OF 4 WHITE WALLS AS A PRIVATE ENTRANCE FROM THE EXIT OF THE ELEVATOR, WE TOOK UNDER CONSIDERATION THE MOST IMPORTANT SCULPTURE FOR THE COUPLE AND WE GAVE IT PROMINENCE, THE SCULPTURE RELATES THE STORY OF THE COUPLE, SO WE WANTED TO MAKE A ROMANTIC SPACE BEEING THE WALLPAPER AN IMPORTANT FEATURE, AND THE FURNITURE IS PLAIN ENOUGH FOR THE SCULPTURE TO TAKE CENTER STAGE

PROCESS RESULT

FAMILY ROOM

FOR THE FAMILY LIVING ROOM THE CLIENT REQUESTED TO KEEP THE TV CABINET AND THE PAINTINGS THAT REPRESENT THEIR CHILDREN, WE CONSIDERED BOTH FACTORS, FOR THE TV CABINET WE CONTEMPLATED THE COLOR IT HAD AND WAS REFLECTED ON THE WALLS, AND THERE WAS A WORK DONE ON THE WALLS SO THEY WOULD LOOK LIKE THEY WERE PART OF THE FURNITURE AND, IN REGARDS WITH THE DECORATION, WE INTENDED TO HIGHLIGHT THE PAINTINGS

PROCESS RESULT

06 LA HERRADURA
06 LA HERRADURA
CONOCE UN POCO MÁS

Turn static files into dynamic content formats.

Create a flipbook
Issuu converts static files into: digital portfolios, online yearbooks, online catalogs, digital photo albums and more. Sign up and create your flipbook.