TANATORIO/MEMORIAL PARK

Page 1

PORTAFOLIO

Cristian Guanoluisa

Soy estudiante de arquitectura de quinto semestre, creativo , busco aprender mas programas digitales y me agrada el trabajo colaborativo. Enfocado en el diseño arquitectonico y en la realidad actual e inducir nuevas soluciones según las necesidades de uno o un grupo determinado de personas

2023 Carrera de arquitectura/ Universidad Técnica de Ambato

2017 Bachillerato en electronica de consumo/ Unidad Educativa

Dr. TRajano Naranjo I

HABILIDADES DE INTERES

• Fotografia

• Bocetos

• Creatividad

• Trabajo en equipo

Dibujo 2D

Autocad

Diseño y postproducción

Photoshop/ Indesing/ Ilustrador

Modelado 3D

Sketchup/ Revit

Paquete Microsoft Office

Exel/ Word/Power Point

Rendering

Twinmotion/ Revit

IDIOMAS

Español

Ingles

Ingles

Español

EDUCACIÓN
SOFWARS
cv

MEMORIAL PARK

INDICE

Manifiesto - estratégias

Análisis urbano

Análisis de usuario

Narrativa visual

Proceso de diseño

Plantas arquitectónicas

Implantación

Fachadas

Cortes arquitectónicos

Corte fugado + detalles técnicos

Perspectivas exteriores y interior

Análisis de referentes

MANIFIESTO

Un paseo por el bosque resulta tonificante y sanador debido a la constante interacción de todas las modalidades sensoriales. El ojo colabora con el cuerpo y el resto de los sentidos. El sentido de la realidad de cada uno se fortalece y se articula por medio de esta interacción con el contexto. En esencia, la arquitectura es una extensión de la naturaleza en el reino artificial que facilita el terreno para la percepción y el horizonte de la experiencia y la comprensión del mundo.

Es necesario aplicar la neuroarquitectura ya que los colores influyen y condicionan el estado de ánimo de las personas, ya que los tonos cercanos a la naturaleza como verdes, azules y amarillos reducen el estrés, aumentan la sensación de confort e inciden sobre la percepción del espacio como un edificio saludable. Por otro lado, los tonos cálidos como el rojo captan la atención del receptor, por lo que se recomiendan en tareas que requieren de mayor concentración.

Contexto

ESTRATEGIAS DE DISEÑO 01

Restaurar lo tradicional

El sector donde se desarrolla el proyecto, se destaca por su variada ornamentación. Otro punto importante son las ceremonias funerarias, ya que sepultaban a sus seres queridos en ollas de barro.

Planteamiento de nodos, articulación y modulación

La generación de nodos se los comienza desde los equipamientos existentes, como es monumento a la primera imprenta y el parque infantil. De esta manera conectar con otro mirador hacia el lado oeste de la ciudad, posteriormente separa lo publico y lo semipublico, también un sendero de vegetación para articular los espacios y vistas, moduladas según las necesidades de los usuarios.

Reacción interior y exterior

Es importante aprovechar la misma topografía, como base de la forma de los módulos, garantizando una forma medianamente orgánica, simple y sencilla. Capaz de ser agradable a simple vista, diseñada para ver y ser vista desde diferentes puntos.

Interacción Objeto Sujeto
02 03

REACCIÓN DEL USUARIO

El parque del recuerdo se caracteriza por mantener una relación directa entre el sujeto y el paisaje. Este parque posee grandes prados, una gran arborización y. El parque, satura la mirada del sujeto con elementos naturales para así despertar estímulos y emociones, cuya finalidad es modificar la realidad objetiva de quienes visitan el parque, la realidad objetiva de la muerte, en relación a esto, se logra establecer un vínculo con el contexto.

El cual le atribuye al paisaje una importancia que va más allá de la mera contemplación, es decir posee un trasfondo ideológico, donde la naturaleza no es tan sólo para ser una fuente de generación de sentimientos como la admiración y el asombro ante la belleza del paisaje ,sino que también es un lugar donde se siente pleno y libre.

Donde puede reflexionar con él mismo , que en el caso del parque ocurre de igual manera, ya que el sujeto se ve inmerso en grandes explanadas de pasto y entremezclado con un paisaje natural excesivo en el cual no hay límites reconocibles ,por lo tanto podemos decir que la arquitectura del cementerio parque del recuerdo sirve para liberar al sujeto del trauma de la muerte.

La interiorización de aquel hombre, es producto de la evasión de la realidad que provoca angustia, para la cual el paisaje funciona como elemento de canalización y reflexión del sujeto.

Empleados

Son las personas encargadas del funcionamiento de la edificación planteada, ya que se requiere de personal capacitado en diferentes áreas a lo que se refiere a la arquitectura funeraria, así como también personal para la limpieza y mantenimiento de las instalaciones del edificio, mantenimiento de bosque y jardín.

FAMILIAS

Son aquellas familias que de forma directa han perdido a un ser querido. Siendo los principales implicados, ya que son el grupo que busca un espacio para velar y posteriormente optar un tratamiento para el cuerpo y de esta manera preservar la memoria del fallecido. Dichas familias buscan un espacio amplio y con un contexto natural que ayude a superar esta crisis emocional, para ello generalmente se realiza un acompañamiento con familiares y amigos del difunto, de esta manera generar una especie de despedida colectiva, en memoria del difunto.

Público

Familias,amigos, transeundes, que buscan un espacio natural, que destaque por la vegetación o e su mayoría por elementos naturales, ya que desean un espacio tranquilo y acogedor para salir de caminata o de paseo en grupos o solos, quizá un paseo en un bosque ya que un paseo por el bosque resulta tonificante y sanador debido a la constante interacción de todas las modalidades sensoriales. El ojo colabora con el cuerpo y el resto de los sentidos. El sentido de la realidad de cada uno se fortalece y se articula por medio de esta interacción con el contexto

ANALISIS DE USUARIO

EQUIPAMIENTO

Monumento a la primera imprenta

CALLE PRINCIPAL

Monumento a la primera imprenta

Estadio de Pinllo

Comité de la FFF

Residencias

Parque

Raymundo salazar La idea Predio Parque infantil
ANÁLISIS DEL ENTORNO
ESCALA 1:1200
Av. Raymundo salazar Pasaje La idea
1:400
Corta A-Á
ESCALA

PROGRAMA ARQUITECTÓNICO DIAGRAMAS

recepción 12 M2 estacionamiento 80 M2 sala de descanso 1 40 M2 baños 25 M2 tanotopraxia 20 M2 capilla 25 M2 Sala de descanso 2 30 M2 recepción 12 M2 mirador 200 M2 cafetria 80 M2 baños 20 M2 cocina 30 M2 terraza 30 M2 terraza 30 M2
Salas De velaciones
tanatorio MIRADOR CAFETERIA jardín Bosque jardín jardín Bosque PRIMERA IMPRENTA salas de velacion 80 M2 LA IDEA LA
RECIBIDOR

El parque del recuerdo se caracteriza por mantener una relación directa entre el sujeto y el paisaje, el presente proyecto posee grandes prados, vistas hacia la ciudad de Ambato, y como telón de fondo el volcán Tungurahua. El parque, satura la mirada del sujeto con elementos naturales para así despertar estímulos y emociones, cuya finalidad es modificar la realidad objetiva de quienes visitan el parque, la realidad objetiva de la muerte, en relación a esto, se logra establecer un vínculo con el romanticismo el cual le atribuye al paisaje una importancia que va más allá de la mera contemplación.

CONCEPTO
1. Mirador 2. Cafeteria 3. Tanatorio
3
4. Salas de velación Circulación directaCirculacion indirecta
Jardín Bosque del recuerdo
Ingreso peatonal
Ingreso peatonal Bosque del recuerdo
Circulación peatonal
Escalonado de módulos
Vistas Hacia La Ciudad

El proceso empieza con llenos y vacios delimitados por una malla regular que separa lo publico y lo privado, de esta manra plantear 4 modulos según la analogia del ciclo de la vida, asi como tambien jerarquizar los modulos según lo planteado.

Las personas pueden persivir dos elementos naturales a simple vista como es le cielo y la tierra, existiendo una analogía entre los vivos y los muertos, este tipo de creencia a persistido durante mucho tiempo y concervandose en la actualidad. La idealización de la forma nace a partir de esta analogía, creando un volumen con dos direcciones que haga énfasis en el cielo y la tierra, siendo un camino evidente de la unión entre estos dos elementos.

Ciclo de la vida
Volumetria Final
Asoleamiento y vientos
CONCEPTUALIZACIÓN GEOMÉTRICA

Dentro del área de trabajo, existe una gran variedad de especies vegetales, y estos se caracterizan ya sea por su color, tamaño, aroma y otros aspectos mas. Por ello se plantea sembrar las mismas plantas nativas del sitio. De esta manera conservar dicha vegetación, la mismas que es y sera identificada por las personas del mismo lugar. Con la finalidad de general jardines y bosque dentro del predio, de tal manera que los usuarios disfruten el ver y percibir el aroma propio de estos elementos vegetales.

Begonias

Laurel flor

Es un árbol perenne de entre 5-10 m de altura, que presenta tron co recto recubierto de corteza gris y una densa copa compuesta por ramas rectilíneas recubiertas por hojas de un verde muy oscuro.

Verbena

Las hojas son aromáticas, simples, alternas, lanceoladas, muy correosas, puntiagudas y con el borde ondulado. Miden entre 3-9 cm, uniéndose al tronco por un resistente peciolo de escaso tamaño. La cara es de color verde oscuro, con un aspecto brillante, mientras el envés presenta un tono más pálido.

Helechos congantes

Guayacan

Amarilis

Plantas nativas

Laurel flor

Cupressaceae

Cesped ray gras

Guayacan

Cucarda

Genario novio

Es un arbusto de 2 a 5 m de altura, presenta ramas gruesas y torcidas desde la base, con un diámetro del tronco de hasta 20 cm., de copa densa, apretada, perennifolio. Sus flores son pequeñas y violáceas. Sus frutos son cápsulas moradas, tiene numerosas semillas

Begonias

Las begonias transmiten paciencia, nobleza y delicadeza. Son una variedad de begonia que presenta un tallo muy largo y son un poco leñosas. Pueden llegar a alcanzar dos metros de altura si las cuidas correctamente. Las flores que suelen aparecer en las begonias arbustivas son rojas y pueden perdurar todo el año desde su crecimiento.

Alstroemerias

Verbena

Hemercocalis

Flores propuestas

Hierba siempre verde, aromática, de (60) 80 - 150 cm de altura, erecta, lisa; tallo cuadrangular, a veces con ángulos ásperos. Hojas opuestas, enteras, oblongo-lanceoladas, base atenuada, márgenes aserrados, de 4-11 cm de largo por 0,5 - 1,5 cm de ancho, las superiores generalmente enteras. Inflorescencia con espigas cilíndricas, primero cortas y luego muy largas, de 1,5 - 10 cm de largo por 4 mm de diámetro. Flores de 3 - 3,5 mm de longitud, violáceo-pálido. Fruto seco, protegido por el cáliz, al madurar se disgrega en 4 pequeñas nueces lineales, rojizo-obscuras, de 1,52 mm de longitud.

PROPUESTA
VEGETACIÓN
ABAJO Ingreso Atencion al cliente Sala de espera Caja de gradas CORTE A Vacio Baño oficina Baño público Sala de espera Contabilidad Salida Entrada A B C D E 3 2 1 4 5 6 7 I H G F CORTE B
RaimundoDeZalazar ABAJO Estacionamiento N+/- 0.25 N+/- 0.25 N+/- 0.25 N+/- 0.20 N+/- 0.25 N+/- 0.00 ESCALA 1:200 PLANTA 1 N: 0.00
Raimundo De Zalazar
ARRIBA Sala de tanopraxia Crematorio Oficina del forense Sala de espera Vacio Vacio Area de equipamiento A B C D E 3 2 1 CORTE A CORTE B Caja de gradas N:- 3.00 N:- 3.00 N:- 3.00 N:- 3.00 N:- 3.00 N:- 3.00 ESCALA 1:200 PLANTA 2 N: -3.00
ARRIBA A B C D 3 10 Caja de gradas Cuarto de máquinas Vestibulo CORTE A CORTE B N:- 6.00 N:- 6.00 N:- 6.00 ARRIBA Sala de tanopraxia Crematorio Oficina del forense Sala de espera Vacio Vacio Area de equipamiento A B C D E 3 2 1 CORTE A CORTE B Caja de gradas N:- 3.00 N:- 3.00 N:- 3.00 N:- 3.00 N:- 3.00 N:- 3.00 ESCALA 1:200 PLANTA 3 N: -600
ARRIBA Pasillo y mural con nombres B C D 3 2 1 J K M 8 10 9 L Jardin Caja de gradas Capilla Area de sillas Area de sillas SS.MM SS.HH O ABAJO CORTE A CORTE B N:- 9.00 N:- 9.00 N:- 9.00 N:- 9.00 N:- 9.00 ESCALA 1:200 PLANTA 4 N: -9.00
Cafetería Areas de mesas A B C D J K M Jardín 8 10 9 L SS.MM C.M SS.HH CORTE A CORTE B N+/- 12.00 Caja de gradas N:- 12.00 N:- 12.00 N:- 12.00 N:- 12.00 ESCALA 1:200 PLANTA 5 N: -12.00
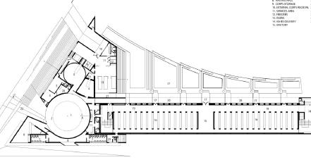
venta de flores Venta de urnas Patio central Jardinera Sala de velación 1 Cuarto de descanso 2 Cuarto de descanso 1 SS.MM SS.HH Sala de descanso 1 A B C D 2 1 J K M 8 10 9 L Ingreso Ingreso N O P Q 15 14 13 12 11 C.M CORTE A CORTE B LaIdea N+/- 15.00 Caja de gradas N:- 15.00 N:- 15.00 N:- 15.00 N:- 15.00 N:- 15.00 N:- 15.00 N:15.00 N:15.00 N:15.00 N:- 15.00 ESCALA 1:200 PLANTA 6 N: -15.00
Cuarto 2 Cuarto 1 Sala de velación 2 SS.MM SS.HH N O P Q 15 14 13 12 11 Sala de descanso 2 Jardinera CORTE B CORTE A LaIdea N:- 18.00 N:- 18.00 N:- 18.00 N:18.00 N:18.00 ESCALA 1:200 PLANTA 7 N: -18.00
N O P Q 15 14 13 12 11 Ingreso Pasillo R S 18 19 20 T CORTE B CORTE A LaIdea Jardín N:- 21.00 N:- 21.00 N:- 21.00 ESCALA 1:200 PLANTA 8 N: -21.00
Sala 2 Sala 3 R S 18 19 20 CORTE B CORTE A LaIdea N:- 24.00 N:- 24.00 ESCALA 1:200 PLANTA 9 N: -24.00
R S 18 19 20 Ingreso CORTE B CORTE A LaIdea Sala de despedida N:- 24.00 N:- 24.00 ESCALA 1:200 PLANTA10 N: -27.00
ABAJO A B C D E 3 2 1 4 5 6 7 I H G F J K M 8 10 9 L N O P Q 15 14 13 12 11 R S 18 19 20 T 1 CORTE B-B' N12.00 Bloque D N9.00 Bloque C N+ 4.00 Bloque B N21.00 Bloque E N+ 4.00 Bloque A Raimundo De Zalazar LaIdea 1 CORTE A-A' ESCALA 1:300 IMPLANTACIÓN
ESCALA 1:200 ALZADO SUR
ESCALA 1:200 ALZADO ESTE
Nivel 0.00 77.80 Nivel -3 74.80 Nivel -9. 68.80 Nivel -12... 65.80 Nivel -15... 62.80 Nivel -18... 59.80 Nivel -21... 56.80 Nivel -24... 53.80 Nivel -27... 50.80 Nivel + 4 80.80 Nivel -6 71.80 A B C D E J N O P Q R ESCALA 1:200 CORTE A-A’
Nivel 0.00 77.80 Nivel -9. 68.80 Nivel -12... 65.80 Nivel -15... 62.80 Nivel -18... 59.80 Nivel -21... 56.80 Nivel -24... 53.80 Nivel -27... 50.80 Nivel -30... 47.80 Nivel + 4 80.80 Nivel + 5 44.80 A B C D E F J M L O P Q R S T ESCALA 1:200 CORTE B-B’
CORTE FUGADO 1 ESCALA 1:200
Vista 3D 8 1 ESCALA 1:200 CORTE FUGADO 2
DETALLES 0.20 0.25 0.10 1.30 1.85 MURO EN VOLADIZO 0.10 0.35 TIPO V 0.20 0.25 0.10 1.45 2.00 0.10 0.35 3.80 0.30 0.20 Ø 1/2"@0.20 Ø 1/2"@0.20 Ø 3/8"@0.20 1.27 1.27 1.27 Ø 1/2"@0.20 Ø 3/8"@0.15 Ø 3/8"@0.15 Ø 3/8"@0.30 Ø 1/2"@0.30 TIPO I L=1.50 PANTALLA ANTERIOR 0.05 PUNTA TALON TUBO PVC -SAP 2" C/ 4.0 mts 0.10 MATERIAL DE RELLENO COMPACTADO CADA 30 cm 0.25 TIPO II Ver Detalle Anclaje de Baranda Baranda Metalica Ø 2" 0.95 FILTRO DE MATERIAL GRANULAR DE 1/4" a 1/2" 0.20 Baranda Metalica Ø 2" 0.95 N. RASANTE material de relleno granular de 1/4" a 1/2" TUBO DE F° G° Ø 2 " DETALLE DE ANCLAJE DE BARANDA 0.05 0.05 ANCLAJE SOLDADO AL REFUERZO VERTICAL DEL MURO EN MURO DE C° A° TUBO DE F° G° Ø 2 " DETALLE DE ANCLAJE DE BARANDA 0.05 0.05 A GANCHO DE ACERO Ø 1/2" ANCLAJE SOLDADO EN MURO DE C° C° 0.05 DETALLE DE ANCLAJE DE BARANDA EN MURO DETALLE DE ANCLAJE EN BARANDA DETALLE DE CIMENTACIÓN PLANTA ESTERIOR ESCALA 1:100 ESCALA 1:100 ESCALA 1:50 ESCALA 1:50 ESCALA 1:50 DETALLE MURO DE CONTENCIÓN

DETALLE

CORTINA

MURO
DETALLE UNIÓN PERFIL-LOSA DETALLE ENTRAMADO DE PERFILES DETALLE PERFIL DE FIJACIÓN A A DETALLE UNIÓN PERFIL-LOSA H02 H04 1 Vertical Mullion Horizontal Mullion Double Glazing Tempered and Laminated White Plaster Stone Cladding Sand 0.06 PC 0.10 Interlocking Pavement 0.04 Mortar ESCALA 1:100 ESCALA 1:50 ESCALA 1:50 ESCALA 1:50
DETALLE TERRAZA VERDE DETALLE CAPAS NATURALES DETALLE CAPAS AISLANTES 0.186 0.027 0.010 0.100 0.262 0.038 0.010 0.100 Tepe o rollo de cesped Capa de drenaje Capa impermeabilizante antiraiz Losa de concreto Capa de drenaje Arbustos pequeños Capa de drenaje Sustrato mineral para drenaje Losa de concreto Capa de drenaje 0.186 0.027 0.010 0.100 0.262 0.038 0.010 0.100 Tepe o rollo de cesped Capa de drenaje Capa impermeabilizante antiraiz Losa de concreto Capa de drenaje Arbustos pequeños Capa de drenaje Sustrato mineral para drenaje Losa de concreto Capa de drenaje 0.186 0.027 0.010 0.100 0.262 0.038 0.010 0.100 Tepe
Capa de drenaje Capa impermeabilizante antiraiz Losa de concreto Capa de drenaje Arbustos pequeños Capa de drenaje Sustrato mineral para drenaje Losa de concreto Capa de drenaje ESCALA 1:50 ESCALA 1:50 ESCALA 1:50
o rollo de cesped

PERSPECTIVAS EXTERIORES

PERSPECTIVAS INTERIORES

Templo de Las Cenizas y Crematorio / Juan Felipe Uribe de Bedout + Mauricio

Gaviria + Hector Mejía

TEMPLO MEDELLIN, COLOMBIA

Arquitectos: Hector Mejía, Juan Felipe Uribe de Bedout, Mauricio Gaviria; Juan Felipe Uribe de Bedout, Mauricio Gaviria, Hector Mejía

Área : 3474 m²

Año : 1998

El proyecto consta de dos componentes claramente identificables entre sí, la Unidad de Cremación localizada al frente del atrio de la capilla existente, y el Templo de las Cenizas, edificio lineal que cruza el terreno en sentido longitudinal.

La planta del edificio obedece a condiciones del lugar muy marcadas como: la geometría de la capilla y el atrio, el borde del lote con su marcada topografía y la hilera de árboles y las salas de velación existentes.

La volumetría asume una postura escultórica donde predomina la masa, logrando una imagen de un gran bloque esculpido en donde no tiene cabida la ornamentación.

Guarda esta imagen en tus favoritos

En su interior la materia prima del espacio es la luz, que casi en su totalidad entra al edificio cenitalmente. Para resaltar los efectos de la luz se utilizaron materiales opacos y de textura natural como la piedra amarilla, la madera y el acero oxidado.

Primer
referente

SI NO SIMBOLOGIA

El proyecto tiene un espacio que funcione como vestíbulo en el acceso principal? x

Existen espacios para la transición entre exterior e interior? x

Las circulaciones son cortas y directas? x

Existe continuidad en las circulaciones ? x

¿El tamaño, proporción y forma de los espacios tiene relación con su uso? x

¿Los espacios se organizan jerárquicamente? x

¿La estructura está modulada? x

¿Las zonas húmedas están agrupadas adecuadamente de acuerdo a la escala y tipo de proyecto? x

¿Los espacios tienen iluminación y ventilación natural de acuerdo a su uso? x

¿El proyecto aprovecha las mejores visuales del lugar y/o evita las visuales negativas? x

¿El proyecto aprovecha el soleamiento en cuanto a su uso? x

¿El proyecto aprovecha las mejores visuales del lugar y/o evita las visuales negativas? x

¿El proyecto considera el contexto (construido o natural)? x

¿La volumetría es clara y comprensible? x

¿El aspecto del proyecto es coherente con su uso? x

¿Existe una disposición adecuada de los elementos que conforman las fachadas del proyecto (carpinterías, muros, losas, columnas, vigas, etc x

SI NO SIMBOLOGIA

¿Los espacios planteados son todos los necesarios para el uso del proyecto? x

¿Los espacios interiores tienen una correcta relación con las zonas exteriores y el contexto? x

¿Existe coherencia entre la estructura y la función del proyecto? x

¿La estructura permite potenciar las características expresivas del proyecto? x

¿La cantidad de materiales y elementos constructivos se justifica? x

¿El proyecto contribuye positivamente al desarrollo de la sociedad?

El presente proyecto tiene una particularidad muy inusual como aportación positiva para la ciudad en la cual esta desarrollada, ya que la ubicación esta un tanto alejado del centro de la ciudad, pero se encuentra en un contexto natural, que ayuda a la parte emocional de las familias cuando se ha perdido a un ser querido. El proyecto consta de dos componentes claramente identificables entre sí, la Unidad de Cremación y el Templo de las Cenizas, de esta manera aportando a un ahorro de espacio y evitar el colapso de los actuales campos santos.

¿En la propuesta se consideran usos, materiales o técnicas que ponen en valor las características del lugar?

Este tipo de proyecto toma muy en cuenta la tradición y materiales propios del lugar ya que existe una gran variedad de materiales, capaces de satisfacer las características, térmicas, acústicas. En su interior la materia prima del espacio es la luz, que casi en su totalidad entra al edificio. Para resaltar los efectos de la luz se utilizaron materiales opacos y de textura natural como la piedra amarilla, la madera y el acero oxidado.

¿El proyecto alcanza un valor simbólico reconocible?

De cierta manera se podría decir que si, ya que toma muy en cuenta las formas básicas que se han heredado de sus antiguas culturas. Tomando como referencia las antiguas formas de tumbas, esto se lo aprecia en el gran atrio, que representa el camino hacia la luz divina.

¿La elección de materiales y el trabajo con preexistencias optimizan el presupuesto del proyecto?

Según el análisis del referente, de cierta manera se ha optimizado una gran cantidad de recurso ya que en su mayoría el edificación esta construida con materiales propios del lugar, así como también la mano de obra, personas con conocimientos y técnicas ancestrales propias del lugar. ¿El proyecto es sostenible y responsable con el medioambiente?

El proyecto esta pensado y diseñado con ciertos sistemas que permiten el ahorro de energía, como es el caso de la luz natural, ya que gracias a la doble altura y los tragaluces en el techo,permiten una iluminación natural durante todo el día. Otro aspecto importante es la área vegetal que esta en el entorno del proyecto, plantas nativas del lugar que aporta en la compasión del proyecto así como también al ecosistema.

SI NO SIMBOLOGIA

CREMATORIO-AMIENS, FRANCIA

Arquitectos: PLAN01

Área : 1285 m²

Año : 2015

Fotografías :Takuji Shimmura

Proveedores : Nuprotec

Productos utilizados en esta Obra

Un proyecto que implica al arquitecto en las zonas más sensibles y ricas del proceso arquitectónico. Estas son áreas que ayudan a transmitir el significado ético de la disciplina. Pocos proyectos implican tanta emoción y expresan tal riqueza humana y cultural. Sin embargo también hay los mismos obstáculos y riesgos que, una vez superados, permiten que la vida aparezca en todo su esplendor.

Su capacidad para crear un ambiente que entregue una experiencia digna y serena durante uno de los momentos más temidos de nuestra existencia - la pérdida de un ser querido - y, lo que es más, durante uno de los momentos más tangibles y extremos, cuando el cuerpo de la persona fallecida es incinerado.

La posición central de la persona fallecida. El círculo como símbolo universal y a temporal. Espiritualidad secular. La eliminación de las referencias a la vida cotidiana. La fluidez y la diversidad del camino. Integrarse en el paisaje. Esconder elementos técnicos, en particular la chimenea. Específica del sitio ha dado lugar a un espacio hueco que resuena con su entorno, una disposición que permite gran flexibilidad gracias a sus combinaciones cercanas y lejanas y su gama de escalas y texturas. Una dinámica fluida y calmada, una definición flexible de un espacio sensible y considerado. Una respuesta serena y ligera, la interdependencia entre el sitio y el proyecto, que se demuestra a través de la relación armoniosa entre la vegetación y el edificio.

Crematorio en Amiens / PLAN 01
Segundo referente

SI NO SIMBOLOGIA

El proyecto tiene un espacio que funcione como vestíbulo en el acceso principal? x

Existen espacios para la transición entre exterior e interior? x

Las circulaciones son cortas y directas? x

Existe continuidad en las circulaciones ? x

¿El tamaño, proporción y forma de los espacios tiene relación con su uso? x

¿Los espacios se organizan jerárquicamente? x

¿La estructura está modulada? x

¿Las zonas húmedas están agrupadas adecuadamente de acuerdo a la escala y tipo de proyecto? x

¿Los espacios tienen iluminación y ventilación natural de acuerdo a su uso? x

¿El proyecto aprovecha las mejores visuales del lugar y/o evita las visuales negativas? x

¿El proyecto aprovecha el soleamiento en cuanto a su uso? x

¿El proyecto aprovecha las mejores visuales del lugar y/o evita las visuales negativas? x

¿El proyecto considera el contexto (construido o natural)? x

¿La volumetría es clara y comprensible? x

¿El aspecto del proyecto es coherente con su uso? x

¿Existe una disposición adecuada de los elementos que conforman las fachadas del proyecto (carpinterías, muros, losas, columnas, vigas, etc x

SI NO SIMBOLOGIA

¿Los espacios planteados son todos los necesarios para el uso del proyecto? x

¿Los espacios interiores tienen una correcta relación con las zonas exteriores y el contexto? x

¿Existe coherencia entre la estructura y la función del proyecto? x

¿La estructura permite potenciar las características expresivas del proyecto? x

¿La cantidad de materiales y elementos constructivos se justifica? x

¿El proyecto contribuye positivamente al desarrollo de la sociedad?

El proyecto se enfoca en el plantear zonas más sensibles y ricas del proceso arquitectónico. Estas son áreas que ayudan a transmitir el significado de un equipamiento funerario, ya que implican tanta emoción y expresan tal riqueza humana y cultural.

De esta manera influyendo a la comunidad de tener un espacio acogedor y amplio para despedir al ser querido, así como también atribuye con fuentes de empleo y para los comercios aledaños al proyecto

¿El proyecto alcanza un valor simbólico reconocible?

A simple vista el proyecto no representa su funcional, podría pertenecer a otro tipo de equipamiento pero no uno de equipamiento funerario, el objetivo de este proyecto era camiar ese concepto de espacios cerrados y siempre una cruz, como símbolo de los católicos, por ello se ha cambiado esta perspectiva y da paso a una nueva evolución a la arquitectura funeraria.

¿El proyecto es sostenible y responsable con el medioambiente?

Se destaca por temas como el ahorro de energía, como es el caso de la luz natural, ya que gracias a la doble altura y los tragaluces en el techo,permiten una iluminación natural durante todo el día.

Una respuesta serena y ligera, la interdependencia entre el sitio y el proyecto, que se demuestra a través de la relación armoniosa entre la vegetación y el edificio, con plantas nativas del lugar que aporta en la compasión del proyecto así como también al ecosistema.

¿En la propuesta se consideran usos, materiales o técnicas que ponen en valor las características del lugar?

Existe una tradición propia del lugar, así como también el uso de materiales propios del lugar ya que existe una gran variedad de materiales, que se destacan por ser capaces de satisfacer las condiciones térmicas, acústicas y aparte de ello brinda un acabado nítido y sencillos.

Cabe destacar que también maneja muy bien el degradado de este material propio, así como también generan un equilibrio con la vegetación propia del lugar, de esta formar generando un entorno sostenible

¿La elección de materiales y el trabajo con preexistencias optimizan el presupuesto del proyecto?

De cierta manera se ha optimizado una gran cantidad de recurso ya que en su mayoría el edificación esta construida con materiales propios del lugar, así como también la mano de obra, personas con conocimientos y técnicas ancestrales propias del lugar.

SI NO SIMBOLOGIA

Turn static files into dynamic content formats.

Create a flipbook
Issuu converts static files into: digital portfolios, online yearbooks, online catalogs, digital photo albums and more. Sign up and create your flipbook.