Architect Luis Pineda - Professional Portfolio 2021

Page 1

Architect Luis Pineda professional portfolio 2018-2021

PORTFOLIO LUIS PINEDA ARCHITECT

Arquitecto graduado en la Universidad Central de Venezuela en el año 2015 y Magister en Bioclimática graduado de la Universidad de San Buenaventura Sede Medellín en el año 2018.

Desde entonces, he participado en oficinas y proyectos de arquitectura con principios bioclimáticos y sostenibles como arquitecto diseñador y arquitecto colaborador. A partir del año 2018, luego de finalizar la maestría en bioclimática comienza la etapa laboral como asesor bioclimático de grandes y pequeños proyectos arquitectónicos con visión sostenible en equipos de trabajo conformados por ingenieros y arquitectos en varias ciudades del país, para certificación e interventoría de construcción.

A continuación, se presentan los proyectos más destacados.

Architect graduated from the Universidad Central de Venezuela, 2015. Master in Bioclimatics graduated from the Universidad de San Buenaventura in Medellín, 2018.

Since then, i’ve worked in projects and architecture offices with bioclimatic principles and sostenibility as a designing and colaborator architect. Since 2018, after finishing the master in bioclimatics , begins my career as bioclimatic advisor in architectural projects with a greener and more sustainable vision of the future, with work teams involving architects and engineers in several cities of the country, for certification and construction audit.

In the following pages, the most important projects are shown.

3

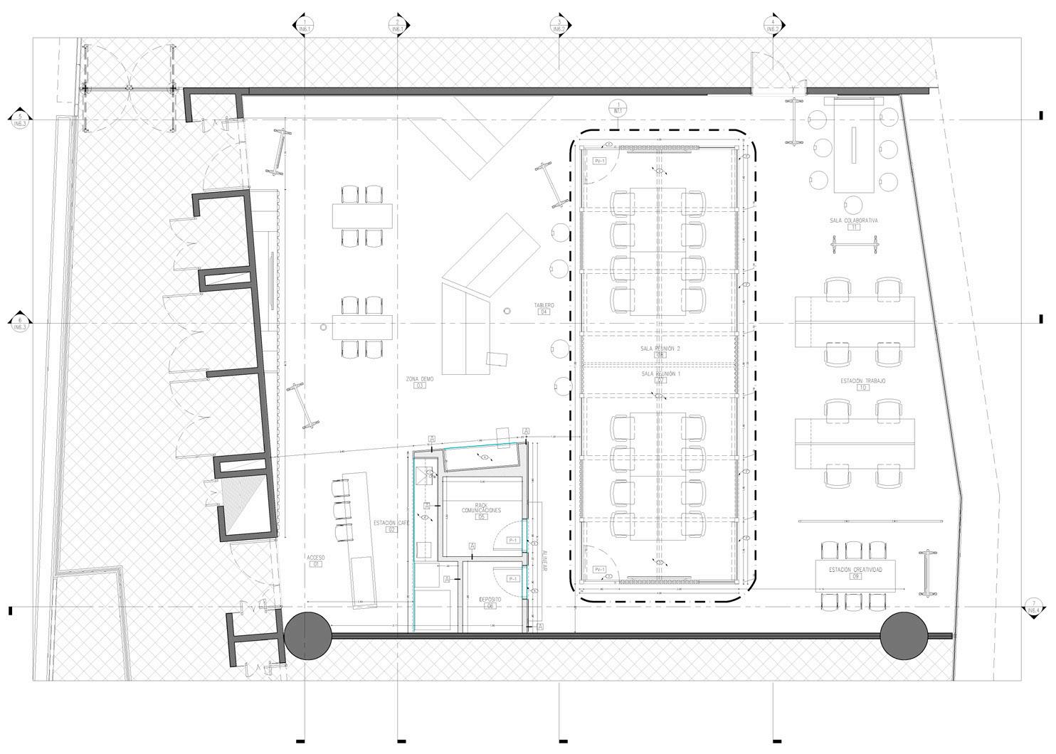
01 ACCENTURE Innovation Lab

2019 - Built Offices

2.583 ft2 Medellín, Colombia

Design and reference credits: Studio Sur

4
Floor Plan

2019 - Built Offices

81.289 ft2 Medellín, Colombia

Design and reference credits: Studio Sur

02
OFFICES Grupo Familia
5

TERRACE Grupo Familia

2019 - Built Offices

34.659 ft2 Medellín, Colombia

Design and reference credits: Studio Sur

03
6

Offices

139.930 ft2 Medellín, Colombia

Design and reference credits: Studio Sur

04
OFFICES Hub de Oficinas 2019 - Proyect
7

05

MASTER PLAN

Roccaforte Hotel

2020 - Proyect Hospitality

322.917 ft2

Rionegro, Colombia

Design and reference credits: Moncada Arquitectos

Plan 8
Site
06 MAIN BUILDING Roccaforte Hotel 2020 - Proyect Hospitality 322.917 ft2 Rionegro, Colombia Design and reference credits: Moncada Arquitectos Floor Plan 9

FITNESS CENTER Roccaforte Hotel

2020 - Proyect Hospitality

322.917 ft2

Rionegro, Colombia

Design and reference credits: Moncada Arquitectos

07
10
Section
08 BIKE SHOP Roccaforte Hotel 2020 - Proyect Hospitality 322.917 ft2 Rionegro, Colombia Design and reference credits: Moncada Arquitectos
11
Facade

GUEST HOUSE Roccaforte Hotel

2020 - Proyect Hospitality

322.917 ft2

Rionegro, Colombia

Design and reference credits: Moncada Arquitectos

09
12
10 COFFEE LAB Roccaforte Hotel 2020 - Proyect Hospitality 322.917 ft2 Rionegro, Colombia Design and reference credits: Moncada Arquitectos 13

MODULUS 1 Roccaforte Hotel

2020 - Proyect Hospitality

322.917 ft2

Rionegro, Colombia

Design and reference credits: Moncada Arquitectos

11
14
Floor Plan

Design and reference credits: Moncada Arquitectos

12
Roccaforte Hotel
MODULUS 2
2020 - Proyect Hospitality
322.917 ft2 Rionegro, Colombia
15
Floor Plan

ARRAYANES

House

2020 - Proyect

Residential

7534 ft2

Rionegro, Colombia

Design and reference credits: Moncada Arquitectos

13
16

COLNAGO FACTORY

Coffee Lab and Bike Shop

2020 - Proyect Industrial

107.639 ft2 Abu Dhabi, UAE

Design and reference credits: Moncada Arquitectos

14
17

GALICIA

Interior Design

2020 - Built Residential

1.937 ft2 Medellín, Colombia

Design and reference credits: Moncada Arquitectos

15
Floor Plan 18

2020 - Built Residential 2.368 ft2 Envigado, Colombia

Design and reference credits: Moncada Arquitectos Floor Plan

16
EPIC Interior Design
19

LNOE Headquartes

2020 - Proyect Offices

1.184 ft2 Medellín, Colombia

Design and reference credits: Moncada Arquitectos

17
Floor Plan 20

1.506 ft2 Medellín, Colombia

Design and reference credits: Moncada Arquitectos

18
PRIMORDIAL Headquarters
2020 - Proyect Offices
Floor Plan 21

COLNAGO Experience

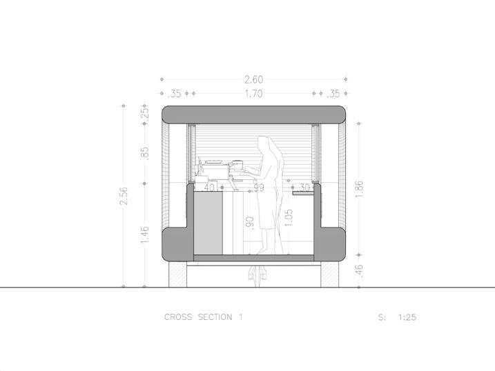
Mobile Coffee Lab

2020 - Proyect

Commercial

75 ft2

Abu Dhabi, UAE

Design and reference credits: Moncada Arquitectos

Floor Plan

19
22
Section

SBY Island Private Hotel

2020 - Proyect Hospitality

322.917 ft2 Abu Dhabi, UAE

Design and reference credits: Moncada Arquitectos

20
23

SBY Island

Private Hotel

20
24
20 SBY Island Private Hotel 25

SBY Island Private Villas

2020 - Proyect Hospitality

2.314 ft2

Abu Dhabi, UAE

Design and reference credits: Moncada Arquitectos

21
26

Disclosure: The information contained here is for general information purposes only. The subject may use copyrighted material which has not always been specifically authorized by the copyright owner. The subject is making such material available for criticism, comment, news reporting, teaching, scholarship, or research. The subject believes this constitutes a “fair use” of any such copyrighted material as provided for in section 107 of the United States Copyright law. 2023.

27
2019 - 2021 28

Turn static files into dynamic content formats.

Create a flipbook
Issuu converts static files into: digital portfolios, online yearbooks, online catalogs, digital photo albums and more. Sign up and create your flipbook.
Architect Luis Pineda - Professional Portfolio 2021 by Luis Pineda - Issuu