PORTAFOLIO ARANTXA MARTINEZ

Page 1

PORTA FOLIO.

ARANTXA MARTINEZ TRABAJOS SELECCIONADOS 2023 ARQUITECTURA ARANTXA MARTINEZ TRABAJOS SELECCIONADOS 2023 ARQUITECTURA

Trabajos seleccionados del Grado de Arquitectura en Universidad Peruana de Ciencias Aplicadas + Universidad Europea de Madrid

2020-2022 en Lima, Peru

2023 en Madrid, Spain

“Como arquitecto, diseñas para el presente con conciencia del pasado, para un futuro que es esencialmente desconocido”

2
- Norman Foster
Estados Unidos Peru Chile Panama Australia Inglaterra Marruecos Espana Francia Italia Mexico Republica Dominicana Jamaica Haiti
Distintos paises visitados a lo largo de la carrera.

"La Arquitectura es un mundo increíble, un mundo inexplicable donde la creatividad y el pensamiento crítico se unen formando piezas clave del rompecabezas que conducirá a lograr grandes cambios tanto en el ámbito urbano como personal.

Es verdaderamente fascinante lo que un arquitecto puede lograr porque estudiar arquitectura es más que hacer y diseñar proyectos, es vivirlo y sentirlo"

Educación Habilidades

2005 - 2018 Colegio en Markham College

2019 - 2021 Grado de Arquitectura en Universidad Peruana de Ciencias Aplicadas (UPC)

2022 - a la fecha Grado de Arquitectura en Universidad Europea de Madrid (UEM)

Experiencia

2019 - Director de obra - Voluntariado

2020 - Coach de tenis

2020 - Asistente de terapeuta de lenguaje - Voluntariado

Premios

2017 - 1er lugar en Informática

2018 - 1er puesto en psicología IB

2020-2022 - 1er puesto en todos los talleres de proyectos de UPC

Photoshop

Indesign

Illustrator

Sketchup

Revit

Autocad

Rhinoceros

Lumion

Certificados

2022 - Postproducción de Arquitectura

- Photoshop e Illustrator

2022 - Revit desde lo básico - Revit y

Lumion

2022 - Innovación a través del pensamiento de diseño - Universidad de Sídney

2022 - Habilidades de Excel para el negocio: Conceptos básicos - Universidad

Macquire

3

CONTENIDO

4
1 2
CENTRO CULTURAL CERRO AZUL CENTRO ASISTIDO AL ADULTO MAYOR

PEÑAFIEL WINERY -CONCURSO-

5 3 4
META TOWER

CENTRO CULTURAL 1.

UNA NUEVA VISIÓN

Arantxa Martinez

2021 - 3er año

Arquitectura urbana

Profesores:

Rafael Noboa

Rafael Vergara

Sinopsis

El objetivo de este proyecto fue regenerar Cerro Azul, que actualmente es un sitio asombroso pero que carece de intervención desde el punto de vista arquitectónico. Cuenta con una gran cantidad de recursos e historia que podrían ser utilizados y promovidos, sin embargo, no lo son. Por lo tanto, el propósito de este proyecto fue convertir a Cerro Azul en un sitio de atracción turística y local utilizando lo que ya está di

sponible en la zona, manteniendo el diseño urbano y la tipología del lugar. Este proyecto se encuentra ubicado en Cerro Azul, Cañete. Cerro Azul es conocido como un hermoso lugar de aguas a 2 horas de Lima, en el kilómetro 132 de la Carretera Panamericana Sur. Se le considera un lugar con mucha historia e identidad creada por la convergencia de tres áreas: el océano, zona agrícola y sitio arqueológico.

6
7

UBICACIÓN

[DISTRITO] CERRO AZUL [PROVINCIA] CAÑETE

[DEPARTAMENTO] LIMA [PAIS] PERÚ

8

CONCEPTOS INICIALES

Continuidad urbana

Llenos y vacíos

Espacio vinculador

9
10
MASTER PLAN
11
VISTAS 3D
12 Nivel 00
PLANIMETRÍA

CORTES

13

CENTRO ASISTIDO PARA EL ADULTO MAYOR 2.

Arantxa Martinez

2021 - 3er año

Arquitectura funcional

Profesores:

Javier Seoane

Ana Zacharias

Sinopsis

Una intervención en uno de los distritos más prósperos de Lima, Perú. Esta intervención consistió en crear un edificio triangular donde el comercio y los adultos mayores se fusionarían. El objetivo de este proyecto era diseñar un centro de vida asistida para personas de la tercera edad. Esto implicaba crear un edificio en el centro de Miraflores, un distrito de Lima, Perú. Actualmente, Lima carece de este tipo de centros, por lo que este proyecto tenía car

acterísticas que no muchos edificios en Lima poseen. Debido al alto porcentaje de turismo y a la demanda comercial en esta área, los primeros 2 pisos iban a ser exclusivamente para fines comerciales y abiertos al público en general. El objetivo de este proyecto es contar con un edificio donde los adultos mayores puedan disponer de todo tipo de instalaciones y donde también los turistas y lugareños puedan disfrutar de actividades culturales y sociales.

14
15

UBICACIÓN

[DISTRITO] MIRAFLORES

[PROVINCIA] LIMA

[DEPARTAMENTO] LIMA

[PAIS] PERÚ

16

CONCEPTOS INICIALES

Conexión con el espacio público

Sensación y percepción

17

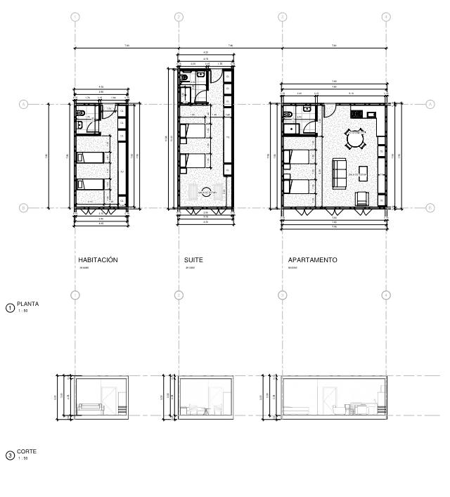
MÓDULOS DE VIVIENDAS

18

ISOMETRÍA

19
20
Nivel 00
PLANIMETRÍA

ELEVACIÓN

21 CORTE

CONCURSO FORO HYSPALIT

MANEJANDO LAS CURVAS

Arantxa Martinez

2022 - 4to año

Atmósferas y Arquitectura

Profesor: Javier Mosquera

Sinopsis

Un objetivo, un propósito y muchas rutas por seguir. La bodega “Look Under”, se encuentra en Peñafiel,Valladolid, al norte de España. A menos de 3km de la ciudad, encontramos nuestra futura bodega. El gran desafío radica en elegir la mejor ubicación después de haber analizado el verdadero proceso de una bodega.Todo este diseño se inspira en las experiencias sensoriales y emocionales creadas por los espacios. Como estos espacios se refieren a los distintos estados de animo y situaciones que son moldeadas por interacciones intersub jetivas y subjetivas con la experiencia de la

arquitectura y su naturaleza. Relacionado a la naturaleza y a las sensaciones creadas, la bodega ha sido diseñada de una manera que todos los visitantes y sus trabajadores, se sientan abrazados y en contacto con la naturaleza y la tranquilidad y paz del campo. Es por ello, que también se opto por muros curvos y continuos que simula. Finalmente, esta nueva bodega cuenta con todo tipo de sensaciones, de emociones y de representaciones de lo que es la naturaleza, lo que significa sentirse parte de ella mas no romper con la misma.

22
3.
23

UBICACIÓN

[DISTRITO] VALLADOLID [PROVINCIA] PEÑAFIEL [PAIS] ESPAÑA

24

PROCESO DE DISEÑO

25

MASTER PLAN

26

VISTAS 3D

27
28
DW 204 m LOBBY RESTAURANT 209 m KITCHEN 8 m GARBAGE ROOM STORAGE TERRACE/LOOKOUT 8 m COLD ROOM 10 m HOT ROOM 12 m ESCLUSA OFFICES 63 m SHOP 765m 760mNIV.+/NIV.+/-NIV.+/PROFESSOR: STUDENT: LOOK UNDER WINERY UNIVERSIDAD EUROPEA DE MADRID ARCHITECTURE DEGREE SCALE: ARANTXA MARTINEZ JAVIER MOSQUERA 1 : 200 GROUND FLOORNivel 00
PLANIMETRÍA
29
DETALLES

META TOWER

OFICINAS CON RESIDENCIA

Arantxa Martinez

2022 - 4to año

Neuroarquitectura

Profesor:

Jose Luis Esteban Penelas

Sinopsis

La propuesta del Meta Tower de desplaza en lo que era la antigua prision de Carabanchel. Junto con un parque, esta torre propone una nueva vision a la zona. Juega con dos torres que vincula la naturaleza con espacios recreacionales para integrar a los residentes de dicha torre.

La propuesta nace del concepto de ¨turning torso¨. Compuesto por losas giratorias que cada 2 niveles giran en un angulo de 12 grados hasta llegar a los 48 grados. Los apartamentos en ambas torres ofrecen vistas panorámicas del horizonte de la ciudad desde balcones.

continuos que rodean la fachada de vidrio. Un diseño retranqueado ayuda a proporcionar sombra a las viviendas durante el verano. El balcón continuo que rodea todo el edificio elimina las barreras verticales tradicionalmente utilizadas en la arquitectura de rascacielos. Lo que se quiso lograr con las dos torres es representar el lleno y el vacio. La torre más alta cuenta con un cerramiento de vidrio que simula la transparencia mientras que la segunda torre es de menor estatura con un cerramiento mas compacto y solido.

30
4.
31

UBICACIÓN

[DISTRITO] CARABANCHEL [PROVINCIA] MADRID [PAIS] ESPAÑA

32

CONCEPTOS BÁSICOS

Flujos continuos e interconectados

Integración con la naturaleza

33

MASTER PLAN

34

VISTAS 3D

35
36 PLANIMETRÍA Nivel 00

CORTES

37

TELF: +34 618140858

arantxam0503@gmail.com

Ig: Arqbyara 2023

ARANTXA MARTINEZ

Turn static files into dynamic content formats.

Create a flipbook
Issuu converts static files into: digital portfolios, online yearbooks, online catalogs, digital photo albums and more. Sign up and create your flipbook.