V I R I D I A N A C R U Z P O R T A F O L I O


![]()
V I R I D I A N A C R U Z P O R T A F O L I O


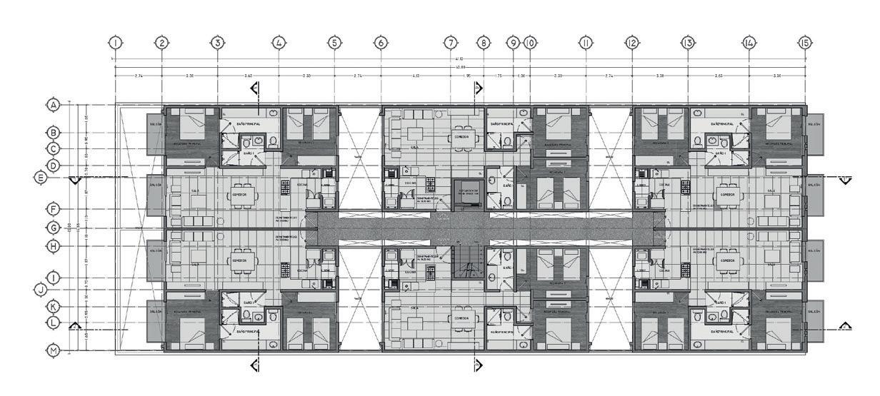
Ubicación: Tulum, Quintana Roo, México.
Tipología: Departamentos y Lofts para renta.
Estatus: Construído, en renta, 2022.
Participación: Líder de Proyecto.


Naj Tulum es un proyecto que parte de la interpretación contemporánea de la forma y espacio de La Casa Maya, con un esquema acorde a las necesidades actuales.
En esencia, la casa típica maya tiene tres zonas básicas en su conformación dedicadas a: el cuerpo, la mente y el espíritu.
Las zonas, traducidas a espacios arquitectónicos, son un conjunto de texturas, materiales y figuras reinterpretadas de la cultura maya, que dan conformación a 9 exclusivos departamentos dispuestos en 4 niveles, dentro de un conjunto que convive con la naturaleza propia del sitio.











Ubicación: Valle de Bravo, Edo Mex., México.
Tipología: Residencial, 320 m2.
Estatus: Construída y habitada, 2022. Participación: Líder de Proyecto.







ISOMÉTRICO DE MUEBLE MULTIFUNCIONAL EN SALA + MATERIALIDAD




El proyecto incorpora y explora las cualidades del entorno a través de la interacción interiorexterior, mediante el uso de formas geométricas y materiales que responden a una reinterpretación del “danish-barn” a petición de los clientes, así como al contexto físico, brindándole carácter local, siendo parte de una conformación espacial basada en la vida social y familiar de los habitantes.
Se tuvo un especial cuidado en mantener una gama cromática neutra, que permitiera ser un lienzo de las volumetrías donde el triángulo es el protagonista. Los acabados hacen referencia al estilo de la casa, teniendo gran detalle en los despieces y sus coincidencias con ejesy remates visuales.



Ubicación: Puebla, Puebla.
Tipología: Comercial.
Estatus: Construído, 2018.
Participación: Líder de Proyecto.


La Mallorquina es una cadena de restaurantes especializados en comida española típica, con sucursales en Polanco, Puebla, San Ángel, y Bosques de las Lomas.
La identidad de la marca se basa en un estilo industrial con toques tradicionales que se observan en las tabernas españolas. La materialidad es un concepto importante en el desarrollo del proyecto, pues debe reflejar el origen de la comida, así como proyectar una imagen contemporárea.
Se buscaron materiales con apariencia y naturaleza cálidos como el tabique rojo y la madera parota, y otros del tipo industrial como el acero negro presente en diferentes detalles dentro del restaurante.







Ubicación: Bosques de las Lomas, Cuajimalpa, CDMX.
Tipología: Comercial.
Estatus: Construído y en operación, 2022.





En Mallorqina Arcos Bosques, el comensal y su experiencia es la idea de partida para el funcionamiento e imagen del restaurante, por lo que no sólo se atiende el principal uso que es la degustación de platillos, también se busca deleitar la vista, olfato y oído mediante las zonificaciones estratégicas, el uso de materiales que generen calidez y recorridos intencionales que guían al comensal una experiencia completa.
Se buscó tener zonas que satisficieran a distintos públicos, los booths, por ejemplo, atraen a familias pequeñas o grupos más jóvenes de edad, por otro lado el salón se enfoca en la actividad del bar y por ende reuniones de mayor seriedad, mientras que la terraza es amable para grupos grandes y que buscan una interacción con el exterior.















Ubicación: Los Cabos, México.
Tipología: Residencial de lujo, 990 m2.
Estatus: En construcción, 2022.
Participación: Desarrollo de Proyecto.


PERSPECTIVA DE CONJUNTO
Se trata de una casa de playa localizada dentro de un fraccionamiento exclusivo en terrenos altos de Los Cabos, con vista al mar. Se trata de una propiedad pensada para ser habitada por extranjeros de origen estadounidense, por lo que los grandes espacios de distinto carácter y ubicación, así como el aprovechamiento de las vistas, fueron el principio de la conceptualización.
Dentro del conjunto hay dos cuerpos clave: en el primero predomina la horizontalidad y alberga en planta baja la zona pública (sala, comedor, cocinas y áreas de convivencia y de servicio), mientras que en el primer nivel se encuentra la zona privada, con habitaciones secundarias.
El segundo, de menor proporción, alberga solamente habitaciones principales, cuya vista y ubicación son privilegiadas.





Ubicación: Portales Nte, CDMX.
Tipología: Residencial medio, 2070 m2.
Estatus: Construído, 2017.
Participación: Desarrollo de Proyecto.




El Edificio Sevilla cuenta con múltiples departamentos, para el cual se aprovechó al máximo la profundidad del terreno, logrando pasillos amables y departamentos amplios que poseen iluminación y ventilación naturales por medio de patios intermedios.
El toque especial de este edificio fue la materialidad, pues se optó por trabajar con tabique rojo aparente para los muros y la implementación de celosías que aportan privacidad y permiten el paso de la luz, además de que aporta un ambiente cálido que contrasta con el entorno urbano.


Ubicación: Tulum, Quintana Roo, México.
Tipología: Departamentos y Lofts para renta.
Estatus: Construído, en renta, 2022. Participación: Desarrollo de Proyecto.







El Edificio Goldsmith es un proyecto que se desarrolló a partir de la exploración de una serie de volúmenes, cuyas sustracciones permitieron crear espacios de relajación, generando una experiencia interior-exterior. Además, la conformación de dichos volúmenes concibió soluciones flexibles para diferentes esquemas de viviendas, ya que se dividió la planta en cuatro cuadrantes que pueden interactuar de diferentes maneras entre sí
Debido a que en el desarrollo participaron tres inversionistas en diferentes porcentajes, fue necesario generar soluciones de departamentos que encajaran con cada una de las inversiones y, al mismo tiempo, lograr espacios confortables para los futuros usuarios.


Ubicación: Venustiano Carranza, CDMX. Tipología: Urbanismo y Arquitectura, 746 ha. Estatus: Proyecto Conceptual, 2015. Participación: Desarrollo.



1- CENTRO DE CONVENCIONES + MUSEO DE LA AERONÁUTICA (ANTERIORMENTE T1 DEL AREOPUERTO).
2- ARENA MULTIMODAL + ISLAS DEPORTIVAS.

El proyecto de Reconversión del Aeropuerto de la CDMX, fue una propuesta para un concurso organizado por la revista Arquine en 2015, cuyo objetivo principal era darle un uso al terreno del actual AICM ante su eventual cierre por la construcción del NAIM en ese momento.

La propuesta pretendió ser un regulador ambiental, predominantemente acuífero, ayudando a ser un punto de equilibrio hidrológico del Valle de México y a su vez mejorar la calidad del aire y el desarrollo de especies vegetales y animales, promoviendo el cuidado y respeto de los cuerpos de agua en nuestro país y retomar la imagen latente del México-Tenochtitlán.
El conjunto integra 4 grandes zonas circundantes al cuerpo de agua: la Zona Académica-Cultural que está integrada por lo que actualmente es la T1 y T2; la Zona Deportiva que a su vez integraría el Deportivo Oceanía con el conjunto; la Zona de Reserva Ecológica que estaría contigua a la Reserva del Lago de Texcoco; la Zona Recreativa integrada por lo que actualmente es la Alameda Oriente. CROQUIS DE CONJUNTO


Ubicación: Recinto Parlamentario en Palacio Nacional, Centro Histórico, CDMX.
Tipología: Museografía.
Estatus: Proyecto Completo para Tesina. Participación: Desarrollo de Proyecto como parte de la Especialidad en Museografía, 2015.


El proyecto museográfico propuesto para Recinto Parlamentario se planteó con la idea de provocar la asistencia y conocimiento del sitio por parte del público asiduo a Palacio Nacional con la finalidad de que pudiera ser reconocido como un espacio donde se inició la vida legislativa de nuestro país y como un sitio histórico donde se suscitaron hechos y escenas de relevancia histórica para la formación del México Independiente.
La tesis central de la exposición es: “Constitución de 1857. La lucha por nuestros derechos plasmados en papel”
lámpara tipo 1
lámpara tipo 2
lámpara tipo 3
lámpara tipo 4
lámpara tipo 5
riel suspendido


Ubicación: Recinto a Juárez en Palacio Nacional, Centro Histórico, CDMX.
Tipología: Museografía.
Estatus: Inaugurado/ Retirado, 2017.
Participación: Coordinación y Líder de Proyec-


PERSPECTIVA DE ACCESO

















SALA DE EXPOSICIONES TEMPORALES SEMBRADO DE OBRA
CÉDULAS DE OBJETO CÉDULA INTRODUCTORIA

La exposición en cuestión es de carácter histórico como el propio recinto. Se buscó tener un ambiente sobrio, donde la ausencia de color dotara de una atmósfera donde destacara el uso de los materiales expresivos del artista (principalmente carboncillos), permitiéndole contar un capítulo de la historia de México, adentrando al espectador en tintes caricaturescos y otros no tanto relacionados con Benito Juárez y su papel en el país.
La sala de exposiciones temporales es pequeña, pero de gran versatilidad y oportunidades creativas, por lo que, con elementos puntuales, reciclaje de mobiliario e ideas frescas, se le dotó de identidad y carácter para llevar al tema a una significativa exposición.



Ubicación: Recinto a Juárez en Palacio Nacional, Centro Histórico, CDMX.
Tipología: Museografía.
Estatus: Inaugurado/ Retirado, 2017-2019. Participación: Coordinación y Líder de Proyec-
SALA 1 INTRODUCCIÓN
SALA 2 “LA REFORMA ”
Sala3 JUÁREZ PRESIDENTE
SALA 4
“INTERVENCIÓN FRANCESA”
SALA 5
“VIDA FAMILIAR”





La intención del proyecto museográfico permanente, fue renovar la apariencia del recinto, dándole cualidades contemporáneas que convivieran con los valores propios de los espacios museísticos, que por su lado ya cuentan una historia de Benito Juárez, su familia y el papel que ejerció en nuestro país, revalorizando la esencia y temática de las salas.
Con un presupuesto reducido, se buscó resaltar la obra, y tener una estrecha atención al planteamiento curatorial, con el fin de tener un guion más claro y contundente que permita un mejor entendimiento y aprendizaje de los temas dentro del museo, haciéndolos de gran interés para los visitantes, pues en ocasiones la historia puede ser un tema que no provoca curiosidad.



Ubicación: Museo de Cera, Juárez, Cuauhtémoc
CDMX.
Tipología: Exhibición/ Museografía.
Estatus: Proyecto Conceptual, 2023-2024
Participación: Coordinación y desarrollo.


El concepto fue generar una atmósfera que evoque un evento de gala después de una entrega de premios, donde el atractivo radique en convivir con las estrellas que representan las figuras de cera y como público, sentirte parte del evento, contando con dos áreas relevantes:
a) La llegada y acceso al recinto/ Red carpet
b) Interior del recinto/ After party
La experiencia incluye también, crear spots visuales, que son puntos de atención para el público, fungiendo como puntos instagrameables que atraigan a los visitantes y prevean una siguiente visita, dándole también publicidad a la muestra y Museo.









Ubicación: Mazatlán, Sinaloa.
Tipología: Museografía.
Estatus: Proyecto Conceptual.
Participación: Coordinación y desarrollo.



PERSPECTIVA CONCEPTUAL PARA PROYECCIÓN A MURO

Para su concepción fue fundamental partir de la naturaleza del proyecto como espacio tanto físico y como arquitectónico, que nace de una condición topográfica particular y que es expresada a través de su forma y volumetría: una sala completamente circular y abovedada representando un recorrido continuo y natural que hace alusión a la naturaleza cíclica, idea importante dentro de la temática.
Se propone una experiencia inmersiva que parte de una correcta selección y aplicación de los materiales en forma y composición, volviendo los muros, cubiertas y pisos lienzos de proyección de ambientes que se forman a partir de imágenes de la naturaleza, puntualizando los paisajes que intervienen en el contenido. Esto se complementa con recursos indispensables (cedulario, obra física, dioramas y apoyos gráficos), cuidando siempre la fluidez y la coherencia del discurso para lograr una experiencia relevante.




Ubicaciones: México.
Tipología: Retail.
Estatus: Varios.
Participación: Desarrollo de proyectos.




PLAZA COMERCIAL: PLANTA ILUSTRADA Y VOLUMEN BAR DE HOOKAHS: VOLUMEN Y ALZADO ILUSTRADOS


Dentro de esta categoría de los proyectos de iluminación, hubo la constante de la búsqueda de potenciar las características estéticas de los espacios, promoviendo la venta según el giro (como el mercado, exhibidores de cafetería, y venta de hookas), así como la permanencia en espacios de consumo (como la cafetería o restaurante).
Para el diseño de iluminación, es importante conocer la arquitectura y finalidad de la misma, así como el presupuesto e intenciones del cliente para lograr un correcto resultado, de la mano con aspectos técnicos de las luminarias y conceptos estéticos y funcionales de los efectos de la luz.

Ubicación: CDMX, México.
Tipología: Oficinas.
Estatus: En construcción.
Participación: Conceptualización y Desarrollo de proyecto.


Como oficinas, es muy importante tener la suficiente iluminación en los espacios de trabajo, lo que permite el confort visual y al mismo tiempo resulta atractivo para el usuario, permitiendo un espacio de dinámico y útil.
Se propuso una iluminación difusa para trabajar cómodamente y no generar sombras innecesarias, no olvidando también acentos e iluminación puntual hacia los elementos necesarios.







Ubicación: Coahuila, México.
Tipología: Residential.
Estatus: On construction.
Participación: Conceptualización y Desarrollo de proyecto.









La residencia consta de espacios ortogonales, limpios y con incidencia de luz solar. Se planteó respetar la limpieza y sencillez de los espacios, destacando pasillos, pérgolas y acabados sencillos que permitan la armonía en los ambientes y una lectura lineal.
En el exterior se prestó atención a destacar árboles y vegetación, techos permeables y piscina, lo que permitirá el disfrute dentro y fuera de la casa.
