HA PORTAFLIO

Page 1

PORTAFOLIO

LIZETHLOSADA

0102
0304

Año: 2021-1

Tipo: Equipamiento

Educativo - Distrital

01
Walter Gropius

ZONIFICACIONES

AUDITORIO

AULAS

RAMPAS

RECORRIDOS

AULAMUSICA

BAÑOS

AULADESISTEMAS

LABORATORIO

Uso: Eqipamiento educativo

Localización: Br. La candelaria, Bogotá, Colombia

Área: 3.104,32 m2

01
LOCALIZACIÓN CONCEPTO
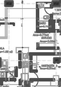
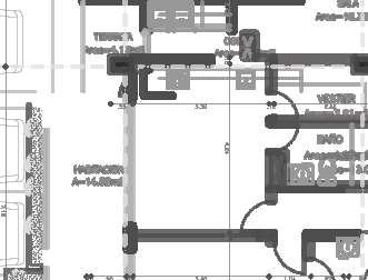
2 3 5 4 1 NF+ 14.00MT NF+ 12.55MT NF+ 8.05 MT NF+ 7.55 MT NF+ 4.55 MT NF+ 4.05 MT NF+/-0.0MT NF- 2.65MT NF- 3.30MT NF- 4.80 NF- 5.55MT               NF+ 8.05 MT NF+ 8.05 MT NF+4.55MT NF+4.55MT NF+4.55MT NF+/-0.0 MT NF- 1.70MT NF+ 12.55 MT C02 A-301 JERARQUIAPORTAMAÑO PAUTA RITMO MURO DE CONTENCIÓN 5 AULA203 BIBLIOTECA AUDITORIO NF+/-0.0 MT NF-3.40 MT NF-4.35 MT NF-2.70 MT NF+ 3.90 MT NF+ 4.40 MT NF+7.40 MT NF+ 7.90 MT NF+ 11.90 MT NF+ 12.40 MT

PETER ZUMTHOR

Año: 2021-2

Tipo: Reserva- Campamento guardabosques

02
02
LOCALIZACIÓN PLAN MAESTRO PARQUENACIONAL

CUBIERTA

CIRCULACIÓN

VACIO

PERMANENCIA

CIRCULACIÓN

MASA

MASA

CONEXION INTERIOR /EXTERIOR

VACIO

ESTRUCTURA CONEXION INTERIOR /EXTERIOR

ESTRUCTURA

VACIO

PERMANENCIA

02
SOTANOPRIMER NIVELSEGUNDO NIVELTERCER NIVEL CUBIERTA CUBIERTA
ENVOLVENTE ENVOLVENTE ENVOLVENTE MASA
NF+/-0.00MT NF--1.40MT NF-1.80MT NF+1.31MT
NF+8.00MT NF+8.10MT NF+4.10MT
1 5 4
NF+/-0.00MT
NF-0.50MT

Año: 2022-1

Tipo: Patrimonio - Equipamento Cultural

03
Martin Heidegger

COMPOSICION

03
AQULLALOCA MONTA CARGA BAÑOMXTO HAL ALMACEN ZONADEVENTA CAFETERA AREASOCA DESCUBERA ARDN CUBERTO MESABAR RECEPCÓN G F E D C B A 12 3 H   CALLE12D NF0NN0-0 N0 -0 N0 -0 N0 -0 NFCT A-009 CT A-009 PLANTAARQUITECTONCAPRIMERPISO ESC:1:100 0148m
04
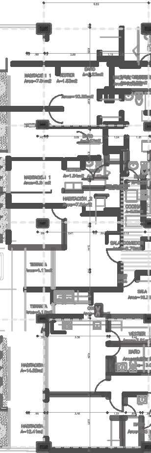
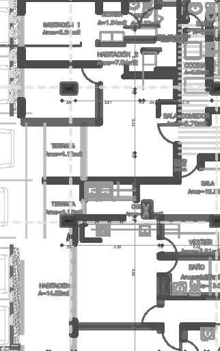
Walter Gropius Año: 2021-2 Tipo: Vivienda Multifamiliar
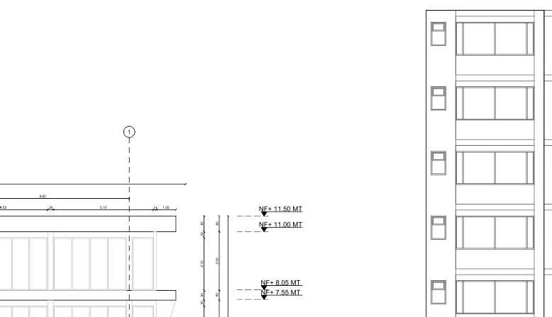
CIRCULACIÓN VEHICULAR CIRCULACIÓN VEHICULAR 1 2 3 4 5 NF-1.50MT NF+/-0.00MT NF+6.40MT NF+6.80MT NF+9.70MT NF+12.20MT NF+12.60MT NF+20.90MT NF+21.10MT NF+3.50MT NF+3.90MT NF+9.30MT NF+1.20MT NF+15.10MT NF+15.50MT NF+18.00MT NF+18.40MT                     10 CT A-007 CT A-007 PC PLANTACUBIERTA ESC:1:50 0 1 4 CT A-007
1 2 3 4 NF+-000MT NF+640MT NF+680MT NF+970MT NF+1220MT NF+1260MT NF+2090MT NF+2110MT NF+350MT NF+390MT NF+930MT NF+120MT NF+1510MT NF+1550MT NF+1800MT NF+1840MT                    F1 FACHADAFRONTAL ESC:1:50 012
CONTACTO

Turn static files into dynamic content formats.

Create a flipbook
Issuu converts static files into: digital portfolios, online yearbooks, online catalogs, digital photo albums and more. Sign up and create your flipbook.