

Contenido
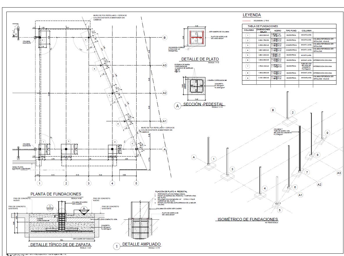
01- SE MUESTRAS VISTAS DE PLANOS CONSTRUTIVOS, PLANOS CONCEPTUALES DE RECORRIDOS DE TUBERIA, PLANOS TALLER, DESARROLLADOS EN SOFTWARE
AUTOCAD Y SOFTWARE REVIT
















PROXIMAMENTE BAJO METOLOGIA BIM

![]()

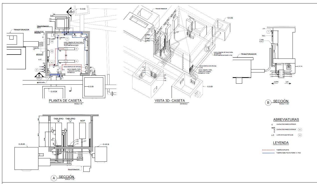
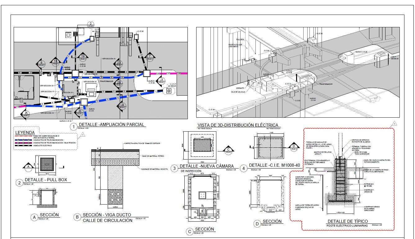
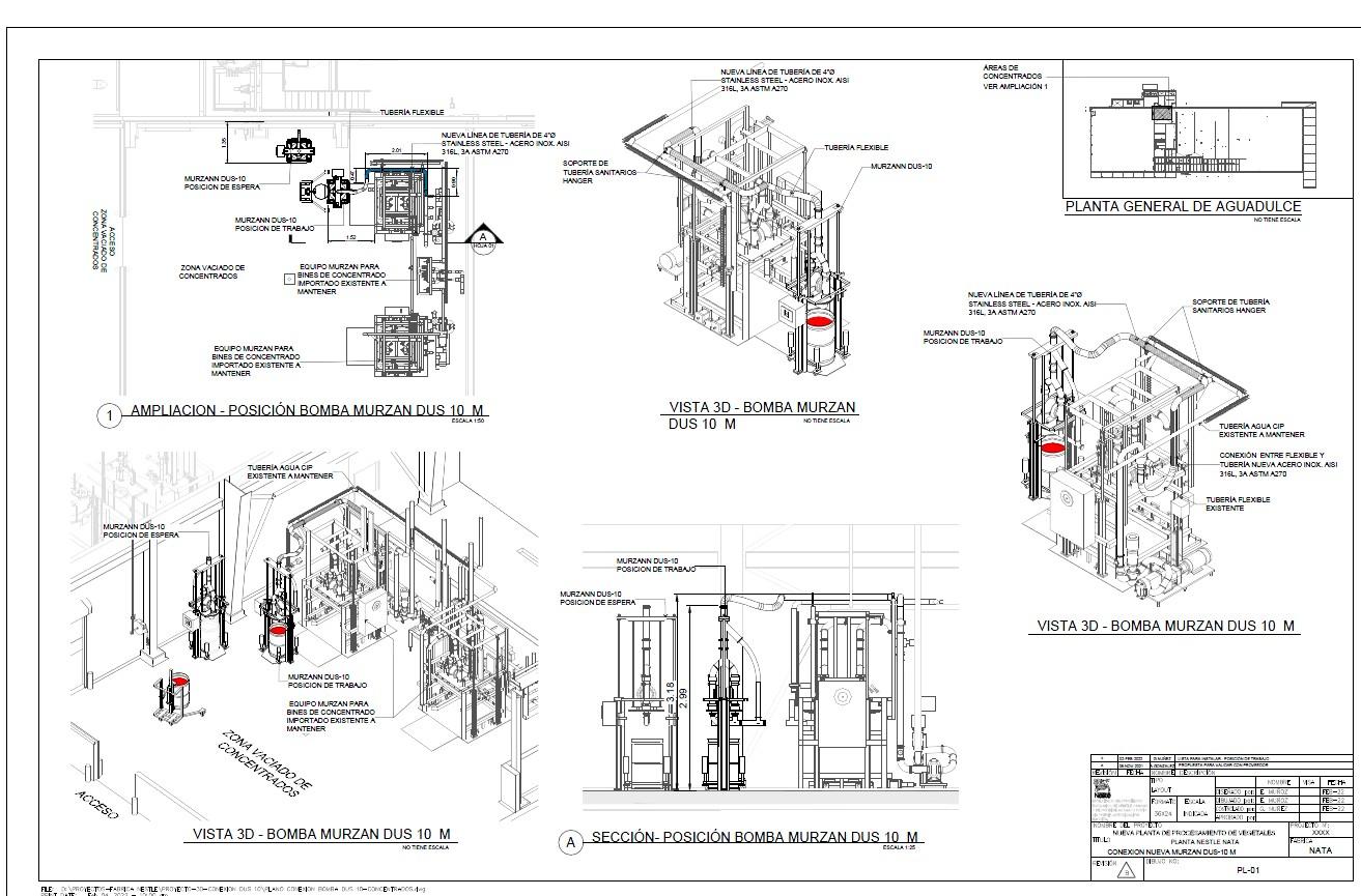
01- SE MUESTRAS VISTAS DE PLANOS CONSTRUTIVOS, PLANOS CONCEPTUALES DE RECORRIDOS DE TUBERIA, PLANOS TALLER, DESARROLLADOS EN SOFTWARE
AUTOCAD Y SOFTWARE REVIT
















PROXIMAMENTE BAJO METOLOGIA BIM
