Skip to main content

PORTAFOLIO - Arquitectura

Page 1

D I A N A M T Z. R E Y E S P O R T A F O L I O D E A R Q U I T E C T U R A
C O N T E N I D O
01 02 03 04 05 06 07 08 09 CASA DE RETIRO REMODELACION DE VIVIENDA AREA DE CONVIVENCIA EN ALAMEDA CABAÑA MODERNA VIVIENDA INTERIORISMO DE VIVIENDA LOFT VIVIENDA FAMILIAR SALON DE EVENTOS

CASA DE RETIRO

SOBRE EL PROYECTO

La propuesta arquitectónica para el predio es el diseño de casa de retiro esta ofrece servicios y asistencia a personas de la tercera edad y que brinda alojamiento u estancia, actividades, alimentación y asistencia médica con el objetivo de mejorar la calidad de vida de su vejez. Es también un espacio recreacional donde los abuelitos pueden compartir en comunidad.

FACHADAS PRINCIPALES

01 PLANTA DE ARQUITECTÓNICA

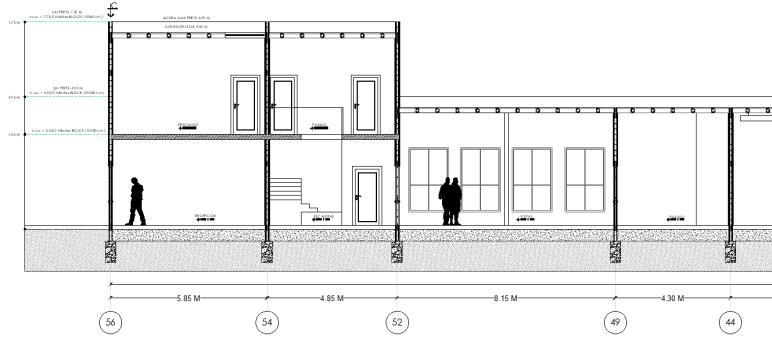
CORTES

PLANO DE CONJUNTO

REMODELACION DE VIVIENDA

SOBRE EL PROYECTO

La propuesta arquitectónica para el predio es el diseño de una remodelación de una vivienda de centro histórico tomando en cuenta las áreas en la que esta dividida en la actualidad creando una residencia mas completa.

alta) PLANTA ARQUITECTÓNICA (planta baja)

02
PLANTA ARQUITECTÓNICA (planta

AREA DE CONVIVENCIA EN ALAMEDA

SOBRE EL PROYECTO

La propuesta arquitectónica para el predio es el diseño de una cafetería con venta de alimentos también cuenta con espacios de descanso al aire libre como dentro del proyecto, baños, espacios de recreación para niños como para adultos.

PLANTA DE AREAS DE DESCANSO

PLANTA DE AREA DE JUEGOS Y BAÑOS

PLANTA ARQUITECTONICA

03

CORTE ARQUITECTONICO

PRINCIPAL
FACHADA

CABAÑA MODERNA

SOBRE EL PROYECTO

La propuesta arquitectónica para el predio es el diseño de cabaña moderna dentro del bosque.

Cuenta con sala, comedor, cocina, ½ baño y terraza, en la planta baja, cuatro recamaras, sala de convivencia, 2 baños completos en la planta alta.

PLANO ARQUITECTONICO

CORTE ARQUITECTONICO

FACHADA PRINCIPAL

22,14 10,84 A C D E G 1 2 8 6 B H
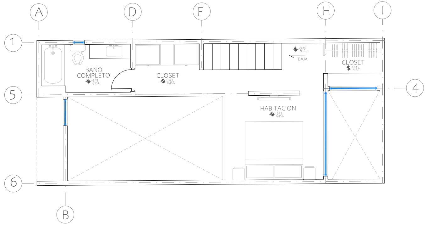
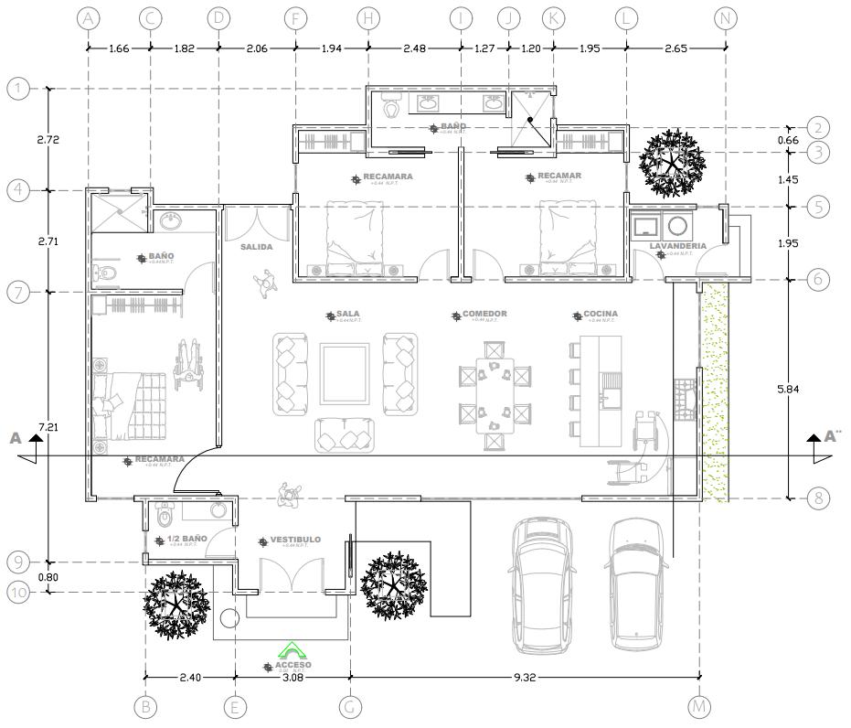
04

PLANTA ARQUITECTÓNICA (planta alta)

PLANTA ARQUITECTÓNICA (planta baja)

ACCESO HABITACION HABITACION HABITACION PASILLO PASILLO 1/2 BAÑO HABITACION SALA 1/2 BAÑO CORTE (PLANO4) CORTE (PLANO4) 20 10 9 8 7 6 5 4 3 23 22 24 25 19 18 16 14 N.P.T +0.15 N.P.T +0.15 N.P.T +0.30 N.P.T +0.30 +0.15 +0.30 M +0.45 M +0.60 M +0.75 M +0.90 M +1.05 +1.20 +1.35 +1.50 +1.65 +1.80 M +1.95 +2.10 +2.25 +2.40 M +2.55 +2.70 M +2.85 M +3.00 M SALA ACCESO COCINA COMEDOR +3.15 COCHERA CORTE (PLANO4) CORTE (PLANO 4) 20 10 21 23 22 24 25 19 18 17 16 15 14 13 12 +3.30 M +3.45M +3.60 M +3.75M

SOBRE EL PROYECTO

La propuesta arquitectónica para el predio es una vivienda para adultos mayores, adaptándose a las necesidades del usuario.

Los espacios ofrecen un gran nivel de confort atreves del espacio abierto y nivel de circulación directo sin obstáculos.

ELEVACIÓN PRINCIPAL

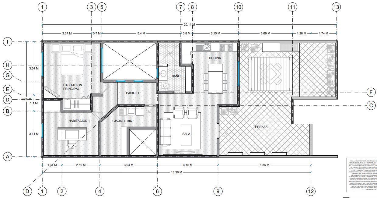
V I V I E N D A
05
PLANTA ARQUITECTÓNICA
CORTE ARQUITECTÓNICO
PLANO DE CONJUNTO

INTERIORISMO DE VIVIENDA

La propuesta arquitectónica para el predio es una remodelación de vivienda ubicada en un segundo piso.

Tomando en cuenta los requerimientos del cliente tanto gustos, espacios, comodidad.

La vivienda se adapto a lo ya construido cambiando algunos espacios.

PLANTA ARQUITECTÓNICA (ACTUAL)

PLANTA ARQUITECTÓNICA (INTERVENIDA)

SOBRE EL PROYECTO
06
PLANTA ARQUITECTÓNICA

SOBRE EL PROYECTO

La propuesta arquitectónica para el predio es el diseño de un loft pensado para una persona o una pareja.

Este proyecto cuenta en la planta baja con sala comedor cocina, lavanderia, ½ baño, jardín en cuanto a la planta alta cuenta con recamara, closet y baño completo.

PLANTA ARQUITECTÓNICA

PLANTA ARQUITECTÓNICA

LOFT
07
FACHADA
PLANTA BAJA PLANTA ALTA CORTE ARQUITECTÓNICO

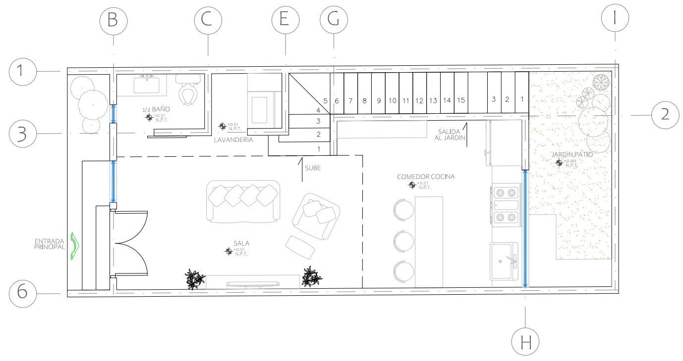
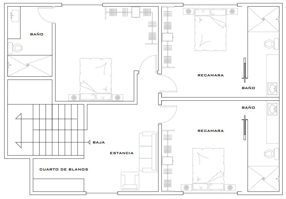
VIVIENDA FAMILIAR

SOBRE EL PROYECTO

La propuesta arquitectónica para el predio es el diseño de una vivienda.

Cuenta en planta baja sala, comedor, cocina, lavanderia y medio baño.

Planta alta recamara principal, dos recamaras, estancia y cuarto de blancos.

PLANTAS ARQUITECTÓNICAS

08
PLANTA BAJA PLANTA ALTA

SALON PARA EVENTOS

SOBRE EL PROYECTO

La propuesta arquitectónica para el predio es el diseño de un salón para eventos con capacidad de 120 persona.

Cuenta con cocineta, baños, estacionamiento subterráneo, cuenta con áreas comunes como son el cine, terraza.

PLANTA ARQUITECTÓNICA

CORTE ARQUITECTÓNICO

FACHADA PRINCIPAL

09

Turn static files into dynamic content formats.

Create a flipbook