Architecture Portfolio

Page 1

HOSPITAL MATERNIDA D: AMPLIACION
ROLDA:: VIVIENDA UNIFAMILIAR
C
03 04 05
HO R N ITOS:
OLEGIO ARTES
s
s
D D DORMITORIO "' 8 ,,,. 8 "º
TERRAZA ESTAR
1____________________________ ___________________________..f"<'!'""'Í'......pb',I----------------1t====----="'-,.---""'-----,,J!_
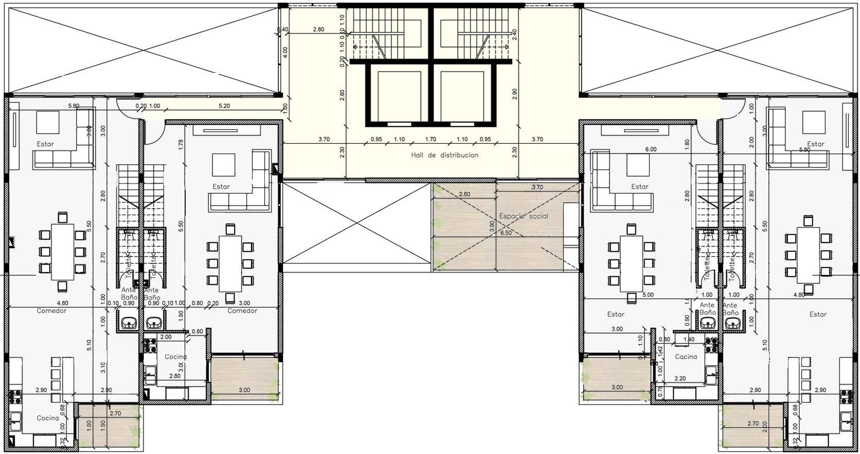
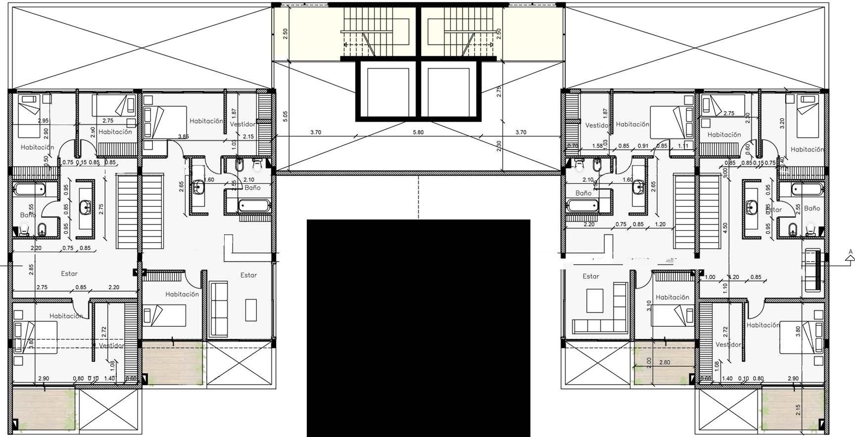
PLANTA ALTA TIPO PLANTA BAJA TIPO
da
da
a
a

HORNITOS: Colt

!gio de artes 05

Ubicacion:

Barrio Crisol Norte, Cardaba - Argentina

Año:2019

Autor: Portugal Alejandro

El proyecto tiene como objetivo fortalecer la conexión con el barrio, proporcionando un espacio común y educativo, además de revitalizar el terreno que alberga los hornos de significativo valor patrimonial. En este contexto, se ha proyectado un colegio de artes plasticas y visuales, caracterizado por una serie de plataformas interconectadas a través de un eje común de circulación, que facilita el acceso a las diversas aulas y espacios educativos.

El diseño se integra cuidadosamente con la topografía del sitio, aprovechando las cotas naturales para crear un juego de desniveles que se convierten en elementos clave del edificio. La estructura se concibe para trabajar tanto en tensión como en compresión, utilizando robustos tabiques de hormigón que soportan plataformas de acero, garantizando así la estabilidad y durabilidad del conjunto arquitectónico.

El enfoque en la creación de un espacio común y educativo no solo fortalece el vínculo con el barrio, sino que también proporciona un lugar donde los estudiantes y la comunidad pueden aprender y crecer juntos. Este diseño integral y consciente del contexto no solo preserva el valor patrimonial del sitio, sino que también impulsa un sentido de pertenencia y orgullo comunitario.

Turn static files into dynamic content formats.

Create a flipbook
Issuu converts static files into: digital portfolios, online yearbooks, online catalogs, digital photo albums and more. Sign up and create your flipbook.