Arnab Gon BIM Portfolio 23-24

Page 1


BIM Architect PORTFOLIO

Selected projects | 2021-23

ARNAB GON

CONTENTS

• CAPSTONE PROJECT: Enzyme Office Tower, Hong Kong

• Project Overview

• RIBA Project Stages

• Conceptual Massing

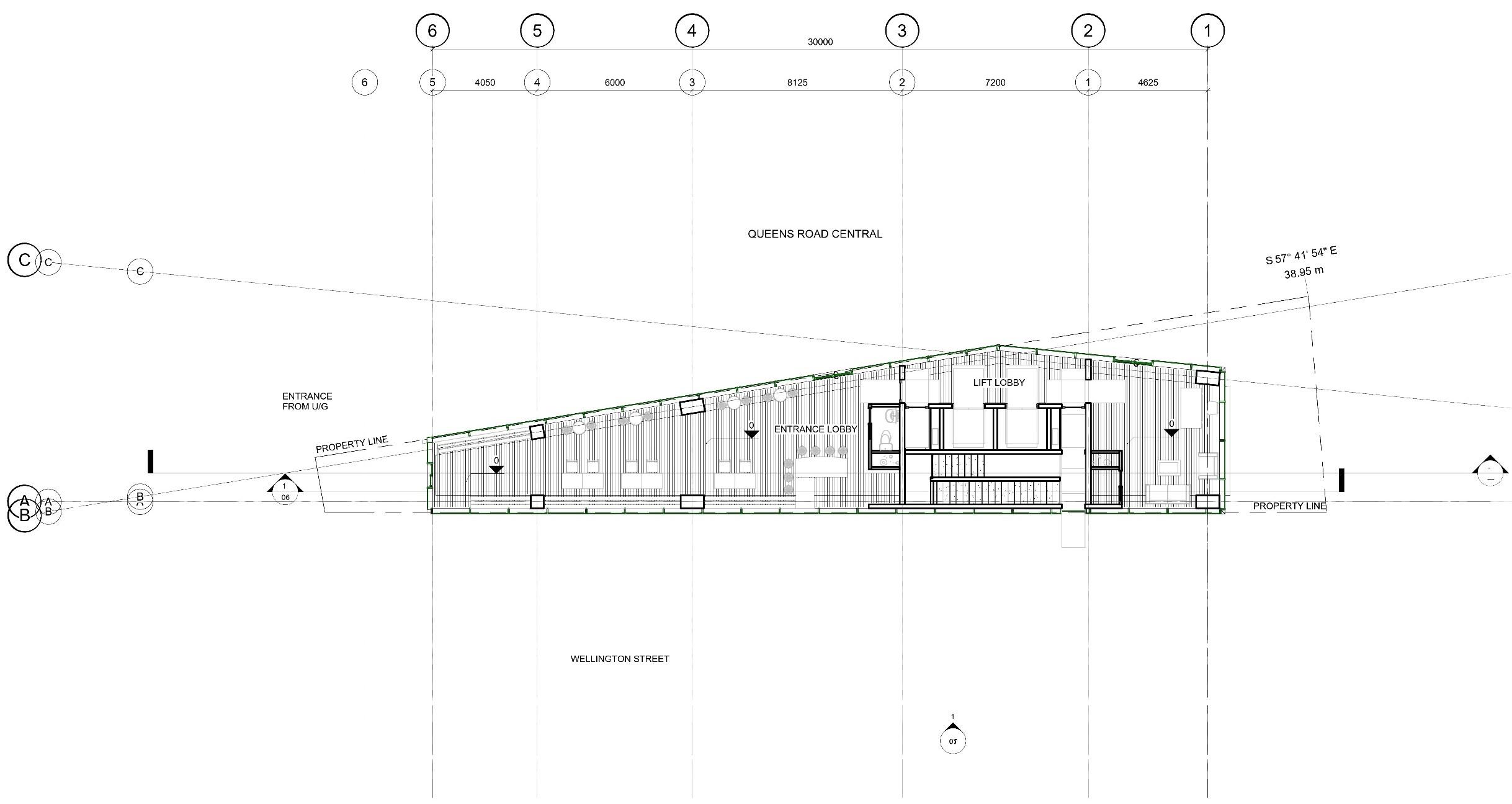
• Floor Plans – Architectural

• Reflected Ceiling Plans

• Custom Family Creation & Assembly Sheet

• Sections and Callout Details

• Elevations and Callout Details

• Navisworks Clash detection

• Visualisations

• Energy Modelling

• ACADEMIC WORK: Undergraduate Thesis, Sikkim

• Project Overview

• Conceptual Massing and variations

• Floor plans

• Sections and Elevations

• Visualisations

CAPSTONE PROJECT: Enzyme Office Tower, Hong Kong

Project Overview

•For Modelling - Revit

•For Clash Test – Navisworks and Switchback

•For Renders & PresentationRevit & Twinmotion

Location: Queens Road Central, Central District Sheung Wan, Hong Kong

N 22° 17' 5.40 ‘’

E 114° 9' 12.12‘’

Client: Enzyme APD PVT LTD

Type: Mixed-use Highrise Office and Service Apartments

Height: Full Site Occupation – 17 floors With Setbacks – 21 floors

GFA: Total site area – 203.7 sqm

Current utilised GFA – 1430.7 sqm

Maximum permissible GFA – 2810.6 sqm

FAR – 13.8

Brief: A redevelopment project located in Hong Kong, initially built in the 1970s, wants to utilise the maximum permissible GFA at the site. Aiming to create a landmark in a key urban location, the client started looking into the possibility of extra building volume that might provide a better return on investment due to the building’s good condition and under utilised GFA. Create a high-rise with mixed uses that can accommodate a mix of offices and service apartments. In addition, include sky gardens and public areas to build up to the maximum possible height of 21 floors. Tools used for Project :

•For Energy Modelling – GBS & Insight Level of Detail : LOD 350

RIBA Stages of BIM Project – Learnings

3D Axonometric Massing

Setbacks at intermediate levels to create sky gardens and public areas.

CONCEPT DEVELOPMENT & MASSING

3D Axonometric Massing

A double-curve profile of the tower stands as an iconic symbol at the intersection.

3D Axonometric Massing

A receding curved profile to reduce solar heat-gain surface area of the glass façade.

ASSEMBLY & FAMILY CREATION

ASSEMBLY & FAMILY CREATION

ACADEMIC THESIS PROJECT: Disaster

Rural Housing

Project Overview

Location: Dzongu District, North Sikkim, India

N 27° 32’ 24.2"

E 88° 27’ 45.4"

Type: Residential Prototype

Height: Max – 12m

Brief: A rehousing project for the residents of a village in N. Sikkim who were displaced in a rockslide and flash-flood induced disaster that flattened majority of the houses, which also had earlier damage from frequent seismic events. The goal was to design seismic resistant housing prototypes which can serve as the basic blocks for rebuilding infrastructure in a sustainable and resilient way, including a primary school, a workshop, post-office and a library, which can also function as an emergency shelter and base of rescue operations in an isolated valley.

Basic Module – Evolution and Exploded Isometric

3D Isometric

THANK YOU

Turn static files into dynamic content formats.

Create a flipbook
Issuu converts static files into: digital portfolios, online yearbooks, online catalogs, digital photo albums and more. Sign up and create your flipbook.