folio 2022 progress

Page 1

REYERAFAELUELS

FOLIO 2022

MIG

- Aristotle

“By dint of building well, you get to be a good architect.”

Musam dolore cus simagnimus, soluptatur molor aut esequatem aut eiciis vel ella vent que laccusc iligent quos sit, officid quas mincilit maximuscia doles nia quibuscitis

Mus eum reperior aut duciisquam intium rest adicitatur?Xim voluptati dit et occus dam quis dit, to cuptiam unt maioratqui rerions editius, inus volorestrum unt et ducid ute et estruptatia derit quidigent voles tisquia nis sequos delessus.WWWWWW

ABOUT THE AUTHOR

Ota cus iur? Qui aut is et quis dem acca bor poruntius remporem quid mincius abor a sum sunt.Sa eic torum fuga. Ris de nos aut accae con nullaudia doluptatiam, int, quae iundel illupta turehent vendi ut utestis sit quam est, odit es eum que lit fugiae res debitiis minctem rehenit fugiatio inim et ersperum nonsed minciume omnis sendissi dolo mo te prempor rorporum ipsandae. Et veles dipieniatem quodi dolo mod molesto beratius, qui doluptur?

RESIDENCEANTONIO

CAPITOL HILLS DRIVE, QUEZON CITY, PH

ANT

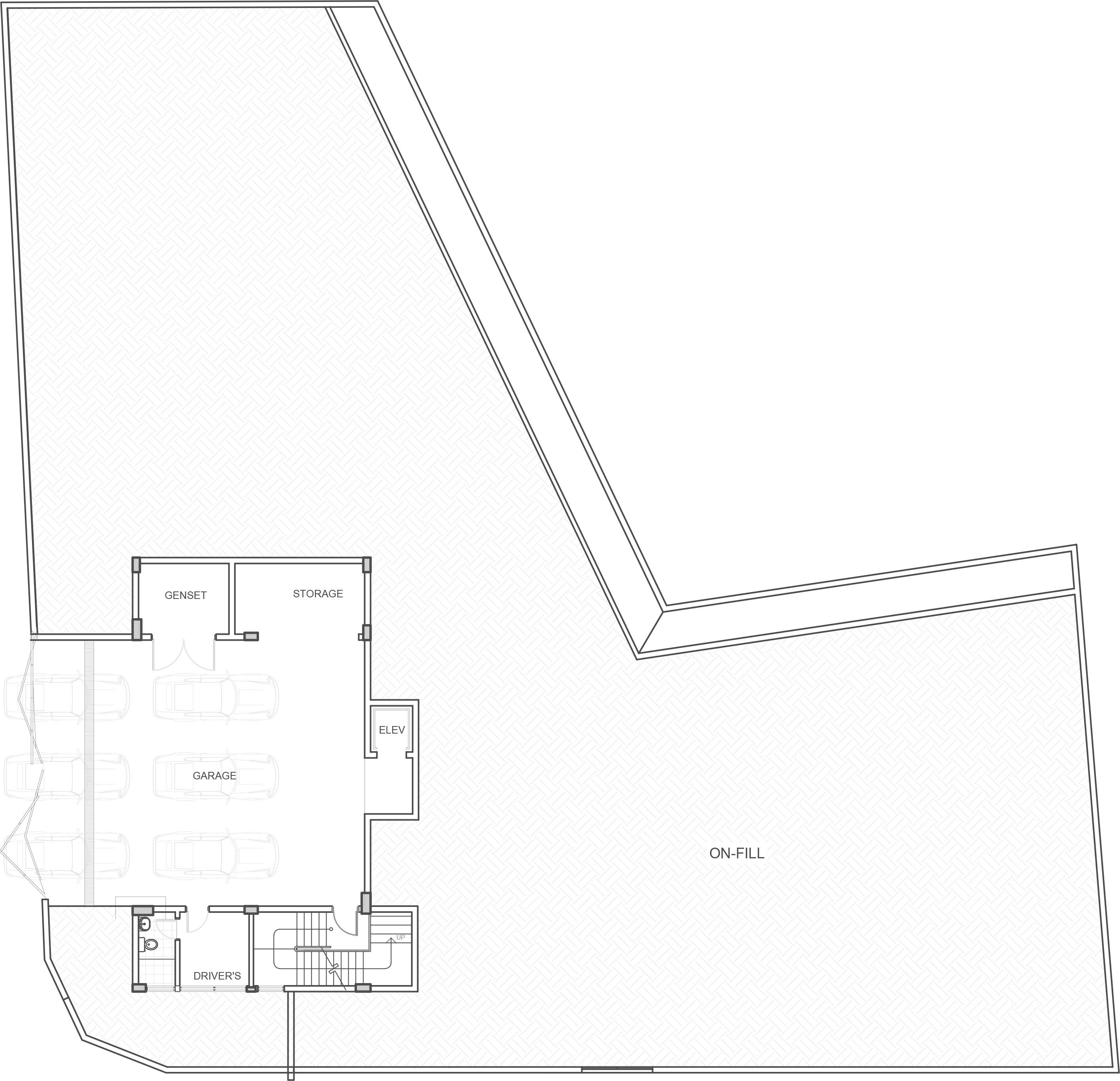
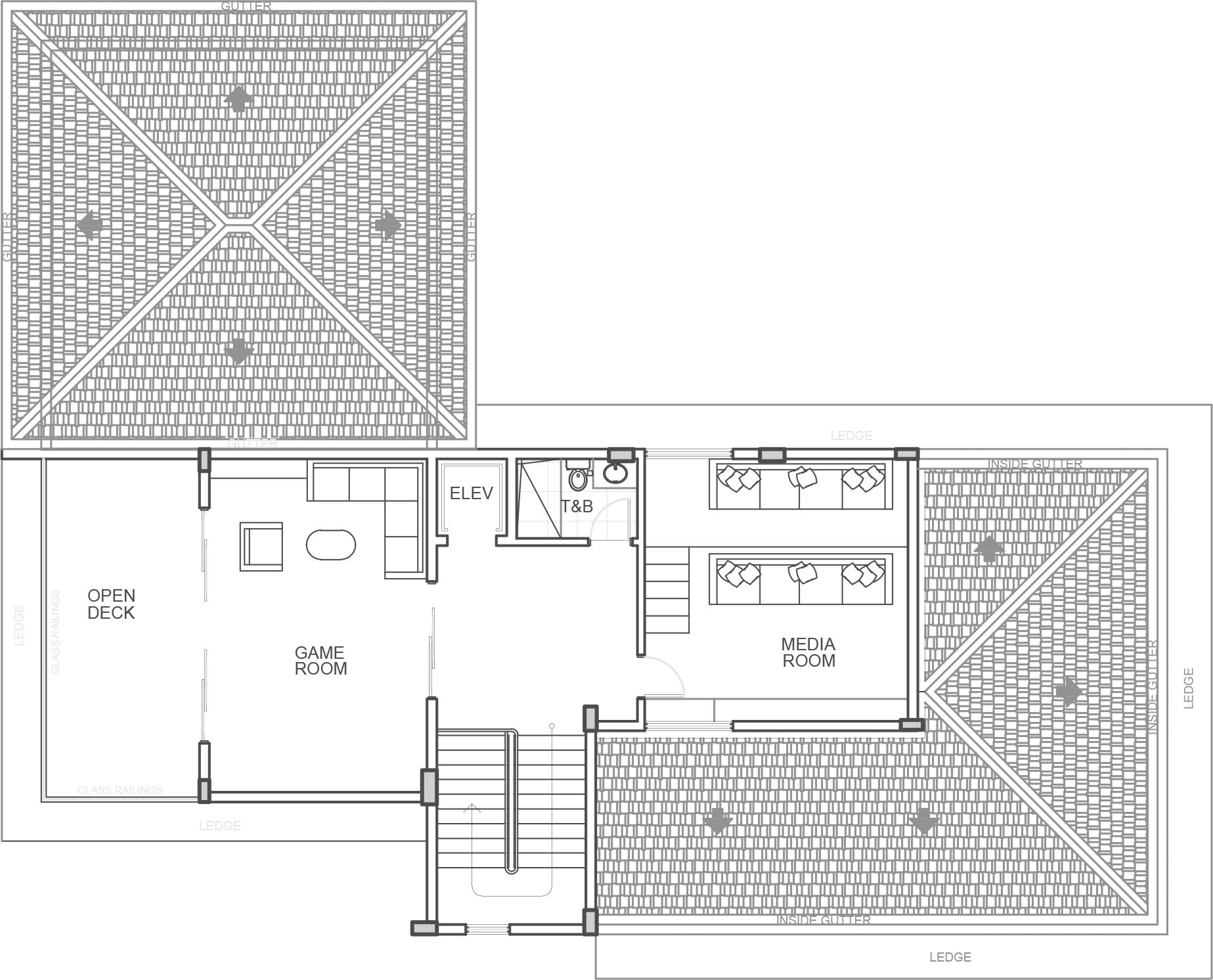
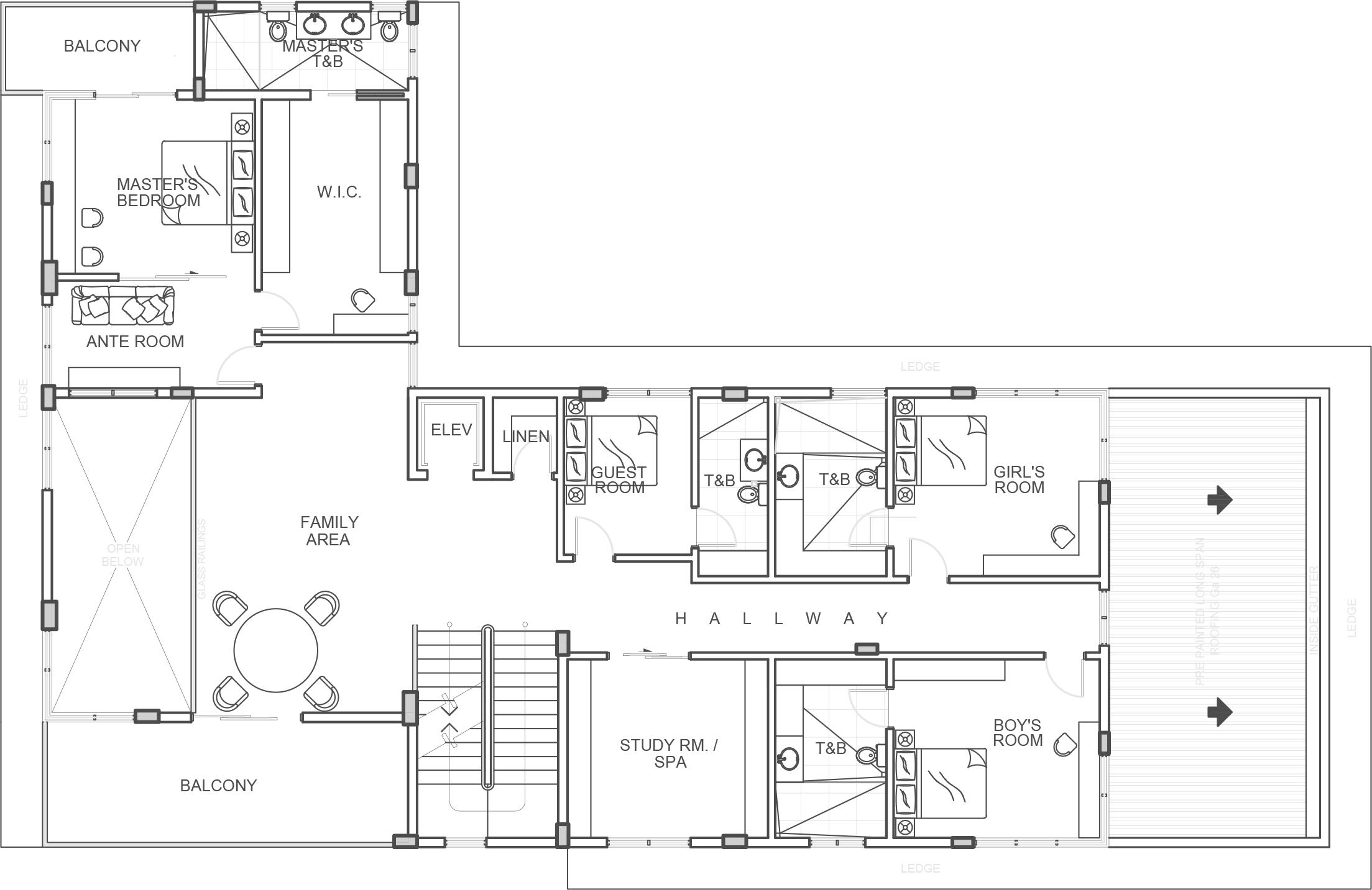
A three-storey residential house located in Capitol Hills Drive, Quezon City, consisting of four bedroom with toilet & bath, And a gross floor area of 986 sqm. This is a residential project led by Ar. Miguel Rafael Reyes in collaboration with Lux Builders Inc.

The main facade is cladded with adobe stone, reminiscent of the Philippines’ old bahay na bato houses. Combined with modern design windows, charcoal and sand cement paint finish, Antonio Residence is truly a perpetual architectural masterpiece that will stand the test of times.

Main exterior.thethroughoutarelinessleekshowingfacadethelinearwhichconsistentwhole

View from theenteringroadentranceuponthehouse

GROUND FLOOR PLAN

SECOND FLOOR PLAN

THIRD FLOOR PLAN

FOURTH FLOOR PLAN

Olecepudae saes am, voluptat offictur? Quia ducipsunt ad excest, oditatur, comnihici quis sinciasi ipi entiis si rest, verum lautat optaqui bus, quodis

Odipid maximolut eaque nusam re, te por simus, tem eaque et untio. Et venimolum consequid etur audam, et landitiam, iduciae dole cae ctust, consent isitibeat. Inusani endendia sim inus eum cuptaqu atestis imuscita dolorem. Od exceperum, sam, quo tes ari occabor reperru ptatem quiatiam si qui quaepro berferibus apisqua tur modio et pliam, utat restorendi quam, omnit alia qui blam etur simus reptaqui sum aut disquas maximpo rporem anto molorio runtur repudis cullupt atenecuptata secabo. Hitiamet et re, quae. Ut pe volum inulparume nesti te reperit, officiunt.

Inusani endendia sim inus eum cup taqu atestis

Odipid maximolut eaque nusam re, te por simus, tem eaque et untio. Et venimolum conse quid etur audam, et landitiam, idu ciae dolecae ctust, consent isitibeat.

RESIDENCEAYSON

OLD BALARA, QUEZON CITY, PH

AYSON

A two-storey residential house located in Old Balara, Quezon City, consisting of 3 bedroom with toilet & bath, And a gross floor area of 300 sqm. This is a residential project led by Ar. Miguel Rafael Reyes in collaboration also with Lux Builders Inc.

Turn static files into dynamic content formats.

Create a flipbook
Issuu converts static files into: digital portfolios, online yearbooks, online catalogs, digital photo albums and more. Sign up and create your flipbook.