PORTAFOLIO MODELADO BIM

Page 1

Conexión exotérmica y/o conectores mecánicos, el número de molde y la carga se definen en obra. Ver tabla de conexiones

Aterrizar base de medidor

1

Conexión exotérmica y/o conectores mecánicos, el número de molde la carga se definen en obra. Ver tabla de conexiones

NOTAS GENERALES

1.-ESTE PLANO ES EXCLUSIVO DE OBRA ELÉCTRICA.

2.- LA UBICACIÓN DE SALIDAS Y TRAYECTORIAS DE TUBERÍAS ES REPRESENTATIVA, Y SE DEBERÁ COORDINAR CON LA SUPERVISIÓN DE OBRA.

NOTA: LA INTERCONEXION DE SISTEMAS DE TIERRA ES UN REQUERIMIENTO INDICADO EN LA NOM-001-SEDE-2012.

2

3.01

Malla de Tierra Aislada

3 3 3

NOTA: LA INTERCONEXION DE SISTEMAS DE TIERRA ES UN REQUERIMIENTO INDICADO EN LA NOM-001-SEDE-2012.

Malla de Tierra de Pararrayos

3.22

Aterrizar gabinete de Transformador

3 3 3

Aterrizar Neutro Xo

Malla de Tierra Física

3.00

Conexión exotérmica y/o conectores mecánicos, el número de molde la carga se definen en obra. Ver tabla de conexiones

Conexión exotérmica y/o conectores mecánicos, el número de molde y la carga se definen en obra. Ver tabla de conexiones

1T-21mm PVC, 1-2 AWG (aislado verde), tierra aislada para site

Conexión Exotérmica

Conexión Exotérmica de cable de cobre a placa de Acero tipo "HA" (Cadweld)

1T-21mm PDG, 1-2 AWG (aislado verde), y tierra aislada para site

Conexión Exotérmica de cable de cobre a placa de Acero tipo "HA" (Cadweld)

Conexión Exotérmica de cable de cobre placa de Acero tipo "HA" (Cadweld)

Conexión Exotérmica de cable de cobre a placa de Acero tipo "HA" (Cadweld)

3.-TODA LA TUBERÍA EN INTERIORES ES DEL TIPO CONDUIT METÁLICO TIPO LIGERO P.D.G TODA LA TUBERÍA POR PISO ES DEL TIPO PVC SERVICIO PESADO VERDE OLIVO.

5.-TODA LA TUBERÍA EN EXTERIORES O EXPUESTA A DAÑO FÍSICO ES DEL TIPO CONDUIT PGG.

6.-TODA LA TUBERÍA DEBE SER SOPORTADA CON MEDIOS ADECUADOS, NO SE ACEPTA SOPORTES CON ALAMBRE Y/O A DISTANCIAS MAYORES A 2.50 MTS EN TUBERÍA CORRIDA Y A MÁXIMO 1 MTS DE CADA CAJA REGISTRO Y/O SALIDA.

7.-TODAS LAS CAJAS GALVANIZADAS DEBEN DE SER DIMENSIONADAS DE ACUERDO A LO INDICADO POR LA NOM-001SEDE-2012.

8.-PARA LAS TRANSICIONES DE LAS COLUMNAS A LAS SALIDAS EN PISO, SE DEBEN DE COORDINAR CON EL SUPERVISOR DE OBRA.

9.-TODOS LOS CONDULETS DEBEN DE SER DE LA "SERIE 9" CROUSE-HINDS-DOMEX.

10.- TODAS LAS CAJAS GALVANIZADAS DEBEN TENER TAPA, LOS CONDULETS EXTERIORES DEBEN TENER TAPA Y EMPAQUE DE NEOPRENO.

11.- TODAS LAS ESTRUCTURAS METÁLICAS Y SUBESTACIÓN SE DEBERÁN ATERRIZAR POR SEGURIDAD DE LAS PERSONAS Y DEL EQUIPO.

12.- LAS BASES PARA LA PLANTA DE EMERGENCIA SERÁ POR PARTE DE LA CONSTRUCTORA DE ELEKTRA.

13.- LAS CANALIZACIONES Y CABLEADOS DESDE EL TRANSFORMADOR, Y TRANSFERENCIA AUTOMÁTICA SERÁN POR ELEKTRA.

14.-LA PLANTA DE EMERGENCIA Y EL TRANSFORMADOR DEBERÁN DE CONECTARSE AL SISTEMA DE TIERRAS INDICADO EN PROYECTO.

SIMBOLOGÍA

Conexión Exotérmica de cable de cobre a placa de Acero tipo "HA" (Cadweld)

Ver: 333 7434-05-05-00-00-01

TUBERÍA CONDUIT PARED GRUESA GALVANIZADA POR MURO 0 TECHO MARCA JUPITER O SIMILAR.

HILO DE COBRE DESNUDO 4/0 AWG POR TERRENO REGISTRO DE TIERRA, DE TABIQUE Y APLANADO POR EL INTERIOR DIMENSIONES 0.3X0.45 X0.6 m CON TAPA,CONTIENE BARRA DE TIERRA DE COBRE 6x50x400 m CON AISLADOR Y SOPORTE..

ELECTRODO DE TIERRA LONGITUD DE 3 M CON TAPA REGISTRO DE ASBESTO PARA FUTURO MANTENIMIENTO.

TUBERÍA QUE SUBE

TUBERÍA QUE BAJA

CÉDULA DE CABLEADOS

1 T-27mm P.G.G.

1 CABLE DE COBRE CALIBRE 2 AWG FORRADO (VERDE)

2 T-53mm P.G.G.

1 CABLE DE COBRE CALIBRE 1/0 AWG d 3 1 CABLE DE COBRE CALIBRE 4/0 AWG d

CONECTOR ZAPATA MECÁNICA PARA ATERRIZAJES

CABLE A ATERRIZAJE CONECTOR "T" MECÁNICO PARA DERIVACIONES

CABLE A RED DE PARARRAYOS CONECTOR RECTO MECÁNICO PARA UNIONES DE CABLE

TUBO
PVC.
CONECTOR
CADWELD
CONECTOR SOLDABLE CADWELD TIP TUBERÍA QUE
0.60m 1 DE 0,45x0,45m 3 RED DE TIERRA RED DE TIERRA 5 4 2 1 3 TAPA DE CONCRETO TAPA DE CONCRETO DE 0,45x0,45m INTERIORES ARMADO CON 2 ALAMBRES DE No. 9 EN DIRECCIONES Y JALADERA REGISTRO DE TABIQUE DE 40x40x40cm. DE LONGITUD MEDIDAS INTERIORES VARILLA COPPERWELD DE 15,8mm ∅ (5/8)x3048mm DE LOG.(10'-0) CONECTOR MECÁNICO TIPO GAR-6429 MARCA BURNDY CABLE DE COBRE DESNUDO CALIBRE 4/0 AWG. *4/0 AWG DE COBRE MARCA CADWELD CARGA-115 UBICADA EN CAJÓN DE CIMENTACIÓN DE 3mts.x 16mm O MARCA CADWELD CONECTOR SOLDABLE MOLDE HAC-2Q CONECTOR SOLDABLE VARILLA COPPERWELD 3.00m. 3.00m 3.00m 4/0 AWG DESNUDO VARILLA 4/0 AWG DESNUDO 4/0AWGDESNUDO VARILLA CONECTOR TIPO "GT" CABLE DE PASO A VARILLA DE TIERRA EN POSICIÓN "T" 4/0 AWG DE COBRE REGISTRO DE MAMPOSTERÍA CON TAPA 40x60x100cm. T-27mm P.G.G. 1 CABLE DE COBRE CALIBRE 2 AWG FORRADO(VERDE) CONECTOR TIPO "GT" CABLE DE PASO A VARILLA DE TIERRA EN POSICIÓN "T" 4/0 AWG DE COBRE CONECTOR TIPO "GT" CABLE DE PASO A VARILLA DE TIERRA EN POSICIÓN "T" 4/0 AWG DE COBRE VARILLA REGISTRO DE MAMPOSTERÍA CON TAPA 40x60x100cm.
CABLE DE COBRE DESNUDO CALIBR
DE 27mm
VARILLA COPPERWELD DE 16mm, DE Y 3m, DE LONGITUD.
SOLDABLE
EN
SUBE.
SIMBOLOGÍA T Z
UP T T 4 3 2 1 A B C D
3
"HA" (Cadweld) Conexión
cable
cobre
placa
Acero tipo "HA" (Cadweld) 3.01 Sube a Site Ver:
2 1T-21mm
Ver:
de cable de cobre a placa de Acero tipo
Exotérmica de
de
a
de
333 7434-05-05-00-00-01
PDG, 1-2 AWG (aislado verde), y tierra aislada para site
333 7434-05-05-00-00-01 Ver: 333 7434-05-05-00-00-01
Ver:
333 7434-05-05-00-00-01
Ver: 333 7434-05-05-00-00-01 / Ver: 333 7434-05-05-00-00-01 8.39 1.40 7.73 17.52 8.61 7.47 11.45 27.53 4 B C D 4 4 4 Conectar barra de Tierra aislada del Tablero PM Conectar barra de Tierra aislada del Tablero R Conectar a Barra de Tierra Aislada del Rack Conectar a barra de Tierra Aislada del Rack 1.40 7.01 8.38 TAB. "R" EQUIPO DE RACK SISTEMA DE TIERRA AISLADA EQUIPO DE RA CABLE CON AISLAMIENTO COLOR VERDE, CALIBRE 2 AWG CONECTORES DE COMPRESION (PONCHABLES) CABLE CON AISLAMIENTO COLOR VERDE, CALIBRE 6AWG CABLE CON AISLAMIENTO COLOR VERDE, CALIBRE 6AWG CABLE CON AISLAMIENTO COLOR VERDE, CALIBRE 6AWG TABLERO "R" CONTACTOS REGULADOS RACK DE SISTEMAS RACK DE SISTEMAS PUENTE DE UNION ZAPATAS DE COMPRESION PUENTE DE UNION 1 125 DETALLE DE REGISTRO PARA MALLA DE TIERRAS 222 1 100 DETALLE DE ATERRIZAMIENTO DE COLUMNAS METALICAS 333 1 : 125 ARREGLO Y CONEXION DELTA SISTEMA DE TIERRAS 4 1 : 2 05-06-00-07-06-Detalle_instalacion_conectores_mecanicos 12 1 75 7434-02-03-03-32-01-Planta_Baja 1 1 : 75 7434-02-03-03-33-01-Primer_Nivel 2 1 50 DETALLE DE ATERRIZAMIENTO RACKS EN SITE 3

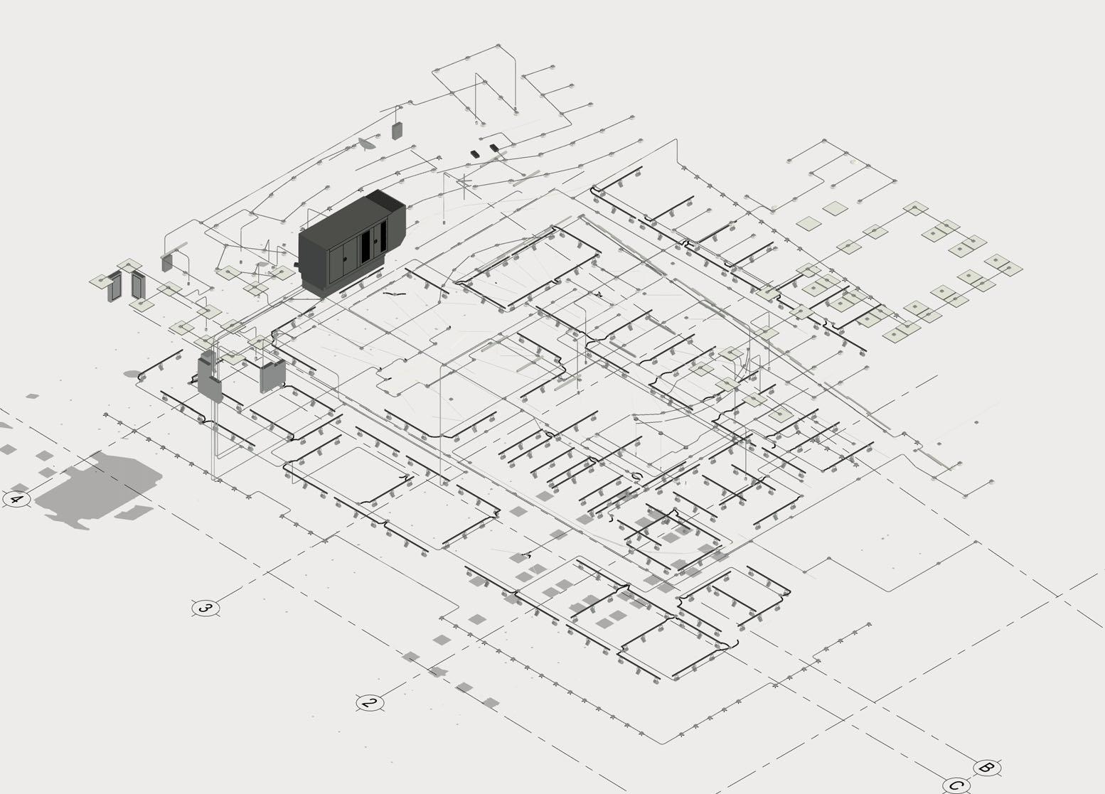
MODELADO MEP ELEKTRA

Proyecto ejecutivo de instalaciones desarrollado para grupo Salinas con nivel de detalle 300 incluyendo el documentado de las instalaciones.

Modelado desarrollado en Revit 2022 y en él se incluyen diversas instalaciones como son iluminación, fuerza, aire acondicinado, voz y datos.

E 1/0. DIÁMETRO CRUZ. PO "T". CK

TUNEL OMITLÁN, EL MINERAL Y VICENTE GUERRERO

Conjunto de túneles ubicados en pachuca, se realizó modelado de elementos tanto de instalaciones como estructurales, se trabajó con coordenadas compartidas y con archivos ifc.

Modelado desarrollado en Revit 2023 y en él se incluyen diversas instalaciones como son iluminación, fuerza, aire acondicinado, cctv, sistema contra incendios, megáfonos, semáforos y señalética.

El proyecto se recibió dibujado en cad y se pasó a revit con un nivel de desarrollo LOD 300.

Creación de familias específicas.

MASARYK, CAROLINA HERRERA

El proyecto ubicado en la avenida Presidente Masaryk fue modelado en Revit 2021 con una nube de puntos.

Realizado para Carolina Herrera con un nivel de detalle 500, se generaron familias personalizadas para representar las herrarias, molfuras, acabados y muebles.

Levantamiento con nube de puntos y recorrido del estado actual, rectificación en campo de los elementos

2023

CASA ABUNDIO

◦ Modelo estructural reali z ◦ Requerimiento

de

ado en revit para cuantificación de materiales y documentación. armado con el sistema constructivo mixto de losa nervada

z

Instalación sanitaria

INSTALACIONES Instalación

Proyecto de vivienda para un conjunto habitacional militar en Cualiacán conformado por 8 tipos diferentes d mep y na

PROTOTIPO TULE

hidraulica

Simulación 4D en Navisworks

d e 10 prototipos de casa habitación y 2 edificios, el proyecto se trabajó urbanismo, arquitectura, estructura, v isworks.

IRRIGACIÓN 103

Restauración y rediseño de vivienda.

Diseño y documentación de instalaciones, arquitectura y estructura

HOTEL INZINGNIA

Revisión de planos y documentación de albañilería, arquitectura ey acabados

  ZC-2 Zapata Corrida Za ZC-1 Zapata Corrida                                                                    25 24 23 22 21 20 A B C D F E                                    C1K3 K3 K3 K1 K1 K3 K3 K0 K0 K0K3 Repisón 2.10 2.10 DETALLE 04 2.10 K3K0 K0 C1 C1 K1 K0K0 K0K0K0K0 K0K0 K0 2.10 K3 K3 K3 K0 K3 2.10 K0K0 2.10 DETALLE 04 K0 K3 C1C1C1 K3 K3 K3 K1 K1 K3 K3 K3 K0 K0 Repisón 2.10 DETALLE 04 2.10 K3K0 K0 K3K3K3K3 C1 C1 K1 K1 K2 K3 K3 K1 K0 0 ,7 5 1, 80 0 K 2 ,5 5 2 ,5 5 7 , 05 2 ,5 5 2 ,5 5 3 , 30 8 , 85 3 , 60 1,5 0 1,5 0 2 ,5 5 9 , 6 1 3 , 30 2 , 85 2 ,5 5 8 , 85 28 , 05 C K K 0 K3 12,45 3,00 1,35 1,50 1,80 0,90 0 4,35 3,45 0,90 2,70 4,50 3 4 8 9 3 4 8 9 C D B 28 , 20 0 ,7 5 2 , 30 3 ,1 0 2 ,5 5 9 , 00 0 ,7 5 2 , 30 3 ,1 0 2 ,5 5 9 , 00 2 ,5 5 0 , 90 0 , 90
CONJUNTO A Y C + 4.35 m 01 Muro de block hueco (15 cms). Muro de concreto (15 cms). Muro divisorio de Tablaroca (8 cms). Castillo de concreto armado (15 x 15 cms). F'c= 200 kg/cm2 Castillo de concreto armado (20 x 15 cms). F'c= 200 kg/cm2 Castillo de concreto armado (30 15 cms.) F'c= 200 kg/cm2 Columna de concreto armado (30 40 cms). F'c= 250 kg/cm2 Altura de vano para puerta. 1.- Todos los muros interiores serán aplanados con masilla S.M.A. con cms de espeso en cada cara (revisar detalle) 2.- Consultar detalles de elemntos constructivos para mayor información de dimensiones, materiales especificaciones. K1 K2 K3 C1 2.10 SIMBOLOGÍA NOTAS GENERALES Repisón Repisón Repisón DETALLE 03 Repisón PUNTO DE TRAZO MOJONERA K2 2.10 2.10 K0 K3 Castillo de concreto armado (15 x 15 cms). con varilla interna. F'c= 200 kg/cm2 K0 K0 K0 K0 K3 1,25 1,00 0,60 2,40 0,90 1,95 0,60 0,45 1,50 1,95 0,45 2,49 1,50 1,60 0,75 0,60 1,00 2,10 0,90 1,20 1,85 1,20 0,90 0,90 0,90 0,45 0,75 1,55 3,30 2,30 2,50 2,55 1,40 3,45 1,55 2,20 0,20 1,10 0,20 0,35 0,60 1,00 3,15 1,53 1,00 2,42 1,80 1,80 0,61 2,30 0,85 2,30 0,42 0,75 0,90 1,60 2,20 1,40 0,80 0,55 0,80 1,42 1,50 0,52 0,51 0,60 1,65 2,55 2,55 3,00 0,60 0,90 0,60 0,90 1,30 1,42 0,90 0,80 0,80 0,40 0,40 0,70 0,40 0,35 0,40 0,40 0,71 2,10 0,90 1,85 1,20 0,90 0,90 0,45 0,75 1,55 2,30 2,50 2,55 1,55 2,20 0,20 1,10 0,20 0,35 0,60 1,30 0,70 1,53 0,90 1,60 2,20 1,40 0,80 1,50 0,52 0,51 0,40 0,38 2,30 1,40 3,45 1,40 2,55 0,30 1,00 0,50 2,10 1,00 1,30 1,25 1,30 0,60 3,45 2,90 3,51 2,25 8,85 4,35 3,00 3,60 4,35 6,90 3,45 2,90 3,30 3,51 2,25 8,85 4,35 3,00 3,60 2,55 1,85 6,45 2,55 9,60 1,00 3,30 9,30 1,65 1,30 1,10 4,35 1,70 1,65 1,10 2,55 0,80 2,20 0,75 1,00 0,70 K6 K5 K1 K3 176 0
ALBAÑILERÍA PLANTA TIPO
DAES Asesoría, Supervisión, Análisis y Diseño Estructural. Cancún, Quintana Roo; México. C.P.: 77509 Xel-ha No. 53, Ed 1 Depto.7, SM 27 Mz18 lt 4, Diseño Avanzado de Estructuras     ZC-3 pata Corrida ZC-4 Zapata Corrida              CT-L    CTL-2                                                                                                                                                                                                                      19 18 17 16 15 14 13 12 11 10 8 7 6 4 3 1 A B C D F E 10408.4                                                                                                                                                         

IRRIGACIÓN 103

Restauración y rediseño de vivienda.

Diseño y documentación de instalaciones, arquitectura y estructura

Muro de block hueco 20x40x60cm

Conexión superior de madera

Muro de block hueco 20x40x15cm

Plafón de tablarroca interior

Tornillo de acero 1/2x4" con taquete de expansión sobre bastidor de madera de pino ranurado

Tornillo de acero 1/2x1" sobre MDF

Bastidor de madera de pino

MDF de 6mm chapada madera de nogal tono natural

Bastidor de madera de triplay para soporte

DET-04

Conexión intermedia de madera

Muro de block hueco 20x40x15cm

MDF de 6mm chapada madera de nogal tono natural

MDF de 6mm chapada madera de nogal tono natural

Tornillo de acero 1/2x4" con taquete de expansión sobre bastidor de madera de pino ranurado

Bastidor de madera de pino

MDF de 6mm chapada madera de nogal tono natural

Tornillo de acero 1/2x1" sobre MDF

Muro de block hueco

MDF de 6mm chapada madera de nogal tono natural

Tornillo de acero 1/2x1" sobre MDF

Bastidor de madera de pino

Tornillo de acero 1/2x4" con taquete de expansión sobre bastidor de madera de pino ranurado

DET-05

Conexión inferior de madera

Jaladera ranurada en madera de triplay de 2cm

pp de televisión recámara departamento 105m2

DET-03

DET-04

DET-05

DET-08

Bisagra tipo clip top blumotion para puertas delgadas marca blum estilo push and open Bisagra tipo clip top blumotion para puertas delgadas marca blum estilo push and open

Junquillo 6mm.

Cristal templado de 6mm

Puerta de MDF de 6mm chapada madera de nogal tono natural

Corte de repisas inferior mueble de televisión estancia departamento 105m2

Bisagra tipo clip top blumotion para puertas delgadas marca blum estilo push and open

Muro de block hueco

Riel integrado modelo TANDEM, marca blum

MDF de 6mm chapada madera de nogal tono natural

Bastidor de madera de pino

CON-06 Detalle de riel de cajón closet recámara departamento 105m2

VISTA EXTERIOR

1.5 0.42 0.25

barnizada Plafon de tablaroca interior Televisión empotrada ALZADO

0.23 0.240.18

BD marca TRiMASA,

Madera de pino de 3mm calidad BD marca TRiMASA, natural barnizada 0.19 0.42 0.33 1.94 0.19 0.33 0.44 0.60.60.60.6

VISTA

RIEL INTEGRADO TADEM MARCA BLUM

A 1 CAR-04a Mueble para televisión estancia PLANTA N.P.T.= +0.30 0.33 0.33 Separador vertical madera de pino de 3mm calidad BD marca TRiMASA, natural barnizada 0.33 Fondo MDF 9mm 0.11 0.47 0.5 Cajonera 0.33 Bastidor de madera Muro de block hueco dimensiones 15x40x60cm DET-07 DET-06 0.42 0.58 0.23 0.33 0.19 0.42 0.33 1.94 0.19 0.33 0.44 0.60.60.60.6 0.23 0.240.18 1.5 0.42 0.25
Madera de pino de 3mm calidad BD marca TRiMASA, natural barnizada Plafon de tablaroca interior Televisión empotrada 0.42 0.58 0.23 0.33
ALZADO
INTERIOR CAR-03 CAR-03
Madera de pino de 3mm calidad BD marca TRiMASA, natural barnizada tablaroca
Madera de pino de 3mm calidad
natural
Plafon de
interior CAR-03 Marco
Vinil de inserción
Ángulo
DET-03
MDF de 6mm chapada madera de nogal tono natural

Espejo para baño de visitas y baño completo compartido

MUEBLES DE TELEVISIÓN

piezas Clave DimensionMaterialAcabado Visagra

1 CAR-04a2.4mx47cmx1.5mMDF 22mm Chapa de nogal tono natural BLUM clip top blumotion para madera delgada

1 CAR-04b 2mx47cmx1.5mMDF 22mm Chapa de nogal tono natural BLUM clip top blumotion para madera delgada

ESPEJOS DE BAÑO

piezas ClaveDimension Material de bastidor Acabado Visagra

2CAR-061.20mx65cmx12cm Madera de pinoChapa de nogal tono natural BLUM push an open modelotip-ON-dm-19

1 CAR-071.5mx1.5mx12cm Madera de pinoChapa de nogal tono natural

Diseño para conjunto habitacional DETALLES DE CARPINTERÍA

CARPINTERIA

3 CAN-02
PLANTA N.P.T.= +0.30 1.2 0 0.1 0.45 0.65 0.1 0.1 0.3 Espejo volado 6mm Bastidor de madera de
chapado
madera
natural ALZADO 2Pzs CAN-07 0.1 0.1 0.45 0.65 B Ø5mm Ø11.5mm Tornillo incluido por el proveedor Visagra tipo push and open, marca blum, modelo tip-ON-dm-19 Bastidor de madera 0.33 0.3 VER BISAGRA BISAGRA 2 CAN-07 Espejo para baño de visitas y baño completo compartido PLANTA N.P.T.= +2.85 R0.75 1.5 R0.65 0.1 0.1 Espejo volado 6mm Bastido de madera de pino ALZADO 1Pzs CAN-03 R0.65 0.1 0.1 0.1 D Puerta de MDF de 2cm con chapa de madera de nogal tono natural Televisión empotrada MDF de 2cm con chapa de madera de nogal tono natural ALZADO VISTA EXTERIOR CAR-04a PLANTA N.P.T.= +2.70 CAR-04a 0.25 0.44 2 0.60 0.60 0.70 Puerta de MDF de 2cm con chapa de madera de nogal tono natural Televisión empotrada MDF de 2cm con chapa de madera de nogal tono natural ALZADO VISTA INTERIOR CAR-04a 0.25 0.44 2 0.60 0.60 0.70 0.2 0.2 0.47 Cajonera DET-07 CAR-04a VISTA LATERAL Bastidor de madera de pino
pino de 2cm
con
de nogal tono

CAN-01

Ventana tipo, estancia, cocina, estudio

VER BISAGRA

VER DET-01

Manguetería aluminio 2" negro mate

Manija cierre de presión Cuprum: Eurovent S-35 color negro mate Cristal de 6mm

Cristal de 6mm

Bisagra con limitador de apertura marca blum, modelo IDX: 02

Manguetería aluminio 2" negro mate

168mm 20mm Manguetería aluminio 2" negro mate BISAGRA

Jaladera de embutir con broche marca indalum modelo F-304 AS serie 4000

Muro pretil de block hueco medidas 15x20x40

15x20x40

de tezontle con aplicación de impermeabilizante al-koat

o similar en precio y

LATERAL CAN-05

ventanas y puertas de canceleria

piezas Clave Dimension tipo cristal marco Manija 3 CAN-011.50mX1.55mx5cm Ventana basculante Cristal de 6mm transparente Mangeteria de aluminio de 2" Marca blum con limitador de apertura modelo IDX: 02

2CAN-02

1.50mx.3mx5cm Ventana corrediza Cristal de 6mm transparente Mangeteria de aluminio de 2" Jaladera de embutir con broche marca indalum modelo F-304 AS serie 400

1 CAN-032.1mx2.1x10cm Puerta abatible de dos hojas Cristal de 6mm transparente Mangeteria de aluminio de 2" Jaladera Ravinete modelo BS5HS60

3 CAN-041.56mx2.97mx5cm Ventana corrediza Cristal de 6mm transparente Mangeteria de aluminio de 2" Cierre de presión marca Cuprum Eurovent S-35

1 CAN-053.29mx73cmx5cm Domo Cristal de 6mm opaco Estructura de PTR 4"x4" soldado

1 CAN-06

1.4mx1.6m5cmDomo Cristal de 6mm opaco Estructura de PTR 4"x4"

CAN-06

Lucernario para

0.63 ALZAD

CAN-02 CAN-04 CAN-05 CAN-01 3 CAN-02 Ventana para baño de visitas y baño completo compartido PLANTA N.P.T.= +0.30 0.3 0.75 0.74 1.5 F Cristal de 6mm ALZADO Manguetería aluminio 2" negro mate Jaladera de embutir con broche marca indalum modelo F-304 AS CAN-02 1 CAN-03 Puerta planta baja, estancia-jardín N.P.T.= +0.30 2.1 F 0.53 F F 0.53 1.05 0.53 0.51 1.05 ALZADO N.P.T.= +0.00 1 CAN-04 Ventanas tipo para recámaras PLANTA N.P.T.= +2.70 ALZADO 0.31 1.25 1.5 0.75 Cristal de 6mm Cristal de 6mm Manguetería aluminio 2" negro mate CAN-04 F F F 0.75 1.47 0.75 0.72 Manija cierre de presión Cuprum: Eurovent S-35 color negro mate 2.97 3 CAN-05 Lucernario para baño recámara principal PLANTA N.P.T.= +5.70 A A VER DET-01 VER DET-01 VER DET-01 VER DET-02 0.53 0.63 0.19 ALZADO
Estructura de PTR de 4"x4" Muro
15x20x40 Relleno
40tsbs
características
Vidrio templano
Salida
ventilación Muro bajo
Aca 1
bajo de block hueco medidas
Losa maciza de 15cm de c
de 6mm con pendiente del 2%
de
de block hueco medidas
1.25 1.56
PLANTA F 0.31
1.5 ALZADO 0.75 0.75
CAN-01 F
N.P.T.= +0.30
F
D1
CANCELERIA

Coset recámara 2

MDF de 2cm enchapada con madera de nogal barnizada tono natural

Plafón de tablaroca (ver plano de acabados)

MDF de 2cm enchapada con madera de nogal barnizada tono natural

MDF de 2cm enchapada con madera de nogal barnizada tono natural

Tubo de acero ajustable Handy Home modelo #575670 color plata

MDF de 2cm enchapada con madera de nogal barnizada tono natural

tono natural

tablaroca

plano d acabados)

2cm enchapada con madera de nogal barnizada ton

Separador vertical MDF de 2cm enchapada con madera de nogal barnizada tono natural

Diseño para conjunto habitacional CAN-03 CAN-06 n PLANTA F 0.52 0.52 0.53 2.1 F F Cristal de 6mm Cristal de 6mm Cristal de 6mm Jaladera Ravinete modelo BS5HS60 color negro mate CAN-03 Manguetería aluminio 2" negro mate bado final 1 baño recámara principal PLANTA N.P.T.= +5.70 1.2 0.2 O LATERAL CAN-06 Estructura de PTR de 4"x4" Muro bajo de block hueco medidas 15x20x40 Relleno de tezontle con aplicación de impermeabilizante al-koat 40tsbs o similar en precio y características Losa maciza de 15cm de c Vidrio templano de 6mm con pendiente del 2% Salida de ventilación Muro bajo de block hueco medidas 15x20x40 A Corte mueble de televisión estancia departamento 105m2 MDF de 2cm enchapada con natural MDF de 2cm enchapada con natural 0.35 MDF de 2cm enchapada con natural 0.23 0.23 0.23 0.23 0.360.36 0.72 2.8 0.74 Entrepaño 0.60 0.75 1.50 0.75 Plafón de tablaroca (ver plano de acabados) madera de nogal barnizada tono Fijo VISTA EXTERIOR madera de nogal barnizada tono madera de nogal barnizada tono MDF de 2cm enchapada con madera de nogal barnizada tono natural 0.23 0.86 0.23 0.23 0.23 0.48 Zapatera MDF de 2cm enchapada con madera de nogal barnizada
0.480.530.53 0.22 Colgado corto hombres Entrepaño Tubo de acero ajustable Handy Home modelo #575670 color plata 2.8 0.35 Entrepaño Fijo 0.22 0.23 0.86 Entrepaño Fijo Entrepaño Fijo Fijo
tono natural Fijo 0.60 Maletero Fijo Maletero Fijo
MDF de 2cm enchapada con madera de nogal barnizada
CajónCajón CajónCajón CajónCajón CajónCajón VISTA INTERIOR CAR-02 CAR-02 3 CAR-02b
PLANTA B N.P.T.= +2.70 0.2 0.22 0.22 0.22 0.05 Cajón Colgado largo Cajón Cajonera Cajón Cajón
1.22 Bastidor de madera Fondo MDF 9mm Tira LED Maletero 0.60 MDF
Muro de concreto Plafón
CAR-02 DET-03 DET-04 DE-05 DET-04 DET-06 ALZADO ALZADO DETALLES DE CARPINTERÍA Y CANCELERÍA
de
natural
de
(ver
CLIC PARA VER MÁS R ! ! ! !"#$%&'(%")*+&,$-."& !"#$%"&#'()*"#&'+,-.)/0' ''' !"#$%&'()$"*+%,-(./'",0( ' '1)2",3'' ''' 1%&''"2(34*&''"(5(6*",,*(7+89*+%8(:(!&;$%<,&(7,;,/=>(9'4"0( '%/+%,( ' ''' "#$%!&'&( ' '' ' !"#$%&'!()*+(,)'-./$%0&' 11123"#$%&2.40 567'66'7896'6::6' ' Armando Martínez Flores
and Parameters for Architectural Design 03/30/2023 Armando Martínez Flores Advanced 3D Modeling for Architectural Design 03/30/2023
Families

Armando Mart€nez Flores

16/02/2021

https://learndigital.withgoogle.com/link/1nur091p2ww

ID de este diploma: 13394D164262556265876

CERTIFICADO

Arcux Learning Center deja constancia que: ARMANDO MARTÍNEZ FLORES ha completado el programa virtual formativo de: Especialidad en Revit Structure 2021: Modelado, gestión y documentación de estructuras BIM

19 de enero de 2022

D de este diploma: 13398D164262923365876

CERTIFICADO

Arcux Learn ng Center deja constancia que: ARMANDO MARTÍNEZ FLORES ha completado el prog ama v rtual formativo de: Especialidad BIM con Revit: Arquitectura, Estructuras y MEP

19 de enero de 2022

R ECONOCIMIENTOS
QV3 ZN3 VUC
Edward Espinoza Gerente General Arcux S.A.C.
Edward Espinoza Gerente Genera Arcux S.A.C.

Turn static files into dynamic content formats.

Create a flipbook
Issuu converts static files into: digital portfolios, online yearbooks, online catalogs, digital photo albums and more. Sign up and create your flipbook.