work-book

Page 1

ARMANDOGIORDANO

CV - full version on issuu.com

ESPERIENZE LAVORATIVE

01/2018 - IN coRso Libero professionista

Progettazione architettonica ed esecutiva, direzione lavori e pratiche, progettazione esecutiva e gestione commessa per falegnamerie, rilievilaser scanner 3d e point-c/oud, modellazione 3d architettonica ed esecutiva, visualizzazioni fotorealistiche, virtual tour e 360'

0112020 04/2022

AcciaioT&Dsrl

Collaborazioneprofessionale Collaborazione per progettazione e realizzazione di manufatti in acciaio inox

01/2020 04/2022 MercuriCostruzionisrl

Collaborazione professionale Ufficio tecnico e coordinamento per arredamento ed infissi custom-made in legno e in metallo

01/2018 12/2019 BerarducciArchitecture

Archilelto progettista Collaborazione per progelli di architettura internazionali e concorsi

09/2016 12/2011

DFFrancia srl-Luxuryinterior

ProjectManager Ufficio tecnico e coordinamento per arredamento custom made per boutique settore luxury

01/2014 08/2016 P130Arch&lng

Architettoprogettista Collaborazione perristrutturazioni, gestione e coordinamento opere di cantiere

01/2013 12/201• G.Contract srl

Ardi/ettod'iltemi Progettazione di arredi d'interno, infissi, imbottiti. Coordinamento realizzazione e montaggio

09/2009 09/2010

01/2011 12/2012

09/2004 09/2006

BuldinxArchitecture

Tirocinio formativo Col/aborBLione per concorsi di archiellura

Soli Eventi Amalfi

Collaborazioneprofessionale Organizzazione e coordinamento di allestimenti per eventi pubblici e privati

LegnoArredosrl

Tecnicomontaggio Montaggro dr arredamento d'interni per abitazioni private

0 /TI':\ '7 Autocad 2d/3d Rhinoceros 3d 3ds Max V-ray Corona render Photoshop lllustrator lndesign Cinema 4d Archicad Revit Relux Dialux Primus Docfa Office 0 N

WORK BOOK

INDEX

WORK BOOK

1. RESIDENTIAL

2. HO.RE.CA.

3. OFFICE

4. EXTERIOR

5. FURNITURE & PRODUCTS

DETAIL BOOK

1. ARCHITECTURE

2. WOOD FURNITURE

3. METAL FURNITURE

4. LIGHTING DESIGN

HOUSE, 2019

SALERNO, ITALY

PRIVATE
Private work

ROME, ITALY

2018

PENTHOUSE,
Berarducci Architecture

LUXURY FARM HOUSE, 2018

Berarducci Architecture

LUXURY APARTMENT, 2019

FRANCE

PARIS,
Berarducci Architecture

LUXURY LOFT, 2019 ROME, ITALY

Berarducci Architecture

PRIVATE APARTMENT, 2021

ROME, ITALY
Private Work

PRIVATE HOUSE, 2022

TRAMONTI, ITALY

Private work

work

HOUSE, 2021

ROME, ITALY
PRIVATE
Private

LUXURY B&B, 2020

POSITANO, ITALY

Private work

FLOWER, 2021

MILANO, ITALY

HOTEL
Private Work

PAVIA, ITALY

PIZZA,

GOLDEN
2020
Private Work

IMPREGILIO CAFE, 2019

COMPETITION, ITALY

SALINI
Berarducci Architecture

OFFICE, 2019

ITALY

TESLA
ROME,
Berarducci Architecture

ROME, ITALY

T&D OFFICE, 2020

ACCIAIO
Private work

COMPETITION, ITALY

STORE,

ACEA FLAGSHIP
2021
Private work

COMPETITION, ITALY

HUB,

ACEA INNOVATION
2021
Private work

TEMPORARY STORE,

COMPETITION, ITALY

ACEA
2021
Private work

HOUSE,

Private work

ROME, ITALY
PATIO
2021

ROME, ITALY

TERRACE, 2021

Private work

PRIVATE

2020

COMPETITION, ITALY

TAMAT

GLAMPING,
with Studio

INFINITY VILLA, 2019

MARBELLA, SPAIN

Berarducci Architecture

HOTEL SF,

D’AMALFI, ITALY

LIDO
2018 COSTA
Private Work

PRIVATE KITCHEN, 2020

CERVETERI, ITALY

Private work

PRIVATE KITCHEN, 2020

CERVETERI, ITALY

Private work

work

KITCHEN, 2021

ROME, ITALY
PRIVATE
Private

KITCHEN, 2019

DE TIRRENI, ITALY

work

PRIVATE
CAVA
Private

DINING ROOM, 2021

NARDO’, ITALY

PRIVATE
Private work

MEETING TABLE, 2019

LAW FIRM, ITALY

All Project Architecture

CHANDELIER, 2019

PENDENT LIGHT, ITALY

Berarducci Architecture

LIGHT, ITALY

O LIGHT, 2019 OUTDOOR
Italia Luce Design

ARMANDO GIORDANO

Architetto mail: arma.giordano@gmail.com phone: +39 393 50 75 267

DETAIL BOOK

wood furniture

INDEX

WORK BOOK

1. RESIDENTIAL

2. HO.RE.CA.

3. OFFICE

4. EXTERIOR

5. FURNITURE & PRODUCTS

DETAIL BOOK

1. ARCHITECTURE

2. WOOD FURNITURE

3. METAL FURNITURE

4. LIGHTING DESIGN

CORDA, 20221

LIVING + KITCHEN + BEDROOM FRASCATI, ITALY realizzazione di falegnameria

ARMADIO A.6

ARMADIO A.5

RIVESTIMENTO SPECCHIO

ARMADIOA.4 915

A.2

ARMADIOA.3 915

218

CAVEDIO CAVI TV VANO TV

140 640 140 1200 140

MOBILE TVA.8 2260 152 495

LUCE PASSAGGIO 852

GIROLETTO PER RETE L180X190

STRIP-LED INCASSATA SUL PIANO TESTATA LETTO RIVESTITA IN PELLE

TESTATA LETTO4565

DERIVAZIONI

LUCE

B.1

1191 PANNELLO LATO

ARMADIO BATTENTE

B.2 455

755

PANNELLO 2148

PORTASCRIGNO LACCATABIANCO

B.1260 60 B.22906 B.3260 B.41140

PANNELLOB.3 200 LATOLACCATONCS 4GLOSS
960 480480480
A.1 800 600 STRUTTURA 353 STRUTTURA 373 STRUTTURA 373 STRUTTURA 373 STRUTTURA 155 LATOLACCATOBIANCO 4GLOSS 98 ARMADIO
472
48
1148
415 640
A PARETE
150 640 25
6 5 774140 LUCEPASSAGGIOATTUALE895
4 5 PLANIMETRIA
4GLOSS
PASSAGGIOATTUALE796
106H
LACCATOBIANCO 4GLOSS LATOLACCATOBIANCO 4GLOSS

VANO PASSANTE

PASSANTE

SPECCHIO

SPECCHIO

VANO PASSANTE

VANO PASSANTE

TV

CASSETTO CASSETTO

VANO PASSANTE

VANO PASSANTE

SPECCHIO SPECCHIO

SPECCHIO

passaggio cavi

passaggio

CASSETTO CASSETTO

cassetto

SPECCHIO

cavi

VANO
VANO
1406401401200140 6 10 600 140 1130 90 320 10 90 510 140 720 90 320 90 140 foro
495 163217 140
MOBILE TV - A.8 2260 320 100 140 2420 FORO CONTROSOFFITTO - 2156 140 320 90 320 90 720 140 510 90 VANO TV
1406401401200 6 10 600 140 1130 90 320 10 90 510 140 720 90 320 90 140 presa
foro
tv corrugato con
a pavimento 495 163217 140
MOBILE TV - A.8 2260 320 100 140 2420 FORO CONTROSOFFITTO - 2156 140 320 90 320 90 720 140 510 90 10 H BOISERIE2420 21 60 H BOISERIE2420 21 10
B.1 260 B.3 260 B.4 1140 45 B.1 260 B.2 2906 B.3 260 B.4 1140 STRIP-LED INCASSATA SUL PIANO 150 260 260 1140 150 B.2 2906 4574 10 1100 120 INCASSO PRESE SUL PIANO INCASSO PRESE SUL PIANO 500 430 RIVESTIMENTOIN ECOPELLE DAQUOTAREAPARTE RIVESTIMENTOIN ECOPELLE DAQUOTAREAPARTE RIVESTIMENTOIN ECOPELLE DAQUOTAREAPARTERIVESTIMENTOIN ECOPELLE DAQUOTAREAPARTE RIVESTIMENTOIN ECOPELLE DAQUOTAREAPARTE RIVESTIMENTOIN ECOPELLE DAQUOTAREAPARTE RIVESTIMENTOIN ECOPELLE DAQUOTAREAPARTERIVESTIMENTOIN ECOPELLE DAQUOTAREAPARTE strip-led CASSETTO CASSETTO CASSETTO CASSETTO 60 430 1906 500500 500 14531453 ASOLA FODERA PER ACCESSO DERIVAZIONI presa cassetto 495 specchio 10 600 140 1130 90 320 140 H MOBILE TV2420 H SOTTOTRAVE2498 H CARTONGESSO2451 420 H MOBILE TV2420 10 1191 774 140 2085 2097 333 333 H CARTONGESSO2451 21 da riposizionare 503 LUCE PASSAGGIO ATTUALE2169 472 457.5 457.5 457.5 10 48 98 ARMADIO - A.2 472 ARMADIO - A.3 915 ARMADIO A.4 915 H ARMADIO2420 1180 1180 RIPIANI TUTTI SPOSTABILI SERVETTO SERVETTO H CARTONGESSO2451 H ARMADIO2420 21 ARMADIO - A.2 472 ARMADIO - A.3 915 ARMADIO - A.4 915 457.5 60 10 10472 457.5 457.5 457.5 10 48 98 ARMADIO - A.2 472 ARMADIO A.3 915 ARMADIO A.4 915 H ARMADIO2420 1180 1180 RIPIANI TUTTI SPOSTABILI SERVETTO SERVETTO H CARTONGESSO2451 H ARMADIO2420 21 ARMADIO - A.2 472 ARMADIO A.3 915 ARMADIO A.4 915 457.5 60 10 10 H CARTONGESSO2451

MARIANO, 20221

LIVING + BEDROOM FRASCATI, ITALY realizzazione di falegnameria

VANO TV 55" CESTONE ESTRAIBILE45 37 37 45 45 6 6 6 6 6 272 239.9 63.8 72.4 40.8 70 65.2 1 272 239.9 APERTURA A TIRARE APERTURA A SPINGERE A TIRARE A SPINGERE 239.9 239.9

MADIA

ANTE E TOP: impiallacciato rovere tinto GOLA: laccato opaco come boiserie INTERNI: laminato

PARETE C

GOLA RIGIRA

PARETE

PARETE A
B 15 49 15 126 15 49 15 48.5
35.3 60 60 55 22 55 175 85.5 32.8 15 63.872.440.87065.2 47.8 7.9
40 10 60 60 60 60 60 10 320 1 72 2.5 2.5
A 45°
scuretto 1cm MASSELLO LACCATO

PARETE

CAVEDIO CAVI TV VANO TV scuretto MASSELLO LACCATO 15 101.2 15 127 15 149 15 11 47 10 12.5 24.5 43 RIVESTIMENTO SPECCHIO SATINATO 11.1 120 4 60 120 120 116 7 60 60 4 PARETE D
E

VANO PASSANTE

VANO TV

SPECCHIO SATINATO

CASSETTO

VANO PASSANTE

PER VANO PASSANTE

SPECCHIO SATINATO SPECCHIO SATINATO SU PANNELLO CON CALAMITE

CASSETTO

ISPEZIONE CENTRALINE A MURO

407.2 15101.2151271514915 1 1 1 269.4 24 1 9 47 18 80 9 36.7 9 36.7 1 56 18 125.7 9 36.7 24

satinato

strip-led

passaggio cavi

cassetto

satinato removibile

corrugato con

ispezione derivazione a

1 9 47 18 80 9 36.7 9 36.7 24 presa
foro
tv
cavi a pavimento 47 24.510 18 incasso presa cassetto incasso
43 18 specchio
specchio
per
parete1 56 18 125.7 9 36.7 24

SEVEN, 2019 KITCHEN ROME, ITALY realizzazione

falegnameria

di

MANCI, 2020

KITCHEN-DINNER SALERNO, ITALY realizzazione di falegnameria

PIANO TAVOLO LACCATO OPACO

SCHIENALE E FIANCO

14,2 236,7 H 253,3
ROVERE 0 GLOSS FRONTALI LACCATO OPACO PANNELLO LACCATO OPACO ROVERE0GLOSS SOTTOLAVELLOP/C FORNO LAVASTOVIGLIE 6080601321 55 28 2022 VANO A GIORNO COLONNA FRIGO 1,6 60 1,6 236,5 76,5 59,3 180 17 60 10 72 132 37 COLONNA 48,5 235
140 80

LACCATOOPACO manigliedadecidere

14,2 80,6 76,5 42 1 H 252,8
ROVERE0GLOSSmanigliedadecidere 112 138 1,2 1,6 113 44 120 60 17 60 137 112 137 PANNELLO LACCATO

FARNESI, 2019

KITCHEN ROME, ITALY realizzazione di falegnameria

PROSPETTO C

DIMENSIONE TOTALE COMPOSIZIONE -

C A S S E T T O I N T E R N O L E G R A B O X C O N

F R O N T A L E C H I U S O ( T I P O N B L U E M O T I O N

S E P O S S I B I L E A L T R I M E N T I S O L O

B L U E M O T I O N ) D I M E N S I O N A T O P E R

P O R T A P O S A T E E S S E T R E C O D E W 9 0 0 6 8 4

LEGRABOX SOTTOLAVELLO CON TRAVERSA

60

162 140

90 90 90 60

CESTONE INFERIORE PER PATTUMIERA INTERNA COD. GI90XACELEAV70

LAVASTOVIGLIE

CESTONE SUPERIORE PER PORTAPOSATE INTERNO COD. EW900684

CESTONE INFERIORE PER PORTAPIATTI INTERNO COD. GB900184

PROSPETTO B

60 120
10 (IN ATTESA MONTAGGIO RIVESTIMENTO)190 60 5 60
405
PROSPETTO A
AEG FSE52700P
PROSPETTI

Ai termini di legge sui diritti d'autore, questo elaborato non potrà essere copiato, riprodotto o comunicato ad altre persone s enza l'autorizzazione degli autori. L. n. 633 22 aprile 1941, aggiornato al 31 dicembre 2006

6 81.5 6 81.5 6 78 6 6 60 10909090 60 60 6 162 10 60 90 16 60 5 60 78 3.5 6 93.5 3.5 93.5 DIMENSIONE TOTALE COMPOSIZIONE 405 LEGRABOX SOTTOLAVELLO CON TRAVERSA LAVASTOVIGLIE AEG FSE52700P PROSPETTO CPROSPETTO A PROSPETTO B CESTONE INFERIORE PER PATTUMIERA INTERNA COD. GI90XACELEAV70 PROSPETTI 1:20

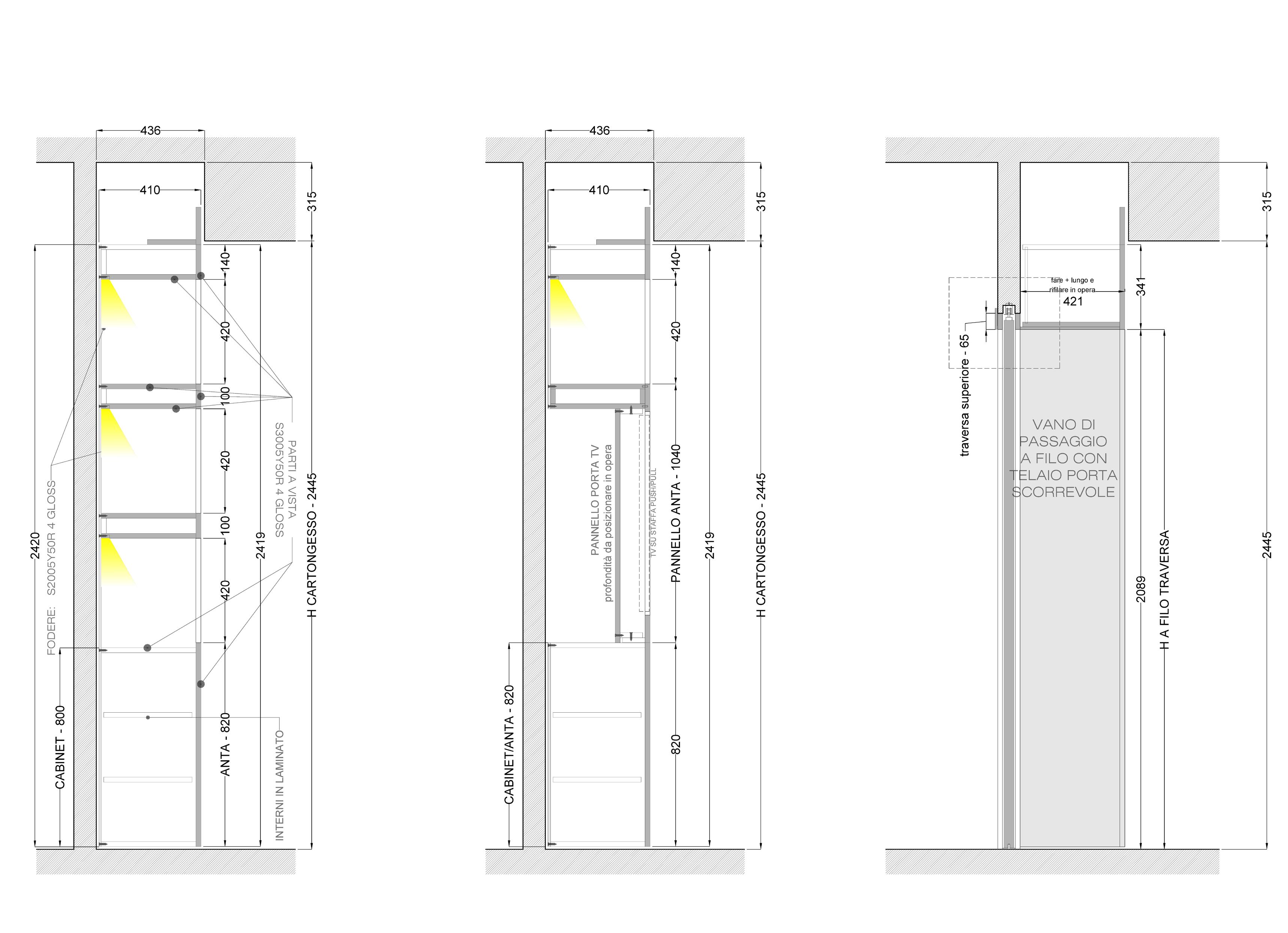
2019

PASS-THROUGH WARDROBE WITH HIDDEN DOORS NAPOLI, ITALY realizzazione

falegnameria

MERCA,
di
PUSH-PULL PUSH-PULL PUSH-PULL PUSH-PULL PUSH-PULL PUSH-PULL PUSH-PULL PUSH-PULL PUSH-PULL PUSH-PULL PUSH-PULL PUSH-PULL PUSH-PULL ROVERE ROVERE ROVERE ROVERE 10 37 216 54 3 108 81 162 108 54 162 44.4 44.4 44.4 44.4 44.4
54 216 37 101 111 108 54 108 162 81 44.4 88.8 44.4 44.4 10 88.8 88.8 44.4 53 7 spazzolini adesivi per porte 88.8 88.8 44.4 53 10 37 162 108 37 10 37 162 108 10 37 216 54 SPECCHIO LACCATO BIANCO SPECCHIO LACCATO BIANCO

NITOGLIA, 2022

MULTIFUNCTIONAL CUBE ROME, ITALY realizzazione di falegnameria

corridoio

soffitto-cubo

specchio vetro

piano in legno rivestito in FENIX colore NERO

ALPI

soggiorno soggiorno cucina

ASSONOMETRIA A ASSONOMETRIA B
impiallacciatura
1. CONSOLLE d'ingresso con cassetto 3. MOBILE tv con ante a battente2. MOBILE angolo con anta a battente e nicchia 4. CORNICIONE in legno per raccordo
7. PIANO cucina (lavandino) 6. PIANO cucina (fuochi)TAVOLO 5. MENSOLE in FENIX colore NERO
85608575 SOTTOLAVELLOFRIGO75 BASE P/C 2 cassetti + 1 cestoneLAVASTOVIGLIE DISPENSA COLONNA FORNO MICROONDE + 2 CESTONI BASE P/C 2 cassetti + 1 cestone 60 60 95 90 0.5 0.5 1010 0.5 10 0.5 10 61 61 61 61 61 115 105 62.5 326 0.5 10 0.5 10

CECCARELLI, 2022

KITCHEN + CUBE ROME, ITALY realizzazione di falegnameria

P3H2400153 P4 H2400 1066 P5 H2400 1066 P2633 P1 H24001130 18 H2400x820 378 H2400x700 S12 H2312 x 707 S11 H2312 x 707 S10H2312 x 556 S9 H2312 x 320 S8H2312 x 496 S7 H2312 x 320 S6H2312 x 736 S5 H2312 x 707 S4 H2312 x 707 S1H2312 x 980 18 S2H195 x 657 18 S346

2350

Doo he gh ( TH 2342

n de w d h ( LMB

518

484

411

2 1155

5 50

94

407 25

0

418 25

10 2107

27

129

40 444 25

+ 66 550 25

123 2227

5 + 26 76

4 + 70 164

2 + Q 1835

4 Z2 4 Z3 3

1085

986

19 18

MB 1018

Hawa S d ng Solut ons AG Unt e e F s chbachs as s e 4 8932 Me t mens t e en Schw e Te +41 44 787 17 17 Fax +41 44 787 17 19 n o@haw a com w w w haw a com tem no . Art c e P ece mm 27638 HAWA Fo d ng Concep a 25 e hand moun ng a u p a n anod z ed 1 1851 2600 27639 HAWA Fo d ng Concep a 25 gh hand moun ng a u p a n anod ed 1 1851 2600 O pt ona acces s or es tem no Art c e 24322 Re n o cemen p o e nc op t ack connec on p a e a u p a n anod z ed pred ed 2600mm 24281 Re n o cemen p o e a u p a n anod z ed pred ed cu o s z e 24321 Top ack conne on p at e a u p a n anod z ed p ed ed Re ommenda on: Us e Haw a S ra gh en ng ng A t en on Bas e p o es mus be o dered nd v dua y tem no Art c e 24004 Ba e p o e omp et e nc ud ng cover cap ead ng amp and d ng g a u p a n anod z ed 1300 mm 25481 Bas e p o e omp et e nc ud ng cover cap ead ng amp and d ng g a u p a n anod z ed 2000 mm 25479 Bas e p o e comp et e nc ud ng cover cap ead ng amp and d ng g a u b a k anod z ed 1300 mm 25480 Bas e p o e omp et e nc ud ng cover cap ead ng amp and d ng g a u b ack anod z ed 2000 mm mm n a at on he ght EH
2036 Doo w d h ( TB) 505 25 Doo h cknes s S 19 Cab ne dep h ( K T2
Ha dw a e dept h T2
25 S de n dept h E2
25 Doo hand e s pac ng ( M2 0 Q 660 Q
Q 4
Q
Q 6
Q 8
Q 9
Q
TA
P
T2
T2
EH
Q
Q
EH
Z1
Y
X
Doo w e gh
1/2
505 25 2 3 4 2 2 1 0 7 27 9 8 6 9 8 6 9 8 6 9 8 6 505 25 2 3 4 2 2 1 0 7 164 1 0 8 5 1 0 8 5 484 25 2 3 5 0 129 164 7 6 0 484 5 418 25 407 25 1 1 5 5 2 3 5 0 1 8 3 5 27 3 3 3 9 4 5 1 8 3 0 1 9 2036 4 1 1 2 5 27 3 55025 55025 44425 4425 44425 44425 018 7 44 2 5 0 5 55 25 44425 4 4 5 44425 1 18
1997 415 17 80 600 930 900 600 600 907 900 578 600 929 901 600 600 MDF 6mm laccato in testa MDF 6mm laccato in testa celetto in marmo 20mm fianco in marmo 20mm top in marmo 20mmPAVIMENTO/SOFFITTO 2508 PARETE/PARETE 3650 ALLACCIO PER SANITRIT FRIGO INCASSO ELECTROLUX ENS8TE19S LAVASTOVIGLIE BOSCH SMH4HTX37E BASE SOTTOLAVELLO

presa d'aria frigorifero

576

pannello laccato riportato sotto il fondo

800 80 615 1197 415 17 17 schienale e top in marmo 20mm

FRIGO INCASSO ELECTROLUX ENS8TE19S

vedi scheda tecnica

presa scavata nell'anta

gola su anta

vedi scheda tecnica per spessorare il fondo

FRIGOINCASSOELECTROLUXENS8TE19S 600 615 930 900 600 600 600 LAVASTOVIGLIEBOSCHSMH4HTX37E ALLACCIOPER SANITRIT740 600 590 9 9 6 6 590 500 MDF 6mm laccato in testa MDF 6mm laccatoin testa BASESOTTOLAVELLO 800 80 600 415 615 615 celetto in marmo 20mm

313 22 380

DETAIL BOOK

metal furniture

INDEX

WORK BOOK

1. RESIDENTIAL

2. HO.RE.CA.

3. OFFICE

4. EXTERIOR

5. FURNITURE & PRODUCTS

DETAIL BOOK

1. ARCHITECTURE

2. WOOD FURNITURE

3. METAL FURNITURE

4. LIGHTING DESIGN

DETAIL BOOK architecture

INDEX

WORK BOOK

1. RESIDENTIAL

2. HO.RE.CA.

3. OFFICE

4. EXTERIOR

5. FURNITURE & PRODUCTS

DETAIL BOOK

1. ARCHITECTURE

2. WOOD FURNITURE

3. METAL FURNITURE

4. LIGHTING DESIGN

DETAIL BOOK

lighting design

INDEX

WORK BOOK

1. RESIDENTIAL

2. HO.RE.CA.

3. OFFICE

4. EXTERIOR

5. FURNITURE & PRODUCTS

DETAIL BOOK

1. ARCHITECTURE

2. WOOD FURNITURE

3. METAL FURNITURE

4. LIGHTING DESIGN

Turn static files into dynamic content formats.

Create a flipbook
Issuu converts static files into: digital portfolios, online yearbooks, online catalogs, digital photo albums and more. Sign up and create your flipbook.