GRADUATE OF ARCHITECTURE
PORTFOLIO
ARLEN BURGER 2018 - 2021 |
C O N T E N T S
CONTENTS

![]()
ARLEN BURGER 2018 - 2021 |
C O N T E N T S

Currently within our urban environment - buildings set out to increasingly consume energy through the existing power grid - without advancing to use systems and integrated devices for capturing energy from the natural elements. We as a collective of end-users also continue to raise building energy consumption rates and are not considered as an opportunity to generate energy through our daily interactions. These conditions highlighted that future buildings in the urban environment should aim to be energy independent systems and require the use of progressive materials. Which hold the capacity to capture energy from the natural elements and interactions of multiple end-users.
In response, this project examined to upgrade the highly active Melbourne University Union House into a futuristic decentralised energy building. Through the incorporation of a morphological response that conforms to a triboelectric fabric, which generates energy through frictional forces of wind and user interaction.

Site selection of the Union House building, due to its open positioning to wind & high volume of daily users.



Selection of components complied to complete a self-supportive decentralised building system. Where energy is stored for consumption and powers a series of compressors to activate facade movement. Ensuring that energy can be efficiently recaptured before it depletes due to storage deficiencies of ion lithium batteries over long periods of time.



Morphology diagrams expressing the appropriate geometrical response to capture the wind from all directions and the ability to regenerate energy.



Private, Recreation, & Education Program Layout

Internalised Program, Circulation, & Energy Generation Strategy Diagrams

Kreuzberg’s settled migrant residents are facing rapid gentrification as the 1948-87 IBA social housing agreement ended in 2012. Threatening the future of a communally vibrant place that is built upon its cultural diversity of residents. The Prinzessinnengarten that is located in Kreuzberg, promotes a communally active place in the area, which connects a diversity of users through food production and biodiversity. Also faces a gentry closure as the government supported site is set to sell. These outcomes outlined that the appropriate development of the site should infuse the existing programs, community members, and provide temporary housing to assist residents that have been affected by the transformation of social housing.
| PROGRAM ZONES
In response, the project explores to upgrade the Prinzessinnengarten by providing housing which promotes a refuge living environment, and restoring the food garden through integrated spatial arrangements between the new residents, existing garden and public community users.
PRINZESSINNENGARTEN | PROGRAM ZONES
Diagrammatic design objectives set to provide a controlled integration of user groups and apartment living that promotes a sense of










Port Moresby over the past two decades has experienced continuous village migration towards resourceful and connected urban settlements. Due to the cultural processes of village migration, a connected network of tribes and nuclear families share living arrangements together. Within urbanised settlements the lack of access towards affordable housing and familiar local building materials results in the unsustainable expansions of existing houses to support overcrowding of additional family members. The conditions highlight that culturally appropriate domestic housing for settlements should consider to support migration influxes and overcrowding.
In response, the thesis project explores to upgrade the urban Segani settlement through the provision of low-cost domestic housing and a primary school building. By incorporating existing or improved density arrangements, user flexibility, and a familiar local material palette.

Mapping of urbanised settlement growth isolated the proximity of domestic food markets and agricultural ridgelines as a driver towards overcrowded living conditions. Whilst identifying Segani as a site to explore the provision of low-cost housing.

Perspective of the primary school & domestic housing structured along the food market & agriculture walkway.

Analysis of Segani highlighting the flows between food markets and agriculture fields, and existing domestic house typology clusters.

Sketches depicting the typical unsustainable, overcrowded, and poor sleeping conditions of settlement housing through the use of recycled material additions.


Response diagrams depicting housing structured along a food market walkway, clustered in family groups, and orientated around a communal kitchen.







An architectural détournement sets to critique and subvert mainstream visual portrayals of an area in the built environment ‑ to form a visual guide defining observations of overlooked, invisible, and everyday facets in that area. Having lived in Collingwood for 3 years, this détournement set to analyse its built re-development to uncover who it affects, marketing strategies and targeted consumers, and the effects of built outcomes.
Using photos of the current built environment and subtle collaging overlays of social media, development marketing, and an existing social venue. The final 3 images directly reveal the correlations of layers causing cultural and social relationship changes in Collingwood. Ultimately highlighting: the importance of Collingwood’s indie sub-culture class and the use of infrastructures to support their practices, how developers utilise lifestyle marketing to attract new consumer classes, and how such tactics have changed infrastructures that once supported creative practices, which facilitated to uphold apart of Collingwood’s creative identity.

Collingwood’s cultural diversity is largely formed through its indie sub-cultures - typically practicing writing, music, theatre, art and film. Alignment of Collingwood’s, centrality, affordability, venues and infrastructures are essential for the class to successfully practice and display their creative work. Lushsux, a popular graffiti artist, exemplars such work on display, promoting a sense of artistic creativity on an empty urban block.

Consequently, places of creative diversity attract affluent ‘creative classes’. Spawning developments tend to target affluent aesthetic ideals by promoting tailored lifestyle environments. GurnerTM‘s branding outlines such promotions: built forms are reduced to sketches, whilst interior renders of materiality, lighting flare, and city views attract the consumer.

The result of built branded developments underlines Debord’s societal function of the spectacle. The probable profit margins here managed to alienate a key sub cultural space. The People’s Market, which once facilitated designers, crafts, food and entertainment practices for the local community to enjoy – is now no longer available to Collingwood’s indie sub-cultural class and community because of this development.










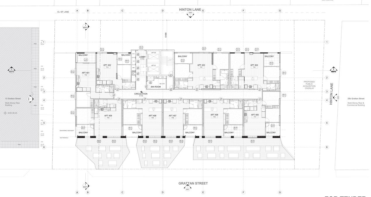
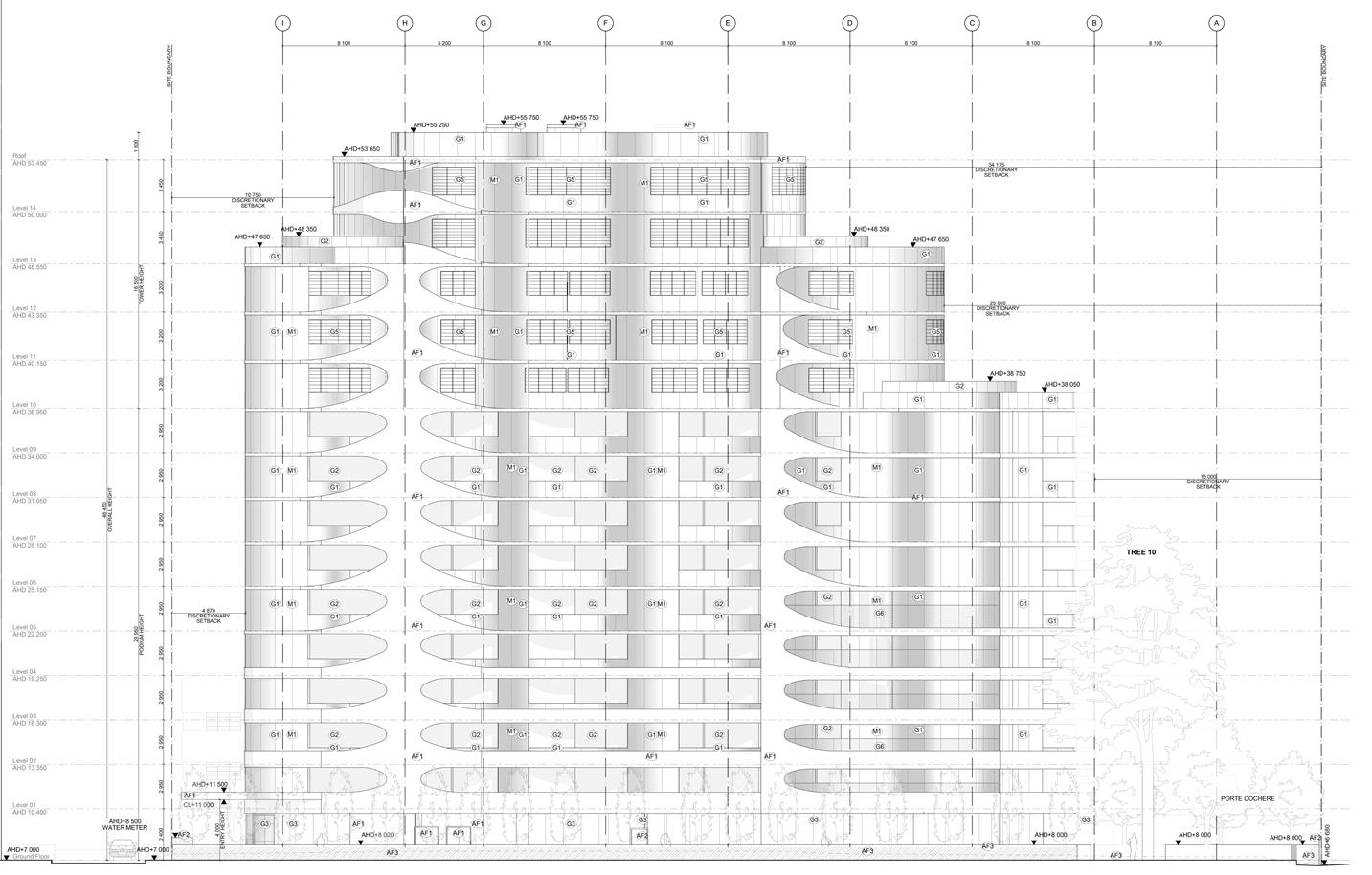
Grattan is a seven storey mixed-use proposal that incorporates 84 apartments, retail and hospitality space that opens onto the corner laneway, and commercial tenancies on the corner side of level one. The slanted form of the facade conforms to meet the Grattan Garden shadow setback requirements and is segmented into three fissures. Breaking down the visual appearance into a rhythm of angler profiles following the language of the garden setback, whilst a green tiled finish looks to blend back towards the Grattan Gardens.
My role in the project involved working alongside team members throughout the design development phase. Where I initially remodelled elements of the project from ArchiCAD into Revit. To then produce overall elevations and sections, balustrade detailing, parametric modelling of kitchen and bathroom packages, and the window schedule package.







Throughout my time at Plus, I worked on several projects during the town planning phase and produced renders for presentation and council requirements. My role whilst working on town planning applications included overall documentation, apartment planning, and completing council requests for further information. The process to produce renders included the use of Lumion, and Photoshop procedures that enabled efficient production while maintaining quality outcomes. The inclusion of the two mixed-use residential projects on the right are examples of renders I produced using the mentioned procedures.
The Queens Road project displayed below is an example of a town planning application that required permit condition updates for council approval. My role in the project included the completion of all conditional updates, which primarily involved the retainment of the front mature eucalyptus tree. As a result, this required the adjustment of the basement carpark, front facade envelope, effected apartment layouts, shadow diagrams, and the addition of apartment privacy screens.





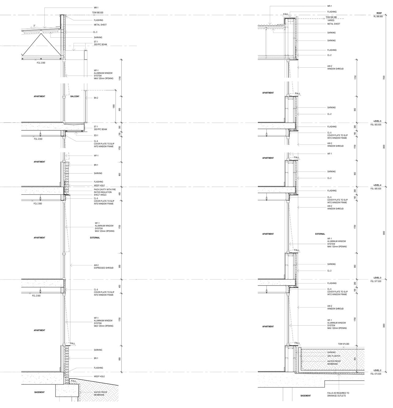
Marlu is a multi-residential development including 119 apartments and 20 townhouses. Arranged along both horizontal streetscapes, a garden in between, buffers the two living typologies. Whilst a pool, outdoor dining and gym are positioned on the adjacent axis. The apartments present large offset white boxes that open northern views, along the street edge, brickwork and metal planes aim to promote privacy for the residents. Nestled below, the townhouses present angler articulation and sections of dark finishes on the grounding, yet lighter finished brickwork walls – capturing individual identity.
My role included collaboration with the project architect to complete design development and construction documentation for the combined developer and builder whilst construction commenced. Packages included general arrangement and setout plans, wall types, wall sections, detailed drawings, and the window and door schedules. Responsibilities included the incorporation of regulatory requirements, meeting client documentation standards, coordinating consultant packages, selecting building materials, and facilitating an architectural graduate to document packages.







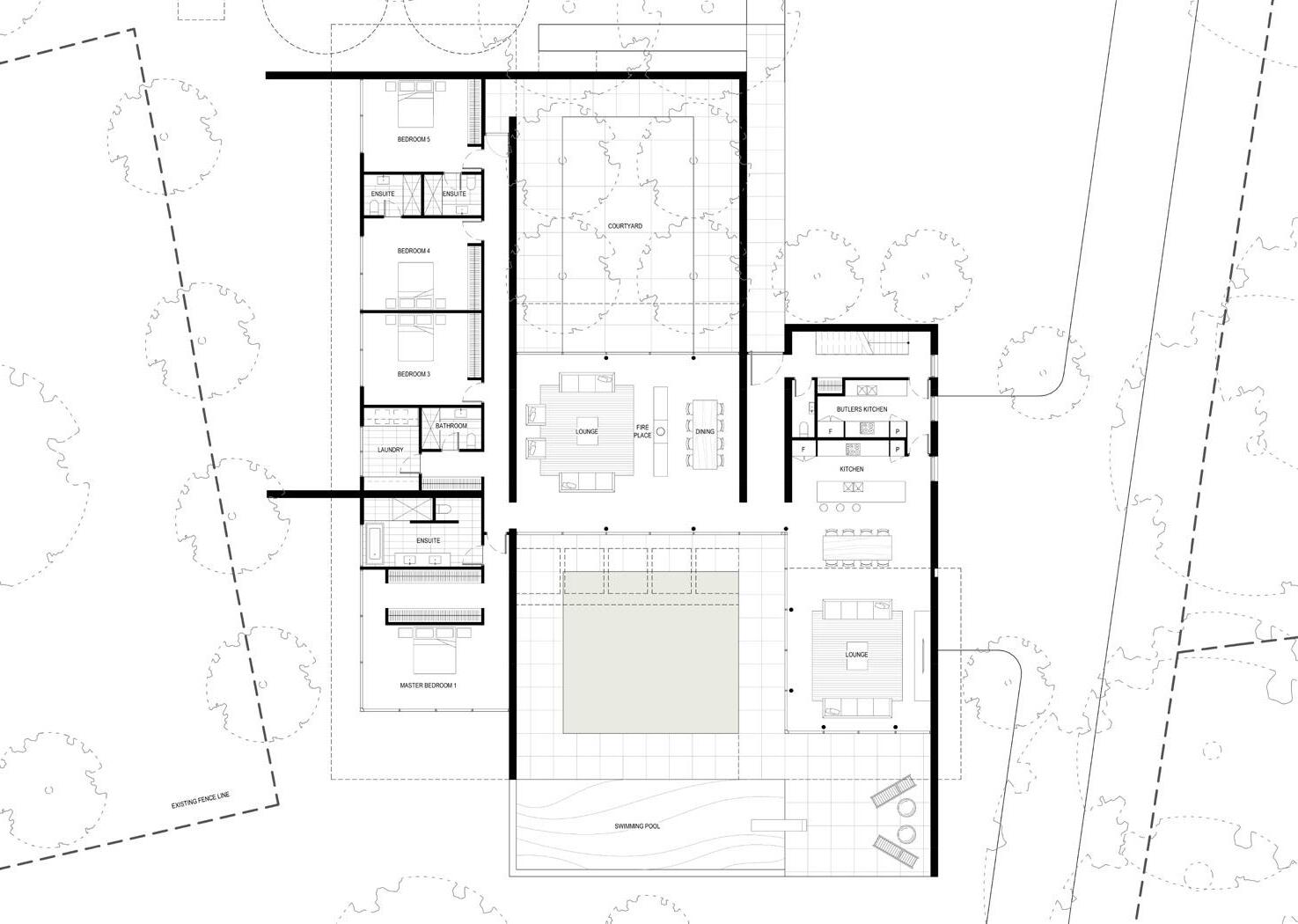
The Bonshaw House conceptually developed through a central courtyard and planar language derived from the client’s interest in concrete and glass. Enabling a split between private, communal, and entertaining partitions, which is articulated through straight, yet disjointed bounding lines between the two materials. Its enclosed approach from the rear, shields from the eastern Harman industrial zone and prioritises views of the southern Tinderry mountain range – opposed to the northern main road. Toned concrete and stone wall planes are nestled into the natural topography. Expanded by glazing lines that separate a floating roof profile from the landscape, whilst allowing angles of light into southern orientated rooms.
My role included working independently under the design director to produce and present concept presentations based on an initial sketch plan that responded to the client’s brief. This required researched analysis of existing site conditions, precedent designs, planning regulations, and initial services. Implementation of analysis, brief requirements, and design articulation were formulised in Revit to produce plans and perspective views for progressing concept presentations to the client.






ARLEN BURGER 2018 - 2021 | PORTFOLIO