Architecture portfolio_AB

Page 1

PORTFOLIO ARCHITECTURE

2023
selectedworks ariungerelbatkhuyag

CONTENTS

01CV

Introducingmyself,skills,educationand experiences

02Landscape&urbanism

Academicworks

•NewdistrictinMladaBoleslav

•RevitalizationofformerPapermill_VnV

03Buildingarchitecture

Academicworks

•OfficebuildingPraga-Południe (Warsaw,Poland)

•ApartmentbuildingHolesovice

•FamilyhouseHanspaulka

04Interiordesign

Academic/Professionalworks

•Variousinteriordesign

Iamafinalyearmaster’sstudentattheCzechTechnicalUniversityin Prague.IstudyattheFacultyofCivilEngineeringwithaspecialization inarchitecture&buildingsciences.Ifinishedmybachelor'sdegree (BArch.)in2021andIamato-beMArch.inmid-Juneof2023.

MyfullnameisAriungerelBatkhuyagandIwasbornin1997.Iamori‐ginallyfromUlaanbaatarbutIspentmostofmylifeinPrague.

Myfavouritethingsarelongwalks,tennis,readingbooksandmodelling anythinginSketchUpwhilelisteningtomusic.Ialsovolunteerat UNICEFasagraphicdesigner.

LastfewyearsIlearntalotfrommyprofessorsorarchitects/colleagues whichwhomIworkedwith.MeantimeIdevelopeddifferentskillssuchas teamwork,criticalthinking,solvingproblemsandcommunication.Iam alwayseagertolearnsomethingnew.

OneofthethingsIlikeaboutarchitectureishowitmakesyouthinkin variouswaysanditalwayshasdifferentendings.Howexciting!

Iamalsoverypassionateaboutsustainabilityinarchitecture,whichI thinkisaveryimportantpartofourjobs.Veryexcitedtolearnsomething newinthisfieldduringmyinternship.

Thisportfoliocontainsselectedprojectsofmyacademicandpersonal work.

Hopeyouenjoy &

CzechTechnicalUniversityinPrague,FacultyofCivilEngineering

MasterofArchitecture-MArch.,ArchitectureandBuildingSciences

2021-2023

CzechTechnicalUniversityinPrague,FacultyofCivilEngineering

BachelorofArchitecture-BArch.,ArchitectureandBuildingSciences

2017-2021

Juniorarchitect

PMarchitekti,PragueCZ aug2021-present

Jobdescription: Ihavebeenworkinginthisstudiowithafamilyatmosphereforalmosttwoyears.Mytaskasajuniorarchitect istomodeltheterrain,createaconcept,designthefloorplanandalsodesigntheinterior.Duringmywork,Ialsodomore technicalthings,suchasdrawingimplementationdocumentationandconstructiondetails.Anintegralpartoftheworkiscommu‐nicationwiththeauthoritiesandvisitstobuildings.WemodelinSketchUpanddrawdrawingsinAutoCAD.

Intern

Logio,PragueCZ jul 2020-jun2022

Jobdescription: Logioisalogisticcompanyandtheirmottois“eliminatingwastefromsupplychain”.Iworkedforthiscompany intermittentlyfortwoyearsandmyworkwasthedesignofindustrialbuildings,especiallyautomaticwarehouses.Ialsomade animationsforinternalpurposesforcompaniessuchasPilsnerUrquellandŠkodaAuto.Weworkedverycloselywithwell-known brandsandtriedtoreducewasteandincreasestorageefficiency.Inmywork,IusedsoftwaresuchasAutoCad,SketchUp,as wellasLumionforvisualizationandanimation.

Juniordesignengineer

APRIS3MP,PragueCZ oct2017-oct2019

Jobdescription: Inthisarchitecturalstudio,IworkedonprojectsmainlyforVáclavHavelPragueAirport.Wewereinchargeof designingandprojectingtheentireshoppingcenternotfarfromtheairport.Ialsoparticipatedintherestaurantprojectinsidethe dutyfreezone,aswellasthetoiletsthroughouttheairport.Amongotherthings,Ialsoworkedonanapartmentbuildinginthe centerofPrague.TheworkwasveryvariedandIespeciallylearnedtoworkcarefullyandpayattentiontodetails.

LANGUAGESKILLS CZECH/SLOVAKIAN NATIVEORBILINGUAL PROFICIENCY AUTOCAD 90% 90% 70% 70% 50% 40% 30% 70% 40% SKETCHUP issuu.com/ariungerelbatkhuyag7174 linkedin.com/in/ariungerel-batkhuyag-9583a712a NATIVEORBILINGUAL PROFICIENCY PROFESSIONALWORKING PROFICIENCY MONGOLIAN ENGLISH SOCIALMEDIA
CURRICULUMVITAE EDUCATION SOFTWARESKILLS
WORKEXPERIENCES HELLO, IT’SVERYNICETOMEETYOU,
ariungerel.batkhuyag@gmail.com +(420)774281494
VRAY LUMION ARCHICAD CINEMA4D INDESIGN ILLUSTRATOR PHOTOSHOP RHINOCEROS 3D
l a n d s p a c e &urbanism

MLADABOLESLAV

NewcitycentreforhometownofŠkodaAuto?

Inthispre-diplomaproject,wehadthetaskofdesigninganew urbancenterforthecityofMladaBoleslav,whichcurrentlydoes notactuallyhaveacenter.Thisindustrialcity,whichliterallygrew uparoundthe"Škodovka"factory,desperatelyneedsacomprehensivecenterwherethelocalswouldgo.Webuiltafieldthatis locatedinthesouthandislocatedashortdistancefromthehighway.Ourproposalwasdevelopedfromthecitypark,ashortdistancefromtheassignedterritoryofŠtěpánka,whichisapopular placeforlocalstorelax.Theproposalenvisageslivingspacefor 10,000people.

Detailofthesquare photoofthephysicalmodelM1:2000
PROJECTDETAILS JAN2023 ACADEMICWORK MLADABOLESLAV,CZECHREPUBLIC BC.ARIUNGERELBATKHUYAG,BC.MICHAELAPEKARKOVA
01_NEWDISTRICTIN

ProjectDetails

Themainconceptwasagreenstripthatcuts acrossthesquareandseamlesslyconnectsto ŠtěpánkaPark.Thefloorplanofthebuildings wasinfluencedbythenearbyairport,where wecoulddesignbuildingsonlythreemeters highonthesouthwesterntip.Publictransport ispartiallyunderground,weusedtheexcavatedclayforanoisebarrierinthesouth, whereitwascreatedasamoundwithvarious uses.

10 11
compositionalaxes pedestrian transport (bus/cycling) greenery airportrestrictions

Onthenewsquaretherearevarious typesofbuildingssuchasadministration,apartmentbuildings,atheaterand alsoapolyclinic.Theshopsarelocated inasunkenfloor.Thegoalofthedesign wastocreateafunctionalandatthe sametimepleasantenvironmentfullof greenery.

12 13 thedesignofthenewcitycenter
Viewofthesquare Waterarea

02_REVITALIZATIONOF FORMERPAPERMILL

PROJECTDETAILS

JAN2022

THESECONDLIFEOFTHEFORMERPAPER MILL?

Thespecifiedareaislocatedonly30minutesbytrainfromPrague andliesinitsperiphery.AwealthyItalianboughtthedilapidated papermillinthe1990sandsincethenhasbeenrentingoutvariouspartsandleavingtheresttofate.Sincethisisaverylucrative placerightnexttothewater,wetriedtotransformtheformerfactorybuildingsintoapartmentsandtherestintonecessarycivic amenitiesintherevitalization.Alotofthebuildingsarestillingreat shape,sowekeptmostofthemwithaswapoffunctions,andI wasparticularlythoroughwithonebuilding,whichIturnedintoa startupworkplacewithafarmersmarketandgrocerystore.

ACADEMICWORK VRANÉNADVLTAVOU,CZECHREPUBLIC BC.ARIUNGERELBATKHUYAG

Theproposalconcernedoneofthehalls wherepaperwasproduced.Theessenceoftheproposalwastheinsulation andcladdingofthefacadeandthepreservationoftheoriginalsupporting structures.

Axonometricview

Start-upinterior

16 17 viewofthenewmarketwithstartupoffices

Itakethephysicalmodelasabigpartofdesigning.Ifthescaleischosencorrectly,ithelps uswiththeworkflow,wheresomethingsaresometimesmorevisiblethanonlyonpaper. Althoughthephotopresentedisofaworkingmodel,itwasveryusefultous.

18 19
_VnV
b u i l d i n g architecture

01_OFFICEBUILDING

PRAGA-POLUDNIE

PROJECTDETAILS

MAY2022

ACADEMICWORK

WARSAW,POLAND BC.ARIUNGERELBATKHUYAG

ADMINISTRATIVEBUILDINGINPASSIVE STANDART?

TheprojectwassolvedaspartoftheSaint-Gobaincompetition. Themaintaskwastodesignthestudentdormitoriesandtheadministrativebuildingwaspartofitsadditionaltask.Iplacedmy buildinginthesoutheastcorneraccordingtothespatialplan.Itis afour-storybuildingwithapartlygreenroof.Itisdividedintotwo partsandconnectedbyaneck,whichhasaglassroof,sotheinteriorlooksspaciousandthereisalotofnaturallightinthebuilding.Thefloorplanisdesignedasanopenarea,whereindividual companiescantransformthespaceaccordingtotheirideas.One ofthemainrequirementsfortheconstructionwastohaveaslittle impactontheenvironmentaspossible.

mmTENKOVRSTVÁOMÍTKA

Thereisacafe onthe1stfloor andopenspace officesonthe otherfloors. Parkingisunder thehouse,accessiblebyacar lift.

ROHOVÝPROFIL VNINTŘNÍTĚSNÍCÍPÁSKAOMÍTANÁ HLINÍKOVÝRÁM

HLINÍKOVÉOKNOIZOLAČNÍMTROJSKLEM

SOKLOVÁLIŠTA TRVALEPRUŽNÝTMEL PĚNOVÝDILATAČNÍPÁSEK

DŘEVĚNÉLATĚNAKOTVĚNÍPROVĚTRÁNÉ FASÁDY

MŘÍŽKAPROTIHMYZU

HLINÍKOVÉOKNOIZOLAČNÍMTROJSKLEM

SOKLOVÁLIŠTA TRVALEPRUŽNÝTMEL PĚNOVÝDILATAČNÍPÁSEK

STÍNÍCÍLAMELYJSOUKOTVENÉDOOCELOVÝCH

HLINÍKOVÉOKNOIZOLAČNÍM TROJSKLEM

SOKLOVÁLIŠTA TRVALEPRUŽNÝTMEL PĚNOVÝDILATAČNÍPÁSEK

DESKACEMBRITNAPRYŽOVÝCHPODLOŽKÁCH

PROVĚTRÁVANÁMEZERAtl.MIN.40mm

OMÍTKAVENKOVNÍmm

TEPELNÁIZOLACEISOVERTFPROFItl.200mm

ZÁBRADLÍBEZPEČNOSTNÍVRSTVENÉSKLO LIŠTÁCH,KOTVENORÁMUOKNA

STÍNÍCÍLAMELYHLINÍKOVÉNAKLONĚNYPOD RŮZNÝMIÚHLY

KOMPRIMAČNÍTĚSNÍCÍPÁSKA KOTEVNÍŠROUB HLINÍKOVÝRÁM

PĚNOVÝDILATAČNÍPÁSEK

SPÁDOVÁVRSTVATRAPÉZOVÉHOPLECHU ŽLÁBEK

PRŮČELÍCEMBRITDESKY

NOSNÍKIPE300ULOŽENÍDOSTRANSCH CK PLECHTRAPÉZOVÝT180,5mmRAL9005

DRENÁŽNÍTRUBKAVEDENAFASÁDNÍ DESKOUPROVĚTRANÉMEZEŘE

TRVALEPRUŽNÝTMEL HLINÍKOVÉDVEŘEALUPROF SYSTÉMOVÝPODKLADNÍPROFIL PROSKLENNÉSTĚNY PROFIL(MATERIÁLNEREZ) KOTEVENOPODKLADNÍMUOKENNÍMU PROFILU

ŽLÁBEKNAODVODNĚNÍKOVOVOUMŘÍŽKOU

mmPOVRCHOVÁÚPRAVATENKOVRSTVÁOMÍTKA 300mmŽBSTĚNA 2x4mmASFALTOVÉPÁSYSBSPENETRAČNÍNÁTĚR mmGEOTEXTILIE mmPROFILOVANÁNOPOVÁFÓLIE HUTNĚNÝNÁSYPZEMINOU mmEPOXIDOVÁCHEMICKYODOLNÁSTĚRKA PENETRACE 500mmŽBZÁKLADOVÁDESKA 100mmOCHRANNÁBETONOVÁVRSTVA 2x4mmASFALTOVÉPÁSYSBS PENETRAČNÍNÁTĚR 100mmPODKLADNÍBETON SEPARAČNÍGEOTEXTILIE 150mmHUTNĚNÝŠTĚRKOVÝZÁSYP,FRAKCE16/32 ROSTLÝTERÉN 60mmBETONOVÁVELKOFORMÁTOVADLAŽBA 100mmŠTĚRKOVÉLOŽE mmGEOTEXTILIE 2x4mmASFALTOVÝPÁSSBSVESPÁDUmin.50mm LEHČENÝBETONSPÁDOVÁVRSTVA 200mmSTROPNÍKONSTRUKCE 100mmTEPELNÁIZOLACEMINERÁLNÍVATA mmOMÍTKA int. ext. mmPOVRCHOVÁÚPRAVATENKOVRSTVÁOMÍTKA 300mmVODONEPROPUSTNÝBETONTL.300mm 2x4mmASFALTOVÉPÁSYSBS mmPROFILOVANÁNOPOVÁFÓLIE HUTNĚNÝNÁSYPZEMINOU mmKAUČUKOVÁPODLAHA LEPIDLO mmVYROVNÁVACÍSTĚRKA mmBETONOVÁMAZANINAKARISÍŤ SEPARAČNÍPEFOLIE mmKROČEJOVÁIZOLACE 200mmŽBSTROPNÍDESKA 100mmTEPELNÁIZOLACEMINER.VATA
NOSNÍKŮUPE300 PODÉLNÝNOSNÍKSKLENĚNÉHOZASTŘEŠENÍ PŘÍČNÝNOSNÍK SKLENĚNÉHOZASTŘEŠENÍ DESKAOSB/3mmNALEPENA NÍZKOEXPANZNÍPURPĚNOU VRUTYPROKOTVENÍKLEMP.VÝROBKŮ OPLECHOVÁNÍATIKYTiZnPLECH0,7mm mmKAUČUKOVÁPODLAHA LEPIDLO 50mmSAMONIVELAČNÍANHYDRITOVÝLITÝPOTĚR SEPARAČNÍPEFOLIE 30mmKROČEJOVÁIZOLACE 200mmŽBSTROPNÍDESKA OMÍTKAVNITŘNÍ mmKAUČUKOVÁPODLAHA LEPIDLO 50mmSAMONIVELAČNÍANHYDRITOVÝLITÝPOTĚR SEPARAČNÍPEFOLIE 30mmKROČEJOVÁIZOLACE 200mmŽBSTROPNÍDESKA mmKAUČUKOVÁPODLAHA LEPIDLO 50mmSAMONIVELAČNÍANHYDRITOVÝLITÝPOTĚR SEPARAČNÍPEFOLIE 30mmKROČEJOVÁIZOLACE 200mmŽBSTROPNÍDESKA MŘÍŽKAPROTIHMYZU ZAKONČOVACÍPROFILOKAPNIČKOU PÁSIZOLACELEPENÝPULEPIDLEM ZAČIŠŤOVACÍPROFIL ROHOVÝPROFIL VNINTŘNÍTĚSNÍCÍPÁSKAOMÍTANÁ HLINÍKOVÝRÁM DŘEVĚNÉLATĚNAKOTVĚNÍPROVĚTRÁNÉ FASÁDY MŘÍŽKAPROTIHMYZU ZAKONČOVACÍPROFILOKAPNIČKOU PÁSIZOLACELEPENÝPULEPIDLEM
ROHOVÝPROFIL
ZAČIŠŤOVACÍPROFIL
VNINTŘNÍTĚSNÍCÍPÁSKAOMÍTANÁ HLINÍKOVÝRÁM
MŘÍŽKAPROTIHMYZU PERFOROVANÁZÁDRŽNÁLIŠTA PRANÉKAMENIVO16/32 - EXTENZIVNÍOSEV 30mmEXTENZIVNÍMINERÁLNÍSUBSTRÁTPODÍLEMSPONGILITU 50mmISOVERFLORA
60mmISOVER
KOTVENÍSTÍNÍCÍCHLAMELDOUPE300POMOCÍ SVAŘENÝCHPROFILŮ LOB VĚTRACÍOTVORYPROTIPŘEHŘIVÁNÍ LOB
DŘEVĚNÉLATĚNAKOTVĚNÍPROVĚTRÁNÉ FASÁDY MŘÍŽKAPROTIHMYZU ZAKONČOVACÍPROFILOKAPNIČKOU PÁSIZOLACELEPENÝPULEPIDLEM ZAČIŠŤOVACÍPROFIL UPE300KOTVENÍDOSTRANSTÍNÍDLA
-mmSEPARAČNÍGEOTEXTILIE,300g/m2 -mmHYDROIZOLACEPROTIPRORŮSTÁNÍKOŘÍNKŮ
-mmPAROZÁBRANA -mmTRAPÉZOVÝPLECH
24 25

Thebuildingisdesignedinapassivestandardandthegreatestpossibleuseofrecycledmaterialsisexpected.Thefacadeissingle-skin,wherethefacadeboardsaredesignedfromcetris. Allwindowshaveexternalblindsandanassessmentwasmadeforusableprofits.Thebuilding iscontrolledbyanintelligentsystem. Thesupportingstructuresaremadeofconcretecolumns.Thebuildingusesachillersystem, wherethesupportingstructureabsorbscoldduringthenightandreleasesitduringtheday, makingitveryenergyefficient.

viewsandsection visualizationfromthepark 26 27

02_APARTMENT BUILDINGHOLESOVICE

PROJECTDETAILS

MAY2018

ACADEMICWORK

PRAGUE,CZECHREPUBLIC

BC.ARIUNGERELBATKHYUAG

APARTMENTBUILDINGBYTHEWATER?

Theassignmentoftheprojectwastodesignanapartmentbuilding forstudentsandyoungfamilies.Theapartmentshavealayoutof 1+kkto3+kk.Thebuildinghasawalkableroofwithaviewofthe riverandthecity.Itislocatedinaverywell-accessiblelocationand ispartofablock.Inthecourtyardthereisachildren'splayground andarestingplaceforresidentsoftheapartmentbuilding.Parking isprovidedbyanundergroundparkinglotthatconnectstheentire block.Thefacadeisdesignedfromacontactsystem,andthesurfaceconsistsofoutdoorplasterofalightshade.

28
30 31
scale1:200 physicalmodel

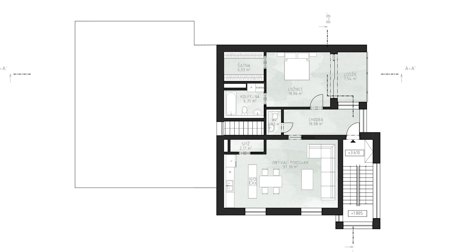
TWO-GENERATIONHOUSEWITHANAPARTMENTFORRENT?

Hanspaulkaislocatedinapartofthecityfullofgreenery.Thevillasaroundthespecifiedareahaveadifferentcharacter,soitwas possibletobasetheconceptonsimpleblocks,which,however, fulfilltheirfunctionverywell.Thetaskwastocreate3separate apartments-forafamilyoffour,forgrandparentsandalsoan apartmentforrent,whichwouldhelpfinanciallycoverthecostsassociatedwiththemaintenanceofthefamilyhomeinthefuture.I designed2separateentrancesthatensurefamilyprivacyandat thesametimethewindowsoftherentalapartmentareoriented awayfromthegarden.Thereisanapartmentforseniorsonthe groundfloor,andanapartmentforthefamilyontheupperfloor.

PROJECTDETAILS MAY2021 ACADEMICWORK PRAGUE,CZECHREPUBLIC BC.ARIUNGERELBATKHUYAG
03_FAMILYHOUSE
HANSPAULKA
architectureviews floorplans 34 35

grandstaircase livingroom

36 37
bathroom
i n t e r i o r design

ANAPARTMENTFORADOCTOR

Thepediatriciandecidedtorenovateherapartment.Itisapanelhousethathasbeennewlyinsulatedandallthewindowshave beenchanged.Whenelseisabettertimetorenovate?Fromtheoriginalseparatespace,Icreatedanopenspacewhere everythinghasitsplace.Theroomisdominatedbyaspectacularlivingwall,whereithasplentyofstoragespace.

40 41
01

KITCHENFORACOUPLE

Thisspectacularkitchenwithaclearheightofalmost4metersislocatedinafamilyhouseforayoungcouple.Thekitchenis dominatedbyanisland,whereastovewithapull-outhoodislocated.Theentirekitchenisinapastelgreenshade,complementedbywood.Aspecificfeatureofthekitchenistheconnectionwiththegarden,sincethewindowinthekitchenalsoservesas adoor,soitisnotaproblemtoopenitandfindyourselfinnature.

42 43
02

BATHROOMWITHAVIEW

Thisbathroomislocatedinthesamehouseasthepreviouskitchen.Investorsfellinlovewithlightgreen,whichiswhythiscolor appearsthroughoutthehouse.Thebathroomhasafree-standingbathtub,whichisanidealplacetorelax.Thespaciousshower guaranteesanotherlevelofcomfort,allwithaviewoftheneighboringgreenery.Thebatteriesareallrosegold.

44 45
03

NEWWORKSHOPINTHEOLD

Thissimpleinteriorisequippedwithfurniturefromthemaster&masterbrand.Theassignmentwas todesignaharmoniousplaceforworkandsmallmeetings,andwiththehelpofaddingafew coloredelements,theroomtookonanewdimension.Theresultisaplayful,functionalroomthat willhopefullyservetheownerwell.

46 47
04
2023 ARIUNGERELBATKHUYAG

Turn static files into dynamic content formats.

Create a flipbook
Issuu converts static files into: digital portfolios, online yearbooks, online catalogs, digital photo albums and more. Sign up and create your flipbook.