

PROJECT:
MULTI FAMILY RESIDENTIAL
BUILDING
REVIT SKETCHUP ENSCAPE

SCAN TO VIEW 3D VIEW






PROJECT: FITNESS CENTRE
REVIT ENSCAPE


























































![]()


MULTI FAMILY RESIDENTIAL
REVIT SKETCHUP ENSCAPE

SCAN TO VIEW 3D VIEW


































































RENOVATION
REVIT AUTO
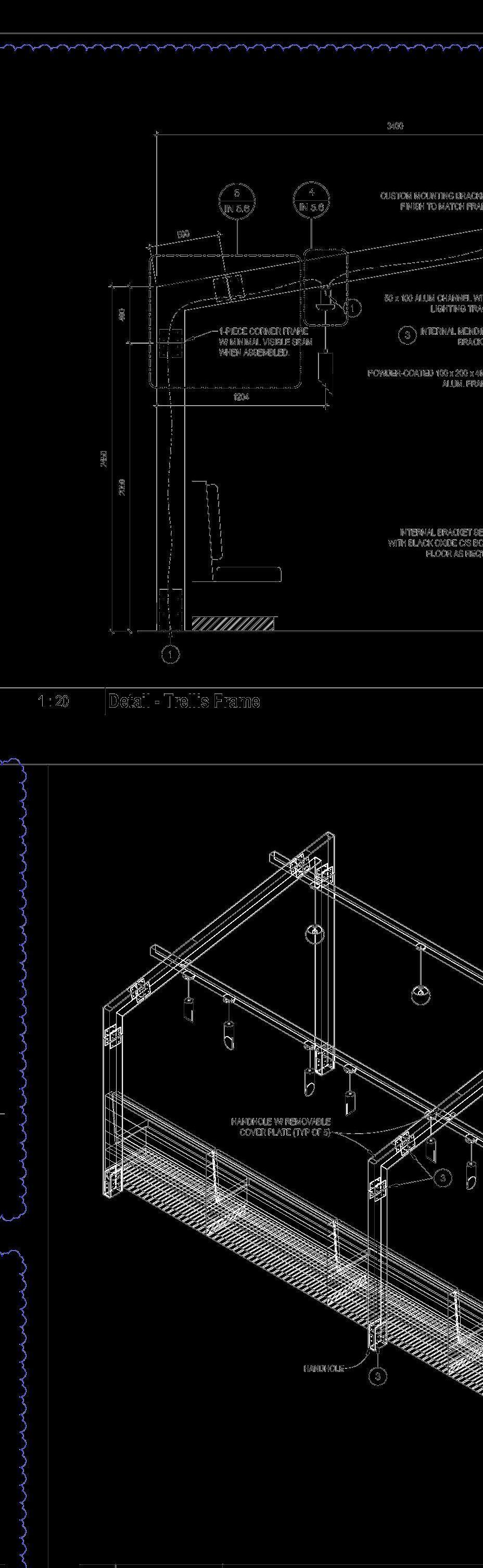
SECTION DETAILS
RENOVATION
REVIT AUTO CAD
































































