Arianna McCue Architecture Portfolio

Page 1

ARIANNA MCCUE Architecture Portfolio Fall 2023

EDUCATION

ARIANNA MCCUE

arianna.mccue@ku.edu

720-539-5071

5 year Master of Architecture The University of Kansas- Spring 2024

Business Minor The University of Kansas- Summer 2023

Paris Val De Seine Ecole National D’Architecture Paris, France- Fall 2023

Danish Institute for Study Abroad Copenhagen, Denmark- Fall 2022

GPA- 3.88

Boulder High School Boulder, CO

WORK EXPERIENCE

Architectural Intern Perkins&Will

June 2023 - August 2023, June 2022 - August 2022 DENVER, CO

-Assist with development of Samford University’s campus masterplan.

-Model existing FTX Miami Heat Arena in Revit to allow for demonstration of new signage and press level rennovation

-Create site line diagrams and perspective views for FTX Miami Heat Arena

-Create site diagrams for prospective arena at Northern Arizona University in Flagstaff

Sales Associate Clinton Parkway Nursery

February 2023 - May 2023 LAWRENCE, KS

-Answer questions, provide recommendations, and assist customers in the purchase of trees, shrubs, fertilizer, indoor and outdoor plants.

-Built simple wooden structures and landscaped aesthetically pleasing displays of outdoor plants

Botanical and Outdoor Garden Sales Associate McGuckin Hardware

May - August, December 2019, January, March - August, November - December 2020, January - February 2021 BOULDER, CO

-Answer questions, provide recommendations, and assist customers in the purchase of outdoor and indoor plants

-Restock items and and care for a variety of flora

ATHLETICS

University of Kansas Division 1 Rowing Scholarship Recipient

Fall 2020 - Spring 2022

-Train and compete for 20+ hours a week

-Competed at Rowing All-Big 12 Championships May 2022, May 2021

-Received “Outstanding Newcomer” Award May 2021

AWARDS & ACTIVITIES

-KU Distinction Scholarship Recipient August 2019 - May 2023

-Garmin Half Marathon 2nd Place Finisher April 2023

-Academic All-Big 12 First Team Rowing Award May 2022

-U.S. Solar Decathlon Design Competition Participation Spring 2022

-Dr. Gerald Lage Academic Achievement Award Febuary 2022

-First Year Mentor Fall 2021, Spring 2022

SELECTED WORKS

CREATIVE CORE ELEMENTARY SCHOOL FOR THE VISUALLY IMPAIRED

Denver, Colorado

TEGNER MUSEUM EXTENSION CASCADE

Dronningmølle, Denmark

CORNER CUT TRANSIT STATION

Lawrence, Kansas

FREETOWN ROWHOUSE

Christiania, Denmark

RECYCLED RUNWAY: FASHION DESIGN COMPETITION

Boulder, Colorado

CHARCOAL DRAWINGS

pages 1-12

pages 13-20

pages 21-32

pages 33-40

pages 41-42

pages 43-44

CREATIVE CORE ELEMENTARY SCHOOL FOR

Denver, Colorado

Creative Core Elementary School for the Visually colors and textures of the Colorado while creating the integration of art therapy, the students gain confidence contrasting colors for recognition and natural light music rooms. Classroom layouts encourage social providing art-focused education, visually impaired

1

FOR THE VISUALLY IMPAIRED

Impaired is situated in Colorado, known for its vibrant landscapes. The school embraces the diverse creating an environment that fosters creativity and independence among visually impaired students. Through confidence while appreciating Colorado’s unique beauty. The school’s design prioritizes inclusivity, using to aid learning. The school’s layout emphasizes creativity, with a “creative core” housing art, dance, and connections, with tailored zones for reading and structured learning. By appealing to all senses and children are able to excel and express themselves in the growing Central Park community of Denver.

2

central courtyard forms to provide private play space and seperate classrooms from more public areas.

pushing & pulling forms are extruded to define the building footprint, divide the courtyard into three functions, and create a central hallway that shields classrooms from intense southern sun

extruding up to create public double-height moments above the art core and second-floor administration space

angles the large front angle reaches out to invite the community in, while the courtyard + southern angles provide a playful wayfinding experience

3

surrounding Central Park Neighborhood

earthy-organic-rainbow color pallet

north elevation

south elevation

4
level 2 level 1 art core art core gym gym library classrooms classrooms cafeteria admin play courtyard sensory courtyard 0’ A A A A B B 5 community

steel members

reinforced concrete

egresss

primary curculation vertical circulation primary egress secondary egress

HVAC supply return structure
community room 25’ 50’ 6
7
section AA: art core

Colorado colors inspire the colorful facade. Throughout the school color is used as a symbol of diversity and inclusion. A common misconception about visual impairment is that people are completely blind. The reality is that visually impaired people can often see changes in light and color. In the art core students will be encouraged to participate in different arts and experiment with color, music, and other tactile arts.

8
9 B
GRAVEL 4"
4"
6"
6"
4"
1/2"
1/2"
SCLP/ECLP
9"
#4
1 1/2"
8"
1/4"
1/2"
VAPOR
SGA-ALUM
SUB-GRIT BATTING
4" RIGID
1/2" GYPSUM
1/4"
3"
1 1/2"
1/2" = 1'-0" 1 SECTION AA CALLOUT 1 1' CONCRETE FOOTING
FRENCH DRAIN 1' CONCRETE FOOTING
RIGID INSULATION
GRAVEL
GRAVEL
SLAB ON GRADE
WHITE OAK FLOORING
WHITE OAK VENEER
NBK CLIP, ZINC
STEEL CHANNEL
REBAR
X 6' NBK TERRA COTTA
STEEL STUD
AIR SPACE
OSB SHEATHING
& MOISTURE BARRIER
EXTRUDED
INSULATION
INSULATION
BOARD/DRYWALL
X
STEEL SCREW
ALUMINUM MOUNTING
I I 1/2" = 1'-0" 2 SECTION AA CALLOUT 2 1/2" = 1'-0" 3 SECTION AA CALLOUT 3 1' 4" STEEL HANGER 9" STEEL CHANNEL 2' X 2" STANDING SEAM METAL ROOF 1 1/8" OSB SHEATHING MOISTURE BARRIER 1 1/8" OSB SHEATHING 2 3/4" RIGID INSULATION 2" METAL DECKING 8" STEEL BEAM 1/4" X 3" STEEL SCREW 2" X 7 1/2" SIMPSON STEEL CONNECTOR 9 1/2" WIDE FLANGE BEAM 8" STEEL STUD BLOCKNG 1/8" TWO PANE BLOCKING 1/2" GYPSUM 9" STEEL CHANNEL 4" RIGID INSULATION STEEL FLASHING STEEL MULLION STEEL SASH STEEL EXTERIOR 1 1/2" X 6' I I = 1'-0" SECTION AA CALLOUT 2 1/2" = 1'-0" 3 SECTION AA CALLOUT 3 1' 4" STEEL HANGER 9" STEEL CHANNEL 2' X 2" STANDING SEAM METAL ROOF 1 1/8" OSB SHEATHING MOISTURE BARRIER 1 1/8" OSB SHEATHING 2 3/4" RIGID INSULATION 2" METAL DECKING 8" STEEL BEAM 1/4" X 3" STEEL SCREW 2" X 7 1/2" SIMPSON STEEL CONNECTOR 9 1/2" WIDE FLANGE BEAM 8" STEEL STUD BLOCKNG 1/8" TWO PANE GLASS BLOCKING 1/2" GYPSUM BOARD/DRYWALL 9" STEEL CHANNEL 4" RIGID INSULATION STEEL FLASHING STEEL MULLION STEEL SASH STEEL EXTERIOR GLAZING 1 1/2" X 6'
TERRA COTTA TILE 1 2 3 10 I I 1/2" = 1'-0" 2 SECTION AA CALLOUT 2 1/2" = 1'-0" 3 SECTION AA CALLOUT FLOORING ZINC CASTING COTTA TILE BARRIER SUB-GRIT BOARD/DRYWALL 1' 4" STEEL HANGER 9" STEEL CHANNEL 2'
MOUNTING TRACK 1 1/8"
SHEATHING MOISTURE BARRIER 1 1/8" OSB SHEATHING 2 3/4" RIGID INSULATION 2" METAL DECKING 8" STEEL BEAM 1/4" X 3" STEEL SCREW 2" X 7 1/2" SIMPSON STEEL CONNECTOR 9 1/2" WIDE FLANGE BEAM
NBK
X 2" STANDING SEAM METAL ROOF
OSB
12

TEGNER MUSEUM EXTENSION CASCADE

Dronningmølle, Denmark

Located in the farmland of northern Denmark, the Tegner Museum Extension is designed to contrast the surrounding environment. The Rudolf Tegner Museum houses sculptures and paintings created by Tegner purpose is to create more space for his work, other artists, and the visiting public. The organic form of geometric museum. The existing structure is concrete while the extension is wood. As the building cascades park showcasing more of Tegner’s work wraps around the exterior, creating unique indoor and outdoor

13

the existing museum and integrate into the Tegner in the early 20th century and the extension’s of the extension contrasts the existing, abrupt, and cascades down the landscape, an outdoor statue outdoor experiences.

14
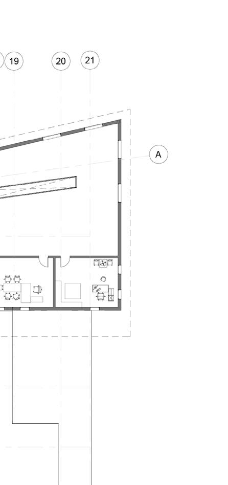
level 1 floor plan level 2 floor plan 1.) exhibition on Rudolph Tegner’s life 2.) tunnel connecting outdoor walking paths 3.) cloakroom 4.) women’s restroom 5.) men’s restroom 6.) kitchen 7.) bar 8.) indoor cafe’ 9.) outdoor cafe’ 10.) exhibition space for other artists statue 11.) open office space for 12.) private offices 13.) drop ceiling over kitchen
1 2 3 4 5 6 7 8 9 10 12 13 14 15 11
14.) two story volume cafe’
for museum employees kitchen cafe’ space below site plan 0’ 25’ 50’ C C 16

physical model: birds eye view

physical model: east facing elevation

17

new construction untreated oak wood

untreated oak after 6 months

untreated oak after 1 year

untreated oak after 2 years

untreated oak after 3 years

untreated oak after 4 years

Over time the untreated warm oak wood color will weather and become gray. This will cause it to fade to a similar shade of gray as the existing concrete structure. As the wood weathers it will symbolize a surrender to the natural environment and surrounding landscape.

18
section CC 19
20

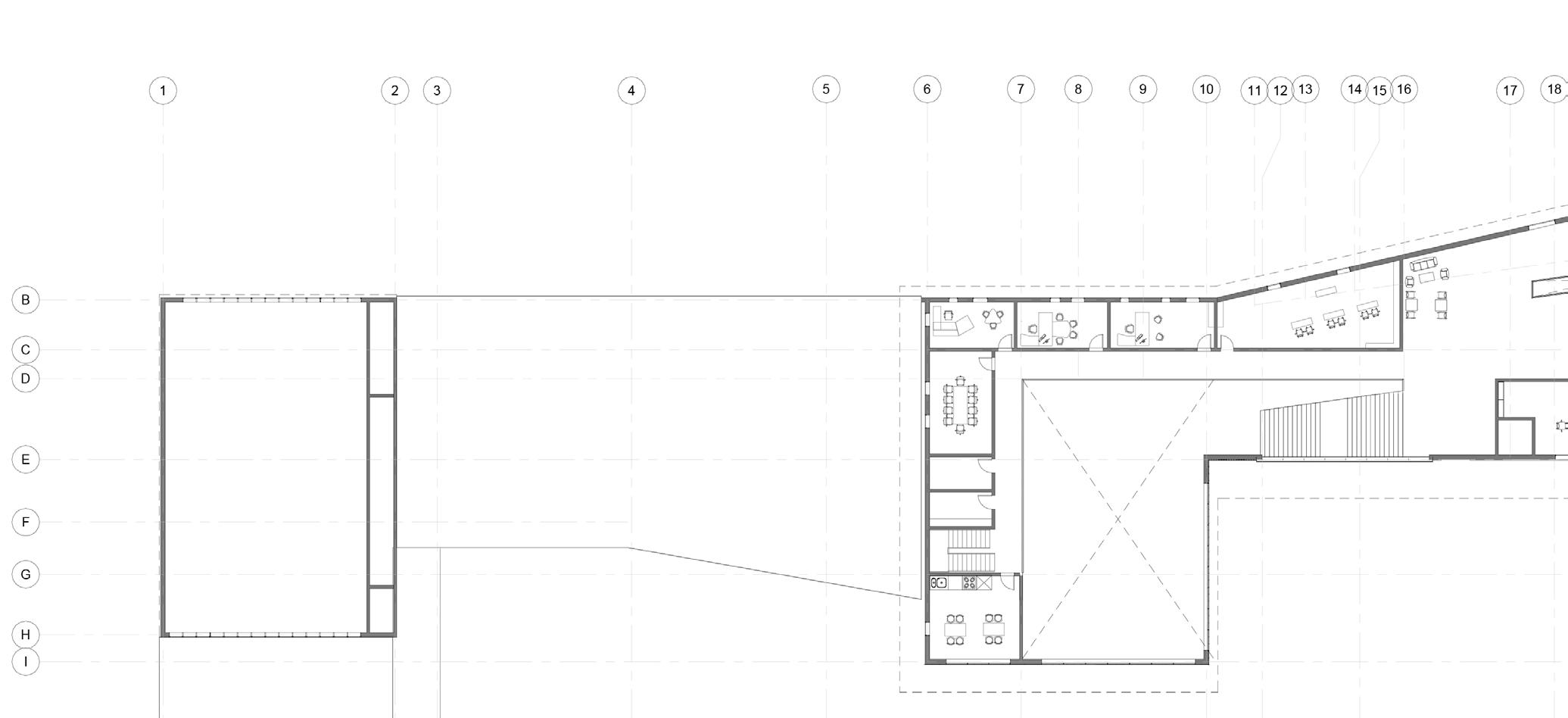
CORNER CUT TRANSIT STATION

Lawrence, Kansas

21

Corner Cut Transit Center is a bus station in downtown Lawrence, Kansas. The goal of this project was to create a bus station that was both efficient and attractive. This project aims to de-stigmatize public transit by having other amenities at the transit center which draw people in. Corner Cut Transit Center is not only a bus stop but also contains a grocery store, a library, retail shops, offices, a coffee shop and private living units. The site has many bus routes which pass by it. The transit center’s close proximity to Massachusetts Street, the main street of downtown Lawrence, makes this site an ideal location for commuters.

22
level 1 23 level 2

level 1

level 2

24
level 3 25 level 4

level 3

level 4

26
north facing elevation
27
east facing elevation
public space semi-private space private space circulation service 28

structure and HVAC

heat cooling

joint duct

physical model area

29

angled blocking

light gage steel stud

1/2” gravel

1/2” roof membrane

2” rigid insulation

2” composite deck

metal decking

1.5” concrete floor slab

metal decking

8” steel beam

open joist system

drywall ceiling panels

6” rigid insulation

8” x 8” steel column

9” x9” steel connecting plate

L shaped fastener

10” x 10”concrete column

2” concrete perimeter lining vegetation

earth

1/2” rigid insulation

1/4” composite deck

8” steel beam

drywall ceiling

pervious gravel

insulation

10” x10”concrete column

earth

pervious gravel

4” weep hole

concrete footing

30
section DD 31
level 1: 0’ 4”
2: 17’ 6”
3: 29’ 6”
4: 41’ 6” 32 D D
level
level
level

FREETOWN ROWHOUSE

Christiania, Denmark

Freetown Rowhouse is designed for families living in Christiania, Denmark. Freetown Christiania is an intentional Christianshavn neighborhood of the Danish capital city of Copenhagen. The objective of Christiania is every individual holds themselves responsible over the wellbeing of the entire community. Freetown Rowhouse “L” shaped living units below. The large roof and yellow brick material pays tribute to Christiania’s commune reflect the quirky nature of present day Christiania.

33

intentional community, commune and micronation in the to create a self-governing society whereby each and Rowhouse has a large unifying roof which covers unique commune origins and history while the L shaped living units

34
site plan 35 1 2 3 4 5

The L shaped units create spaces for outdoor recreation and storage. Cuts in the roof allow for varying levels of sunlight to reach the upper stories. The south side of the building boarders a path and is more public than the north side of the structure which is sunken into the hill.

0’ 12’ 24’
36
unit 4 level 1 1.) dining room 2.) kitchen
0’ 6’ 12’ 37 E E 1 2 3
3.) living room
0’ 6’ 12’
unit 4 level 2-3 4.) children’s bedroom 5.) bathroom 6.) entry
38 E E 4 5 6 7
7.) parent’s bedroom
section EE 39
40

RECYCLED RUNWAY: FASHION DESIGN COMPETITION

Boulder, Colorado

Recycled Runway is a fashion design competition where participants create an outfit that consists of items that would have otherwise been thrown away. For this project I worked with local balloon artist, Finn Thompson, and asked him to save popped balloons from his projects. I used these popped balloons, which would have otherwise been thrown away, to create my piece. My design simultaneously symbolizes the waste of the natural resource helium and the damage that balloons can cause to the environment.

“Balloons are hazards when they enter the environment. Balloons kill countless animals and cause dangerous power outages. They can travel thousands of miles and pollute the most remote and pristine places. Balloons return to the land and sea where they can be mistaken for food and eaten by animals.”

top woven out of modeling balloons
41

COMPETITION

42
skirt created using a popped flotation device and a variety of balloons

CHARCOAL DRAWINGS

box drawing- hard edge box drawing- soft edge Marvin Hall classroom
43

These are portraits of my family members. On the lower left is my mother and above is my brother.

baking cookies
Carson
44
Thank You arianna.mccue@ku.edu 720-539-5071 Arianna McCue

Turn static files into dynamic content formats.

Create a flipbook
Issuu converts static files into: digital portfolios, online yearbooks, online catalogs, digital photo albums and more. Sign up and create your flipbook.
Arianna McCue Architecture Portfolio by AriannaMcCue - Issuu