WORK SAMPLES
ARIANIE SIWADY
C O N T E N T S

THE BIRDSALL RESIDENCES
JAMS MINNEAPOLIS


JAMS DETROIT


![]()
C O N T E N T S

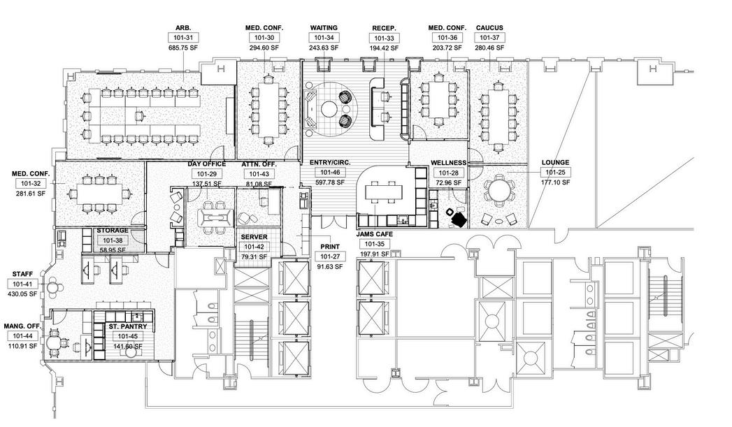
JAMS MINNEAPOLIS


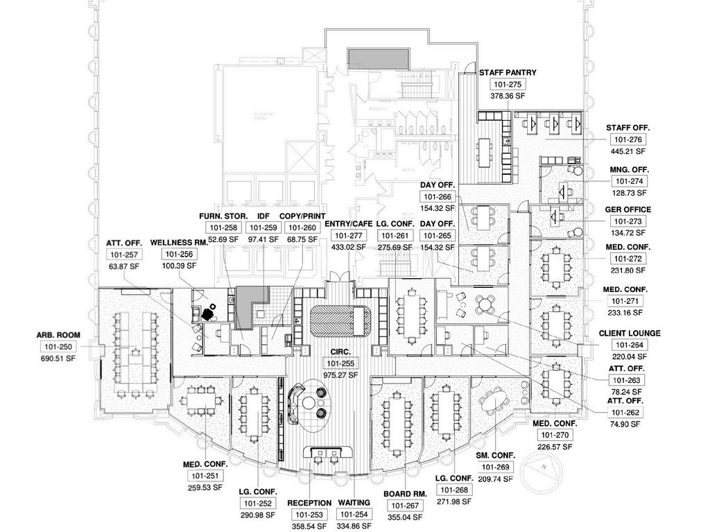
JAMS DETROIT


Auberge Resorts, Mixed-Use Project
Location: Houston, TX
Expected Date of Completion: 2026
Role: Junior Interior Architect for BOH Spaces
Phases Involved: SD through DD






ACCENT TILE
LOCKER FINISH



Corporate Office Project
Location: Minneapolis, MN
Completion Date: January 2024
Role: Junior Interior Architect for Interiors
Phases Involved: SD through CA







Corporate Office Project
Location: Detroit, MI
Expected Date of Completion: November 2024
Role: Junior Interior Architect for Interiors
Phases Involved: SD through CD





