Ariana Mushtaq Portfolio 2025

Page 1


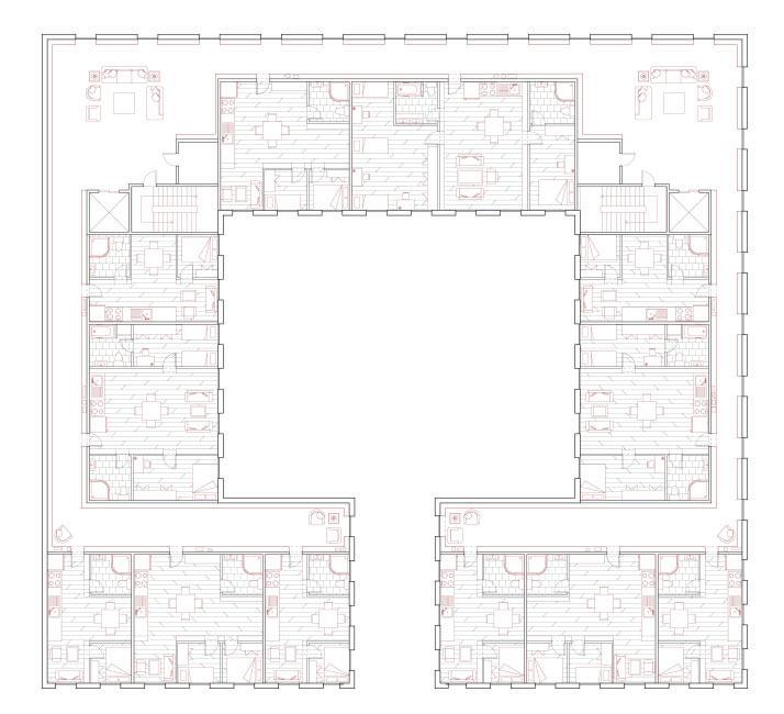
LIVING LIBRARY

This fall, I developed an apartment building featuring a monastical libary. The library is seen in all circulatory and interstitial spaces, with apartments nestled in the bookshelves. The ground floor features monastical programs such as a balneary, herb garden, prayer hall, and patio space to connect with nature through liturgy. The bookshelves are the primary force considered in design as the basis for both the plan and the facade.

PLAYING WITH PAPER

In a series of experiments involving paper models, I explores how spaces can come together through the manipluation of modulating pieces. An initial attempt inolving thin strips and wire meshed set a precedent of how light seeps into intimate spaces. the later iteration retrofitted the first pass into an inhabitable building, taking structural necessities and inhabitant experience into account.

DESIGNING UPCYCLING

Informed by my previous paper trials, I designed a fashion upcycling workshop for the organization SUAY, located in Frogtown, Los Angeles. The building in essence is a series of nondescript ramps, that weave together to house fabrication technology, retail, and event spaces. The thick strips that compose the workshop are connected through each other as well as a promenade staircase.

ERIE CANAL PURIFICAITON PLANT

For this project, I created a water purification plant. The site is in the Erie Canal Park in Syracuse, NY. Inspired by the Cortes Research center, the design conforms to a grid and alters the site as little as possible. The layout and programming was denoted with a goal of informing the public, particularly children, about the importance of clean water especially in the midst of a climate crisis. Increasing pollutants and rising sea levels pose major threats to water infrastructure, and by educating young minds about how crucial this technology is, we can ensure a safer, cleaner, more drinkable future. To achieve this, gallery spaces and a Children’s Education Center engage the public in a hands-on way.

KARST AND CAVE

This week-long exercise was a practice in utilizing unusual modelmaking materials that I had not yet used in previous projects, while applying the principles of tower karsts: geologic anomalies that result from the erosion of lime soil layers over shale soil layers. I vacuformed plastic to create a mold of a gridded step-pyramid shape, which I used to cast plaster. I then used a similar to mold to cast wax, which I melted over the plaster, to simulate erosion and caves seen in karsts.

ACTION, LIGHT AND SHADOW

This exercis ebegan by simplyfing body silhouettes into simple forms. These forms where then aggregated, extruded, and arranged to crate a dissertation of angles and light. In a partner project, the bodily changes were combined with shadows of previous analysis models, resulting in a compound structures connecting action, light, and shadow.

THE HOSTEL

This project was the design of a hostel using the aformentioned bodily forms. I tessalated the figures from my body movements, and then used these to create the plan of my hostel. After visitng the sight near S Crouse Street in Syracuse, I altered this design to create an inhabitable space that interacted with the land in which it was located, featuring commonspaces and an inhabitable roof.

WATER TOWER

Using steel, oxyacetylene welding, finishing techniques, and plasma cutting, I constructed a water tower with a removable top designed to test the boundaries of what is “structurally stable”. The tower has unstable, crooked legs, curved bases, and surfaces, and cannot stand on all four legs at once. Despite all of these setbacks, the water tower can still stand strong despite winds or being placed in a creek with currents.

THE DAFFODIL

I constructed a 3x3 foot metal sculpture that serves as a commentary for climate change. The sculpture’s physical form replicates a deconstructed daffodil, with the leaves and petals expanded from the rest of the flower, symbolizing the climate crisis. The medium of metal also adds to the message as it is something mechanical depicting something natural.

Turn static files into dynamic content formats.

Create a flipbook
Issuu converts static files into: digital portfolios, online yearbooks, online catalogs, digital photo albums and more. Sign up and create your flipbook.