Proyecto de Arquitectura IV ULima - Ariana Marquina

Page 1

2022 2 Ariana Marquina Fernandez 20211619 PORTAFOLIO CICLO 2022-2 PROYECTO DE ARQUITECTURA VI Sección 425 VANESSA ZADEL & YOOKO BABA
01. FUNCIÓN 03. CONTEXTO CG1 CG3.2 CG3.3 CG5.3 CG6.1 CG6.2 CG8.1 CG2.1 CG2.2 CG4.2 CG5.3 CG6 CG7.2 04. TOMA DE PARTIDO CG2 1 CG2 2 CG4 2 CG5 3 CG6 CG7 2 05. PREFIGURACIÓN 06. EMPLAZAMIENTO CG1 CG5 CG6.1 CG6.3 CG8.1 CG10.3 CG1 CG5 CG6.1 CG6.3 CG8.1 CG10.3 TABLA DE CONTENIDO 07. FENOMENOLOGÍA 08. PROYECTO ARQUITECTONICO CG1 CG5 CG6.1 CG6.3 CG8.1 CG10.3 CG1 CG5 CG6.1 CG6.3 CG8.1 CG10.3

01 FUNCIÓN

CG1 - CG3.2 - CG3.3 - CG5.3 - CG6.1 - CG6.2 - CG8.1

01. ANÁLISIS DE REFERENTES

CG1 - CG3.2 - CG3.3 - CG5.3 - CG6.1 - CG6.2 - CG8.1

ENCARGO: Realizar un análisis de ocho diferentes Casas Ronald Mcdonald del mundo (Latinoamérica, EEUU, Europa y Asia) Estas casas seleccionadas no debían repetirse con otros grupos. Ademas de esto, se debía elegir 8 distintas variables.

DESARROLLO:

En primer lugar, la profesora realizo un archivo en excel para ver que grupos realizaban sus ocho Casas Ronald sin repetirse. Una vez que cada grupo seleccionar las casas con las que iban a trabajar, se pudo a empezar a realizar el trabajo.

En segundo lugar, comenzamos a recopilar datos generales de cada casa (ubicación, mapas del lugar, planos, fotos del interior y exterior de las casas, etc). Seguido de esto empezamos a colocar cada imagen e información en cada diapositiva para mantener un orden en el trabajo.

A continuación, se repartió el trabajo en partes iguales para lograr el máximo desempeño de cada una de nosotras. Ademas, se empezó a buscar mas inflacionario de los referentes y variables a tratar como la teoría del color, la materialidad y mas Para esto se realizo nuestra primera visita grupal a la biblioteca la cual, nos ayudo bastante para realizar este ejercicio.

Finalmente, al tener todo el material en orden y bien graficado, se empezó a grabar el video de sustentación del mismo. Dicho video se puede visualizar en el siguiente link. https://www.youtube.com/watch?v=SYRYEeRge9Q

1
2 3 4

RESULTADO:

Como resultado final, como grupo logramos comprender de mejor manera el funcionamiento de las Casas Ronald Mcdonald Asimismo nos dimos cuenta como los temas de la luz, colores, espacios, etc, afecta a la percepción de los niños y sus familias lo cual es muy importante para su bienestar y que estén lo mas cómodos posibles. Como futuras arquitectas, aprender del como analizar el uso de referentes nos ayudara a futuro a comprender como funcionan otras estructuras y como estudiarlas si queremos realizar una similar.

REFLEXIÓN:

Como reflexión personal, puedo decir que este análisis me ayudo a comprender de mejor manera que los proyectos arquitectónicos no salen de la nada, estos provienen de un estudio previo sobre referentes relacionados a la estructura que se desea realizar. Si bien ya se me había mencionado el tema en ciclos anteriores, no se había abarcado de forma tan importante como en este. Sin duda, aprendí mucho mas de las Casas Ronald Mc Donald, su distribución y el como satisfacer de forma correcta las necesidades de los usuarios.

02 DISEÑO UNIVERSAL

CG1.2- CG1.3- CG2.1 - CG5.1 - CG6.1 - CG10.3

03. DISEÑO UNIVERSAL

CG1.2- CG1.3- CG2.1 - CG5.1 - CG6.1 - CG10.3

ENCARGO: Investigar los siete principios del diseño universal y verificar cuales se cumplen dentro de la Plaza Francia, cuales no y como podemos mejorar dichos aspectos

¿QUE ES EL DISEÑO UNIVERSAL?

Cuando hablamos del diseño universal nos referimos a una cualidad que tienen algunos productos, entornos o servicios que ofrecemos a los usuarios. Dicha cualidad es un diseño que se acopla para todos sin importar si una persona cuenta con discapacidad o no, su edad, nacionalidad, entre otros De esta forma, podemos facilitar de mejor manera la comodidad de nuestros usuarios y hacerlos mas felices. Los principios del diseño universal son los siguientes: 1. 2. 3 4. 5. 6 7.

Igualdad de uso Uso flexible Uso simple y funcional Información comprensible Tolerancia al error Bajo esfuerzo físico Dimensiones apropiadas.

DESARROLLO:

1 2 3 4

En primer lugar, investigamos los principios del diseño universal. Seguido de esto buscamos ejemplos de esto y como se aplica en otros trabajos. Fue así que enumeramos los principios y reconociendo a primera vista lo que habíamos presenciado en la Plaza Francia.

En segundo lugar, al ver que nuestro trabajo no contaba con la suficiente información y coherencia, nos decidimos a regresar a la plaza para darle una nueva mirada ahora bajo estos nuevos conceptos Tomamos fotografías, anotamos pequeñas entrevistas a algunos transeúntes, dibujar algunas cosas que lo ameritaban y mirar minuciosamente en todas partes.

Regresando a nuestras casas, recopilamos toda la información nueva adquirida y nuevamente la organizamos en las diapositivas y graficamos de mejor manera los puntos que queríamos resaltar

Finalmente, nos preparamos para la exposición en el taller vertical en el cual aprendimos bastantes cosas del análisis de otros grupos y el análisis de distintos temas de los otros ciclos.

RESULTADO:

Como resultado final, se puede decir que obtuvimos una presentación satisfactoria ya que, nuestro trabajo fue escogido por mayoría de votos como el mejor de la clase Es así que tuvimos una pequeña exposición delante de otros ciclos para explicarles acerca de nuestro análisis.

REFLEXIÓN:

Como reflexión personal, puedo decir que como primer trabajo del ciclo fue un acercamiento interesante a lo que se vendría después con los siguientes trabajos. Ademas de esto fue bastante informativo escuchar la exposición de los demás lo que nos hace reforzar de mejor manera el tema y complementarlo con el resto de exposiciones de los otros niveles.

CONTEXTO

CG2.1 - CG2.2 - CG4.2 - CG5.3 - CG6 - CG7.2

03

03.1 PROJECT FOR PUBLIC SPACES

CG2.1 - CG2.2 - CG4.2 - CG5.3 - CG6 - CG7.2

ENCARGO: Realizar una breve investigación acerca de la pagina PPS. La cual deberemos tomar estos criterios en cuenta al momento de analizar la Plaza Francia, encontrar los principales problemas y si se cumplen los puntos vistos en la pagina.

DESARROLLO:

1 2 3 4

En primer lugar, se puso en marcha la investigación sobre la pagina y sus criterios. Comenzamos a entender como se aplica lo anteriormente mencionado buscando ejemplos en internet

En segundo lugar, escribimos en una lista de los criterios y características cualitativas y cuantitativas según recordábamos de la primera visita que hicimos a la Plaza Francia.

Seguido de esto, nos reunimos nuevamente en la Plaza Francia y a sus alrededores para seguir investigando ahora en base a los criterios PPS y tomar mas fotografías a la zonas aledañas al lugar.

Finalmente, recapitulamos toda la información y la organizamos en un grafico circular.. Ademas, se dio jerarquía de los criterios mas importantes abarcando mas área que los menos importante. También agregamos elementos gráficos como los iconos para facilitar la lectura de las personas que vean nuestro trabajo dependiendo si saben o no del tema.

RESULTADO:

Como resultado, obtuvimos el grafico de la imagen superior. Pero al compararlo con otros trabajos de nuestros otros compañeros, nos dimos cuenta que pudimos haber mejorado en la presentación del proyecto. Por ejemplo, colocar imágenes de las problemáticas en vez de fotos, pintar de mejor manera los colores de la ruleta, colocar una mejor imagen central, etc. A pesar de eso, estamos satisfechas con la información colocada dentro de la ruleta y marcar todos los puntos que encontramos en la plaza.

REFLEXIÓN:

Como reflexión acerca del tema, con este trabajo nos pudimos dar cuenta de mejor manera el como se contextualiza la Plaza Francia y sus alrededores. Con esto aprendimos a como reconocer de mejor manera las deficiencias o beneficios que puede tener un lugar dependiendo de la zona que queramos analizar.

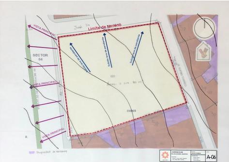
03.2 ANALISIS DEL TERRENO

CG2.1 CG2.2 CG4.2 CG5.3 CG6 CG7.2

ENCARGO: Realizar un análisis de los alrededores de la Plaza Francia. Seguido de esto, se deberá seleccionar tres posibles terrenos para realizar nuestro proyecto de arquitectura. Posteriormente se hará un análisis de cada uno y se elegirá el mejor

DESARROLLO:

En primer lugar, regresamos al lugar para realizar una investigación mas profunda de lo que sucedía. Al revisar la plaza por tercera vez nos dimos cuenta de aun mas cosas que la primera pues, ya teníamos aprendidos los conceptos del diseño universal Es así que tomamos fotos y a anotar lo que nos parecía importante para el análisis.

En segundo lugar, regresamos a casa y nos pusimos a identificar los terrenos que no podríamos intervenir (patrimonios culturales), los que eran terrenos planos y posibles candidatos para usarlo en la propuesta de proyecto.

Seguido de esto, se empezó a considerar la variables que usaríamos para evaluar a los terrenos escogidos. Para esto, decidimos dividirnos el trabajo para avanzar a un mismo ritmo y ahorrar tiempo.

Finalmente, imprimimos el trabajo, realizamos algunas correcciones dadas por la arquitecta y procedimos a anillar el análisis.

1 2 3 4

RESULTADO:

Como resultado final, se llego a la conclusión grupal de escoger escoger el segundo terreno seleccionado Como grupo consideramos que tiene mas puntos a favor que los otros tales como: el área, accesibilidad, mayor seguridad al estar entre calles, una gran oportunidad de mejorar el aspecto de la zona, entre otros. Con este análisis finalizado, se pudo continuar con el siguiente ejercicio

REFLEXIÓN:

Como reflexión personal, puedo decir que este trabajo me ayudo bastante a comprender las variables de las cuales debo tomar en cuenta para escoger un terreno apropiado en futuros proyectos, Ademas de esto, pude aprender nuevos conceptos y el como analizarlos adecuadamente para poder ponerlos en practica mas adelante.

04 TOMA DE PARTIDO

CG2.1 CG2.2 CG4.2 CG5.3 CG6 CG7.2

04.1 TOMA DE PARTIDO

CG2.1 CG2.2 CG4.2 CG5.3 CG6 CG7.2

ENCARGO: Investigar y comprender el concepto de "toma de partido". A partir de aquello, se deberá realizar una maqueta conceptual que exprese lo que comprendemos. Adicionalmente se debe usar un formato de un A4 y utilizar una cinta de colores dadas por la profesora

DESARROLLO:

En primer lugar, nos dividimos para investigar un poco acerca del concepto de toma de partido. A partir de esto, tuvimos que reunirnos trayendo una posible idea de la composición del trabajo.

En segundo lugar, compartimos nuestras ideas y sugerencias para la maqueta. Se comenzó con una idea dada por uno de los integrantes del grupo pero, al no estar todos de acuerdo, procedimos a cambiar la composición pero sin cambiar la idea central. Para esto, usamos de referentes las siguientes fotos.

Seguido de esto, se compró los materiales necesarios y nos repartimos partes de la maqueta para trabajar mas rápido Una vez echo esto, procedimos a maquetear el proyecto.

Finalmente, colocamos últimos detalles como las varillas que sostienen el cubo y la pieza central que remata y es el punto principal de la maqueta.

3 4
1 2

¿QUÉ INTENCIÓN TIENE LA MAQUETA CONCEPTUAL?

Nuestra maqueta esta representada por un cubo que esta compuesto de diversas varillas simbolizando las distintas soluciones que se puede encontrar a un problema Esto se relaciona con la pieza central la cual es la problemática encerrada dentro de las ideas de como poder solucionarlo. Esto cubo se encuentra en movimiento al estar inclinado pero es sujetado con fuerza con estas varillas azules las cuales representan la inspiración y la tranquilidad. Es así como se logra llegar a la idea final de la toma de partido.

REFLEXIÓN:

Como reflexión personal, puedo decir que con esta maqueta y viendo el resto de las maquetas de los otros grupos, pude entender de mejor forma lo que es la toma de partido. De esta forma podemos continuar con el proyecto de la Casa Ronald McDonald pero teniendo en cuenta una toma de partido y basarnos en ello para crear un mejor proyecto.

04.2 COLLAGE PERSONAL

CG2.1 CG2.2 CG4.2 CG5.3 CG6 CG7.2

ENCARGO: Una vez aprendido y entendido el concepto de toma de partido, se debía realizar un collage sensorial sobre la casa Ronald McDonald en el cual se pueda percibir 4 de los 5 sentidos (olfato, oído, tacto y vista)

DESARROLLO:

En primer lugar, realice un breve boceto de como seria la composición de mi collage. En este caso quise representar la idea central de la Casa Ronald. Con esto quiero decir que deseaba representar la felicidad de los niños y como su estado de animo cambia al ingresar a este lugar de acogida

En segundo lugar, busque las imágenes que necesitaría para el collage. Entre estas imágenes tendría que buscar elementos que den la sensación de felicidad y sin preocupación. Seguido de esto, empece a pegar las imágenes según la composición que había ideado ant

Para incluir los elementos sensoriales decidí agregar lo siguiente:

Táctil: Se coloco elementos rugosos como el cartón micro corrugado para los edificios o el foami negro que utilice en el marco del collage.

Olfato: Pinte la casa colocada en el collage con café, Esto fue con el propósito que el espectador al olerlo reconozca que la casa es un lugar acogedor por el aroma y que pueden estar seguro y cómodos dentro

Vista: Esto fue representado con la composición misma del collage. La casa de fondo con niños jugando tranquilamente en el campo Esto reflejara la felicidad e inocencia de los niños jugando a pesar de sus problemas que pueden tener.

Oído: El collage cuenta con una pequeña caja debajo para que al ser agitada se escuche los fideos sacudidos de una lado a otro. Esto dar la similitud de las sonajas de un bebe representado la inocencia.

Fue asi que juntando todos los elementos anteriormente mencionados, fui formando mi collage Al no tener revistas ni periodicos a mi alcanze, decidi imprimir lo que necesitaria y tendria un trabajo mas prolijo con esto.

1 2 3 4

RESULTADO FINAL

Como resultado final tenemos la imagen que se puede ver en la parte de arriba. Creo que pude reunir los elementos sensoriales para dar a conocer mas acerca de la Casa Ronald de la forma en que yo lo percibo y al mismo tiempo puede ser percibido por los demás. Sin embargo reconozco que hay cosas en las que puedo mejorar, esto me di cuenta cuando nos reunimos en el salón y pude ver los demás trabajos de mis compañeros Tomare esto para mejorar en mis próximos proyectos.

REFLEXIÓN:

Pienso que todos tenemos distintas percepciones a cerca de la Casa Ronald ya pesar de ser diferentes, suelen llegar a un mismo punto, lograr crear la mayor comodidad y alegría para los niños Es así que nos dio una mayor claridad de cual podría ser nuestra toma de partido para el proyecto.

04.3 COLLAGE GRUPAL

CG2.1

ENCARGO: Con los collages personales anteriormente echos, se debía identificar la esencia de cada una para formar un nuevo collage grupal. En dicho trabajo, se deberá sacar la toma de partido

DESARROLLO:

En primer lugar, nos reunimos para encontrar las características similares que poseían nuestros collage y cuales podemos tomar en cuenta para el collage grupal. Al mismo tiempo tomábamos en cuenta cual podría ser nuestra frase para la toma de partido que representara nuestro proyecto,

En segundo lugar, llegamos a la frase "Encuentro social para el fortalecimiento emocional" para nuestra toma de partido. Con esto queríamos representar la importancia que tiene las relaciones sociales y el ambiente acogedor de la Casa Ronald para el estado emocional y metal de los niños. Este ambiente hace que puedan olvidar sus problemas y al mismo tiempo sentirse mejor al compartir sus experiencias a otros niños y no sentirse solos en una situación tan complicada.

Seguido de esto, comenzamos a pensar como podría ser la composición del proyecto para representar nuestra toma de partido. Para esto tomamos en cuenta a los niños que realizan un apretón de manos como la estabilidad emocional o el compañerismo. Ademas de esto tomamos la cinta de fotos que los envuelve como los momentos que tuvieron juntos lo que los hace mas fuertes ante los problemas que pueden tener

A continuación, se mostrara el proceso que nos tomo para llegar al resultado final.

1 2 3
4
CG2.2 CG4.2 CG5.3 CG6 CG7.2

RESULTADO FINAL

Como resultado final tenemos la imagen que se puede ver en la parte superior. Tenemos aun muchos aspectos a mejorar en cuanto a composición e ideas ya que, en cierto punto, nos quedamos estancadas para llegar a nuestra toma de partido. Sin embargo, creo que podemos decir que tuvimos un resultado satisfactorio que nos ayudara a seguir en el próximo ejercicio que realizaremos

REFLEXIÓN:

Pienso que, como en todo trabajo que realizamos, podemos mejorarlo. Aun así considero que nuestro desempeño como grupo ha sido bueno y que, a pesar de estancarnos, logramos salir de ese bloqueo poco a poco. Un bloqueo como este no sera la primera vez que me pase durante mi carrera por lo que a parte del ejercicio que realizamos como grupo, siento que la experiencia que vivimos al hacerlo me ayudara mas a comprender los futuros problemas que podría tener durante la carrera y como poco a poco superarlos.

05 PREFIGURACIÓN

CG1 - CG5 - CG6.1 - CG6.3 - CG8.1 - CG10.3

05. PREFIGURACIÓN

CG1 CG5 CG6.1 CG6.3 CG8.1 CG10.3

ENCARGO: Explorar con la volumetría para crear nuestro proyecto en base a nuestra toma de partido, para esto se usara tres esponjas que podemos cortar de la forma que queramos. Ademas de esto, debemos seguir explorando esta volumetría en cartón pero dándole una escala de 1:250.

Al tener la palabra "fortalecimiento" en nuestra toma de partido, comenzamos con una estructura de castillo que brindaba seguridad a las personas que se encontraban dentro de este.

Como segunda opción decidimos no cerrarnos tanto con el tema del castillo ya que daba la sensación de sofocación. Es así que empezamos a explorar con otras maneras de formar espacios

En nuestra tercera opción aun no teníamos muy claro a donde queriamos llegar con la volumetría En este punto empezamos a estancarnos y bloquearnos.

Para la siguiente maqueta tratamos de seguir jugando con la volumetría pero sin tener el resultado que deseábamos Aun así no podíamos permitirnos atrasarnos y continuamos con la maqueta de cartón. En este primer intento notamos que teníamos volúmenes muy marcados y nada continuos

Para el siguiente intento mejoramos la continuidad del volumen pero aun no complementábamos nuestro trabajo con el vació o áreas verdes que se podrían formar.

Finalmente, se puede decir que salimos del bloque ya que pudimos jugar tanto con el volumen de la estructura y el vació que se formaba a partir de ella

1 2 3 4
5 6 7
DESARROLLO:

RESULTADO:

Como resultado podemos decir que ademas de romper el bloqueo que teníamos, logramos jugar y comprender mejor la importancia del vació, como se relaciona con el volumen y como juega con las emociones del espectador. Aun nos falta bastante que mejorar pero ha sido un gran salto desde la primera maqueta hasta la ultima. Ademas de esto, tendremos que tomar en cuenta el tema del contexto en el que se ubica nuestro proyecto ya que, no se tomo mucho en cuenta y se debe revisar el análisis que hicimos antes para los próximos proyectos.

REFLEXIÓN:

Como reflexión personal, puedo decir que salir de un bloqueo es complicado y puede alterar el resultado final de nuestro proyecto. Por este motivo siento que esta etapa no solo me ayudo a comprender los temas de la volumetría, el como se desenvuelve con la toma de partido y el uso del vació; sino que también me enseño a como manejar un bloqueo y que hacer para que no intervenga en mi trabajo

CG1 - CG5 - CG6.1 - CG6.3 - CG8.1 - CG10.3

06
EMPLAZAMIENTO

06. EMPLAZAMIENTO

CG1 CG5 CG6.1 CG6.3 CG8.1 CG10.3

ENCARGO: Con el desarrollo de la etapa de prefiguración, se debía continuar emplazando nuestro proyecto en el terreno seleccionado. Para esto se debe tomar en cuenta el análisis de contexto anteriormente realizado Ademas, se deberá realizar esta maqueta en escala en 1:250 incluyendo los edificios de los alrededores.

DESARROLLO:

1 2 3

En primer lugar, teniendo los avances de las maquetas anteriores, continuamos modificando la ultima maqueta que teníamos. Cambiamos algunos aspectos que escuchamos durante las criticas y procedimos a pasar la maqueta a limpio.

En segundo lugar, tratamos de dividirnos el trabajo pero al mismo tiempo nos reuníamos para que todas estuviéramos informadas del avance de la otra.

Una vez terminado la maqueta, seguimos diseñando los cortes de la misma. Para esto la profesora nos brindo algunos ejemplos de como deberíamos realizarlos.

RESULTADO:

Como resultado, no obtuvimos un resultado muy satisfactorio pues al crear la prefigura del proyecto no tomamos en cuenta el terreno y parecia mas un bloque cualquiera colocado en una base plana. Esto claramente no era el proposito del proyecto por lo que, junto a mi grupo, decidimos seguir esforzandonos para continuar mejorando.

REFLEXIÓN:

Como reflexión personal, puedo decir que me siento satisfecha del resultado final Creo que nuestro desempeño como grupo a sido exitosa y a pesar de tener cosas para mejorar, todo esto es un proceso para seguir avanzando en nuestra carrera como futuros profesionales. Aun nos queda varias cosas por perfeccionar y mejorar pero se que podremos hacerlos durante las próximas entregas del proyecto.

07 FENOMENOLOGÍA

CG1 - CG5 - CG6.1 - CG6.3 - CG8.1 - CG10.3

07. FENOMENOLOGÍA

CG1 CG5 CG6.1 CG6.3 CG8.1 CG10.3

ENCARGO: Realizar diagramas en los cuales se valorizara el rango en el que una actividad afecta a los sentidos. Dichas actividades estaran afectadas al programa de arquitectura que estamos siguiendo, educación, recreación y vivienda

DESARROLLO:

Para comprender de mejor manera como realizar dichos graficos se nos dio un video para analizar y comprender como afecta las actividades y la experiencia en estas en proporcion a la catidad de estimulación que se le da a los sentifdos.

anteriormente.

3
1 2

RESULTADO:

Como resultado final se realizaron 18 diagramas diferentes por cada integrante del grupo de los cuales, 6 eran de recreación, 6 de vivienda y 6 de educación Dichos graficos iban acompañadas de fotos en las cuales tenian que ser tomadas por nosotras mismas realizando la actividad.

REFLEXIÓN:

Como una reflexión personal puedo decir que esta parte del proceso me ayudo a entender de mejor manera que una actividad sera mas memorable si se estimulan varios sentidos al mismo tioempo Esto es algo de gran ayuda pues, asi podremos crear una mejor experiencia dentro de nuestro proyecto estimulando la mayor cantidad de sensaciones par los niños.

08 PROYECTO DE ARQUITECTURA

CG1 CG5 CG6.1 CG6.3 CG8.1 CG10.3

08.1 PLANOS

DESARROLLO:

En primer lugar se hicieron bocetos de los planos en papel mantequilla para sobreponer otros encima y seguir modificando

Poco a poco se continuo pasando a limpio los planos y colocando en donde seria ubicados los ss.hh. y circulaciones verticales como ascensores y escalera

Luego de esto se comenzó a identificar como seria distribuidas las zonas principales (educación, recreación y vivienda). Colocamos hojas de colores detras del papel mantequilla, este se tralucia y se podia identificar con mayor facilidad la zonas.

Finalmente se pasaron los planos a limpio y se realizaron cortes. a digital en el programa AutoCad.

1 2 3 4
ENCARGO: Realizar el diseño de una Casa Ronald McDonald ubicada en el centro de Lima
CG1 CG5 CG6.1 CG6.3 CG8.1 CG10.3

RESULTADO:

Como resultado final, obtuvimos 4 planos (1ra, 2da, 3ra planta y plano de techos) y 5 cortes tanto transversales como longitudinales en los cuales podiamos apreciar los disitntos desniveles que poseia nuestro proyecto. Con esto, obteníamos mayor juego de visuales y diferenciar zonas para realizar diferentes actividades dentro de las mismas. Esto le daba mayor vida al proyecto y era mas dinámico para los niños que albergaría

REFLEXIÓN:

Como reflexión acerca de los planos del proyecto Me agrada la idea de poder usar diferentes colores para diferenciar las zonas del proyecto. A su vez aprendí bastante como funciona la circulación y como se debería tener cuidado con esta ya que puede cortar espacios Adicionalmente pienso que este fue de mis momentos que mas me gusto de realizar el trabajo. Me encanto cada trazo que realizaba en el papel y ver que todo funcionara correctamente.

08.2 MAQUETA

CG1 CG5 CG6.1 CG6.3 CG8.1 CG10.3

ENCARGO: Realizar una maqueta en 1:100 con los planos anteriormente resueltos. Para esto se debe manterner la escala cromatica de colores tierra

DESARROLLO:

En primer lugar, seguimos trabajando conla figura realizada durante el emplazamiento del ejercicio anterior.

Seguido de esto se continuo trabajando en paralelo con los planos para continuar con la volumetria del proyecto

Despues, en compañia de los planos, empezamos a diseñar la fachada del esterior de la estructura teniendo cuidado que todos los espacios al interior deben ventilar de manera natural y todos cuenten con una correcta iluminación

Finalemente cuando teniamos todos los planos acabados comenzamos con el proceso de mandar a cortar a laser nuestro trabajo

Por ultimo, comenzamos a armar el proyecto uniendo las distintas partes del mismo y decorando los patios

1 2 3 4 5

RESULTADO:

Como resultado grupal obtuvimos una calificacion satisfactoria de la cual nos hizo llegar a expo paara presentar nuestro trabajo a otros estudiantes en el ciclo 2023 lo cual nos puso realmente contentas pues, todas niestras noches de desvelo valieron la pena para obtener este resultado.

REFLEXIÓN:

Puedo concluir que este fue de mis ejercicios favoritos realizados en el ciclo y me siento muy satisfecha viendo el resultado final. Creo que como en todo trabajo se pueden mejorar pqueños aspectos pues un proyecto nunca terminara siendo perfecto pero creo que para el nivel que estamos manejando como estudiantes de arquitectura es realemente bueno.

Mi nombre es Ariana Marquina, estudiante de cuarto ciclo en Arquitectura en la Universidad de Lima. Me considero una persona perfeccionista, detallista y responsable. Como parte de mi personalidad soy una personal leal, amable, honesta y humilde. Me gusta mucho dibujar, ver series o películas con mi novio, ver musicales y jugar con mis gatos. A pesar de mis gustos en el arte también puedo ser hábil en la matemáticas que es algo que me gusta mucho

PORTAFOLIO 2022 2
Español: Ingles: IDIOMAS: Actualidad Universidad de Lima Ciclo I de Arquitectura 2020 2016 Colegio Pamer Secundaria 2015 I.E.P Isaac Newton Secundaria 2014 2010 I.E.P. Isaac Newton Primaria 2009 I.E.P. Miguel Grau Primaria EDUCACIÓN: Paint Tool Sai: AutoCad Sketchup: Revit HABILIDADES: (Avanzado) (Básico) Tercio superior
superior
Certificado de
grupo
RECONOCIMIENTOS: CURRICULUM VITAE ARIANA MARQUINA FERNANDEZ
(secundaria, Colegio Pamer) Tercio
(primaria, I E P Isaac Newton)
animación en IPAD Voluntariado en el
Unidos por el amor

Turn static files into dynamic content formats.

Create a flipbook
Issuu converts static files into: digital portfolios, online yearbooks, online catalogs, digital photo albums and more. Sign up and create your flipbook.
Proyecto de Arquitectura IV ULima - Ariana Marquina by Ariana Melannie Marquina Fernandez - Issuu