




![]()





DATOS DEL PROYECTO
Ubicación
Area del terreno
01 02 03 04 05
PLANIMETRÍA ESTRUCTURAS
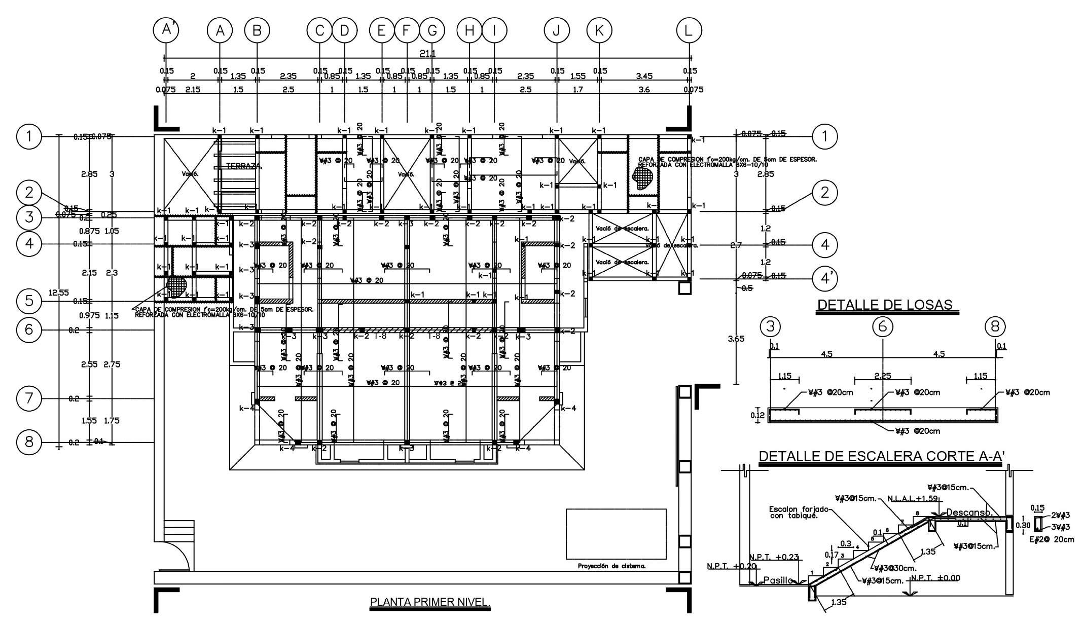
PLANTA E - Piso 1
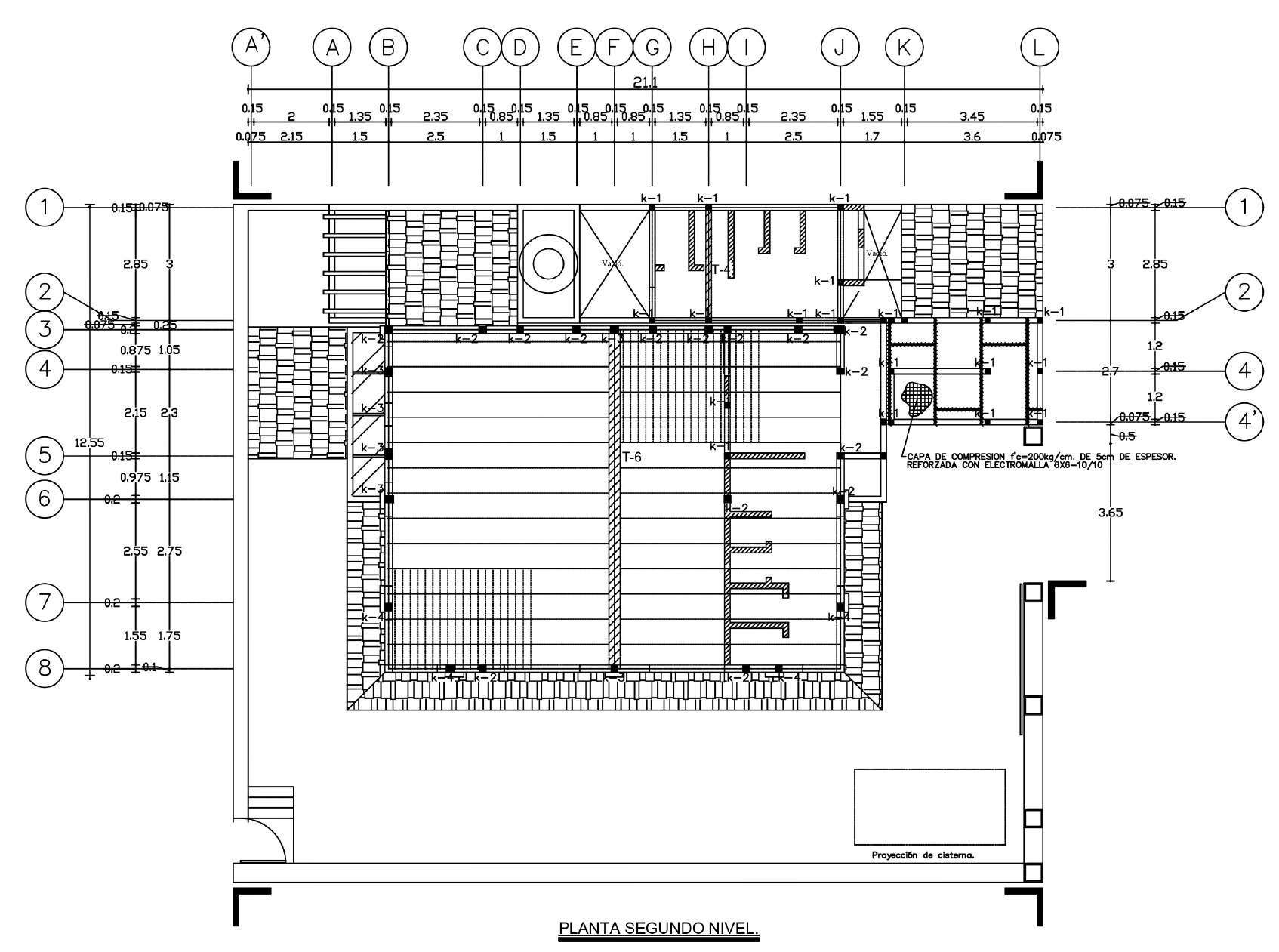
PLANTA E - Piso 2
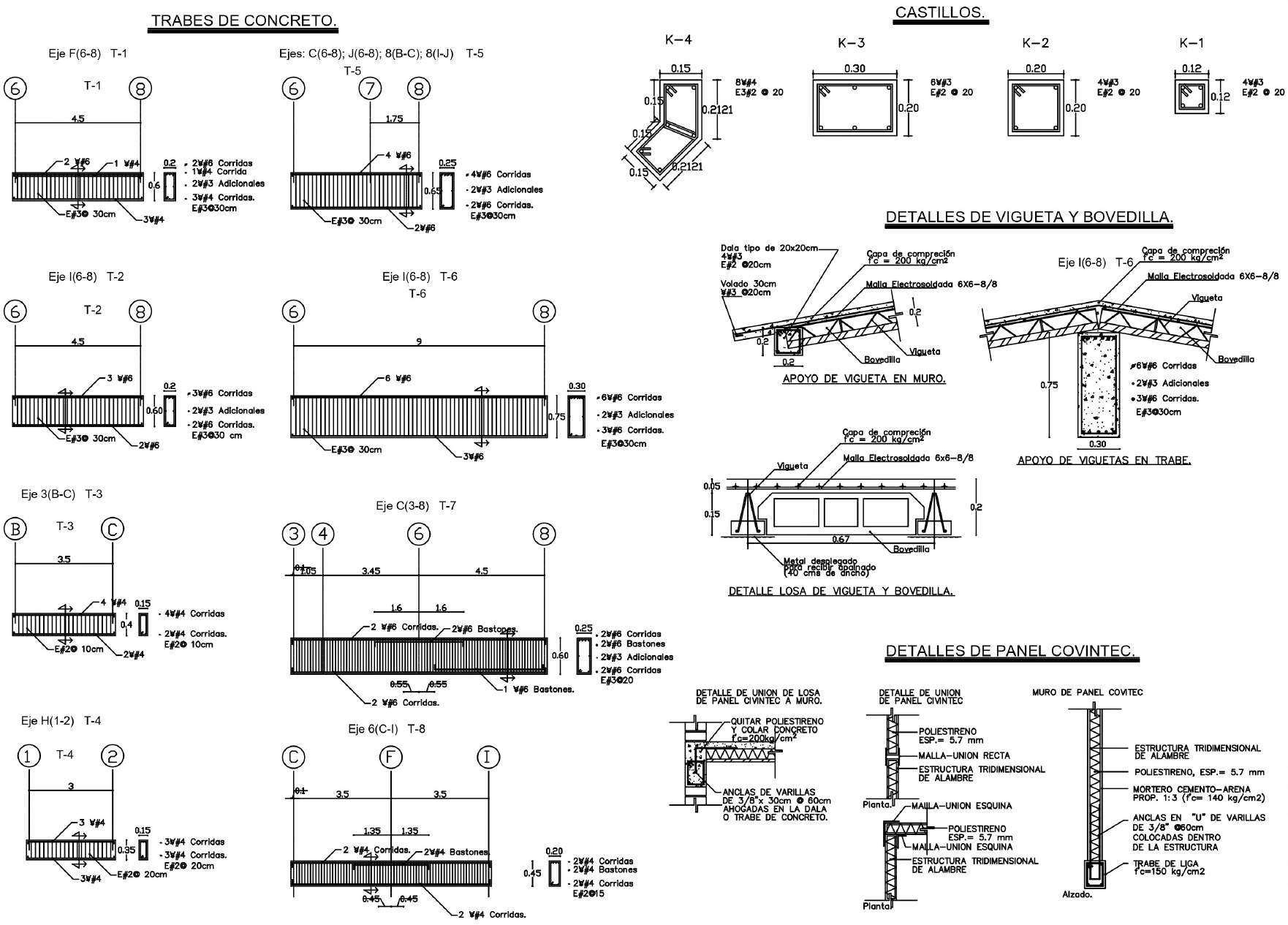
PLANTA E - Detalles constructivos
PLANIMETRÍA ARQUITECTURA
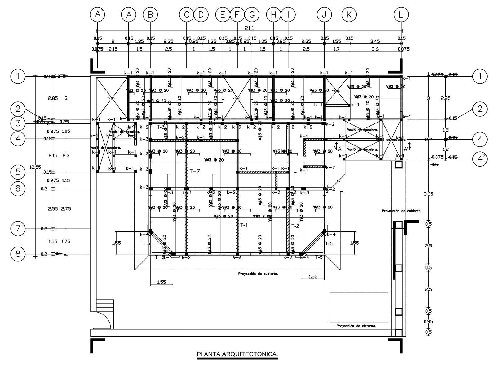
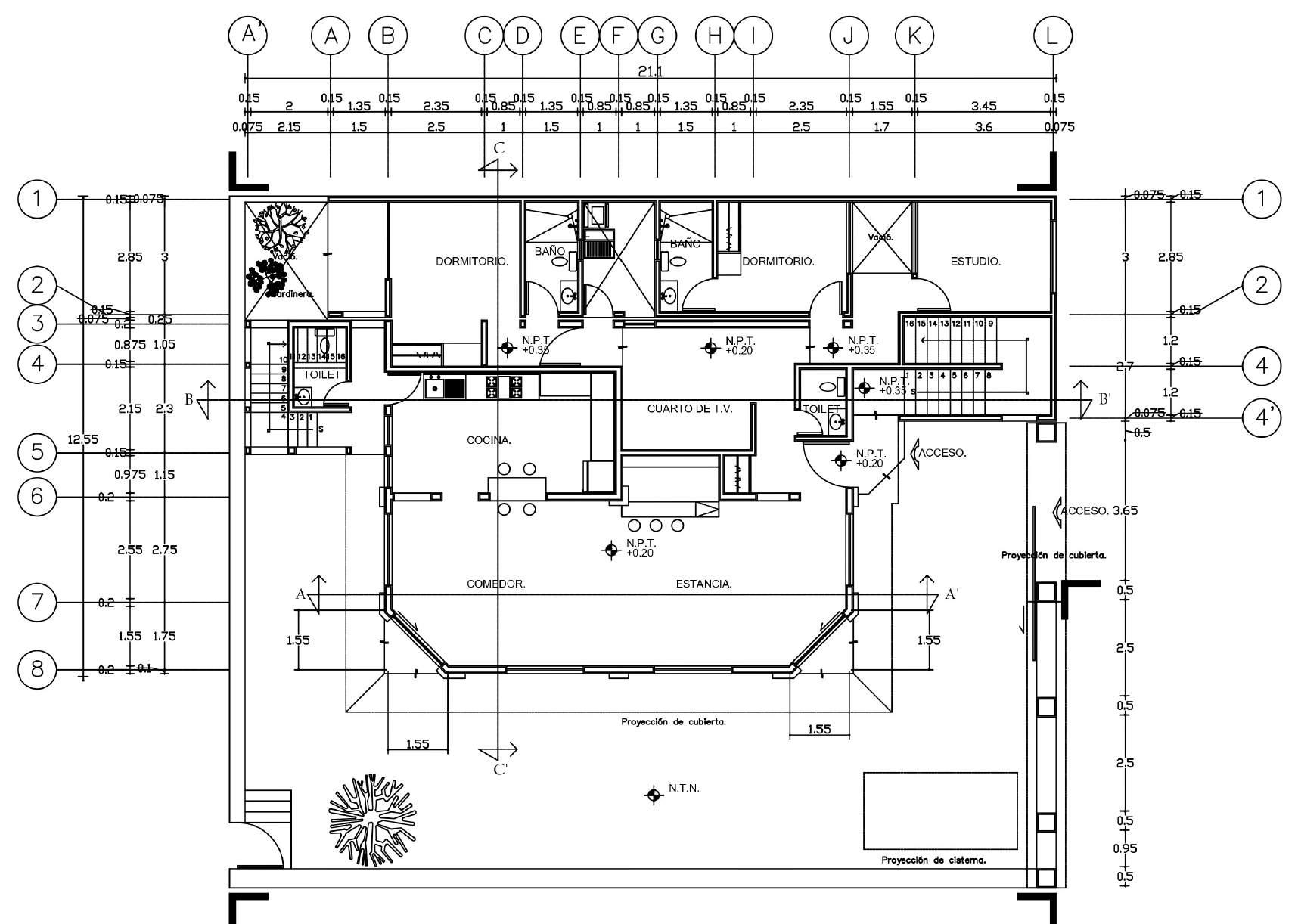
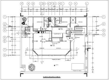
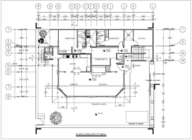
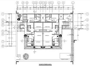
PLANTA ARQ - Piso 1
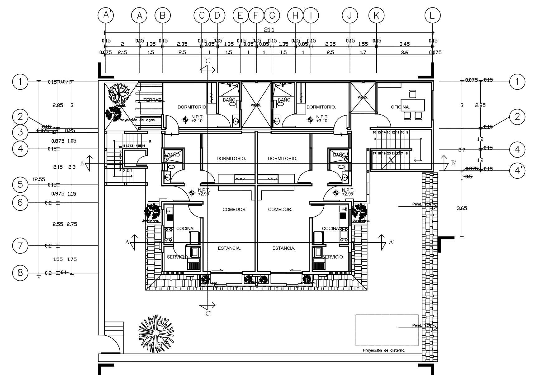
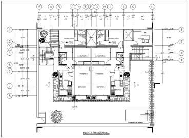
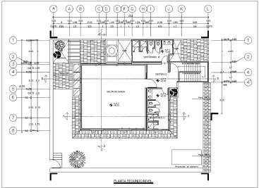
PLANTA ARQ - Piso 2
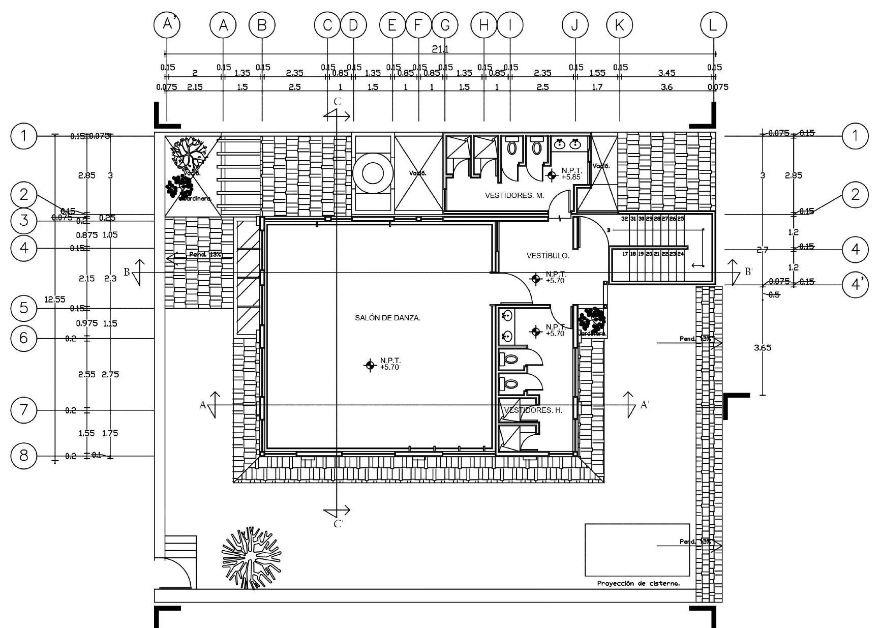
PLANTA ARQ - Piso 3
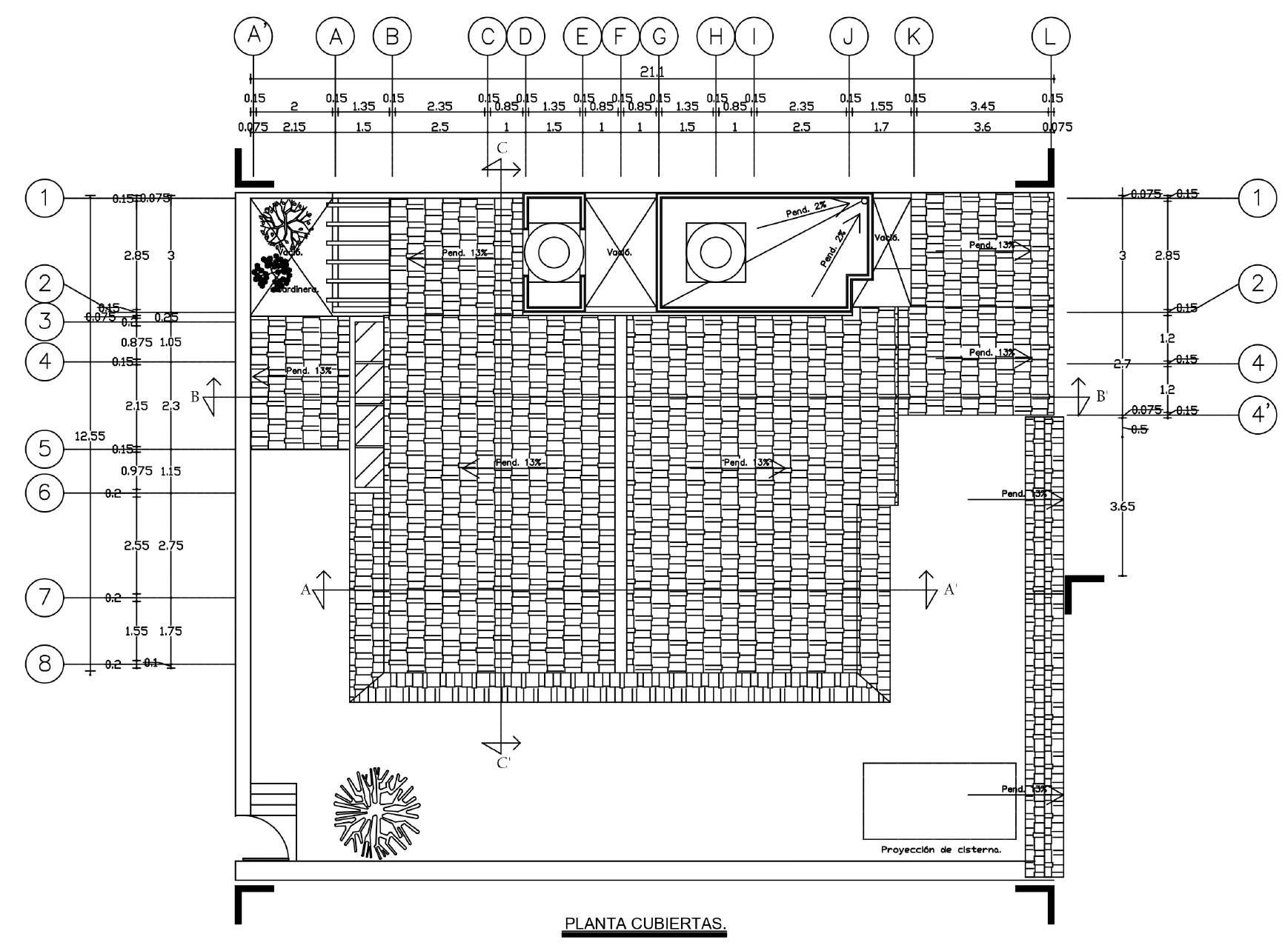
PLANTA ARQ - Techos
METRADOS Y PARTIDAS - ESTRUCTURAS
Losa aligerada
Losa de cimentación
Viga de cimentación
Zapatas

METRADOS Y PARTIDAS - ESTRUCTURAS
Contrapiso
Pisos y pavimentos
Pavimentos (veredas)
Barandas y parapetos
Vanos (ventanas y puertas)
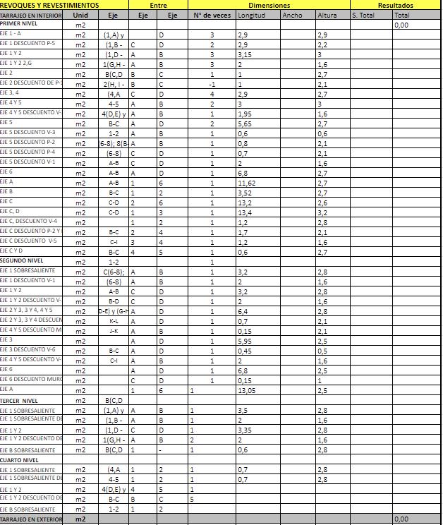
Tarrajeo
Tarrajeo en interiores pañeto
Tarrajeo en exteriores pañeteo
Tarrajeo en exteriores armado de andamio
Tarrajeo de aristas en columnas
Tarrajeo de vigas
Vestiduras de derrames
Escaleras
Pintura en columnas
Enchapados
CAJAMARCA










AREA LIBRE : 52 M2


PROYECTO : MULTIFAMILIAR ÁREA DE TERRENO: 387,00 M²































LA LOSA ESTA BASADA EN SISTEMA DE VIGUETA Y BOBEDILLA, ASI COMO, VIGAS TRAVEZ



LOSA ALIGERADA


ARMADURA

MANO DE OBRA DE ENCOFRADO

MANO DE OBRA DE DESENCOFRADO



HABILITACIÓN LOSA ALIGERADA




CURADO LOSA ALIGERADA













Las vigas usasdas en este proyecto se denominan traves por su prediminante peralte son un agrupamiento mayor de estribos


VIGAS TIPICAS DE CONCRETO












CURSO:
TejadaDelgadoJeanMICHEL ChavezTorresCristanAexander CarrascoMednaChristanMigue HuaripataGuterrez,Yhoel
FECHA: 18/10/2024
PARTIDADEVIGASDECIMENTACION

LA VIGA DE CIMENTACIÓN ES UNA ESTRUCTURA DE HORMIGÓN ARMADO QUE SIRVE PARA CONECTAR ZAPATAS AISLADAS Y ESTÁN DISEÑADAS PARA SOSTENER CARGAS LINEALES, CONCENTRADAS O UNIFORMES, EN UNA SOLA DIRECCIÓN.
METRADO ACEROS DE VIGAS DE CIMENTACION

METRADO DE










LAS ZAPATAS SON ELEMENTOS DE CIMENTACIÓN QUE SE UTILIZAN PARA TRANSMITIR LAS CARGAS DE UNA ESTRUCTURA AL TERRENO.



METRADO ACEROS DE ZAPATAS

METRADO DE ZAPATAS-LLENADO


METRADO DE ZAPATAS-ENCOFRADO Y DESENCOFRADO



















EL CONTRAPISO ES UNA CAPA DE CONCRETO QUE SE APLICA SOBRE EL CASCO DE UNA OBRA PARA DARLE LISURA Y NIVELACIÓN.












LOS PISOS PUEDEN CLASIFICARSE SEGUN SUS ACABADOS(LISOS, TEXTURADOS, ENCHAPADOS, ETC) ADEMAS TAMBIEN PUEDEN DIFERENCIARSE POR LA CALIDAD O FINALIDAD DE SUS ACABADOS SIENDO ESTOS DE TRANSITO BAJO, MEDIO Y ALTO










LAS VEREDAS SON CAMINOS CONSTRUIDOS CON CONCRETO QUE BUSCAN GUIAR AL PEATON HACIA LA VIVIENDAS ESTAS EN SU MAYORIA PRESENTAN UN ACABADO TEXTURADO PARA EVITAR DESLIZAMIENTO Y A SU VEZ PRESENTAN JUNTAS DE DILATACION LAS CUALES EVITAN QUE LA VEREDA SE AGRIETE POR COMPLETO.
RECOMENDACIONES:
LA ALTURA DE LA VEREDA, LA CUAL DEBE SER DE 15 CENTÍMETROS SOBRE LA CALZADA. EL ANCHO DE LA VEREDA, QUE COMO MÍNIMO DEBE SER DE 100 CM. EL VACIADO DE LAS ACERAS DEBE HACERSE EN PAÑOS QUE NO SUPEREN LOS 6 METROS DE LONGITUD, Y EN CADA CASO SE DEBEN COLOCAR JUNTAS DE CONSTRUCCIÓN.









Pared o baranda que se pone para evitar caídas, en los puentes, escaleras, etc. valla, cerca1, pared, muro, defensa, protección.



El parapeto es un elemento arquitectón co de protección que sirve para evitar la caída al vacío de personas,
Usa pintura plana especialmente formulada para cielos rasos. El acabado plano oculta las irregularidades y marcas de superposición. La pintura para cielo raso se distribuye con una salpicadura mínima y no se pone amarilla con el tiempo.













PARTIDA (1.20M X 1.40M)
Son espacios o aberturas que se encuentran en estructuras, como paredes o techos, y suelen servir para permitir el paso de luz, aire o personas






DE VENTANA (1.20M X 1.40M)

PARTIDA DE VENTANA (1.00M X 1.20M) PARTIDA
PUERTA (0.90M X 2.10M)






el tarrajeo es un proceso esencial en la construcción que consiste en aplicar una capa de mortero o yeso sobre las superficies de una estructura, como paredes y techos1. El objetivo principal del tarrajeo es nivelar y alisar estas superficies, además de brindarles protección y un acabado estético
Existen diferentes tipos de tarrajeo según el acabado y la ubicación, como el tarrajeo primario, frotachado, pulido, y quemado1. Cada uno tiene sus propias características y aplicaciones específicas
El tarrajeo es el toque final que le das a los muros para que queden lisitos y listos para lo que venga después, ya sea pintura o cualquier otro acabado.













Protección y durabilidad: El tarrajeo refuerza la resistencia de las paredes frente a golpes, humedad, y cambios de temperatura.
Estética: Proporciona un acabado limpio y uniforme, lo que mejora la apariencia visual de los interiores antes de ser pintados o revestidos.
Aislamiento térmico y acústico: Dependiendo del grosor y materiales usados, el tarrajeo puede contribuir a mejorar el aislamiento en la vivienda.
El pañeteo es una técnica esencial tanto para la funcionalidad como para la estética de los interiores, proporcionando superficies planas, duraderas y preparadas para cualquier tratamiento decorativo posterior.
Después de aplicar el tarrajeo, es crucial realizar un curado adecuado, manteniendo la superficie húmeda durante varios días para evitar fisuras. El secado final toma de 7 a 14 días, dependiendo de las condiciones ambientales.
Para garantizar que el tarrajeo quede recto y uniforme, se utilizan reglas metálicas o niveladores. Se pasan por la superficie para corregir posibles ondulaciones o desniveles, dejando la capa lo más pareja posible.







El tarrajeo en exteriores, también conocido como pañeteo o tarrajeo grueso, es una técnica constructiva utilizada para recubrir y proteger las superficies exteriores de edificaciones. El objetivo principal es proteger las paredes de las condiciones climáticas adversas (como lluvia, sol intenso, viento) y darles un acabado uniforme y estético.
Se utiliza una mezcla de cemento, arena gruesa y agua. La proporción varía dependiendo del tipo de superficie y las condiciones climáticas, pero en exteriores se recomienda una mezcla resistente para soportar la exposición directa al clima. En algunos casos, se añaden aditivos para mejorar la impermeabilidad o adherencia.
El proceso de curado es fundamental para evitar fisuras. La superficie debe ser humedecida durante varios días para asegurar que el secado sea gradual y uniforme.
El tarrajeo actúa como una barrera frente a la humedad, los cambios de temperatura y la radiación solar, prolongando la vida útil de la estructura.
Aislamiento: Ayuda a mejorar el aislamiento térmico y acústico de la edificación.






El tarrajeo en exteriores, también conocido como pañeteo o tarrajeo grueso, es una técnica constructiva utilizada para recubrir y proteger las superficies exteriores de edificaciones. El objetivo principal es proteger las paredes de las condiciones climáticas adversas (como lluvia, sol intenso, viento) y darles un acabado uniforme y estético.
Se utiliza una mezcla de cemento, arena gruesa y agua. La proporción varía dependiendo del tipo de superficie y las condiciones climáticas, pero en exteriores se recomienda una mezcla resistente para soportar la exposición directa al clima. En algunos casos, se añaden aditivos para mejorar la impermeabilidad o adherencia.

El proceso de curado es fundamental para evitar fisuras. La superficie debe ser humedecida durante varios días para asegurar que el secado sea gradual y uniforme.
El tarrajeo actúa como una barrera frente a la humedad, los cambios de temperatura y la radiación solar, prolongando la vida útil de la estructura.
Aislamiento: Ayuda a mejorar el aislamiento térmico y acústico de la edificación






El tarrajeo en exteriores, también conocido como pañeteo o tarrajeo grueso, es una técnica constructiva utilizada para recubrir y proteger las superficies exteriores de edificaciones. El objetivo principal es proteger las paredes de las condiciones climáticas adversas (como lluvia, sol intenso, viento) y darles un acabado uniforme y estético.
Se utiliza una mezcla de cemento, arena gruesa y agua. La proporción varía dependiendo del tipo de superficie y las condiciones climáticas, pero en exteriores se recomienda una mezcla resistente para soportar la exposición directa al clima. En algunos casos, se añaden aditivos para mejorar la impermeabilidad o adherencia.
El proceso de curado es fundamental para evitar fisuras. La superficie debe ser humedecida durante varios días para asegurar que el secado sea gradual y uniforme.
El tarrajeo actúa como una barrera frente a la humedad, los cambios de temperatura y la radiación solar, prolongando la vida útil de la estructura.
Aislamiento: Ayuda a mejorar el aislamiento térmico y acústico de la edificación






El tarrajeo en exteriores, también conocido como pañeteo o tarrajeo grueso, es una técnica constructiva utilizada para recubrir y proteger las superficies exteriores de edificaciones. El objetivo principal es proteger las paredes de las condiciones climáticas adversas (como lluvia, sol intenso, viento) y darles un acabado uniforme y estético.
Se utiliza una mezcla de cemento, arena gruesa y agua. La proporción varía dependiendo del tipo de superficie y las condiciones climáticas, pero en exteriores se recomienda una mezcla resistente para soportar la exposición directa al clima. En algunos casos, se añaden aditivos para mejorar la impermeabilidad o adherencia.
El proceso de curado es fundamental para evitar fisuras. La superficie debe ser humedecida durante varios días para asegurar que el secado sea gradual y uniforme.
El tarrajeo actúa como una barrera frente a la humedad, los cambios de temperatura y la radiación solar, prolongando la vida útil de la estructura.
Aislamiento: Ayuda a mejorar el aislamiento térmico y acústico de la edificación.






El tarrajeo en exteriores, también conocido como pañeteo o tarrajeo grueso, es una técnica constructiva utilizada para recubrir y proteger las superficies exteriores de edificaciones. El objetivo principal es proteger las paredes de las condiciones climáticas adversas (como lluvia, sol intenso, viento) y darles un acabado uniforme y estético.
Se utiliza una mezcla de cemento, arena gruesa y agua. La proporción varía dependiendo del tipo de superficie y las condiciones climáticas, pero en exteriores se recomienda una mezcla resistente para soportar la exposición directa al clima. En algunos casos, se añaden aditivos para mejorar la impermeabilidad o adherencia.
El proceso de curado es fundamental para evitar fisuras. La superficie debe ser humedecida durante varios días para asegurar que el secado sea gradual y uniforme.
El tarrajeo actúa como una barrera frente a la humedad, los cambios de temperatura y la radiación solar, prolongando la vida útil de la estructura.
Aislamiento: Ayuda a mejorar el aislamiento térmico y acústico de la edificación.




El tarrajeo en exteriores, también conocido como pañeteo o tarrajeo grueso, es una técnica constructiva utilizada para recubrir y proteger las superficies exteriores de edificaciones. El objetivo principal es proteger las paredes de las condiciones climáticas adversas (como lluvia, sol intenso, viento) y darles un acabado uniforme y estético.

Se utiliza una mezcla de cemento, arena gruesa y agua. La proporción varía dependiendo del tipo de superficie y las condiciones climáticas, pero en exteriores se recomienda una mezcla resistente para soportar la exposición directa al clima. En algunos casos, se añaden aditivos para mejorar la impermeabilidad o adherencia.
El proceso de curado es fundamental para evitar fisuras. La superficie debe ser humedecida durante varios días para asegurar que el secado sea gradual y uniforme.
El tarrajeo actúa como una barrera frente a la humedad, los cambios de temperatura y la radiación solar, prolongando la vida útil de la estructura.
Aislamiento: Ayuda a mejorar el aislamiento térmico y acústico de la edificación.
Impermeabilidad: Se pueden agregar aditivos impermeabilizantes al mortero para prevenir la absorción de agua.






El tarrajeo en exteriores, también conocido como pañeteo o tarrajeo grueso, es una técnica constructiva utilizada para recubrir y proteger las superficies exteriores de edificaciones. El objetivo principal es proteger las paredes de las condiciones climáticas adversas (como lluvia, sol intenso, viento) y darles un acabado uniforme y estético.
Se utiliza una mezcla de cemento, arena gruesa y agua. La proporción varía dependiendo del tipo de superficie y las condiciones climáticas, pero en exteriores se recomienda una mezcla resistente para soportar la exposición directa al clima. En algunos casos, se añaden aditivos para mejorar la impermeabilidad o adherencia.
El proceso de curado es fundamental para evitar fisuras. La superficie debe ser humedecida durante varios días para asegurar que el secado sea gradual y uniforme.
El tarrajeo actúa como una barrera frente a la humedad, los cambios de temperatura y la radiación solar, prolongando la vida útil de la estructura.

Aislamiento: Ayuda a mejorar el aislamiento térmico y acústico de la edificación.






El tarrajeo en exteriores, también conocido como pañeteo o tarrajeo grueso, es una técnica constructiva utilizada para recubrir y proteger las superficies exteriores de edificaciones. El objetivo principal es proteger las paredes de las condiciones climáticas adversas (como lluvia, sol intenso, viento) y darles un acabado uniforme y estético
Se utiliza una mezcla de cemento, arena gruesa y agua. La proporción varía dependiendo del tipo de superficie y las condiciones climáticas, pero en exteriores se recomienda una mezcla resistente para soportar la exposición directa al clima. En algunos casos, se añaden aditivos para mejorar la impermeabilidad o adherencia.
El proceso de curado es fundamental para evitar fisuras. La superficie debe ser humedecida durante varios días para asegurar que el secado sea gradual y uniforme.
El tarrajeo actúa como una barrera frente a la humedad, los cambios de temperatura y la radiación solar, prolongando la vida útil de la estructura.
Aislamiento: Ayuda a mejorar el aislamiento térmico y acústico de la edificación.
Impermeabilidad: Se pueden agregar aditivos impermeabilizantes al mortero para prevenir la absorción de agua.





El enchapado es aquel método que consiste en un recubrimiento de acabado que se aplica sobre muros, pisos y cielos rasos, etc.
Los tipos de enchapes van desde cerámica, mármol, porcelanato, entre otros.
Los estilos que suelen usarse son, los minimalista, industrial, retro.














