Architecture Portfolio | ARIANE REYES

Page 1


ari.cor.reyes@gmail.com

+1 (480) 823-0522

selected works from 2021 - 2024

content:

work samples from taniguchi ruth makio architects and master of architecture at arizona state university

www.linkedin.com/in/arianereyes

EDUCATION

MASTER OF ARCHITECTURE

Arizona State University

Ariane is a dedicated and highly motivated emerging designer with a multidisciplinary background in the arts, architecture, motion graphics, and community outreach.

She has demonstrated work experience in civic, education, master planning, and commercial projects in San Francisco, Saipan, and Arizona. She commits to the values of mentorship, community, and passion.

Ariane is a hard worker and is passionate about how the built environment can advance through impact, compassion, and staying true to the human experience.

ARIANE CORRINE REYES

ari.cor.reyes@gmail.com

+1 (480) 823-0522

Grad: May 2024

BACHELOR OF ARTS, Minor in Architectural Engineering

Grad: May 2021 University of San Francisco

EXPERIENCE

STUDENT DESIGN TRAINEE III

San Francisco Public Works, San Francisco

06/2024 - Present

Developing and refining preliminary construction documents for 3 operations, engineering, and maintenance buildings in compliance with BOA standards under supervision of Project Architects. Assisted in documenting field measurements to verify and update current as-built documents using Revit. Mentored high school students in the annual DPW High School Internship Program, teaching basic SketchUp interface and final presentation layouts. Enhanced professional growth through suggested webinars, product lunch and learns, and Local 21 Union meetings.

DESIGN INTERN (EDUCATION STUDIO)

Orcutt | Winslow, Phoenix

05/2023 - 04/2024

Maintained and supported design packages of 4 district junior high and high schools within a 3-month timeframe. Produced existing roofs and solar studies in Revit in preparation for project space programming, contributing to community design charrettes. Developed ceiling and exterior shading design options and collaborated with Project Designer and Architect to align with program requirements. Prepared fire evacuation and lockdown plans for five schools in school district. Assisted in filing company-wide projects to AIA 2030 DDX to track energy performance and promot sustainability efforts.

ARCHITECTURAL INTERN/TECHNICIAN I

Taniguchi Ruth Makio Architects, Saipan

06/2021 - 07/2022

Organized construction documents in Revit for civic, hospitability, commercial, and educational projects in Guam and CNMI. Prepared preliminary project cost estimate and adjusted specifications per phase in relation to cut-offs. Inspected and frequented as-built surveys of prohect site and transferred existing project application. Supported Project Manager and Principal Architect in ensuring projects are up to date with planning and design code, standards, and technical and clerical work.

PROFESSIONAL DEVELOPMENT

VOLUNTEER MENTOR

Architectural Foundation of San Francisco

To mentor enrolled high school youth in 6-week program to understand what life in architectural design world is like and to envision a career path for themselves. Will participate in 2024-2025 Fall/Winter/Spring programs with meeting one or two students weekly.

SCHOLARSHIP FINALIST

Amineh Warrayat Scholarship

The scholarship will provide financial assistance to a National Organization of Minority Architecture Student (NOMAS) member who shares late Amineh Warrayat’s belief that diversity within design schools is vital and will embody the spirit of NOMA Arizona’s core mission to empower underserved communities in Arizona. I was offered a Student Membership to NOMA and NOMA Arizona for school year 2023-2024.

SCHOLARSHIP RECIPIENT/ASSOCIATE MEMBER

AIA National, Micronesia, and Guam

The American Institute of Architects (AIA) National is a notable architectural resource for licensed and emerging professionals through the power of design.

AIA Marianas Scholarship Recipient for School Year 2022 - 2023

AIA Marianas Scholarship Recipient for School Year 2023 - 2024

6TH YEAR REPRESENTATIVE

National Organization of Minority Architecture Studets @ ASU NOMAS provides a platform of equal opportunity within ASU’s Design School’s student body that directly connects students to the professional organization and the workforce.

LEED® GREEN ASSOCIATE™

U.S. Green Building Council

The U.S. Green Building Council’s vision is “that buildings and communities will generate and sustain the health and vitality of all life within a generation.” The LEED Green Associate accreditation aims to enhance professional credentials within the green building industry.

C40 STUDENT COMPETITION WINNER

DLR Group Design Competition

The DLR Group Design Competition is an inhouse 2-day competition developing design that address the local Phoenix community: climactic issues, 10 Climate Challenges, and sustainable energy. I worked in a group of three creating graphics for conceptual designs.

PRESENTER

11th Annual Creative Activity & Research Day

Presented research is titled, “Testing Grounds: Analysis of the Military Planning of the American Territory of Tinian” sparks a conversation about the existing and potential military footprint on the island of Tinian.

SKILLS AND INTERESTS

Revit

Adobe Photoshop

Adobe Illustrator

Adobe InDesign

SketchUp

ProCreate

Microsoft Word & Powerpoint

Urban Sketching

Traveling

Attending concerts

Yoga and pilates

Walking trails

contents

architecture projects

4C COMMUNITY CENTER

community center promoting collaboration and resiliency for the people of south phoenix 2024

ESCUELA PUENTES

a multicultural and bilingual primary school inclusive to hispanic student migrants 2023

EXPANSION

old botanical garden at planten un blomen 2022

WORK SAMPLE

taniguchi ruth makio architects 2021-2022

design and other projects

CORAL LENS

an interactive augmented reality (ar) experience of hawaii’s coral reefs 2023

GUAM LIBERATION DAY FLOAT DESIGN

float design for guam community college and university of guam 2021

instructor:

faia master of architecture arizona state university

4C COMMUNITY CENTER A PLACE OF COLLABORATION AND RESILIENCY FOR THE PEOPLE OF SOUTH PHOENIX

STUDIO: LOCAL AND COMMUNITY

Located in 2331 E Broadway Road Phoenix, AZ 85040, the 33,500 sf 4C Community Center is a testament to the resiliency of the people in South Phoenix. In reflection of the previous community hub and future aspirations, this is the living embodiment of the community’s confidence, creativity, and collaboration.

Some of the building’s trade assets include: (1) encouragement of physical and mental stimulation; (2) accessibility to organic groceries; (3) community accountability; (4) leveraging economic momentum.

farmed ranched by mexican

phoenix sky harbor

international airport

western built

state route 143

1924

interstate 10

1933-1940

the civilian conservation corps were established

2014 currently

58 miles of trails; south mountain observes “silent sunday”

south mountain park was established

20th century

century farmed and mexican settlers

community hub for black and hispanic communities; couldn’t live north because of redlining

south mountain park entry complex was added to the national register of historic places

1999

city demolished business to combat increase in crime

early 20th century

6,000 acres owned by bartlett-heart land

1970s and 1980s

lively course of community and entertainment

2022 search for new developments

building elevation - south
exterior perspective - main entrance
exterior perspective - building and community garden
Render by groupmate, Kanika Sathe

ESCUELA PUENTES:

A MULTICULTURAL AND BILINGUAL PRIMARY SCHOOL

INCLUSIVE TO HISPANIC STUDENT MIGRANTS

STUDIO: ARCHITECTURE OF LEARNING INFRASTRUCTURES

This design approach is based on the natural landscape and El Paso, Texas and Juarez, Mexico’s overlapping cultural public arenas. These elements, desert planting, cultural identity, monumentality, and community, will be applied while welcoming an inclusive market, both in education and civic, through a familiar conceptual of bridging ¡bienvenido! advanced

ESCUELA PUENTES

Transborder students’ natural path: Mexico to U.S.

Transborder students’ natural path in Escuela Puentes

ESCUELA PUENTES

layout title:
CAFETERIA

ESCUELA PUENTES

ESCUELA PUENTES

Physical model by groupmates, Charles DeMerit and Sohail Settu

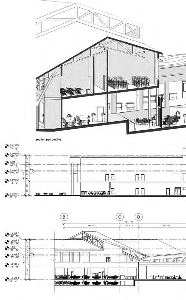
EXPANSION: OLD BOTANICAL GARDEN AT PLANTEN UN BLOMEN

STUDIO: ARCHITECTURE OF LIVE COLLECTIONS

Located in Planten un Blomen, the Old Botanical Garden covers 116 acres of land as a point of research and horticultural exhibition for the city of Hamburg.

The greenhouses is composed of an exoskeleton of steel girders arranged in a parallelogram geometry. The existing collections include the Tropic House, Cycad House, Subtropic House, Fern House, and Desert House.

The greenhouse sits into a hillside and mimics the curvature of the Mediterranean terraces, leading to the historical moat from old city fortications.

OLD BOTANICAL GARDEN AT PLANTEN UN BLOMEN

ST.PETERSBURGSTREET

B.DENKIRCHÖFEN

MARSEILLERPROMENADE

BUCERIUSLAWSCHOOL

JAPANESEGARDEN

BUCERIUSLAWSCHOOL

HELMUTSCHMIDT AUDITORIUM

JUNGIUSSTRAßE

In a group of four, the intention of our expansion and adaptation was to provide a new botanical collection and program to give the existing project new life with current sustainable and bioclimactic approaches. We analyzed the strengths and weaknesses of the project and provided a new expansion design. I was in charge of all drawings (unless stated otherwise). (Photo of new urban plan with expansion above.)

EXTERIOR ROOF STRUCTURE

Structural roof elements aligned on a geometric grid

EXTERIOR COLUMN STRUCTURE

Structural columns supporting main structural load-bearing elements

ROOF GLAZING SYSTEM

Roof glazing is supported by hanging from exterior structural elements and allows warm air to escape through ceiling vents

WALL GLAZING SYSTEM

Wall glazing allows lights to enter while creating airflow to help regulate temperatures in the different collections

SITE AND INTERIOR

The interior is connected to the site through a system of terraces

Exploded axonometric diagram of new expansion by groupmate David Wood

OLD BOTANICAL GARDEN AT PLANTEN UN BLOMEN

OLD BOTANICAL GARDEN AT PLANTEN UN BLOMEN

WORK SAMPLE: TANIGUCHI RUTH MAKIO ARCHITECTS

WORK SAMPLE

instructor: professor darren petrucci master of architecture student at arizona state university

CORAL LENS: AN INTERACTIVE AUGMENTED REALITY (AR)

EXPERIENCE OF HAWAII’S CORAL REEFS

ADVANCED VISUAL COMMUNICATION DESIGN STUDIO III

With this project, I have collaborated with masters students from architecture, visual communication, and industrial design in one semester in creating a project that can spread awareness on the increase in the bleaching of coral reefs. We decided to use accessible technology to bring corals and the education within to tourists.

The decals on the airport floors and the development of the AR experience are inexpensive investment compared to large banner advertisement. Coral Lens is designed to reach a broad audience including both adults and children.

CORAL LENS

Accessible Learning - The interactive nature of augmented reality breaks barriers to understanding complex ecological concepts -- making it more accessible to a wider audience.

Environmental Awareness and Conservation - The augmented reality component offers a firsthand glimpse into the underwater world of coral reefs, fostering a deeper connection and appreciation for these ecosystems.

Behavioral Change and Advocacy - The visual impact of the AR experience can inspire behavioral changes in these tourists, encouraging them to adopt more environmental friendly practices.

taniguchi ruth makio architects may 2021 - july 2022

GUAM LIBERATION DAY FLOAT DESIGN

TANIGUCHI RUTH MAKIO ARCHITECTS

AS AN ARCHITECTURE INTERN

Turn static files into dynamic content formats.

Create a flipbook
Issuu converts static files into: digital portfolios, online yearbooks, online catalogs, digital photo albums and more. Sign up and create your flipbook.