Skip to main content

Ana Olmedo Portfolio 2024

Page 1

TLR ARCHITECTURE & ASSOCIES

conception : TLR + ANA ROSA OLMEDO

construction :TLR + ANA ROSA OLMEDO

My implication in this project: - bidding, construction and capitalisation

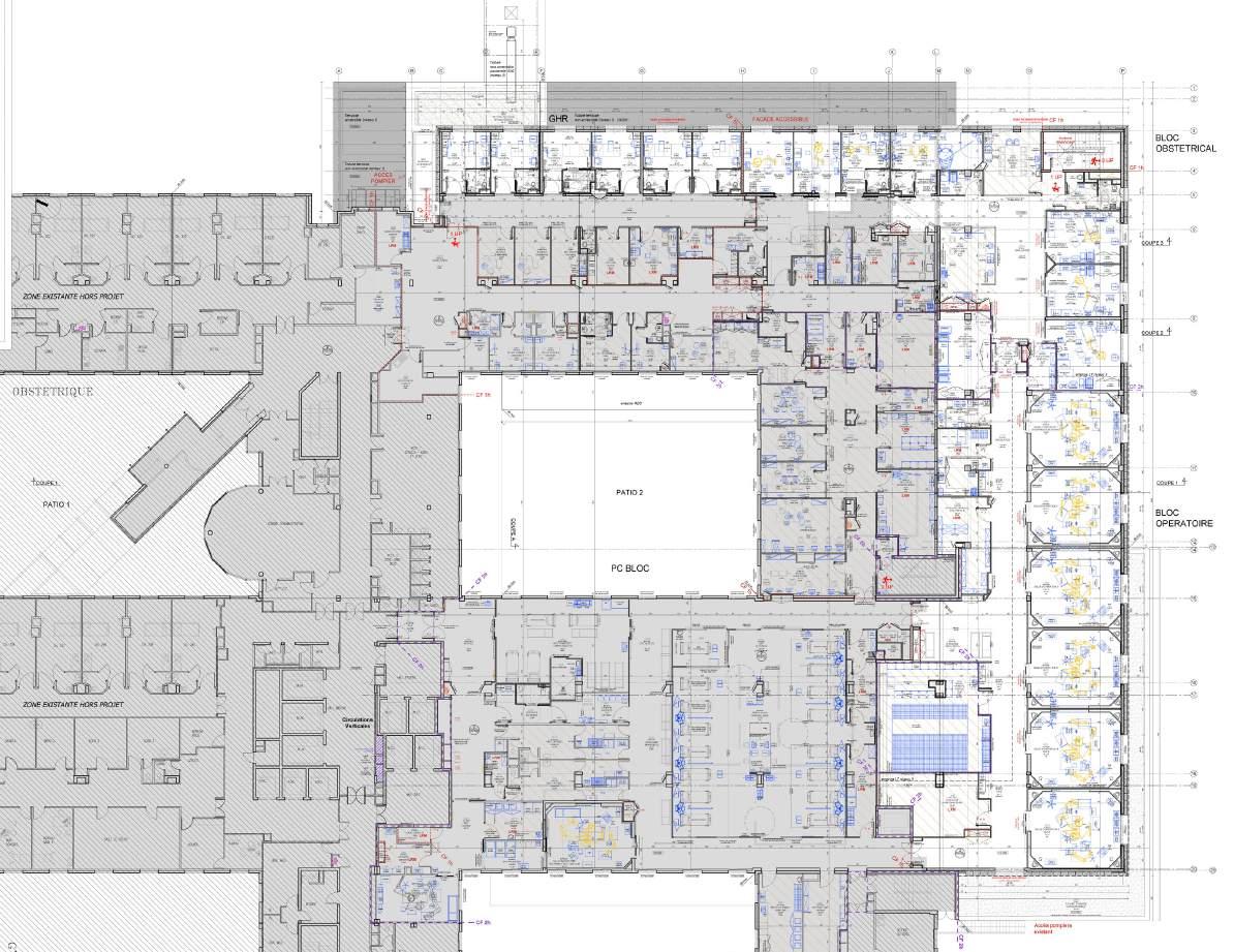
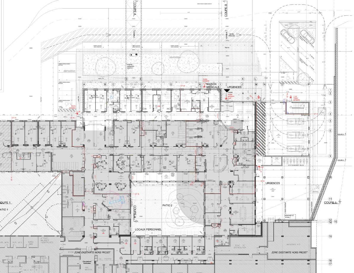
EMERGENCY WARD & OPERATION THEATRES - FRANCE

CONSTRUCTION PHASE since june 2020

A 3-store buildig of 5300 m² completing the extension and rehabilitation of the emergency ward in ground floor and OT and maternity ward at second floor.

The medical activity continues during teh construction, so the phasing of the project is divided in five periods (5 years planning). Twelve different companies are organised by the team of 4 engineers, planning suppervisor and one architect.

TLR ARCHITECTURE & ASSOCIES

conception : TLR construction :TLR + ANA ROSA OLMEDO

My implication in this project: - building permit, construction and capitalisation

HOUSING, TRAINING AND SOCIAL INTEGRATION CENTRE

CONSTRUCTION PHASE

Center for accommodation, training and social reintegration of the working disabled population. Construction phase 2 years. 17 different companies. Total surface of 6200 m². Team of 2 engineers and one architect.

DOCTORS WITHOUT BORDERS MSF

conception : MSF + ANA ROSA OLMEDO

construction :MSF + ANA ROSA OLMEDO

My implication in this project: - construction phase and capitalisation

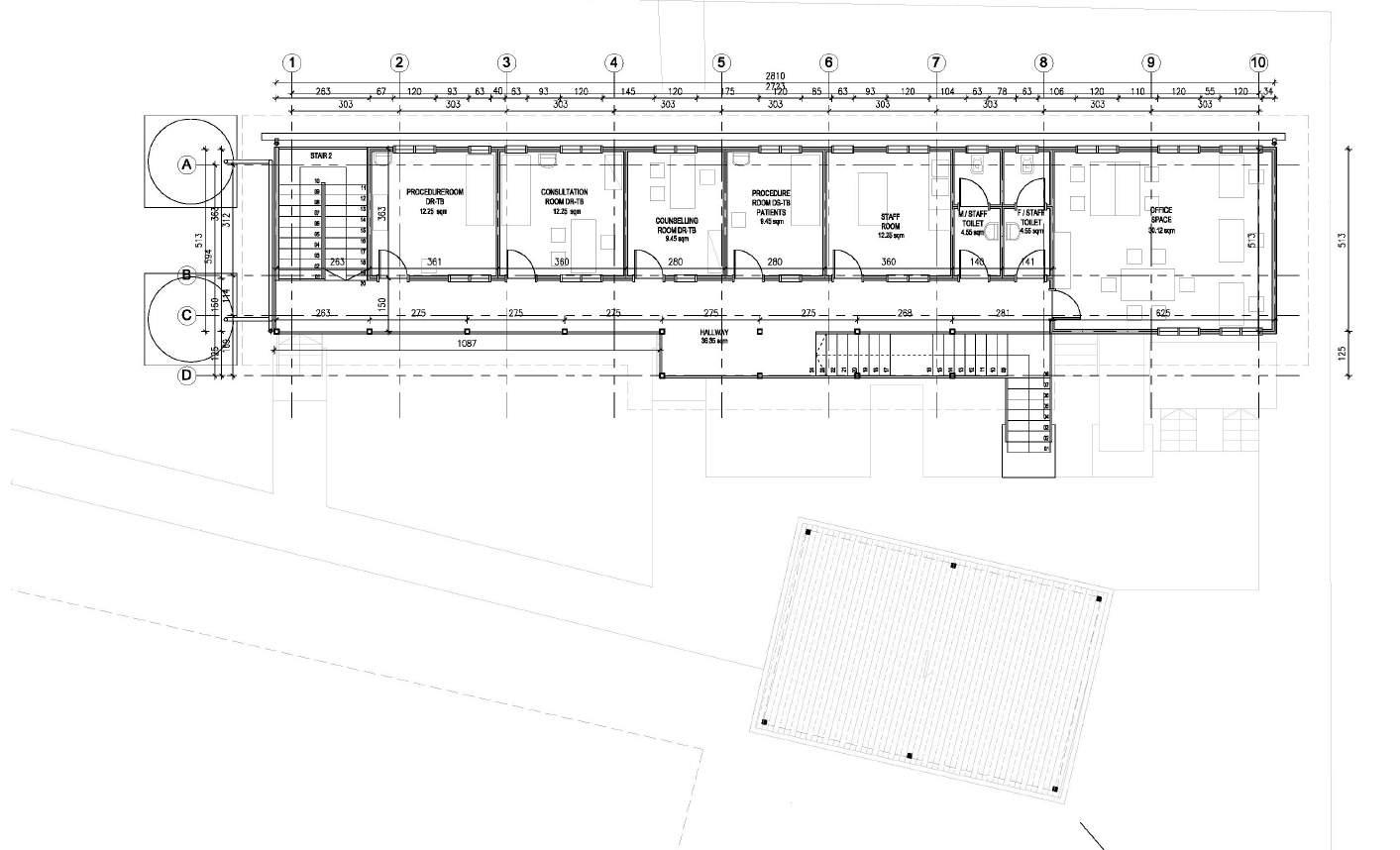
TUBERCULOSIS CLINIC - PAPUA NEW GUINEA

CONSTRUCTION PHASE june-december 2019

The two store building is replacing the temporary structure of the clinic in which MSF has been running their activities since 2014. The reduce time for completion has been a factor to determine the construction system (steel structure and FRAMECAD system) allowing only 6 months for building process.

Following prevention and infection control, the two main type of patients, Drug Resistant DR and Drug Sensitive DS are organised in ground and first floor accordingly. Cross ventilation, ceiling heigh and type of materials have been choosen to suit the medical activity and the local conditions (sysmic zone, high humidita rate, termites, etc. )

DOCTORS WITHOUT BORDERS MSF

conception : MSF

construction :MSF + ANA ROSA OLMEDO

My implication in this project: - construction phase and capitalisation

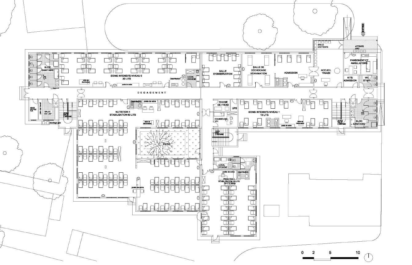
PEDIATRIC

HOSPITAL CSREF KOUTIALA - MALI

CONSTRUCTION PHASE june-december 2018

The remote area in which the project is settled is a challenge for the arrival and accesibility to materials as well as qualified staff.

A new building with the capacity of 185 beds is planned to improve the existing pediatric care from MSF in the public government hospital of Koutiala. The carpentry has been fabricated locally with the existing resources and an extensive system of infiltration eliminates the grey and black waters and treats them before releasing them slowly in the soil.

The different medical services are nutrition, neonatology, burns, intensive care and general pediatrics.

PROFESSIONAL EXPERIENCE J&S TABET

conception : ANA ROSA GARCIA OLMEDO + J&S TABET

drawings : ANA ROSA GARCIA OLMEDO

My implication in this project : - développement of DD phase - design of plans, sections, constructive details, etc.

SOCIAL HOUSING PROJECT IN CALMETTE ORLY

CONSTRUCTION OF 87 APPARTMENTS february-may 2018

The general plan is organised around a central green area that offers a nord-south transparence visible from the street.

The configuration: 6T1, 21T2, 33T3, 19T4, 8T5 makes a total of 87 appartments organized in 4 independent buildings instead of a sole block.

The landscape around the buildings is south-oriented to get more sun expossure. The plants and trees have been chosen to suit the constext conditions, and they don´t need almost any maintenance for their development. The rain water is storaged in an open water reserve in the middle of teh garden.

Bâtiment D Elevation Sud

DATE

DATE

ECHELLE PHASE / NUMERO

ECHELLE PHASE / NUMERO DCE0Remise PRO 24 avril 2018 1/20

Bâtiment D Coupe Sud

Bâtiment D Elevation Sud

Detaisl façade et étanchéite

Titre du Plan :

Titre du Plan :

Maître d'Oeuvre INDICE

0Remise PRO 24 avril 2018 1/20

ARC 21-7

Maître d'Oeuvre INDICE

Detaisl façade et étanchéite ARC 21-7

Bâtiment D Elevation Sud DATE INDICE

Bérim 149 Avenue Jean Lolive 93500 Pantin TEL 01 41 83 36 36 Bureau d'étude

Bérim 149 Avenue Jean Lolive 93500 Pantin TEL 01 41 83 36 36 Bureau d'étude

Atelier

Jad et Sami Tabet d'Architecture et d'Urbanisme

33 bis, avenue Reille / 75014 Paris TEL 01 53 80 46 89

Atelier Jad et Sami Tabet d'Architecture et d'Urbanisme 33 bis, avenue Reille / 75014 Paris TEL 01 53 80 46 89

ECHELLE PHASE / NUMERO DCE0Remise PRO 24 avril 2018 1/20 ARC 21-7

du
Titre
Plan
Details façade et étanchéite
DCE
01 41 83 36 36
Bâtiment D Coupe Sud
Maître d'Ouvrage Titre du Plan : Maître d'Oeuvre Bureau d'étude PHASE / Construction de 87 logements - ZAC Calmette - Ilot 7b Details façade et étanchéite Bâtiment B
Sud Maître d'Ouvrage Titre du Plan : Maître d'Oeuvre Bureau d'étude PHASE Construction de 87 logements - ZAC Calmette - Ilot 7b Details façade et étanchéite Bâtiment B Coupe Sud Atelier Jad et Sami Tabet d'Architecture et d'Urbanisme 33 bis, avenue Reille / 75014 Paris TEL 01 53 80 46 89 Maître d'Ouvrage Titre du Plan : Maître d'Oeuvre Valophis Habitat, OPH du Val de Marne 81 rue du pont de Créteil 94100 Saint Maur des Fossés Bérim 149 Avenue Jean Lolive 93500 Pantin TEL 01 41 83 36 36 Bureau d'étude PHASE NUMERO Construction de 87 logements - ZAC Calmette - Ilot 7b DCEDetails façade et étanchéite ARC 21-4 Bâtiment
Sud
Coupe
B Coupe

conception : ANA ROSA GARCIA OLMEDO + RPBW

drawings : ANA ROSA GARCIA OLMEDO + RPBW

My implication in this project:

- coordination with structural and MEP engineers,local teal of architects & engineers

- development of DD phase and current CD phase

- design of plans, sections, constructive details, etc.

TOWER, CONVENTION CENTER AND ART FOUNDATION MUSEUM

TAIPEI FUBON HEADQUARTER 2016-2017

The project, starting construction in October 2017, consists of three buildings within a new landscape, shaded urban context. The central 52-storey tower, 265 m high and 92000 m² will accomodate the Fubon headqurter offices and a roof-top restaurant open to the public. To the north of the tower, lies the Restaurant Quarter of 5600 m² accomodating a 450 conference hall, meeting room and event facilities giving to a winter garden and roof-top garden. To the east of the tower, the 2000 m² contemporary art Museum will be the foundation offered by Fubon to the City of Taipei.

All the three construction are connected by more than 150 new tress that will be planted in a landscape garden surroundung the context and offeing a shaded environment in the tropical climate.

The whole structural project has been design to resist the lateral seismic and typhoon wind loads typical from the context.

Additional information and drawings can be provided for better understanding of the design and technical demands of the project.

PROFESSIONAL EXPERIENCE at Renzo Piano RPBW

Turn static files into dynamic content formats.

Create a flipbook
Ana Olmedo Portfolio 2024 by Ana Rosa Garcia Olmedo - Issuu