PORTFOLIO ARCHITETTONICO
2020-2024
ARGHAVAN HAGHANIPOUR

Complesso residenziale di lusso
Louisiane office
Land of fashion Porsche
Franciacorta outlet village
![]()
2020-2024
ARGHAVAN HAGHANIPOUR

Complesso residenziale di lusso
Louisiane office
Land of fashion Porsche
Franciacorta outlet village
Progetto schematico, Sviluppo del progetto, Disegni esecutivi.
Laserie di ville di lusso si trova in Cambogia. L’obiettivo del progetto è creare uno spazio abitativo sofisticato ed elegante che combini materiali di alta qualità con dettagli di design raffinati. Le ville utilizzano materiali come marmo, pietra, legno massello e vetro per ottenere un’estetica moderna e minimalista. Ogni villa vanta caratteristiche uniche, tra cui una palestra privata e un’area giochi. L’integrazione di rigogliosi paesaggi e illuminazione ambientale arricchisce ulteriormente il fascino di queste residenze esclusive.









Progetto schematico, Sviluppo del progetto, Peratiche per la richiesta di permesso, Disegni esecutivi, Direzione lavori.
L’ufficio appartiene a Louisiana S.P.A., che opera nel settore delle vendite di pelle pregiata. Lo scopo di questo intervento è riconfigurare il layout per creare nuovi uffici chiusi e aggiornare gli spazi in base alle esigenze del cliente. Uno degli obiettivi è rinnovare l’area d’ingresso creando un piccolo atrio che ospiti un bagno, una sala server, un locale di servizio e un archivio. Sarà dotato di due porte d’ingresso: una per il trasferimento delle merci e l’altra per l’accesso al luogo di lavoro. Un altro obiettivo è dividere il grande open space in tre aree: uffici, magazzino e laboratorio. Questo comporterà l’aggiunta di stanze chiuse come un’area break, tre piccole sale riunioni e due uffici. Nell’open space, l’intero impianto sarà a vista, con i canali esistenti riposizionati. Gli uffici chiusi saranno costruiti come scatole di vetro con altezze inferiori al soffitto reale, collocati sotto i tubi.





Plasterboard
Plasterboard false









Progetto schematico, Sviluppo del progetto, Peratiche per la richiesta di permesso, Disegni esecutivi, Direzione lavori.
Land of Fashion è un grattacielo situato a Milano, Italia. Lo scopo dell’intervento è il restyling degli attuali uffici, suddividendo il piano in due unità distinte. L’intento del design è riconsiderare gli spazi interni sia dal punto di vista funzionale, con interventi mirati a ottimizzare il layout, sia dal punto di vista estetico, con un mood orientato alla creazione di uno spazio accogliente senza il rigore e la “freddezza” degli attuali uffici, soprattutto attraverso l’uso di pareti con geometrie curve e accessori d’arredo raffinati. Il progetto prevede un’area reception, due lounge, due sale riunioni, due spazi open space, cinque postazioni di lavoro chiuse e due piccoli locali chiamati Phone Booths che ospitano una superficie di appoggio e una sedia. Al termine, è previsto anche il restyling dell’attuale area mensa con cucina, con spazi dedicati ai lavoratori e, in caso di eventi.


Costruzioni
Demolizioni
Costoruzioni
Demolizioni
Demolizione e ricostruzione del controsoffitto
Lampada da rimuovere
Lampada da sostituire


















TLaschematico.
piazza principale del Franciacorta Outlet Village è il punto centrale dello spazio commerciale, ma purtroppo mancava di un elemento iconico e distintivo, il che ha sottolineato la necessità di una trasformazione radicale. Questo progetto cerca di dare alla piazza principale una nuova immagine, rendendola più attraente e accogliente per i visitatori, creando uno spazio pubblico dedicato al tempo libero e alla socializzazione. Arricchita da aree tematiche distintive e specifiche, il punto centrale diventa un elemento importante del sistema complesso necessario per migliorare l’esperienza dei visitatori. Il nuovo design del pavimento aiuta a enfatizzare i percorsi principali, con nuovi alberi che segnano il ritmo dell’arcata esistente. Il paesaggio verde strategicamente posizionato aiuta a guidare il flusso di circolazione. La Food court, collocata in posizione centrale e racchiusa tra le finestre di bar e ristoranti, è caratterizzata da un paesaggio verde semicircolare che struttura lo spazio in aree più intime in contrasto con la grande scala della piazza, rendendola più riconoscibile e distintiva.




schematico, Sviluppo del progetto, Disegni esecutiv.
Questo showroom è un progetto di concessionario di Mazda, situato in Hun Sen Boulevard a Phnom Penh. Questo flagship è unico nel design rispetto a qualsiasi altro showroom Mazda nel mondo. Il progetto comprende uno showroom per auto, uffici, un’area caffè e bevande e un cinema privato








Progetto schematico.
Lalounge VIP è un progetto di concessionario Porsche situato presso l’Experience Center Franciacorta in Italia. Questo flagship è eccezionale dal punto di vista del design rispetto a qualsiasi altro Porsche nel mondo, grazie all’uso di materiali distintivi e alle partizioni in vetro tra gli spazi. Il progetto include un’area bar-accoglienza, uno spazio lounge, un’area riunioni e una lounge per il fitting delle consegne delle auto.




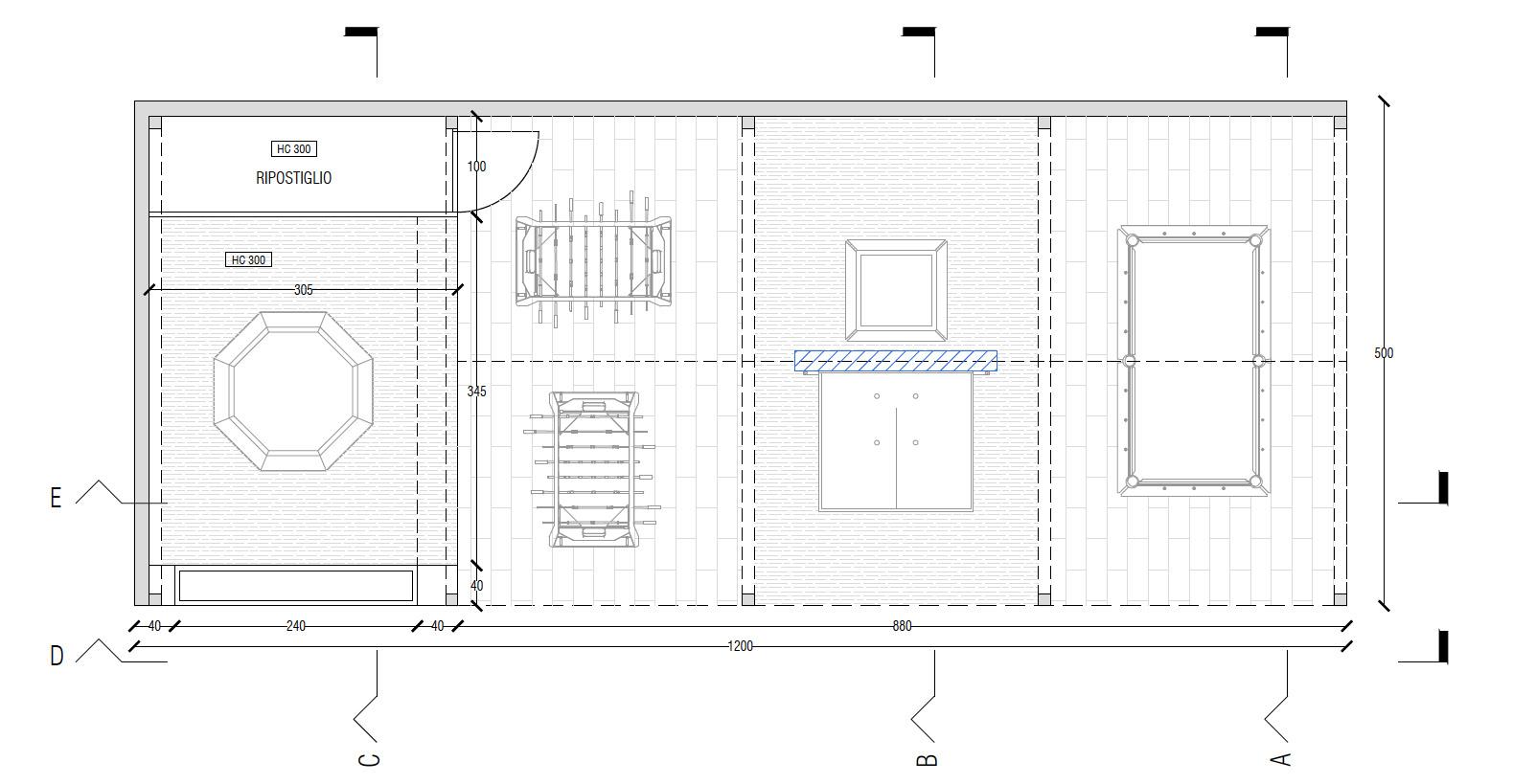
Questo pavilion è stato progettato per il marchio di lusso Impatia, rinomato per i suoi tavoli da gioco. La richiesta del cliente era di creare quattro spazi distinti per ogni tavolo da gioco. A causa delle limitazioni di spazio, ho deciso di presentare solo metà del tavolo da ping pong e creare l’illusione di completezza posizionandolo accanto a uno specchio. Inoltre, ho progettato una stanza separata e chiusa per il tavolo da poker, che ho deliberatamente reso più scura per migliorare l’atmosfera. Per ottenere un aspetto unico e coerente, ho abbinato con cura i materiali dei trattamenti delle pareti con i prodotti.





Partizione riflettente per specchiare il tavolo da ping pong



