Areeba Saleem | Waterloo Architecture Portfolio | 2024 Portfolio

Page 1


Areeba Saleem Selected Works

Hi! My name is Areeba and I am currently a thirdyear architecture student at the University of Waterloo seeking a 8-month Internship opportunity.

My work is driven by a curiosity on how human beings can be connected to both the environment and community around them. Through small scale interventions, my designs focus on combating alienation in small-scale architecture and public spaces, by using architecture as a tool for bridging gaps between distant communities, age groups or the landscape. My iterative design process works in tandem with extensive site research to ultimately design a space of nurture and growth, along with finding ways within spaces to slow down and connect to the essential aspects of life.

Working with your team, I hope to enrich your projects with my skillset and contribute to the success of your firm.

647-613-8269

a33salee@uwaterloo.ca

Areeba Saleem

Qualifications

Experience

Education Skills

- Strong Collaboration skills, gained through working at a 4-person architecture firm in a open studio environment

- Effective time-management and organization skills gained through balancing multiple project deadlines at previous co-op placement(s), recognized by Senior Architects.

- Active team player and able to fulfill workplace tasks & responsibilities in an efficient and timely manner while delivering quality work and working with minimal supervision and in a team setting.

Weston Williamson + Partners

May 2024-August 2024 | Toronto, ON

- Contributed to the Subway TOC project(s) by creating floor plans, programming diagrams, massing studies, and coordinating technical aspects of transit.

- Collaborated with the design director to develop tower design iterations in SketchUp, which were then integrated with Revit technical drawings to produce working schemes.

- Conducted urban design studies and created drawings to analyze park space requirements, retail character, and secondary plan considerations.

FABRIK Architects

September 2023-December 2023 | Cambridge, ON

- Worked on various projects ranging from public gyms, warehouses, university washroom renovations, and interior office space planning.

- Successfully utilized visual rendering techniques to create renderings for client review, effectively and quickly communicating intent.

AVA Design Studio

January 2023-April 2023 | Toronto, ON

- Actively engaged in creating door + material schedules, detailing specifications, product research, and using accessibility guidelines to ensure compliance with Building Code.

- Prepared RFP Portfolio & documents for submission.

- Assisted in pre-construction site meeting by marking up existing drawings.

University of Waterloo School of Architecture

2021-Present | Cambridge, ON Candidate for Bachelor of Architecture Studies degree

Model Making

Hand Drafting Sketching

Laser Cutting

503‐67 Mowat Ave Toronto, Ontario M6K 3E3

T: 416 814‐3465 ext. 201

E: andy@avadesignstudio.ca

To whom it may concern May 4/ 2023

Areeba Saleem has worked at AVA design studio from January 2023 to the end of April 2023 and became an integral part of our team.

During her stay at our studio Areeba has been involved in many aspects of our projects from preliminary design, design development to the completion of construction drawings.

We were able to have her work on a wide range of diverse projects which she completed with diligence and professionalism. She was instrumental in the production of construction documents for a multi residential building and several single‐family residences in Toronto.

Under little supervision she prepared drawings for two house renovations which were thoughtfully considered illustrating her knowledge of space planning and AutoCAD.

Areeba also demonstrated good presentation skills when rendering a 3D model for a cottage in Bracebridge and worked on the company’s website.

We have come to know Areeba as an extremely committed and talented architecture student frequently working against tight deadlines and has shown inventiveness and enthusiasm towards her work and colleagues.

With out any hesitation I recommend Areeba Saleem as a beneficial addition to any firm that she applies to in the future.

Sincerely yours

58 Grand Avenue South, Unit 201 Cambridge, ON N1S 0B7

January 19, 2024

Re: Reference Letter for Areeba Saleem

To Whom it May Concern,

I am writing this letter of reference for Areeba Saleem. Areeba worked at FABRIK Architects Inc. at our Cambridge, Ontario office as an Architectural Assistant as part of the University of Waterloo’s Fall 2023 co-op work placement between the months of September and December 2023.

During Areeba’s time with our company, Areeba was responsible for producing architectural renderings and construction drawings using various industry drafting software platforms. While working under my direct supervision, Areeba completed all assigned projects on time and with high degree of perfection. Areeba also managed her assigned project deadlines in a responsible manner and worked on both single residential and commercial projects.

I found Areeba to be eager to learn and able to apply her existing technical skills in an effective manner. During her co-op work term, Areeba collaborated within a small design studio environment daily. Areeba was always willing to help others in the office, and took part in all company events, workshops and learning opportunities.

As a small practice with a collaborative team focus, Areeba had the benefit of getting exposure to many aspects of the practice. I found Areeba to have an enthusiastic passion for the design profession. Areeba is well organized and able to work in a cooperative manner with both her colleagues, management, and Clients.

I would recommend Areeba for any future co-op placement or full-time positions that she decides to pursue.

Kind Regards,

OAA, MRAIC, B.A.S (HON), M.Arch

O. 519-743-0608 Ext.2101

C. 226-791-5744

info@fabrikarchitects.ca

519-743-0608

www.fabrikarchitects.ca

fabrik architects inc.

135 George St. N, Suite 200 Cambridge, ON N1S 5C3

September 29, 2024

Weston Williamson + Partners 30 Duncan Street Toronto, Ontario M5V 2C3

Re. Areeba Saleem, Co-op Student May-August 2024

To Whom It May Concern,

This is to confirm that Areeba Saleem was employed as a co-op student at WW+P’s Toronto office from May – August 2024.

While at WW+P, Areeba had the opportunity to work on various transit-oriented development projects in Ontario. She has contributed diligently to a wide range of deliverables, including technical drawing and graphics for both public presentations and ongoing client meetings. She has always proactively taken ownership of and pride in her work. She applied strong research, technical, and creative skills to problem-solve with the team and to develop original visual materials that synthesize complex data to clearly communicate design concepts. She has been fast, responsive, capable, and an invaluable asset to our projects.

Areeba has been an exemplary intern at our office, and I can warmly recommend Areeba for future opportunities in architecture and design. Please do not hesitate to contact me if you require any additional information.

Yours Sincerely,

Table of Contents

SPLIT

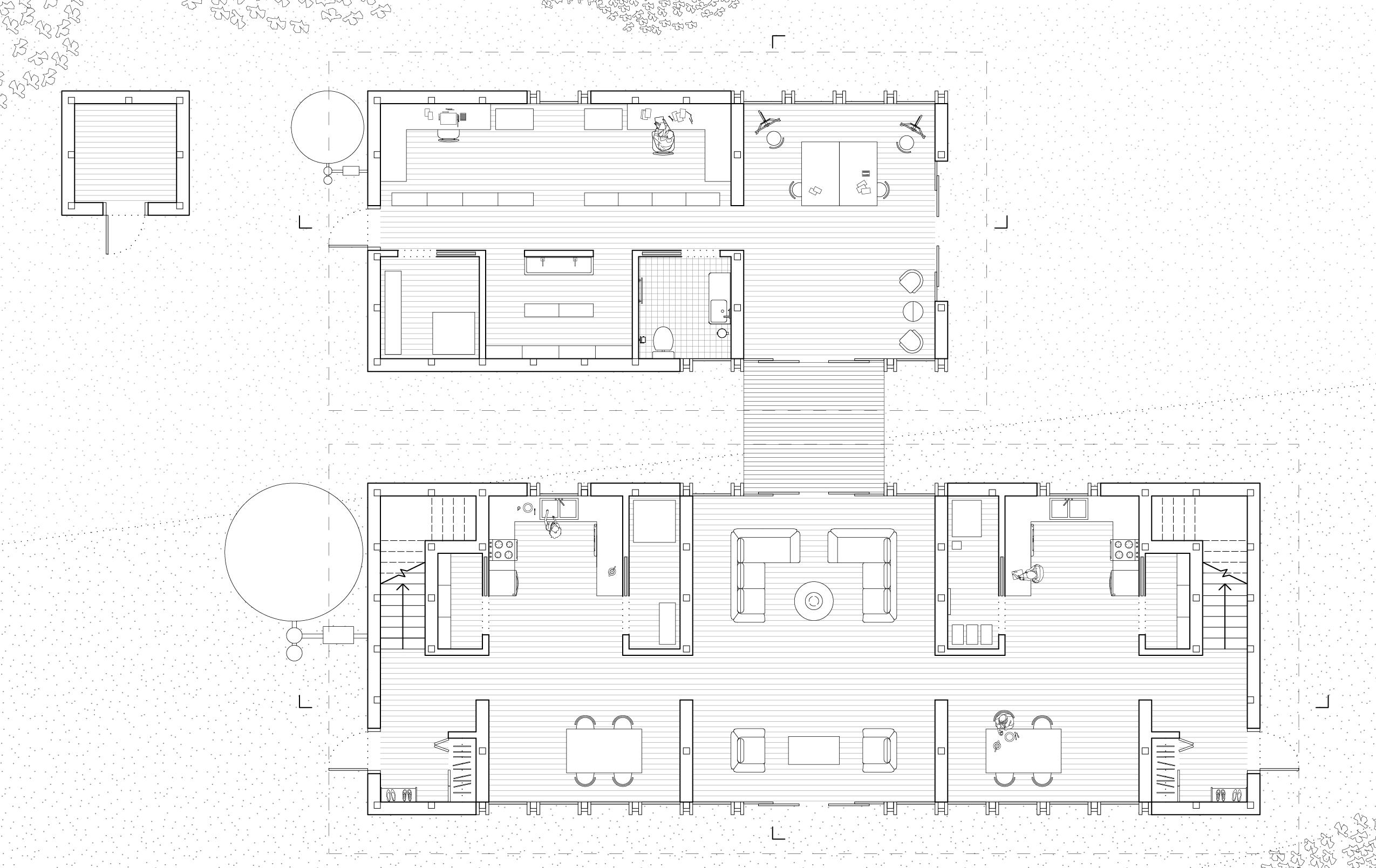
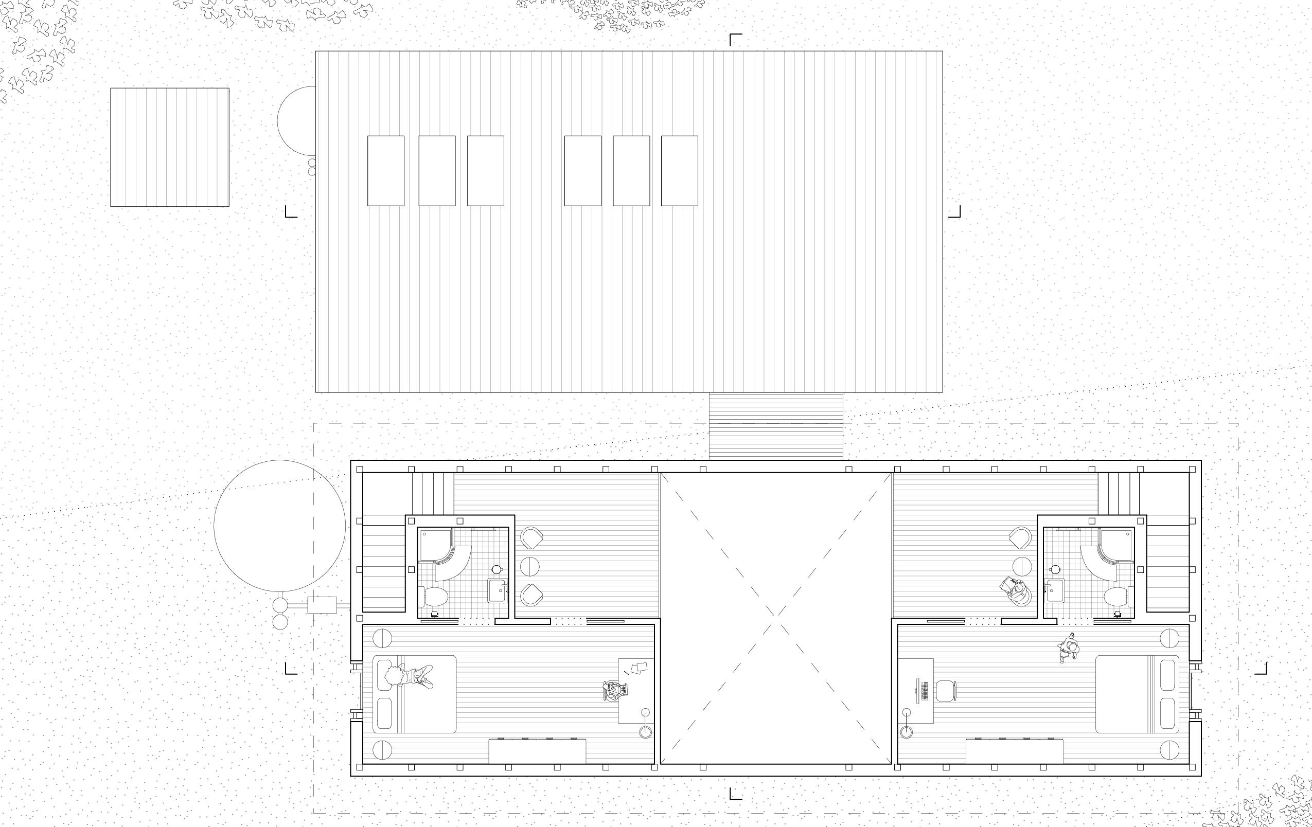
Situated along the French River, amidst rich granite formations, dense forests, and the rugged landscape of the Canadian Shield, Split reflects two essential elements of the site: water and rock. The project draws inspiration from the natural process of rock splitting caused by freeze-thaw cycles, translating this dynamic force into the architecture itself. The buildings are designed with various “splits” that create unique spatial experiences for users. The main lodge features a central void that not only provides direct access to the river but also serves as the primary entryway. The lab and learning center include a rocky staircase that leads visitors directly to the water, reinforcing the connection between the site and its natural surroundings. Finally, the bunkies incorporate a transitional space at their center, separating the sleeping and living areas while offering a carefully framed view through the architectural “split.”

Program Lodge, Lab, Learning Centre

Location Skills Noelville, Ontario Rhino 7, AI, PS, Enscape Course Design Studio (Summer 2023)

The French River was a major transportation route for Indigenous peoples, European explorers, and fur traders, serving as a critical link between the Great Lakes and the interior of Canada. It is also part of a unique watershed that supports diverse types of life including walleye, northern pike, and muskellunge. The surrounding ecosystem and forest contribute to its richness.

ToLakeNipissing

Built Environment

Buildings

Roads

Pathways

Docks

Fluid

Water Level Analysis

Flora

SilverGreen Bryum Moss

Eastern White Pine

Northern Red Oak

Balsam Poplar

Sugar Maple

Western Brackenfern

Landform

Granite

Soil

Moss

ToPineCove
ToWolseleyBay

Left; Initial concept sketch. The idea was to keep the building one story to ensure it blended seamlessly with the landscape. Initial design concepts experimented with an uneven thatched roof that extended down the sides of the structure, further camouflaging it within its natural surroundings.

Below; Field Notes of textures & observations found on site

Left; Main Lodge Section showing connections to the water and landscape. The building was kept one storey and constructed with natural, local materials in order to integrate the structure visually with the environment. Sunken seating further creates a deeper connection with the Canadian shield rocks and bring people closer to the water.

Left; Lab + learning center section. The learning center features a staircase that leads into the water carved out of natural existing rock found on site. Tactile, visual, and auditory connections are all important to experiencing the landscape.

Below; Section showing Campfire/Beach Area

Left; Model Photos constructed from cork, basswood, and dowels.
Right; Model View of Entry/ Dock Platform

COMMON GROUNDS

Situated on the outskirts of Kitchener, Common Grounds is an affordable housing project that centers around unintentional communities for unhoused people, through the integration of urban farming. The site, which includes a hydro corridor that cannot be built on, transforms this limitation by creating a central spine of activity, vibrancy, and joy that connects various housing typologies. These typologies are designed based on user groups, their spatial and social needs, and their journey toward long-term housing. The housing progression begins with a cabin community, offering short-term accommodations to help individuals transition off the streets. From there, residents can move into co-living transitional housing, where they can gain experience, build connections, and form bonds. Long-term housing options on the site include The Vertical Garden and Cluster Housing. Gardening and farming opportunities are woven into the fabric of the site, ranging from rooftop planters to large community gardens and even balcony systems designed for personal gardening.

Program Affordable Housing

Location

Skills Kitchener, Ontario Rhino 7, AI, PS, Enscape Partner(s) Ling Long Yang, Avory Lai

The question “What does urbanity mean at a city’s edge?” guided the group’s project this term. The site, located at the northern edge of Waterloo, lies between an affluent suburb, farmland, and RIM Park, the area’s largest sportsplex. The goal was to transform these conditions into a socially and environmentally sustainable urban environment.

4 groups created an urban block with a unique identity, informed by AHAA (Architects Against Housing Alienation) demands. ‘Land Back’ explored the connections between nature and urbanity through rewilding the site, responding to the nearby conservation area. Mutual Aid’ embedded recreation into their block. The ‘Intentional Communities’ group translated the long-standing traditions of farming in the area into urban agriculture, highlighting the importance of food security in affordable housing developments. The ‘Surplus Properties’ group recognized that the isolated nature of the site lacked a thriving cultural scene and developed a creative hub to enrich the area.

Though each block has a distinct identity, they are connected by green corridors and mutual aid services. The green spaces create ecological corridors, enhancing both human and nonhuman life.

Cluster Co-op Low-Rise
Raised Courtyard Cooperative Mid-rise
Vertical Farm Mid-Rise
Raised Terrace Rental Units Mid-Rise
Transitional Housing Mid-Rise
Single Loaded Corridor Cooperative Mid-rise
Stacked Townhouse
The Share Haus Coliving Low-Rise
Seniors Co-Living Mid-Rise
Terraced Collective Cooperative Housing Mid-rise
Modular Co-Living Mid-Rise
The Arbor House Transitional Housing Mid-Rise
Podium Tower High-Rise
Staggered Dwellings Subsidized Housing

The hydro corridor is a space in which public and private is blurred, questioning boundaries. Daycares can establish thier play area in the corridor, workshops or café’s can spill out, or community gardening/events can take place. Along with that, orchards, native planting, and bio-retention ponds enrich the space and mitigate any heat effects. The running track encourages an active lifecycle, and gardening on site allows for self-sufficiency and healthy produce to be generated.

Fruit Orchard

Permaculture Planting

Agricultural Community Garden

Flower Bed

Beehive (Pollination)

Wild Meadow Planting

Field Planting

On Site Composting

Street Trees

Bio-Retention/Rain Garden

Community Gardens

Right; Balcony section detail. Along with the interior walls of the Vertical Farm typology. The garden beds are also flexible in the sense that they can be taken over by any occupant based on their needs. The mesh wire system allows for support for the growing plants, and the depth of the balcony ensures light into the unit while also allowing for seating on one or both sides depending on the needs of the residents.

Detail Assembly:

400x400mm Steel Column Steel Bracing Wire Mesh & Polycarbonate

Left; Section showing Cluster Housing Typology. The central shielded courtyard includes a community garden, and all of the housing faces inwards.

Left; Section showing Vertical Farm Typology. The structural uniform grid allows for moveable walls and for people to appropriate thier spaces as they wish once they move in. A single apartment can be transformed, downsized or made bigger to accomodate a single mother, a student, or a growing family.

Left; Section showing Transition Housing typology. The central communal space which transitions into an outdoor balcony is kept open where residents can have full autonomy over thier space. Residents on one floor might negotiate a gym, while on another floor residents might want a living room condition.

The 6 ft x 6 in model was essential in telling the story of the site and explaining the nuances between each typology, as well as the vision for the green spaces we aimed to create. Various green spaces—such as green roofs, vines, gardens, and street trees—were distinguished by their materiality. A variety of materials, including dried flowers, different species of moss, twine, cork, sand, and paper, were used to introduce diversity within the model.

Modular Midrise

Transitional Housing Unit Plans

Appropriated Transitional Housing Unit
Townhouse Showing Centre Core With Flexible Parition Walls
Single Corridor Building Unit Plans
Central Fixed Core With Moveable Partition Walls Between Units
Cluster Housing With Legacy Hub
Vertical Garden Social Hallway View

Left; The elevation highlights the active Hydro Corridor spine and showcases several building typologies. Starting from the left, the cultural center serves as a key mutual aid hub for both the site and the surrounding community. To its right is the vertical farm, followed by transitional housing, and finally, a power plant that supplies energy to the entire site and nearby areas.

ATELIER RIGA

Situated in the vast unspoiled parkland of Latvia, Atelier Riga takes inspiration from its surroundings and historical context by using timber construction to construct a Viensetas type home intended to be used by two artists and their families for three months at a time. The building acknowledges, respects, and learns from the traditional Latvian farmstead typology and reimagines it in a contemporary context. Through sustainability initiatives such as passive heating, cooling, daylighting and ventilation, the building provides artists with the right climate for creativity while also reducing the environmental impact of the building. From the very beginning, the building has been designed for disassembly, so that if in the future the two families want separate homes, it can be easily achieved. On the other hand, careful consideration was taken of the surrounding ecology of the site, especially the bat population. To accommodate for this, the building includes bat boxes within the timber cladding to mindfully integrate the bat population within the building.

Program House + Workshop Location Skills Riga, Latvia Rhino 7, AI, PS, Enscape Partner(s) Angenie Nguyen + Cindy He

The site plan highlights the contrast between the landscape and water features within the site. The parti diagram illustrates three key structural elements emphasized in the project: the form, which follows the natural slope of the site, and the modularity, which allows for future flexibility. The house can be divided into two separate accommodations if needed, due to the strategic placement of infill and load-bearing walls.

Form Modularity Infill vs. Loadbearing
1. Private Bedrooms
2. Interior Balcony
1. Shared Living Room
2. Private Kitchen & Dining
3. Pantry
4. Utility Room
5. Shared Artist Studio
6. Semi-Private Workspace 7. Shed

House

18mm Rough Sawn Thermowood Cladding

21x45mm Timber Support Battens

Building Paper

100mm Wood Fibreboard Sheathing

45x195mm Timber Studs

150mm Cellulose Insulation

Vapour Permeable Breathable Membrane Birch Plywood

Casing Operable Window

Drainage Hole Flashing

Mounted Roof Overhang

38x286mm Wood Stud

390mm Cellulose Insulation

10mm MDF Board

Backfill Filter Cloth

200mm Pea Gravel

100mm Diameter

Weeping Tile

Timber Roofing

28x45mm Roof Lathing

100mm Wood Fibreboard Insulation

200mm Cellulose Insulation

22mm Plywood

13mm Timber Flooring

22mm Plywood Subflooring

200mm Floor Joists

390mm Cellulose Insulation

10mm MDF Board

Anchor
Stud

Vertically Laid Collector Pipes

Geothermal Heat Pump

Heat Source, Control Box

Radiant Floor Heating System Tubing Network

Left: Section (BB) showing the bridge that connects the fireplace/living room to the shared artist’s studio, creating a central hearth for the house. The section also shows how the roof follows the natural waves of the earth

Photovoltaic Panels Control Panels, Inverter

Battery Panels

Meter

Rain Gutters

First Flush Filter

Rainwater Storage Tank

Filteration System

Pump, Backflow

Controls

Low Flor Fixtures

Greywater Storage, Biofilter

Irrigation Pipes

Right; View of the Living Space that was designed in consideration with the grand landscape of Latvia. Large windows act as frames to see the lake through, and capture the picturesque.

Left; View of the artist’s studio with large skylight windows to provide lighting. Private spaces were designed to be temporal and only divided by shelving or furniture to add to the flexibility of the space.

1A.

Beams are connected to the stud using nuts & a threaded rod

Beams are connected to the stud using a plate bracket & screws

Corner Connection
Artificial roosts are installed before the external cladding is put in place
1. Timber Stud Foundation
2. Timber Plank Flooring & Stairs
3. Timber Structural Farming
4. Birch Plywood
5. Insulation
6. Battens
7. Vertical Thermowood Cladding
8. Timber Truss
Roof Lathing
Vertical Thermowood Roof Sliding
3A. Side Connection
7A. Bat Boxes

Turn static files into dynamic content formats.

Create a flipbook
Issuu converts static files into: digital portfolios, online yearbooks, online catalogs, digital photo albums and more. Sign up and create your flipbook.