Dzereviago_Dessinatrice BIM_ULCO_portfolio.pdf

Page 1


PORTFOLIO PORTFOLIO

Technical drawing & CAD (ArchiCAD, AutoCAD, SketchUp)

Kateryna DZEREVIAGO Kateryna DZEREVIAGO

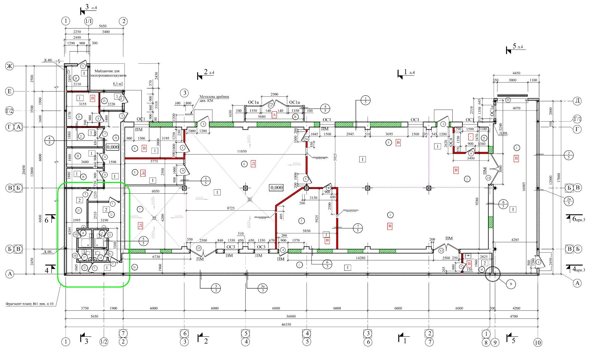
«Usine d'embouteillage d'eau minérale»

Section et détails techniques

AutoCAD

Rôle:

Élaborer tous les plans architecturaux du projet (plan d’implantation, dimensions, annotations techniques) dans le cadre d’un projet de reconversion d’un bâtiment existant

A été mis en œuvre dans 2019

Plan RDC avec dimensions – ArchiCAD

Réhabilitation d'usine

Section structurelle d'une base en béton avec lit pour les canaux de drainage

ArchiCAD

Jardin privé: aménagement du territoire

2022 - en cours

Plan réalisation pour le coulage de la dalle en béton ArchiCAD

Plan de terrassement

ArchiCAD

Conception du relief, élaboration des plans et coupes d'exécution pour la fabrication d'une base en béton ArchiCAD

Rôle:

Élaborer tous les plans architecturaux du projet (plan, dimensions, annotations techniques)

2022 - en cours

Visualisation d'une propriété privée avec jardin - ArchiCAD

Élaboration des plans et des sections - AutoCAD Modélisation 3D - SketchUP

Le parterre de fleurs de la brasserie à Saint-Omer

Dessins de parterres de fleurs et de structures de support en bois pour les plantes

SketchUP

Hiver/printemps

COMPÉTENCES CAO/BIM

✓ ArchiCAD 2D/3D – plans d'exécution complets, modélisation 3D

✓ AutoCAD – plans, coupes, détails constructifs

✓ SketchUp – modélisation 3D

✓ Revit – initiation (similarities ArchiCAD, autoformation en cours)

✓ QGIS – initiation (Master PAUL, ULCO)

CONTACT

Kateryna DZEREVIAGO Longuenesse (62)

Mobilité - Lille/Dunkerque/Calaise/toute la France

06 19 67 29 71 kdzerua@gmail.com

https://www.linkedin.com/in/katdzerua https://www.behance.net/LD-sketching

Merci pour votre attention

Turn static files into dynamic content formats.

Create a flipbook
Issuu converts static files into: digital portfolios, online yearbooks, online catalogs, digital photo albums and more. Sign up and create your flipbook.
Dzereviago_Dessinatrice BIM_ULCO_portfolio.pdf by Kateryna Dzereviago - Issuu