Faris_Aljifri_Portfolio_2025

Page 1


FARIS ABDULWAHAB H ALJIFRI

+966 554 774 440

Architect@FarisAljifri.com

ArchitectFarisAljifri.com

EDUCATION

BACHELOR OF ARCHITECTURE DESIGN

Umm Al-Qura University

Faculty of Engineering & Architecture

Mecca, Saudi Arabia

August 2021 – Present

Expected Graduation Date: February 2025

EXPERIENCES

TRAINEE ARCHITECT

Abdulwahab AL-Jifri Engineering Consultant Office

Mecca, Saudi Arabia

March 2022

– Present

SUMMER TRAINING PROGRAM

Architecture Design & Sustainability Program | BUE

British University in Egypt

July 2023

Jeddah, Saudi Arabia

AWARDS

FIRST PLACE

Architecture Design & Sustainability Program | BUE

July 2023

Winning Project demonstrating sustainable solutions.

HONORABLE MENTION

Architecture Design & Sustainability Program | BUE

July 2023

Recognized for excellence in Sustainable Aspects

ACTIVITIES

• Laser Cutting & 3D Printing modeling

• Events Management & Booth Designs

• Website Design & development

• Excels at Identifying Clients' Needs and delivering impactful Project Presentations

• Extensive background in Interior Design

SKILLS

• Autodesk AutoCAD

• Autodesk Revit

• Rhino

Twinmotion

• V-Ray

• Adobe Photoshop

• Adobe Illstrutor Lumion

• Adobe InDesign

• Microsoft Office Applications

LANGUAGES

ARABIC

ENGLISH

REFERENCES

AVAILABLE UPON REQUEST

1.STEEL CONSTRUCTED LIBRARY DESIGN

2.NET-ZERO & SOLAR-PANEL ENERGY DEVELOPMENT DESIGN

3.SUSTAINABLE COMMUNITY CENTER DESIGN

4.SUSTAINABLE URBAN RESIDENTIAL DESIGN

5.MOSQUE DESIGN

6.BUS STATION DESGIN

7.MIDDLE SCHOOL DESIGN

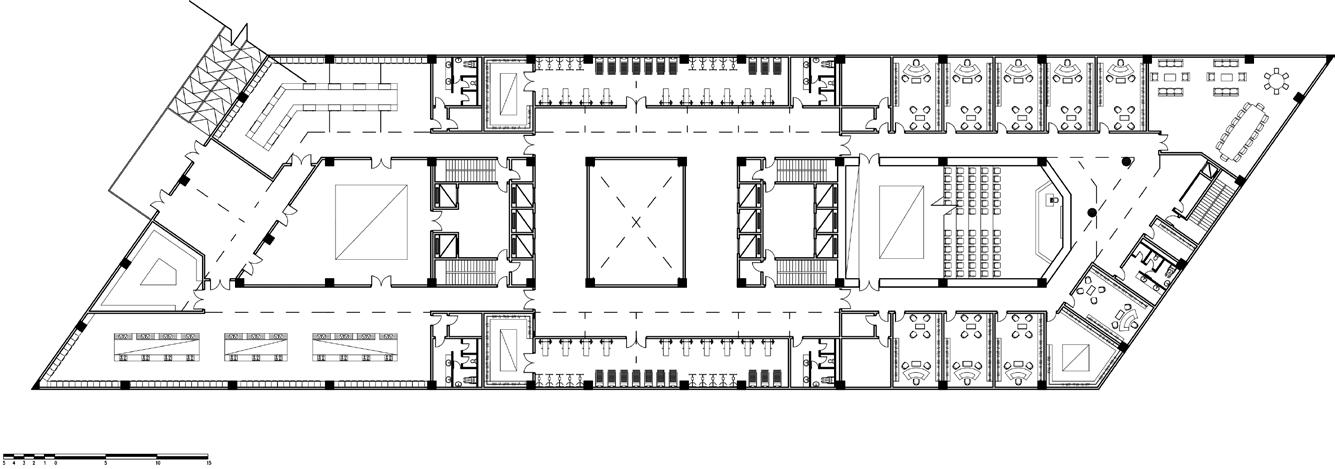
STEEL CONSTRUCTED

LIBRARY DESIGN

Tools : AutoCAD-Rhino-Photoshop-InDesign

Covering an area of 4,000-square-meter, this library design employs steel as the primary structural system, creating geometrically distributed floating masses.

The design fosters an appealing dynamic atmosphere, enhancing the visitor experience while prioritizing functionality and aesthetics.

Project Site

Location

Sun Path Wind Direction Project
Ground Floor Plan
South Elevation
Perspective View
First Floor Plan
First Floor Plan Key
East Elevation
Perspective View

1-Entrance/Seating Area

8-Loading-Dock

24-Collection (Music, Films, Media)

27-Terrace/Outdoor Activities

3-Esclators/Stairs 10-Prayer Room 25-Storage/Archive Room 28-Digital and Internet Area

4-Elevators 11-W/C 26-Class Room

Second Floor Plan
Section A-A
Perspective View
Third Floor Plan
East Elevation (Structure System)
Perspective View (Structure System)
North Elevation
West Elevation

NET-ZERO & SOLAR-PANEL ENERGY DEVELOPMENT DESIGN

Tools : AutoCAD-Rhino-Lumion-Photoshop-InDesign

Saudi Arabia’s First Net-Zero Project

This 500-sq-km project in Jeddah dedicates over half its area to solar energy production, aiming to advance solar panel use in Saudi Arabia.

Shaped by the infinity symbol to represent continuity, randomized facade to reflects the nature.

The project includes educational and entertainment zones to raise public awareness of solar energy, along with a hotel for researchers and laboratories for innovation and development.

Project Site
Sun Path & Wind Direction
Site Plan
Project Site & Holy Mosque
South Elevation
Ground Floor Plan
Isometric View
North Elevation
First Floor Plan
Perspective View
Section A-A
Hotel Basement Floor Plan
Hotel Typical Floor Plan

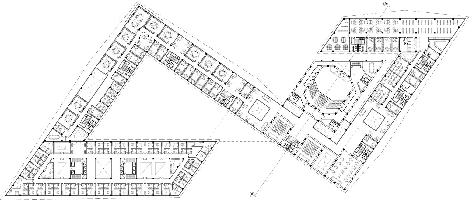
SUSTAINABLE COMMUNITY CENTER DESIGN

Tools : AutoCAD-Rhino-Lumion-Photoshop-InDesign

Covering 14,400-square-meter area in Makkah, Saudi Arabia, this project fosters an eco-friendly community by promoting sustainability through innovative design and renewable energy.

It serves 300-500 daily visitors and generates 32% of its energy consumption from renewable sources.

Project Site Sun Path & Wind Direction
North Elevation
Ground Floor Plan
Isometric View
South Elevation
Mezzanine Floor Plan
Isometric View
Section A-A
Exploded View

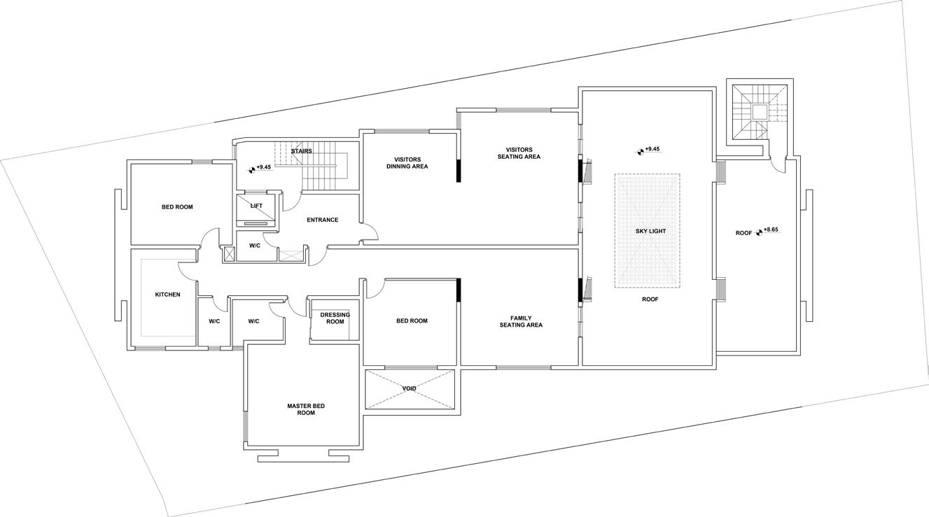
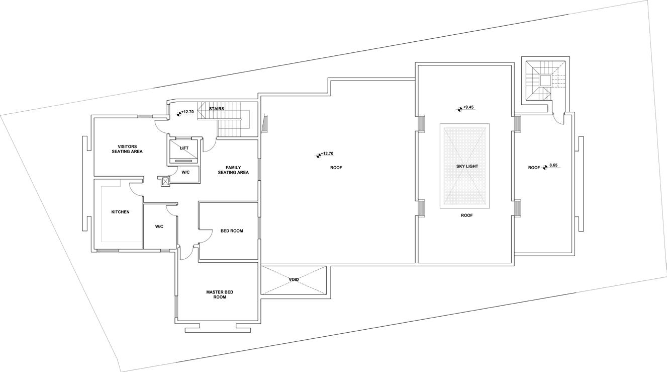
SUSTAINABLE URBAN RESIDENTIAL DESIGN

Tools : AutoCAD-Rhino-Photoshop-InDesign

Spanning a one-million-square-meter area in Makkah, Saudi Arabia, near the Holy Mosque, the project establishes a sustainable urban community, serving both visitors and local residents with essential facilities and services.

CONCLUSION:

-325 Residential Buildings accommodating 15,600 Residents.

-40 Hotels accommodating 60,000 Residents.

-5 Local Mosques accommodating 2,000 Prayers.

-Mian Mosque accommodating 7,500 Prayers.

-2 Elementary Schools.

-4 Kindergartens.

-Health Center.

-Community Center.

Site & Holy Mosque
Master Plan
Isometric View
Section A-A
Isometric View
Isometric View
North Elevation
Hotel Main Elevation
Residential Building Main Elevation
Hotel Typical Floor Plan
Residential Building Typical Floor Plan

MOSQUE

DESIGN

Tools : AutoCAD-Revit-Lumion-Photoshop-InDesign

This Mosque Project is located in Makkah, Saudi Arabia, covering an area of 780 square meters. It aims to provide a suitable environment for visitors through a simple design that harmonizes with the surrounding environment while avoiding unnecessary excessive costs.

Construction Process will commence once the necaessary permits are obtained.

Project Site & Holy Mosque

Sun Path & Wind Direction
Ground Floor Plan
Project Site
Section A-A
North Elevation
Basement Floor Plan
Mezzanine Floor Plan
West Elevation
South Elevation
First Floor Plan
Second Floor Plan

BUS STATION

DESGIN

Tools : Revit-Lumion-Photoshop-AutoCAD

Covering 30,000-square-meter area, this regional project in Makka, Saudi Arabia, facilitates transportation for Umrah pilgrims by connecting them to and from the Airport and The Holy Mosque.

Inspired by the region's iconic sand dunes, the design incorporates geometric triangular patterns to symbolize the essence of the desert.

West Elevation
Ground Floor Plan
Perspective View
East Elevation
First Floor Plan
Perspective View
Section A-A
Second Floor Plan
Perspective View

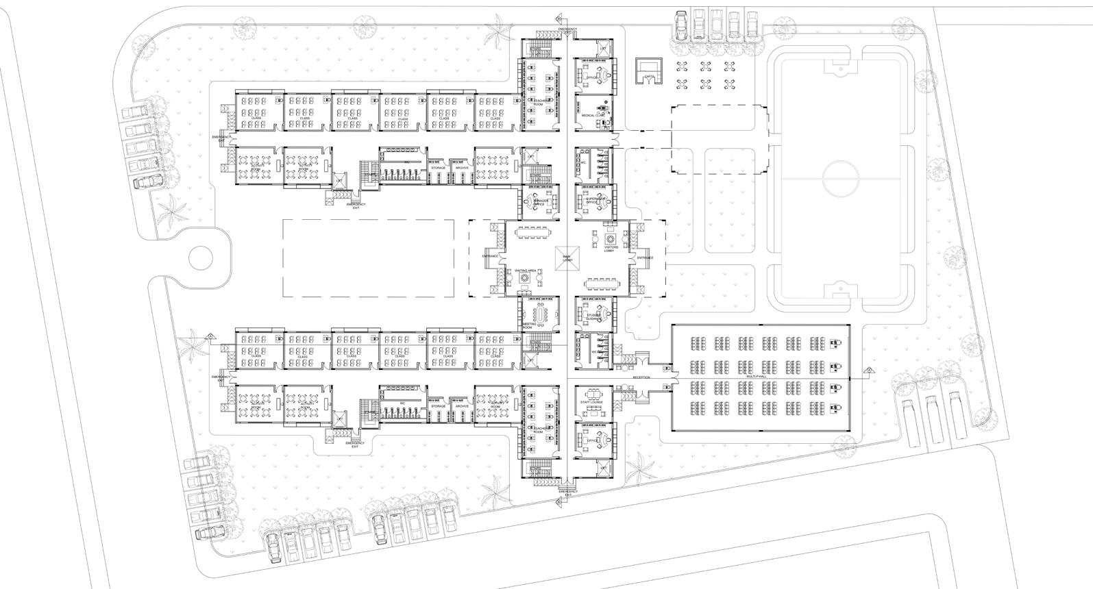
MIDDLE SCHOOL

DESIGN

Tools : AutoCAD-Revit-Lumion-Photoshop-InDesign

Covering 12,000-square-meter area, The Middle School Project, located in Taif, Makkah Region, Saudi Arabia, features a functional and dynamic design that fosters learning and creativity.

North Elevation
Ground Floor Plan
Perspective View
South Elevation
First Floor Plan
Perspective View
Section A-A
Second Floor Plan
Perspective View

Turn static files into dynamic content formats.

Create a flipbook
Issuu converts static files into: digital portfolios, online yearbooks, online catalogs, digital photo albums and more. Sign up and create your flipbook.
Faris_Aljifri_Portfolio_2025 by Arch. Faris Aljifri - Issuu