

![]()



Welcome to our new plan collection, BoyeHomePlans.com Plan Collection-Volume 21, featuring unique, innovative, curb appealing and marketable custom home designs. As we celebrate our 32nd year of producing stylish European, Modern and Traditional custom home designs, Boye Architecture continues the tradition of excellence creating spectacular luxury custom home plans you want to call home. Within this new collection, you will experience our unique passion and commitment of designing custom homes that t your live-work-play lifestyle of today and the future.
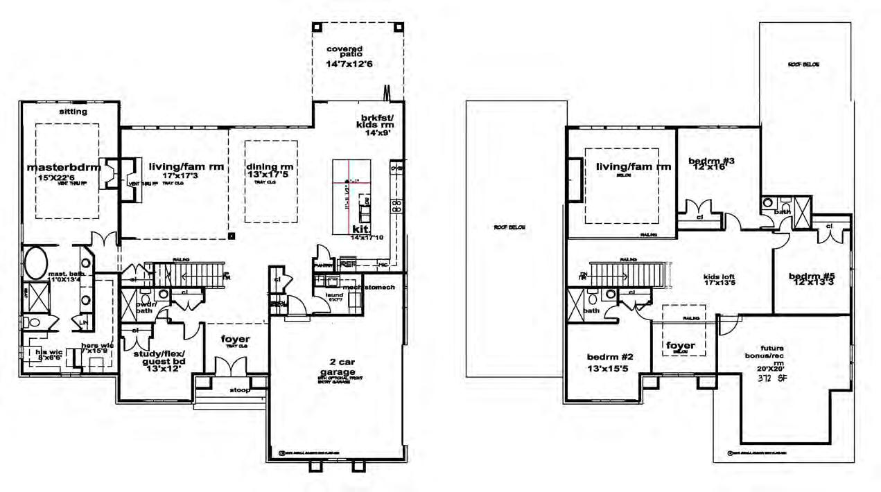
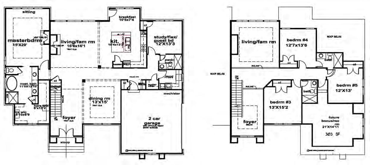
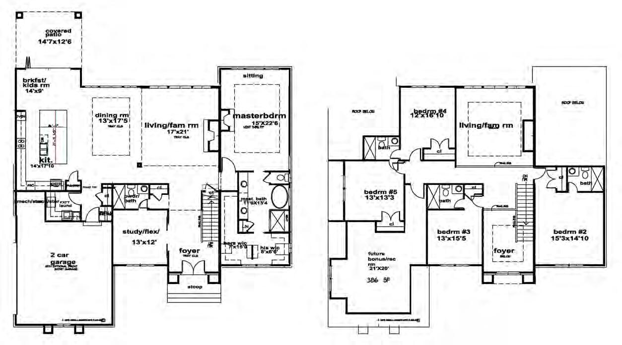
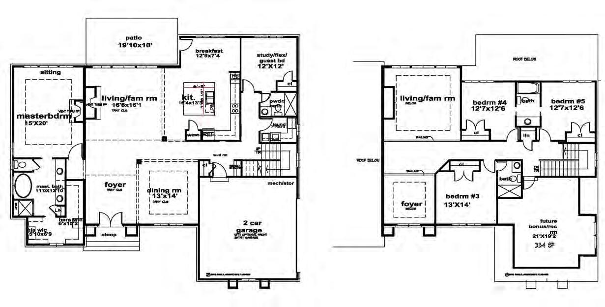
Under my creative leadership, our nationally renowned rm, Boye Architecture/www.boyehomeplans.com continues to set the standard in the residential real estate market place by providing best selling plans and inspiring custom elevations for home owners and custom home builders. This new plan collection showcases new market classic European and Modernluxury custom plans ranging from 2,700 SF to over 3,999 SF.
We are extremely excited to share this new collection exclusively with our old and new homeowners, realtors, brokers, home builders and developers alike. Tour the pages of this new plan collection and see our creative visions for your next new home. In addition, we also o er design services to modify the custom plan you love. For more information regarding our custom plans or design services, please visit us at www.boyehomeplans.com-the most loved and trusted place online where homeowners always nd and customize their new dream home plans for their unique lifestyle!
HOW MAY WE SERVE YOU?
Boye Akinola, AIA Licensed Architect/President/CEO Boye Architecture, Inc/www.boyehomeplans.com





















































