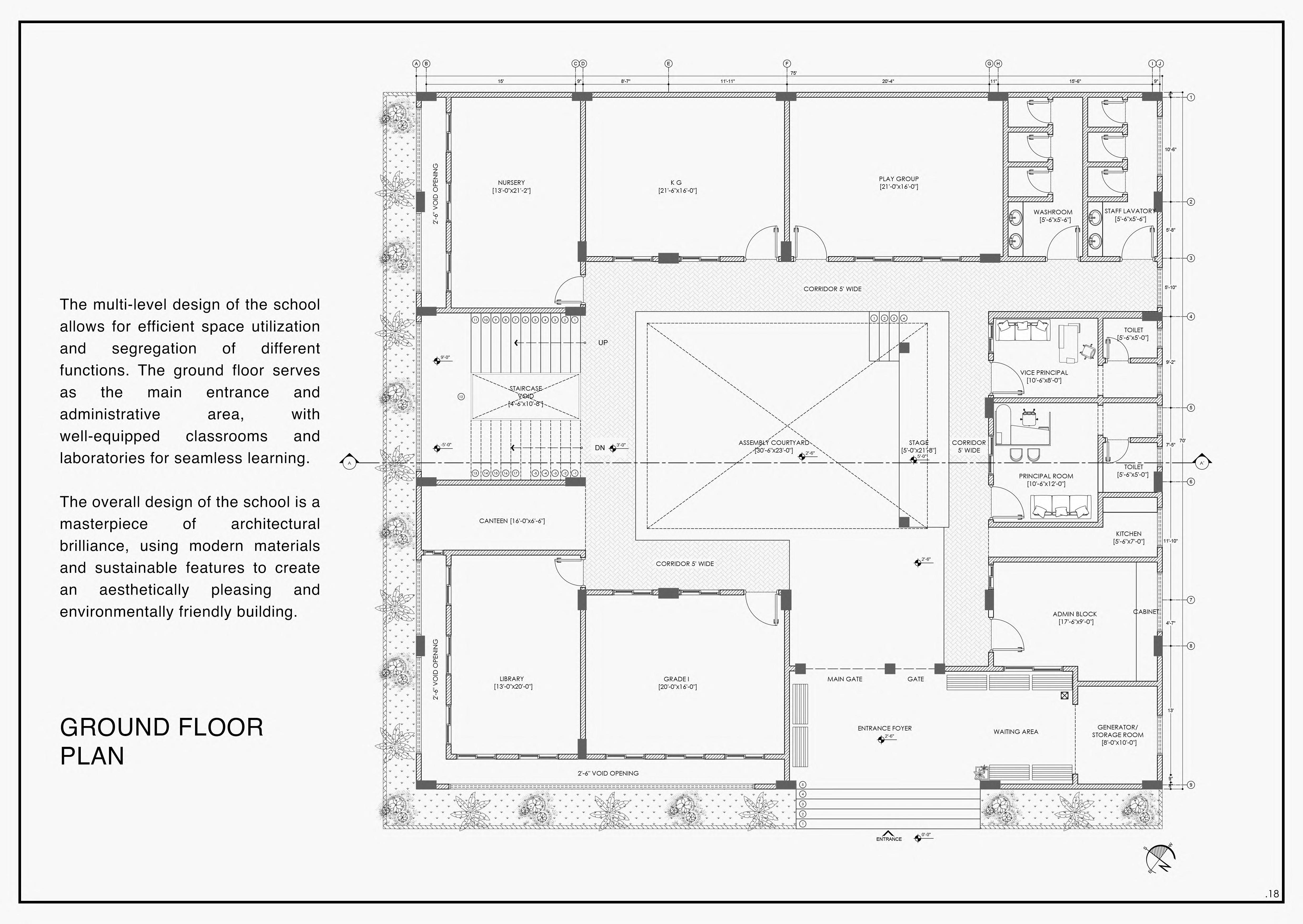
This Architecture Design Portfolio offers a comprehensive look at my expertise in the field, showcasing a range of projects that demonstrate my skills in conceptualization, space planning, and visualization. From initial concepts to detailed floor plans and realistic renderings, this portfolio provides a glimpse into my creative process and attention to detail.