ARCHIPELAG
projekty małych domów
parterowe i z poddaszem użytkowym

m + kolekcja mini plus



![]()
projekty małych domów
parterowe i z poddaszem użytkowym

m + kolekcja mini plus



Projekty małych domów - tanie w budowie i późniejszym utrzymaniu, projekty domów, które można wybudować tanio i szybko. Różnorodne propozycje zarówno dla małej, jak i dużej rodziny. Wszystkie projekty małych domów z naszej kolekcji maksymalnie wykorzystują powierzchnię użytkową, emanują przytulnością i zapewniają swoim mieszkańcom pełną wygodę codziennego funkcjonowania. Projekty małych domów z naszej oferty to świetny wybór dla wszystkich, którzy chcą mieszkać komfortowo i na swoim. Wśród naszej kolekcji domów małych i tanich w budowie projekty w swoim stylu znajdą zarówno miłośnicy tradycyjnej elegancji, jak i fani nowoczesnego designu. Warto pamiętać, że koszty realizacji i eksploatacji można optymalizować na każdym etapie budowy – od wyboru projektu, poprzez dobór odpowiednich materiałów, po instalacje, które będą dla nas oszczędzać. Projekty domów tanich w budowie to komfort własnej, niezależnej przestrzeni w ekonomicznym budżecie. Zapraszamy do lektury.

Zespół redakcyjny: Artur Wójciak, Hanna Wójciak, Elżbieta Piwowarczyk, Monika Zielińska, Marek Ostrożyński, Robert Wójciak
Adres redakcji: ul. A. Ostrowskiego 9, p. 318, 53-238 Wrocław, tel. (71) 798 38 00, redakcja@archipelag.pl www.archipelag.pl



Dom tani w budowie to o wiele więcej niż tylko budynek o niewielkim metrażu. Ważny jest projekt dobrze organizujący przestrzeń, który pozwoli maksymalnie wykorzystać powierzchnię użytkową i ograniczy komunikacyjną. Niemniej kluczowa jest bryła budynku, kształt dachu oraz technologia budowy. Podczas wyboru projektu nie możemy zapomnieć, że na codzienną wygodę użytkowania domu znaczący wpływ ma usytuowanie budynku na działce i odpowiedni rozkład pomieszczeń. Nasze projekty małych domów to gwarancja funkcjonalności w każdym m². Ze względu na niedużą powierzchnię nie ma tu miejsca na przypadkowość. Każdy projekt został starannie przemyślany i optymalnie rozplanowany. Zadbaliśmy również o odpowiednie ocieplenie i doświetlenie, co także przekłada się na oszczędności. Mały dom to dużo zalet – niższe koszty i krótszy czas budowy, mniejsze zużycie materiałów, tańsze wykończenie i mniejsze opłaty za ogrzewanie.
Zwarta bryła to jedna z głównych cech, po których rozpoznamy dom łatwy do ogrzania i tani w budowie. Im bardziej zwarta forma budynku, tym mniejsza powierzchnia ścian w stosunku do kubatury ogrzewanej (tzw. współczynnik kształtu A/V), a w efekcie niższe ryzyko ucieczki ciepła, dzięki czemu zaoszczędzimy na rachunkach za energię. Warto pamiętać, że prosta bryła bez wykuszy, lukarn i balkonów to także mniejsze niebezpieczeństwo powstawania nieszczelności i mostków termicznych, a także łatwiejszy i tańszy etap wykonawczy. Prosty przepis na oszczędności to także prosty, dwuspadowy dach. Taki rodzaj dachu pozwala na zastosowanie dowolnego pokrycia – zarówno droższej dachówki, jak i tańszej blachy. Takie klasyczne rozwiązanie jest najbardziej ekonomiczne, a przy tym bardzo praktyczne w użytkowaniu –niezależnie od pory roku na mało skomplikowanym dachu nie grozi zaleganie liści czy śniegu, łatwo rozplanować i zamontować doświetlenie poddasza oknami połaciowymi lub świetlikami. Prosta, energooszczędna bryła, układ i kąt nachylenia dwuspadowego dachu gwarantują ponadto dobrą orientację paneli fotowoltaicznych.


Zwarta forma oraz prosty układ dachu to jednak nie wszystko. W przypadku małych domów bardzo ważny jest dobrze zaprojektowany układ funkcjonalny, który pozwoli maksymalnie wykorzystać całą dostępną przestrzeń. W naszych projektach starannie przemyśleliśmy każdy m² i zadbaliśmy o optymalną konstrukcję, która umożliwia swobodną organizację ścianek działowych, a tym samym pozwala łatwo dopasować wnętrze do indywidualnych potrzeb i stylu życia. Lekkie ściany działowe można dowolnie modyfikować – aranżować i rearanżować przestrzeń tak, aby zapewniała komfort wszystkim domownikom. Szukając oszczędności warto pamiętać, że odpowiednie rozmieszczenie pomieszczeń oraz okien w domu pozwoli zmniejszyć rachunki za ogrzewanie i oświetlenie. Budynek powinien zostać ulokowany na posesji w zgodzie z kierunkami świata i różnicami nasłonecznienia w ciągu dnia, aby maksymalnie wykorzystać naturalną energię słońca. Pomieszczenia, w których spędzamy najwięcej czasu – salon, pokoje do pracy i nauki, pokoje dla dzieci najkorzystniej jest ulokować w miejscach, które mają stały dostęp do światła słonecznego – po stronie południowej i zachodniej. Z kolei mniej doświetlona część północna to idealne miejsce dla garażu, pomieszczeń gospodarczych, kotłowni lub składzików.


Nowoczesne systemy właściwie dobranych materiałów budowlanych gwarantują najważniejsze cechy budynku, takie jak trwałość, dobrą izolacyjność cieplną i akustyczną. Ocieplenie nie musi być bardzo grube, kluczowym jest by było optymalne pod względem współczynników i zastosowane dla wszystkich przegród w budynku od fundamentów, poprzez okna aż po dach. Dobre parametry uzyskują domy, w których grubość izolacji wynosi odpowiednio: podłoga na gruncie – 15 cm, ściany zewnętrzne – 20 cm i dach – 30 cm. Niezwykle istotna jak sama izolacja jest również staranność jej wykonania. Ograniczając wydatki warto unikać rozwiązań, które nie wpływają na koszty eksploatacji, a jedynie podnoszą prestiż budynku. W pierwszej kolejności zamiast drogich okładzin drewnianych lub kamiennych na elewacji, możemy wybrać prosty zabieg jakim jest zmiana koloru tynku fragmentu fasady. To zdecydowanie tańsze rozwiązanie pozwalające uzyskać atrakcyjny efekt wizualny.




Od 1 stycznnia 2021 obwiązują nowe przepisy dotyczące ochrony cieplnej budynków określone w
EP - nie większe niż 70 kWh/(m²rok), wskażnik określa roczne obliczeniowe zapotrzebowanie budynku płej wody użytkowej oraz oświetlenia.
Uc - współczynnik przenikania ciepła przez przegrody Uc(max)[W/(m²K)], im niższa jego wartość, tym okien i drzwi.

warunkach technicznych 2021. Podstawowe parametry standardu WT 2021: budynku na nieodnawialną energię pierwotną do ogrzewania, wentylacji, chłodzenia, przygotowania cie-
tym mniejsze straty. Współczynnik U charakteryzuje izolacyjność cieplną przegród budowlanych,





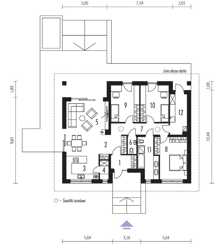
Parter
1. Wiatrołap 2,14 m²
2. Hol 5,64 m²
3. Garderoba 1,81 m²
4. Kuchnia 6,15 m²
5. Spiżarnia 1,37 m²
6. Pokój dzienny + jadlnia 22,17m²
7. Korytarz 3,85 m²
8. Sypialnia 11,79 m²
9. Sypialnia 9,17 m²
10. Sypialnia 9,01 m²
11. Łazienka 4,42 m²
12. Toaleta 1,49 m²
13. Kotłownia 5,78 m²






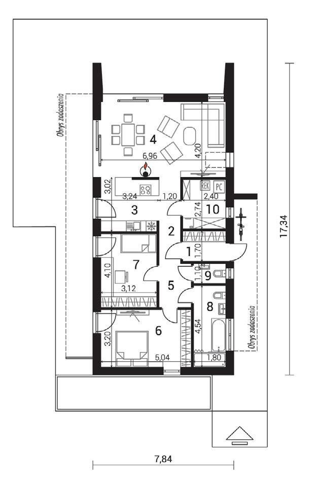
Parter
1. Wiatrołap 2,81 m²
2. Hol 8,72 m²
3. Kuchnia 6,04 m²
4. Spiżarnia 1,35 m²
5. Salon + jadalnia 23,33 m²
6. Toaleta 1,89 m²
7. Łazienka 5,02 m²
8. Sypialnia 11,45 m²
9. Sypialnia 8,40 m²
10. Sypialnia 9,94 m²
11. Kotłownia 6,11 m²
12. Garaż 19,76 m²
















Parter
1. Wiatrołap 4,75 m²
2. Hol 2,37 m²
3. Kuchnia 8,69 m²
4. Pokój dzienny + jadalnia 22,30 m²
5. Korytarz 5,72 m²
6. Sypialnia 12,68 m²
7. Sypialnia 10,48 m²
8. Sypialnia 10,48 m²
9. Łazienka 7,20 m²
10. Toaleta 1,85 m²
11. Kotłownia 4,91 m²






Parter
1. Wiatrołap 4,75 m²
2. Hol 2,37 m²
3. Kuchnia 8,69 m²
4. Pokój dzienny + jadalnia 22,30 m²
5. Korytarz 5,72 m²
6. Sypialnia 12,68 m²
7. Sypialnia 10,48 m²
8. Sypialnia 10,48 m²
9. Łazienka 7,20 m²
10. Toaleta 1,85 m²
11. Kotłownia 4,79 m²







Parter
1. Wiatrołap 2,14 m²
2. Hol 5,64 m²
3. Garderoba 1,81 m²
4. Kuchnia 6,14 m²
5. Spiżarnia 1,37 m²
6. Pokój dzienny + jadalnia 22,17 m²
7. Korytarz 3,85 m²
8. Sypialnia 11,79 m²
9. Sypialnia 9,17 m²
10. Sypialnia 9,01 m²
11. Łazienka 4,42 m²
12. Toaleta 1,49 m²
13. Pom. techniczne 6,03 m²












Parter
1. Wiatrołap 3,46 m²
2. Hol 2,94 m²
3. Kuchnia 7,25 m²
4. Spiżarnia 2,04 m²
5. Pokój dzienny + jadalnia 25,20 m²
6. Korytarz 6,38 m²
7. Toaleta 1,51 m²
8. Sypialnia 9,43 m²
9. Garderoba 5,61 m²
10. Sypialnia 9,74 m²
11. Sypialnia 9,73 m²
12. Łazienka 7,08 m²
13. Kotłownia 3,52 m²






Parter
1. Wiatrołap 3,46 m²
2. Hol 2,94 m²
3. Kuchnia 7,25 m²
4. Spiżarnia 2,04 m²
5. Pokój dzienny + jadalnia 25,20 m²
6. Korytarz 6,38 m²
7. Toaleta 1,51 m²
8. Sypialnia 9,43 m²
9. Garderoba 5,61 m²
10. Sypialnia 9,74 m²
11. Sypialnia 9,73 m²
12. Łazienka 7,08 m²
13. Kotłownia 3,52 m²






Parter
1. Wiatrołap 3,44 m²
2. Hol 2,86 m²
3. Kuchnia 8,32 m²
4. Spiżarnia 1,46 m²
5. Pokój dzienny + jadalnia 22,60 m²
6. Korytarz 6,70 m²
7. Toaleta 1,55 m²
8. Sypialnia 9,42 m²
9. Garderoba 5,71 m²
10. Sypialnia 9,86 m²
11. Sypialnia 9,73 m²
12. Łazienka 8,86 m²
13. Pom. techniczne 3,69 m²








Parter
1. Wiatrołap 3,42 m²
2. Hol 2,86 m²
3. Kuchnia 8,32 m²
4. Spiżarnia 1,46 m²
5. Pokój dzienny + jadalnia 22,60 m²
6. Korytarz 7,03 m²
7. Toaleta 1,55 m²
8. Sypialnia 10,55 m²
9. Garderoba 4,48 m²
10. Sypialnia 9,74 m²
11. Sypialnia 12,77 m²
12. Łazienka 8,86 m²
13. Pom. techniczne 4,24 m²






Parter
1. Wiatrołap 4,34 m²
2. Hol 3,45 m²
3. Kuchnia 9,11 m²
4. Spiżarnia 1,67 m²
5. Pokój dzienny + jadalnia 24,76 m²
6. Toaleta 1,78 m²
7. Korytarz 6,41 m²
8. Sypialnia 17,19 m²
9. Sypialnia 11,22 m²
10. Sypialnia 11,22 m²
11. Łazienka 8,16 m²
12. Kotłownia 6,87 m²






Parter
1. Wiatrołap 4,34 m²
2. Hol 3,42 m²
3. Kuchnia 9,11 m²
4. Spiżarnia 1,67 m²
5. Pokój dzienny + jadalnia 24,74 m²
6. Toaleta 1,78 m²
7. Korytarz 6,49 m²
8. Sypialnia 17,19 m²
9. Sypialnia 11,22 m²
10. Sypialnia 11,22 m²
11. Łazienka 8,16 m²
12. Kotłownia 6,87 m²









Okna GREENVIEW powstały z pasji tworzenia i zmieniania świata. Przedstawiamy nową generację okien dachowych, które łączą najwyższe standardy funkcjonalne i estetyczne z wysoką energooszczędnością i wyjątkową akustyką.

Okna dachowe GREENVIEW dostępne są w trzech kolorach oblachowania: antracyt RAL 7016, czarny RAL 9005 oraz szarobrązowy RAL 7022.


1. Wiatrołap 4,39 m²
2. Hol 3,42 m²
3. Kuchnia 9,08 m²
4. Spiżarnia 1,69 m²
5. Pokój dzienny + jadalnia 24,69 m²
6. Toaleta 1,78 m²
7. Korytarz 6,31 m²
8. Sypialnia 17,22 m²
9. Sypialnia 11,22 m²
10. Sypialnia 11,22 m²
11. Łazienka 8,43 m²
12. Kotłownia 6,87 m²






1. Wiatrołap 4,25 m²
2. Hol 4,21 m²
3. Kuchnia 10,24 m²
4. Spiżarnia 2,04 m²
5. Salon + jadalnia 28,30 m²
6. Toaleta 1,97 m²
7. Korytarz 8,22 m²
8. Sypialnia 15,62 m²
9. Sypialnia 13,10 m²
10. Sypialnia 13,06 m²
11. Łazienka 8,87 m²
12. Kotłownia 8,47 m²








Urządzenia i tworzą jednej platformy. energetyczne: zasobniki platformę, viessmann.pl


Urządzenia marki Viessmann są idealnie do siebie dopasowane kompletny system grzewczy/chłodniczy sterowany za pomocą jednej platformy. Viessmann One Base integruje cyfrowo systemy energetyczne: pompy ciepła, kotły grzewcze, systemy wentylacyjne, zasobniki energii elektrycznej oraz instalacje fotowoltaiczne w jedną platformę, tworząc rozwiązania inteligentnego domu.

Parter
1. Wiatrołap 4,25 m²
2. Hol 4,21 m²
3. Kuchnia 10,24 m²
4. Spiżarnia 2,04 m²
5. Salon + jadalnia 28,58 m²
6. Toaleta 1,97 m²
7. Korytarz 8,22 m²
8. Sypialnia 15,62 m²
9. Sypialnia 13,10 m²
10. Sypialnia 13,06 m²
11. Łazienka 8,87 m²
12. Pom. techniczne 10,55 m²






Parter
1. Wiatrołap 4,00 m²
2. Hol 5,25 m²
3. Kuchnia 10,01 m²
4. Spiżarnia 1,00 m²
5. Pokój dzienny + jadalnia 34,08 m²
6. Łazienka 3,99 m²
7. Korytarz 10,26 m²
8. Sypialnia 17,86 m²
9. Sypialnia 12,19 m²
10. Sypialnia 12,19 m²
11. Łazienka 9,10 m²
12. Kotłownia 6,84 m²
13. Pom. gospodarcze 4,97 m²
14. Garaż 24,14 m²






Parter
1. Wiatrołap 4,00 m²
2. Garderoba 2,69 m²
3. Hol 6,35 m²
4. Kuchnia 10,24 m²
5. Spiżarnia 2,40 m²
6. Jadalnia 13,76 m²
7. Pokój dzienny 22,45 m²
8. Łazienka 3,71 m²
9. Korytarz 7,71 m²
10. Sypialnia 15,29 m²
11. Garderoba 4,42 m²
12. Sypialnia 11,57 m²
13. Sypialnia 11,57 m²
14. Łazienka 7,37 m²
15. Kotłownia 5,39 m²
16. Garaż 25,34 m²








Parter
1. Wiatrołap 4,00 m²
2. Garderoba 2,69 m²
3. Hol 6,35 m²
4. Kuchnia 10,24 m²
5. Spiżarnia 2,40 m²
6. Jadalnia 13,76 m²
7. Pokój dzienny 22,68 m²
8. Łazienka 3,71 m²
9. Korytarz 7,57 m²
10. Sypialnia 15,29 m²
11. Garderoba 4,42 m²
12. Sypialnia 11,57 m²
13. Sypialnia 11,57 m²
14. Łazienka 7,37 m²
15. Kotłownia 5,69 m²
16. Garaż 44,47 m²







Parter
1. Wiatrołap + garderoba 7,42 m²
2. Hol 6,51 m²
3. Kuchnia 9,07 m²
4. Spiżarnia 2,39 m²
5. Pokój dzienny + jadalnia 34,11 m²
6. Gabinet 8,68 m²
7. Łazienka 3,48 m²
8. Korytarz + garderoba 14,71 m²
9. Sypialnia 13,99 m²
10. Garderoba 7,22 m²
11. Łazienka 7,88 m²
12. Sypialnia 9,83 m²
13. Sypialnia 9,83 m²
14. Pom. techniczne 6,41 m²
15. Garaż 38,26 m²






Parter
1. Wiatrołap 2,81 m²
2. Hol 8,72 m²
3. Kuchnia 6,04 m²
4. Spiżarnia 1,35 m²
5. Pokój dzienny + jadalnia 23,33 m²
6. Toaleta 1,89 m²
7. Łazienka 5,02 m²
8. Sypialnia 11,45 m²
9. Sypialnia 8,40 m²
10. Sypialnia 9,94 m²
11. Kotłownia 6,11 m²
12. Garaż 19,76 m²







Tinos V to pionowy grzejnik dekoracyjny, w którym ozdobny panel czołowy wraz z osłonami bocznymi wykonany jest z jednego elementu. Dzięki niewielkiej odległości pomiędzy grzejnikiem a ścianą, całość doskonale komponuje się z aranżacją każdego pomieszczenia.
Standardowo grzejniki Purmo dostarczane są w kolorze białym RAL 9016.
Na zamówienie dostępne są również
inne kolory z palety RAL, jak również kolory specjalne i strukturalne. Okres gwarancji wynosi 10 lat.”
www.purmo.pl




Parter
1. Wiatrołap 3,46 m²
2. Hol + schody 13,70 m²
3. Kuchnia 7,83 m²
4. Pokój dzienny 18,75 m²
5. Toaleta 1,47 m²
6. Kotłownia 5,41 m²
Poddasze
1. Korytarz 6,62 m²
2. Sypialnia 5,63 m²
3. Sypialnia 5,75 m²
4. Sypialnia 8,32 m²
5. Łazienka 4,01 m²







Parter
1. Wiatrołap 2,62 m²
2. Hol + schody 11,41 m²
3. Kuchnia 7,28 m²
4. Pokój dzienny 13,73 m²
5. Gabinet 6,88 m²
6. Łazienka 3,20 m²
7. Kotłownia 5,01 m²
Poddasze
1. Korytarz 3,52 m²
2. Sypialnia 9,41 m²
3. Garderoba 2,19 m²
4. Sypialnia 6,20 m²
5. Sypialnia 5,87 m²
6. Łazienka 4,82 m²










Parter
1. Wiatrołap 2,67 m²
2. Hol + schody 11,62 m²
3. Kuchnia 8,63 m²
4. Pokój dzienny 12,50 m²
5. Gabinet 7,23 m²
6. Łazienka 2,67 m²
7. Kotłownia 6,11 m²
Poddasze
1. Korytarz 2,65 m²
2. Sypialnia 9,70 m²
3. Garderoba 3,88 m²
4. Sypialnia 11,52 m²
5. Łazienka 5,10 m²







Parter
1. Wiatrołap 2,62 m²
2. Hol + schody 7,61 m²
3. Kuchnia 6,47 m²
4. Pokój dzienny 16,84 m²
5. Gabinet 9,33 m²
6. Łazienka 2,19 m²
7. Kotłownia 6,17 m²
Poddasze
1. Korytarz 3,94 m²
2. Sypialnia 11,68 m²
3. Sypialnia 7,61 m²
4. Sypialnia 7,45 m²
5. Łazienka 3,79 m²







Parter
1. Wiatrołap 3,62 m²
2. Hol + schody 7,79 m²
3. Kuchnia 8,39 m²
4. Pokój dzienny + jadalnia 25,44 m²
5. Toaleta 1,69 m²
6. Kotłownia 4,26 m²
Poddasze
1. Korytarz 4,09 m²
2. Sypialnia 11,13 m²
3. Sypialnia 6,77 m²
4. Sypialnia 8,44 m²
5. Łazienka 5,90 m²







Parter
1. Wiatrołap 2,89 m²
2. Hol + schody 8,39 m²
3. Kuchnia + jadalnia 10,97 m²
4. Schowek/spiżarnia 3,95 m²
5. Pokój dzienny 17,47 m²
6. Toaleta 1,84 m²
7. Kotłownia 5,19 m²
Poddasze
1. Korytarz 5,51 m²
2. Sypialnia 15,21 m²
3. Sypialnia 9,06 m²
4. Sypialnia 7,97 m²
5. Łazienka 3,81 m²
6. Pralnia 2,40 m²







Parter
1. Wiatrołap 2,89 m²
2. Hol + schody 10,20 m²
3. Kuchnia + jadalnia 10,87 m²
4. Schowek/spiżarnia 2,35 m²
5. Pokój dzienny 17,17 m²
6. Toaleta 1,84 m²
7. Kotłownia 5,19 m²
Poddasze
1. Korytarz 5,64 m²
2. Sypialnia 15,26 m²
3. Sypialnia 9,09 m²
4. Sypialnia 8,00 m²
5. Łazienka 3,83 m²
6. Łazienka 2,43 m²







Parter
1. Wiatrołap 3,61 m²
2. Hol 8,31 m²
3. Kuchnia + jadalnia 15,22 m²
4. Pokój dzienny 17,88 m²
5. Gabinet (sypialnia) 13,69 m²
6. Sypialnia 13,54 m²
7. Garderoba 3,52 m²
8. Łazienka 5,81 m²
9. Pom. gospodarcze 6,22 m²
Poddasze
1. Korytarz 4,06 m²
2. Sypialnia 10,06 m²
3. Sypialnia 7,44 m²
4. Łazienka 4,21 m²
5. Pom. gospodarcze 6,88 m²










powierzchnia użytkowa: 109,92 m2
EP = 20,71 kWh/m² x rok


ogrzewanie podłogowe ogniwa forowoltaiczne


powietrzna pompa ciepła wentylacja mechaniczna
Parter
1. Wiatrołap 4,81 m²
2. Hol 5,89 m²
3. Kuchnia 9,78 m²
4. Spiżarnia 1,67 m²
5. Pokój dzienny + jadalnia 30,93 m²
6. Korytarz 7,57 m²
7. Sypialnia 13,80 m²
8. Garderoba 5,22 m²
9. Sypialnia 10,14 m²
10. Sypialnia 10,14 m²
11. Łazienka 6,18 m²
12. Łazienka 3,79 m²
13. Pom. techniczne + pralnia 6,38 m²






powierzchnia użytkowa: 84,40 m2
EP = 21,46 kWh/m² x rok

ogrzewanie podłogowe

ogniwa forowoltaiczne

powietrzna pompa ciepła

wentylacja mechaniczna
Parter
1. Wiatrołap 4,19 m²
2. Hol 3,07 m²
3. Kuchnia 8,67 m²
4. Spiżarnia 0,94 m²
5. Pokój dzienny + jadalnia 28,26 m²
6. Korytarz 5,75 m²
7. Sypialnia 13,70 m²
8. Garderoba 3,74 m²
9. Sypialnia 9,12 m²
10. Łazienka 5,59 m²
11. Toaleta 1,37 m²
12. Pom. techniczne + pralnia 4,87 m²






powierzchnia użytkowa: 123,95 m2
EP = 21,48 kWh/m² x rok




ogrzewanie podłogowe ogniwa forowoltaiczne powietrzna pompa ciepła wentylacja mechaniczna

Parter
1. Wiatrołap 4,79 m²
2. Hol 3,87 m²
3. Kuchnia 9,11 m²
4. Spiżarnia 1,40 m²
5. Pokój dzienny + jadalnia 31,69 m²
6. Korytarz 11,49 m²
7. Sypialnia 14,96 m²
8. Łazienka 5,59 m²
9. Garderoba 4,02 m²
10. Sypialnia 10,05 m²
11. Sypialnia 10,05 m²
12. Sypialnia 10,05 m²
13. Łazienka 4,95 m²
14. Toaleta 1,93 m²
15. Pom. techniczne 7,95 m²






powierzchnia użytkowa: 110,10 m2
EP = 22,00 kWh/m² x rok




ogrzewanie podłogowe ogniwa forowoltaiczne powietrzna pompa ciepła wentylacja mechaniczna

Parter
1. Wiatrołap 4,17 m²
2. Hol 5,95 m²
3. Kuchnia 10,14 m²
4. Pokój dzienny + jadalnia 30,44 m²
5. Korytarz 5,94 m²
6. Sypialnia 14,47 m²
7. Garderoba 5,17 m²
8. Sypialnia 10,14 m²
9. Sypialnia 10,14 m²
10. Łazienka 8,04 m²
11. Łazienka 3,76 m²
12. Pralnia 1,74 m²
13. Pom. techniczne 7,07 m²






powierzchnia użytkowa: 90,84 m2
EP = 22,95 kWh/m² x rok




ogrzewanie podłogowe ogniwa forowoltaiczne powietrzna pompa ciepła wentylacja mechaniczna

Parter
1. Wiatrołap 3,98 m²
2. Hol 5,69 m²
3. Kuchnia 9,43 m²
4. Pokój dzienny + jadalnia 29,00 m²
5. Korytarz 4,29 m²
6. Sypialnia 15,91 m²
7. Sypialnia 12,62 m²
8. Łazienka 8,01 m²
9.Toaleta 1,91 m²
10. Pom. techniczne 6,45 m²






powierzchnia użytkowa: 78,13 m2
EP < 70,00 kWh/m² x rok

ogrzewanie podłogowe



ogniwa forowoltaiczne powietrzna pompa ciepła wentylacja mechaniczna
Parter
1. Wiatrołap 2,05 m²
2. Hol 2,51 m²
3. Kuchnia 7,30 m²
4. Pokój dzienny 23,06 m²
5. Gabinet 6,02 m²
6. Toaleta 1,40 m²
7. Schowek 5,22 m²
8. Pom. techniczne 4,77 m²

Poddasze
1. Korytarz 2,41 m²
2. Sypialnia 8,46 m²
3. Sypialnia 10,63 m²
4. Sypialnia 7,93 m²
5. Łazienka 6,36 m²





powierzchnia użytkowa: 125,88 m2




ogrzewanie podłogowe ogniwa forowoltaiczne powietrzna pompa ciepła wentylacja mechaniczna
Parter
1. Wiatrołap 5,18 m²
2. Hol + schody 9,95 m²
3. Kuchnia 9,97 m²
4. Pokój dzienny + jadalnia 30,02 m²
5. Łazienka 3,90 m²
6. Gabinet 8,78 m²
7. Pom. techniczne 7,36 m²
8. Garaż 43,55 m²
Poddasze
1. Korytarz 4,09 m²
2. Sypialnia 17,40 m²
3. Garderoba 5,85 m²
4. Sypialnia 11,53 m²
5. Sypialnia 11,53 m²
6. Łazienka 7,68 m²









Studio Artur Wójciak - projekty indywidualne
Szukamy nowatorskich, nowoczesnych, często eksperymentalnych


indywidualne eksperymentalnych rozwiązań w harmonii z przyrodą i otoczeniem





