2019 Architecture + Design Portfolio

Page 1

2 CASTELLANO

INTERSECTION spring 2017

UNLIKELY ENSEMBLES spring 2017 cover render

YOUTH spring 2016 VOID fall 2018 - spring 2019

3 Design + Architecture Portfolio 4 20 26 34

INTERSECTION

Brewers’ School + Residence (14,000SF)

SPRING 2017 | INTEGRATED DESIGN STUDIO

Located in the valley of the Appalachian Mountains, rests an independent new comer among urban places in the Southeastern region of the United States. Roanoke, Virginia – a thriving city and an excellent depiction for the future of the urban South. Roanoke is small city with a total area of 42.9 square miles according to the US Census Bureau and has a population close 95,000 people.

SITE OVERVIEW

Roanoke, Virginia

WINTER SOLSTICE 12:00 PM

Interior vs. Exterior

COMMERCIAL

Brewing hall

Loading Dock

Taproom

EDUCATION

Education / Event Space

Administrative Suit

Lab / Classroom

RESIDENCY

Studio Apartments

Resident Lounge Entry lobby Support / services

4 CASTELLANO
SUMMER SOLSTICE
CHURCH AVE SW S JEFFERSON ST

DESIGN CONCEPT

Focus is on the intersection of physical forces associated with life and motion in a rotating environment and the geometric architectural response to those forces.

PRODUCTION

Goal is to create a visual and directional dialog between production space and consumption space through educational space - a space not associated with drinking alcohol.

6 CASTELLANO
CONSUMPTION
TEACH TEACH T E A HC HCAET HCAET HCAET HCAET HCAET HCAET T E A CH TEACH TEACH TEACH TEACH circulation circulation circulationcirculation circulati on c i r c u al t noi c noitalucri noitalucric noitalucric noitalucricnoitalucric iclucrita no c i r c u la t ion c irculation elevation section elevation

Initial development focused on entry, functionality and visual connections of program studied in elevation.

Massing was developed through a twisted rectangular prism which draws attention from curiosity and suggest entry by gesture.

7 Design + Architecture Portfolio

CODE

Use Group: A-2

Heights + Area (allowed):

65 ft. total / 3 Stories / 14,000 sqft. per story

Heights + Area (actual):

40 ft. total / 3 Stories / Approx. 10,000 sqft. per story

Construction Type:

Type IIIA - Protected Combustible (Also known as “ordinary” construction with brick or block walls and a wooden roof or floor assembly which is 1-hour fire protected).

2 Hr. Exterior Walls*

1 Hr. Structural Frame

1 Hr. Floor/Ceiling/Roof Protection

Sprinkler: No

Common Path of Travel: 200 ft

Occupancy:

Approx. 1,200 Occupants

Assuming – 10,000 SF of Assembly: 800 People / 2,000 SF of Commercial: 200 People / 10,000 SF of Residential: 200 People

Fire Ratings:

Primary Frame: 1-hr / Exterior Bearing: 2-hr / Interior Bearing: 1-hr / Exterior Non-bearing: Depends on fire separation distance / Interior Non-bearing: 0-hr

Floor Construction: 1-hr / Roof Construction: 1-hr

8 CASTELLANO

303.3 Assembly Group A-2.

Assembly uses intended for food and/or drink consumption including, but not limited to:

Banquet Halls

Casinos (gaming areas)

Nightclubs

Restaurants, cafeterias and similar dining facilities (including associated commercial kitchens)

Taverns and bars

TABLE 503

ALLOWABLE BUILDING HEIGHTS AND AREAS

Building height limitations shown in feet above grade plane. Story limitations shown as stories above grade plane. Building area limitations shown in square feet, as determined by the definition od “area, building,” per story.

9 Design + Architecture Portfolio

ZONING

Address:

7 CHURCH AVE SW + 311 JEFFERSON ST SW (Site is a combination of 2 lots)

Zoning District: D

Allowable Uses:

Commercial / Industrial / Misc.

Parking:

Sec. 36.2-652. - Minimum parking.

Setbacks:

Sec. 36.2-316. - Dimensional regulations for multiple purpose districts.

Allowable Height + Stories: 1 foot for each foot of setback from any abutting residential lot

(1) Where minimum parking is required pursuant to the dimensional regulations of the district, the required minimum number of off-street parking spaces shall be provided as set forth in Table 652-2, or as specified on the development plan for a planned unit development district.

(2) All required off-street parking spaces shall be located on the same zoning lot as the use or structure to be served, except as provided in Section 36.2-652(g).

(3) Spaces allocated to a fleet or accessory vehicles necessary for and directly associated with the operation of a business or service establishment shall not, while so allocated, be used to meet the minimum requirements for off-street parking or portions thereof or count toward any maximum parking standard. A fleet shall mean a group of motor vehicles, such as taxicabs, vans, or trucks, operated as a unit in association with a business or service establishment.

Landscape

Requirements:

Sec. 36.2-642. - General landscaping and screening standards.

(a) General requirements.

(1) All portions of a lot which are not included in the calculation of impervious surface ratio shall be landscaped. Landscaping shall include plant materials as may be required by this division as well as open areas covered with grass or other vegetative groundcover.

(2) Landscaping within a sight distance triangle shall not include any evergreen tree and, furthermore, shall not include shrubs or ground cover exceeding thirty (30) inches in height above the graded ground level.

(3) When a determination of the number of required trees or shrubs, as set forth in this division, results in a fraction, any fraction shall be counted as one (1) tree or shrub.

(4) If the development of any portion of a lot includes the creation of a slope of two to one (2:1), horizontal to vertical, or greater, such slope shall be planted with vegetative cover, subject to determination of the Zoning Administrator that the methods of planting will hold the soil in place and that the proposed vegetative cover and rate of planting will ensure stabilization of the slope.

10 CASTELLANO
11 Design + Architecture Portfolio
Site in a 1955 edition Sanborn Map of Roanoke

PRECEDENTS

SAW SWEE HOCK STUDENT CENTRE / O’DONNELL + TUOMEY ARCHITECTS PERFORATIONS. MATERIALITY. OPACITY.

VICTORIA BEER FACTORY / GANA ARQUITECTURA / MÁLAGA, SPAIN CONTIGUITY. FUNCTIONALITY. BRANDING.

12 CASTELLANO
ROANOKE, VIRGINIA

ELEVATION

EAST ELEVATION

S Jefferson St.

13 Design + Architecture Portfolio
ROOF (41’) THIRD FLOOR SECOND FLOOR GROUND FLOOR

ELEVATION

14 CASTELLANO
SOUTH ELEVATION
ROOF (41’) THIRD FLOOR (27’) SECOND FLOOR (14’) PATIO LEVEL (2.5’) GROUND FLOOR UNDERGROUND FLOOR (-8’)
Church Ave.SW
15 Design + Architecture Portfolio

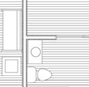
FLOOR PLANS

UNDERGROUND FLOOR

Means of egress highlighted in red

ALL FLOORS WHEELCHAIR ACCESSIBLE

Classroom has views to the brewing hall and the taphouse.

HALLWAY FROMGROUNDFLOOR

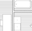
16 CASTELLANO
HALL
BREWING
TAPHOUSE
STORAGE STORAGE GRAIN STORAGE CLASSROOM UTILITY RESTROOMS

FLOOR PLAN

THIRD LEVEL - Additional apartments Means of egress highlighted in red.

SITE PLAN

W/ ROOF PLAN SHADOWS SHOWN FOR MAY 8TH AT 3 PM

CHURCH AVE.SW

LOBBY STAIRS PARKING S JEFFERSON ST.
CASTELLANO

CORNER

19 Design + Architecture Portfolio
ST.
OF CHURCH AVE. & JEFFERSON

UNLIKELY ENSEMBLES

Installation | Design-Build

SPRING 2016

Experiments into the shaping of public space through architectural and musical intervention; in collaboration with the Virginia Tech Orchestra.

Duration of project: One week.

Design + Music

20 CASTELLANO
Design + Architecture Portfolio

Perforated Plywood Panel 1/4”

ASSEMBLY

22 CASTELLANO
Wooden Dowel 1 3/4” Galvanized Steel Tube 1 7/8” Lag Bolt Washer Metal Fastener Metal Bolt Metal Panel
Design + Architecture Portfolio
ENSEMBLE
25 Design + Architecture Portfolio

YOUTH

Sequence + Montage

Music Conservatory (30,000SF)

SPRING 2016

The Roanoke Youth Music Conservatory involves the design of music and associated public spaces in a former industrial neighborhood. The clients wish to create an engaging and safe place, grounded in a belief of the inspirational power of music. The Conservatory should foster a sense of self-worth and community for the youth of the Star City.

In an attempt to capture a panoramic view in a singular form, I studied a cube that twists as it extrudes. Ideally this form was planned to house the concert hall – the most significant part of the building, while simultaneously providing multiple views of the city. My studies extended to the rest of the building in which I captured local views within the site. As one progressed higher to the top of the twisted form one would see distant views of the city.

26 CASTELLANO
27 Design + Architecture Portfolio

FLOOR PLAN

28 CASTELLANO
29 Design + Architecture Portfolio
PRACTICE
PRACTICE
BACK ENTRANCE PARKING
ENTRANCE
LEVEL FLOOR PLAN
PRACTICE
PRACTICE
ASSEMBLY
OFFICE
CENTRAL ATRIUM MEDIUM
ROOM MEDIUM
ROOM
FRONT
SECOND
SMALL
ROOM SMALL PRACTICE ROOM SMALL PRACTICE ROOM SOLO
ROOM SOLO PRACTICE ROOM LARGE
ROOM

SKETCHES

30 CASTELLANO

WALL SECTION DETAIL

Insulation Anchor Exterior Sheathing Welded to steel joist Steel angle kicker Steel Stud & Bat insulation Vertical Steel angle Brick Veneer Steel Joist Concrete Slab Metal Decking Brick Veneer Sealant and backer rod Steel shelf Rigid Wall Board Insulation Sealant
32 CASTELLANO SEQUANCE
33 Design + Architecture Portfolio

VOID VOID

PROPOSED NEW AVENUE UNDERGROUND TUNNEL PROPOSED PLACEMENT FOR COMMERCIAL PROPERTY SPORTS BIKE COMPLEX “EL SALTO DEL FRAILE” MMIDIATE EROSION FORMATION WATERFRONT PLAZA BEACHFRONT AMPHITHEATRE CULTURAL PARK WATERFRONT PARKING LOT
a study of FORMAL EXPRESSIONALISM inspired by ENVIRONMENT
CONTEXTUAL FORCES SANTUARIO VIRGEN DEL MORRO CRISTO DEL PACÍFICO SALTO DEL FRAILE PACIFIC WAVES
CASTELLANO
Design + Architecture Portfolio

Turn static files into dynamic content formats.

Create a flipbook
Issuu converts static files into: digital portfolios, online yearbooks, online catalogs, digital photo albums and more. Sign up and create your flipbook.