“La vida te pondrá mil y un obstáculos, y solo los valientes son capaces de salir de ellos”.

![]()
“La vida te pondrá mil y un obstáculos, y solo los valientes son capaces de salir de ellos”.

24 años
Arquitectura

(+52)7712214505
Soy una arquitecta con una gran pasión por la creación de espacios que no solo sean funcionales, sino también llenos de estilo y personalidad. Desde siempre, me ha fascinado el diseño y todo lo relacionado con la decoración, la moda y el interiorismo. Estas áreas me permiten experimentar con colores, texturas, y formas para transformar cualquier lugar en algo único.
fer.aviles124@gmail.com
Mi formación como arquitecta me ha proporcionado las herramientas necesarias para entender la importancia de la estructura, la distribución y la luz, pero mi amor por la decoración me impulsa a dar un paso más allá, creando ambientes que cuenten historias y reflejen la esencia de quienes los habitan.
Cada proyecto es una oportunidad para mezclar mi conocimiento técnico con mi creatividad, buscando siempre un equilibrio entre estética y funcionalidad. Para mi cada detalle puede hacer la diferencia y cada espacio tiene el potencial de convertirse en algo memorable.
01 02 03 04 05
REBOLLEDO 30
Residencia Unifamiliar
RESIDENCIA PLATA
Residencia Unifamiliar
RESIDENICA INTEGRAL GERIÁTRICA
Residencia Geriátrica para adultos mayores
EDIFICIO JUÁREZ
Edificio de usos mixtos
CENTRO DE CONSERVACIÓN E INVESTIGACIÓN AMORFO
Complejo de usos mixtos


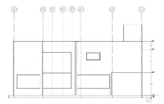
Ubicación: Actopan, Hidalgo
Localización:
Año: 2021
Área: 224 m2
Tipología: Residencial
Antecedentes
El proyecto se desarrolla en Actopan, Hidalgo, un municipio ubicado al sureste del estado, conocido por su rica tradición histórica, cultural y sus hermosos paisajes naturales. La ubicación del terreno, de 224 metros cuadrados, está situada en una zona residencial en crecimiento, lo que otorga un equilibrio entre tranquilidad y accesibilidad a servicios urbanos.
Este contexto favorece la creación de una residencia que combine la esencia local con las necesidades de una vida moderna.
Además, Actopan es un municipio con un clima cálido y una topografía predominantemente plana, lo que permitirá una adecuada ventilación y aprovechamiento de la luz natural. Estos factores se han considerado en el diseño, buscando maximizar la eficiencia energética y crear un ambiente confortable durante todo el año.



Esta propuesta tiene como objetivo la creación de una vivienda unifamiliar que combine la funcionalidad y estética de un loft de estilo industrial de los años 50's, adaptando necesidades contemporáneas. La esencia de este estilo se caracteriza por espacios abiertos, grandes ventanales, materiales expuestos y un concepto de diseño que respeta la simplicidad y la robustez de lo industrial, mientras mantiene una atmosfera acogedora y moderna

La propuesta de esta residencia esta basada en el estilo industrial, que se inspira en la estética de las fabricas y los lofts urbanos, especialmente los de la ciudad de Nueva York, donde lo rustico y contemporáneo se fusionan para crear espacios modernos funcionales y visualmente impactantes. Este estilo se caracteriza por la exposición de materiales, líneas rectas y amplios espacios abiertos que fomentan la convivencia, la interacción y una sensación de libertad.


El diseño de esta residencia busca captar la esencia del estilo industrial, aprovechando elementos de la arquitectura original de los edificios industriales y adaptándolos para la vida contemporánea. La estética industrial abraza la imperfección como un valor usando materiales sin tratar, como ladrillo, acero, madera y concreto, que no solo aportan belleza y carácter, sino también funcionalidad.

Dentro de este proyecto se consideraron distintos factores como lo es el viento, siendo este proveniente del norte orientando la ventilación de forma correcta dentro del proyecto.

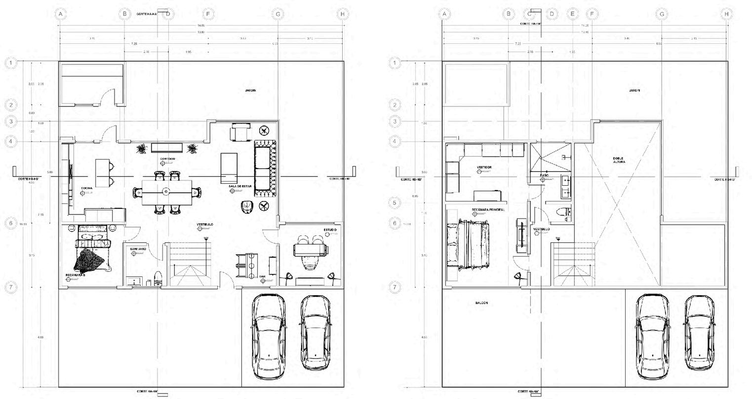
Master Plan
Recamara Principal
Recamara Junior
Walking closet
Comedor
Cocina
Baño
Sanitario
Sala de estar
Estudio
Bar
Jardín
Cuarto de lavado
Estacionamiento



Ubicación: Cumbres de Santa Fe, Querétaro
Localización: 19º 20' 55"N, 99º15'56" E
Año: 2023
Área: 212 m2
Tipología: Residencial
Ubicada en la exclusiva zona de Cumbres de Santa Fe, Querétaro, esta residencia busca integrar la belleza natural de su entorno con un diseño moderno y funcional que responda a las necesidades de una familia contemporánea. La propuesta está pensada para crear un hogar cómodo, armonioso y sostenible, con espacios que fomenten la convivencia familiar y, al mismo tiempo, proporcionen privacidad y confort.

Croquis de vialidades
El diseño de la residencia se centra en la simplicidad y elegancia, combinando elementos de arquitectura contemporánea con detalles naturales. Se busca una arquitectura abierta y fluida, con énfasis en la conexión interior-exterior, permitiendo que la luz natural y las vistas panorámicas sean protagonistas del hogar. Se utilizarán materiales locales y sostenibles, respetando el entorno y generando una atmósfera cálida y acogedora.
"Armonía entre Modernidad y Naturaleza"
El diseño de esta residencia busca crear un hogar donde la modernidad y la naturaleza coexistan en perfecta armonía. Inspirada en el entorno único de Cumbres de Santa Fe, Querétaro, la propuesta se fundamenta en la idea de un refugio familiar contemporáneo, que respeta y se integra con el paisaje natural, mientras ofrece espacios funcionales, luminosos y llenos de estilo.

Croquis de uso de suelo
Master Plan
Sala
Comedor
Cocina
Oficina
Cuarto de lavado
Jardín
Estacionamiento
Sanitario
Recamara Principal
Terraza
Walking closet
Recamara Jr. 1
Recamara Jr.2
Baño



La idea central es ofrecer a la familia un lugar donde se pueda disfrutar tanto de la convivencia como de la intimidad, permitiendo momentos de descanso y recreación, sin renunciar a la modernidad y las necesidades de un hogar contemporáneo. A través de una arquitectura minimalista y una distribución inteligente, se busca maximizar la calidad de vida en todos sus aspectos: funcionalidad, confort, estética y respeto por el entorno. Este concepto refleja el equilibrio perfecto entre diseño, tecnología y naturaleza, creando un hogar donde la familia pueda vivir plenamente, en un entorno que no solo se adapta a sus necesidades, sino que también enriquece su estilo de vida.
Axonometría
Terreno 1
Planta Baja 2.
Entrepiso3.
Segunda planta 4.
Azotea5.
Cada rincón de la casa está pensado para promover la interacción familiar y el confort, con espacios abiertos y fluidos que permiten la conexión entre el interior y el exterior. La casa se convierte en un escenario donde la vida cotidiana se desarrolla rodeada de elementos naturales, materiales sostenibles y acabados de alta calidad, creando un ambiente acogedor y sofisticado.

Ubicación: Epazoyucan, Hidalgo
Localización: 20.01585012180531, -98.63675023234019
Año: 2023

Área: 2024.78 m2 (terreno), 1228.24 (construcción)
Tipología: Geriatría
La creciente población de adultos mayores en nuestra sociedad presentan un desafío importante en términos de atención, bienes y calidad de vida. Conscientes de esa necesidad presentamos nuestra propuesta para la creación de una residencia geriátrica especializada, que ofrezca un ambiente seguro, cómodo y estimulante para todos nuestros residentes.
Nuestro objetivo es proporcionar una atención integral y personalizada a personas mayores que requieran asistencia en su vida diaria debido a la edad avanzada, enfermedades crónicas o discapacidades.
La residencia estará enfocada en promover la autonomía, el bienestar físico , emocional y social de cada residente, creando un ambiente que fomente la dignidad y el respeto.

Concepto
Para este asilo para adultos mayores en Epazoyucan el concepto es la palabra abierto para dar a entender que el proyecto se concebirá como un espacio donde sus habitantes podrán tener acceso a áreas verdes asi como se hará primordial la generación de espacios comunes para asi promover la convivencia




Crear un espacio de retiro para personas mayores que no se perciba como un asilo, sino como un refugio campestre y acogedor, donde los residentes se sientan en un lugar de vacaciones, en paz y serenidad. Un entorno donde la resiliencia florezca y cada rincón esté diseñado para promover la felicidad, el bienestar físico, emocional y social.

Estructuras abiertas y luminosas: Espacios amplios con techos altos, grandes ventanales y mucho contacto con la luz natural.
Paisajismo natural: Jardines, caminos de piedras, áreas de descanso al aire libre, huertos y pequeños estanques de agua que inviten al paseo y la tranquilidad.
Decoración acogedora: Uso de colores suaves, textiles naturales y mobiliario cómodo y ergonómico que proporcione una sensación de hogar.

Zonas de meditación y yoga: Espacios tranquilos diseñados para el bienestar mental y físico, con clases opcionales y momentos para la reflexión personal.
Salas de lectura y actividades recreativas: Espacios para que los residentes disfruten de su tiempo libre, con una variedad de juegos, libros, actividades creativas y acceso a talleres de manualidades.
Salas de música y arte: Con instrumentos accesibles para que los residentes puedan experimentar con la música y las artes plásticas, promoviendo la expresión y la creatividad.








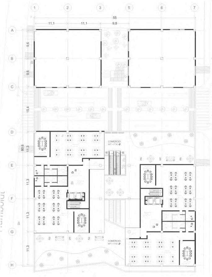
Ubicación: Av. Juarez 92, Colonia centro, Alcaldía Cuauhtémoc,
Localización: 19º 43' 49"N, 99º14' 85" E
Año: 2020
Área: 5,228.22 m2 (predio) 70,051.44 m2 (construcción)
Tipología: Usos Mixtos
La presente propuesta tiene como objetivo el desarrollo de un edificio de usos mixtos en la Alcaldía Cuauhtémoc, ubicado sobre la Avenida Juárez, en el corazón de la Ciudad de México. Este proyecto busca transformar un espacio en una estructura moderna, funcional y sustentable, que contribuirá al dinamismo urbano y al crecimiento económico de la zona.
El edificio tendrá un máximo de 46 niveles sobre el nivel de banqueta, alcanzando una altura total de 111.50 metros, optimizando el uso del suelo de manera eficiente y respetuosa con el entorno urbano.
Estilo Arquitectónico: El edificio tendrá un diseño contemporáneo, con una fachada dinámica que combine materiales modernos como vidrio, acero y concreto, garantizando una integración armónica con el contexto histórico y urbano de la Avenida Juárez. La estética se basará en líneas limpias y minimalistas que refuercen la identidad del proyecto.
Accesibilidad y Conectividad: El diseño considerará las necesidades de accesibilidad para todas las personas, incluyendo rampas, ascensores de gran capacidad y espacios adecuados para personas con discapacidad. La ubicación del proyecto permite una excelente conectividad con el transporte público, lo que reducirá la dependencia del automóvil y promoverá la movilidad sostenible.
Sostenibilidad: Se integrarán tecnologías de diseño sostenible que favorezcan la eficiencia energética, el manejo adecuado del agua y la reducción de emisiones. El uso de paneles solares, sistemas de reutilización de agua y materiales reciclables será prioritario para minimizar el impacto ambiental.
El proyecto contempla la construcción de un edificio de usos mixtos que incluirá: Espacios comerciales en los primeros niveles, que brindarán acceso a comercios, oficinas y servicios para la comunidad Áreas de oficinas en los niveles intermedios, adaptadas para cubrir las necesidades de empresas locales y extranjeras, brindando espacios de trabajo de alta calidad.
Viviendas en los niveles superiores, con departamentos de diversas tipologías, para atender tanto a familias como a jóvenes profesionales, asegurando un equilibrio entre el área residencial y las necesidades comerciales y de oficina. Áreas comunes como terrazas, gimnasios, salas de reuniones y zonas recreativas que fomenten la interacción social y el bienestar de los usuarios. Estacionamientos subterráneos con accesos eficientes para residentes, empleados y visitantes.





Arquitectónica Hotelera A




Impacto Social y Urbano
Este proyecto contribuirá al fortalecimiento de la zona, generando empleos directos e indirectos durante la fase de construcción y ofreciendo espacios de calidad para empresas, comercios y familias. La inclusión de áreas comerciales y de oficina fortalecerá la actividad económica en la zona, mientras que la propuesta de viviendas ayudará a atender la creciente demanda de espacios habitacionales en el centro de la ciudad.
Consideraciones Normativas y Permisos
El diseño y la construcción del edificio cumplirán con todas las normativas urbanísticas y de construcción de la Ciudad de México, incluyendo las regulaciones de altura, densidad, uso de suelo y seguridad estructural. Se solicitarán todos los permisos necesarios ante las autoridades locales y se garantizará el cumplimiento de las normativas de protección civil y medioambientales vigentes.
El proyecto de edificación de un edificio de usos mixtos en la Avenida Juárez representa una oportunidad única para transformar un sector clave de la Ciudad de México, creando un espacio multifuncional que responderá a las necesidades residenciales, comerciales y de oficinas de la comunidad. Con un diseño arquitectónico innovador y respetuoso con el entorno, este proyecto no solo mejorará la infraestructura urbana, sino que también generará un impacto positivo en la economía local y la calidad de vida de los habitantes de la Alcaldía Cuauhtémoc.


Ubicación: Ejido el Nopalillo, Cerro de las Navajas, Hidalgo
Localización: 19º 20' 55"N, 99º15'56" E
Año: 2024
Área: 1024 m2
Propuesta
El Cerro de las Navajas, ubicado dentro del ejido de la región, es un sitio de gran valor histórico y cultural debido a la presencia de obsidiana de alta calidad, que ha sido una fuente importante para la fabricación de herramientas desde tiempos prehispánicos. Sin embargo, el robo ilegal de obsidiana y su mal uso están afectando gravemente el equilibrio ecológico y el patrimonio cultural de la zona. Con el objetivo de preservar este valioso recurso natural y garantizar su uso responsable, proponemos la creación de un Centro de Investigación y Conservación en el Cerro de las Navajas. Este centro tendrá como principal misión prevenir el robo, promover el uso adecuado de la obsidiana y fortalecer las acciones de conservación y educación en la comunidad.
Concepto
Amorfo, palabra que parte de la abstraccion de la obsidiana que es la piedra que abunda dentro del cerro de las navajas el cual le da identidad y particularidad al espacio, y razon por la cual existe la necesidad de crear este espacio, amorfo significa lo contrario de la forma que es la mejor forma de describir a la obsidiana.
Generación de forma



Sketch Obsidiana Sketch conjunto de obsidianas (abstracción) Resultado final (partiendo de la abstracción)

Arquitectónica

Distribución
Sala de investigaciones
Sala de exposiciones
Laboratorio
Aula
Laboratorio de computadoras
Biblioteca
Oficina
Sala de profesores
Recepción
Comedor
Cafetería
Sanitarios
Taquilla
Enfermería
Vigilancia
Cuarto de limpieza
Estacionamiento
Ciclo puerto
El Centro de Investigación y Conservación se ubicará cerca de la base del Cerro de las Navajas, en una zona accesible pero alejada de las áreas más sensibles donde se encuentra la mayor concentración de obsidiana. El diseño del centro será sostenible, utilizando materiales locales y respetuosos con el entorno natural
La creación de este Centro de Investigación y Conservación tendrá un impacto positivo en la comunidad, tanto a nivel local como regional: Preservación del patrimonio cultural al evitar el robo ilegal de obsidiana y promover su uso sostenible.
Fortalecimiento de la economía local mediante la promoción de productos derivados de la obsidiana y la creación de empleos en el centro de investigación, la vigilancia y la educación.
Concientización ambiental sobre la importancia de la conservación de los recursos naturales, creando una cultura de respeto y protección en la comunidad.






Propuesta
El Cerro de las Navajas, ubicado dentro del ejido de la región, es un sitio de gran valor histórico y cultural debido a la presencia de obsidiana de alta calidad, que ha sido una fuente importante para la fabricación de herramientas desde tiempos prehispánicos. Sin embargo, el robo ilegal de obsidiana y su mal uso están afectando gravemente el equilibrio ecológico y el patrimonio cultural de la zona. Con el objetivo de preservar este valioso recurso natural y garantizar su uso responsable, proponemos la creación de un Centro de Investigación y Conservación en el Cerro de las Navajas. Este centro tendrá como principal misión prevenir el robo, promover el uso adecuado de la obsidiana y fortalecer las acciones de conservación y educación en la comunidad.


Propuesta
El Cerro de las Navajas, ubicado dentro del ejido de la región, es un sitio de gran valor histórico y cultural debido a la presencia de obsidiana de alta calidad, que ha sido una fuente importante para la fabricación de herramientas desde tiempos prehispánicos. Sin embargo, el robo ilegal de obsidiana y su mal uso están afectando gravemente el equilibrio ecológico y el patrimonio cultural de la zona. Con el objetivo de preservar este valioso recurso natural y garantizar su uso responsable, proponemos la creación de un Centro de Investigación y Conservación en el Cerro de las Navajas. Este centro tendrá como principal misión prevenir el robo, promover el uso adecuado de la obsidiana y fortalecer las acciones de conservación y educación en la comunidad.


El Cerro de las Navajas, ubicado dentro del ejido de la región, es un sitio de gran valor histórico y cultural debido a la presencia de obsidiana de alta calidad, que ha sido una fuente importante para la fabricación de herramientas desde tiempos prehispánicos. Sin embargo, el robo ilegal de obsidiana y su mal uso están afectando gravemente el equilibrio ecológico y el patrimonio cultural de la zona. Con el objetivo de preservar este valioso recurso natural y garantizar su uso responsable, proponemos la creación de un Centro de Investigación y Conservación en el Cerro de las Navajas. Este centro tendrá como principal misión prevenir el robo, promover el uso adecuado de la obsidiana y fortalecer las acciones de conservación y educación en la comunidad.
Detalles Estructurales




Los materiales que se utilizaron para este proyecto se procuraron ser comunes dentro de la región razón por la cual el proyecto esta diseñado a base de adobe y materiales pétreos tanto para realizarlo de una forma lo mejor en todos los sentidos posibles.. El proyecto propuesto se basa en el uso de adobe como material primordial de construcción, reconociendo su valor histórico, ecológico y cultural. El adobe, material ancestral utilizado en diversas regiones de México, es ideal para este proyecto por sus propiedades térmicas, su bajo impacto ambiental y su capacidad para integrarse armónicamente con el entorno natural y social
Además de hacer uso de la madera, el tabique rojo recocido, entre otros materiales dentro del proyecto..