



![]()



















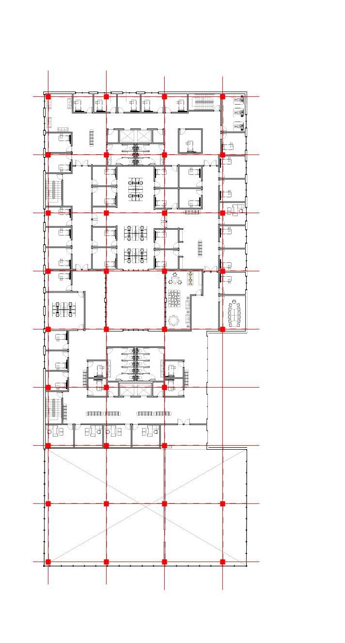
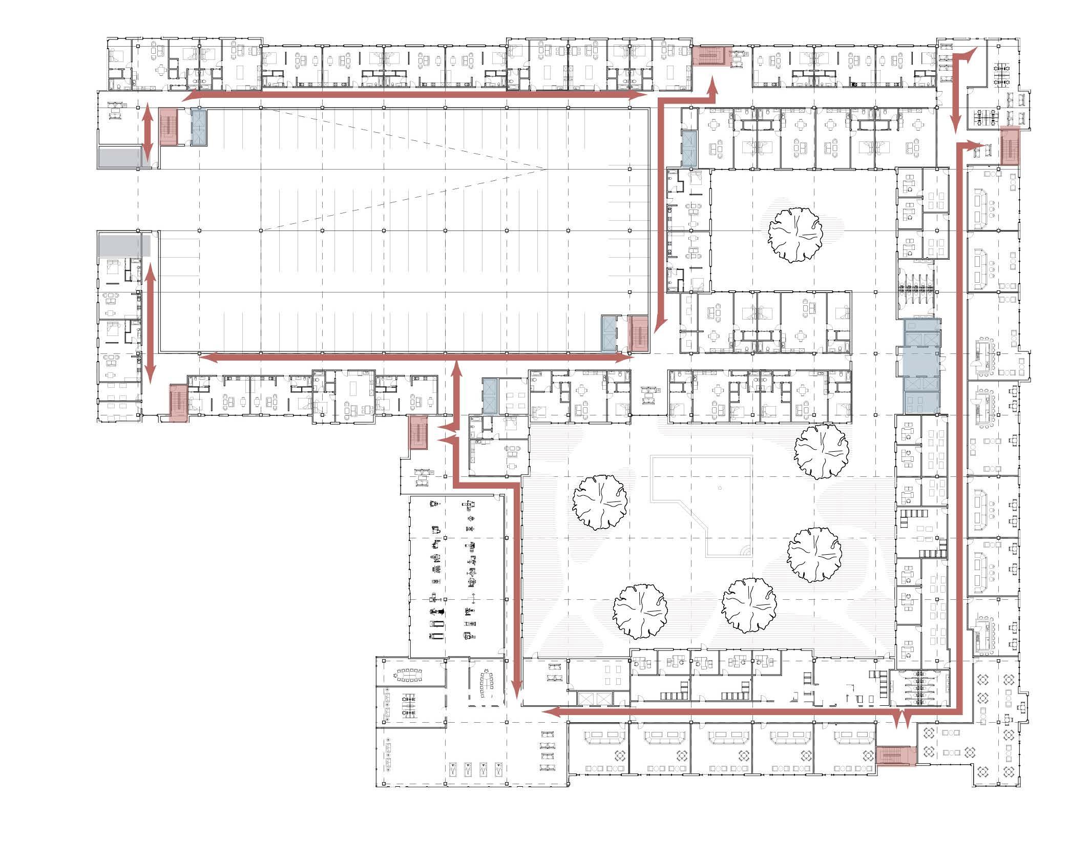
THIS PROJECT REIMAGINES THE WAY WE EXPERIENCE A CLINIC BY CREATING A VIBRANT, MIX-USED ENVIRONMENT THAT PROMOTES HEALTH, HAPPINESS , AND CONNECTION. LOCATED AT THE INTERSECTION OF BROADWAY AND MORLEY ST NEAR HOBBY AIRPORT, THIS BUILDINGS INTEGRATES A MODERN CLINIC WITH RESIDENTIAL AND RETAIL SPACES TO FOSTER A SENSE OF WELL BEING BEYOND MEDICAL CARE. BY DISSOLVING THE STIGMA OF TRADITIONAL HEALTHCARE VISITS, THIS PROJECT AIMS TO CREATE A WELCOMING DESTINATION WHERE PEOPLE ARE EXCITED TO ENGAGE WITH NATURE, EACH OTHER, AND HEALTHIER WAYS OF LIVING. THROUGH THOUGHTFULLY DESIGN PUBLIC SPACES, WELLNESS FOCUSED AMENITIES, AND SUSTAINABLE BUILDING, THE VISION IS TO CULTIVATE A RESILIENT, NET ZERO COMMUNITY BY 2050.






IMAGINE A CLINIC, HEALTHIER RETAIL SPACES, A PARK, AND YOUR NEXT HOME ONE STEP AWAY FROM HOBBY AIRPORT IN HOUSTON, TEXAS. ONCE YOU VISIT US YOU WILL WANT TO STAY!






























HOUSTON SKYSCRAPER SHADOWS











These studies showcase how the Hobby Airport area functions in the sky and on land. While they come together to create a efficient environment, there are opportunities for improvement. Continued planning and updates can enhance safety, sustainability, and growth for the surrounding community.











The Federal Aviation Administration (FAA) adds a 10db penalty to aircraft operations conducted between the hours of 10:00 p.m. and 7:00 a.m.
