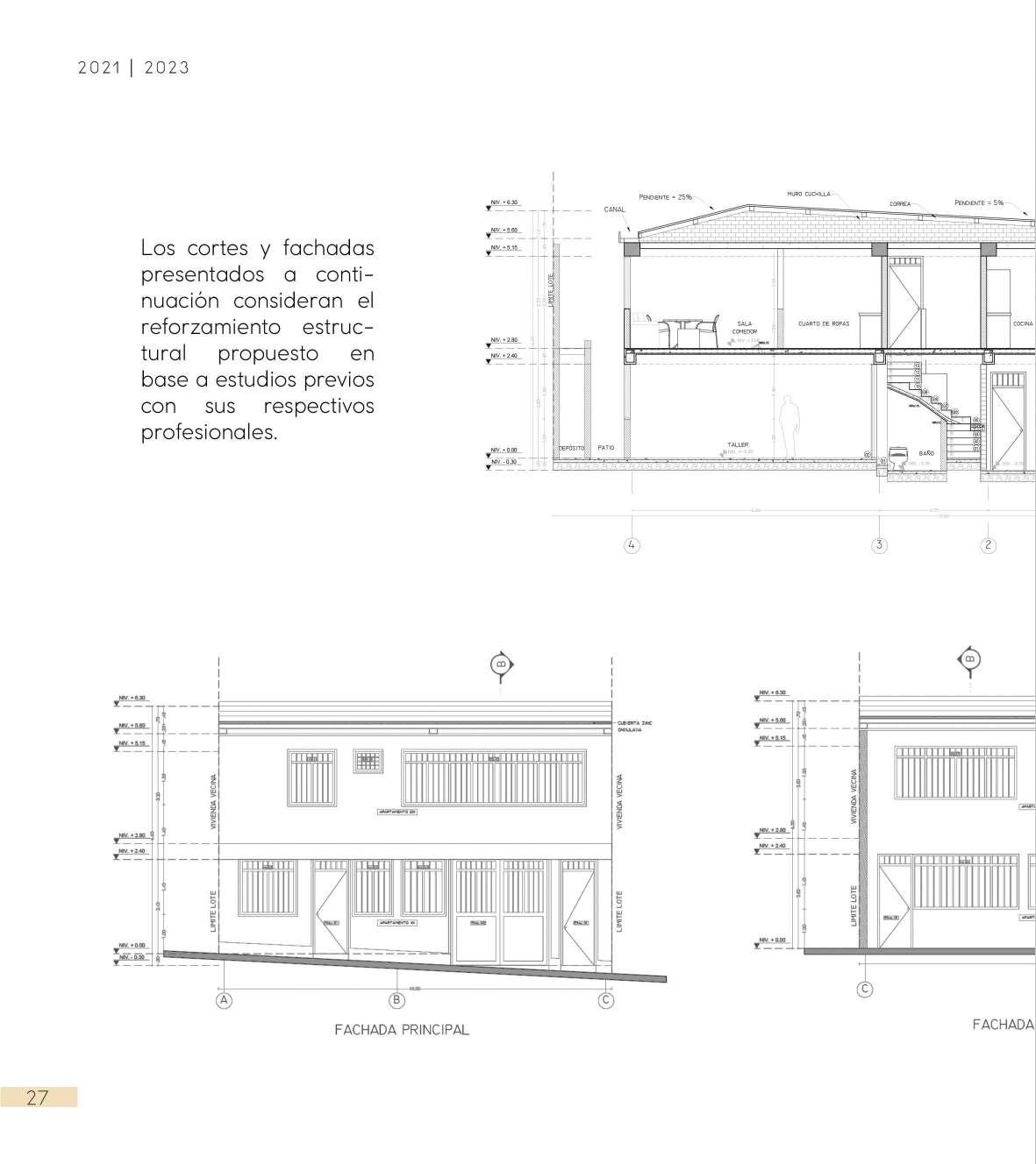
Skip to main content

Portfolio/ 2021-2023

Page 1

Turn static files into dynamic content formats.

Create a flipbook