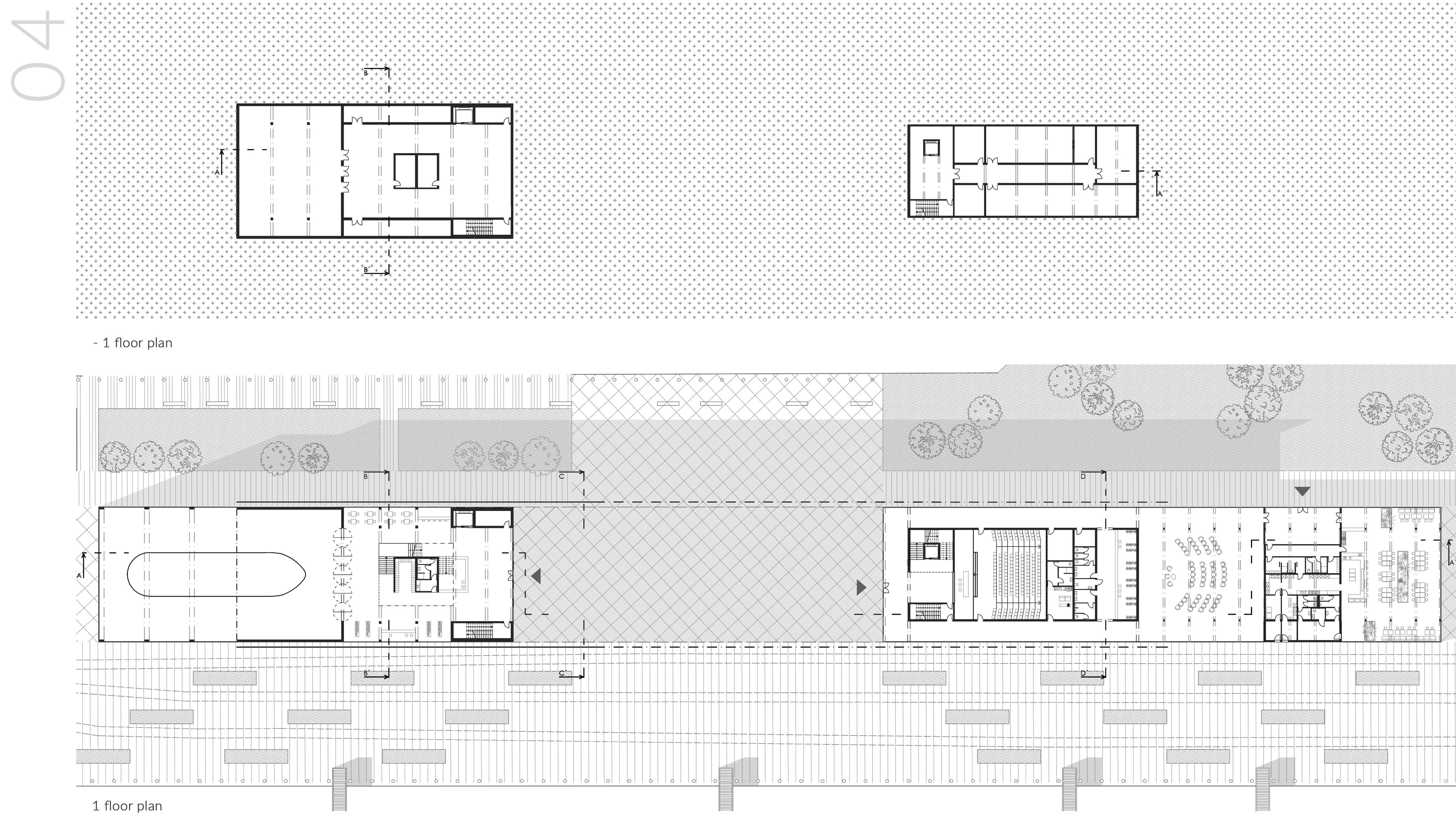
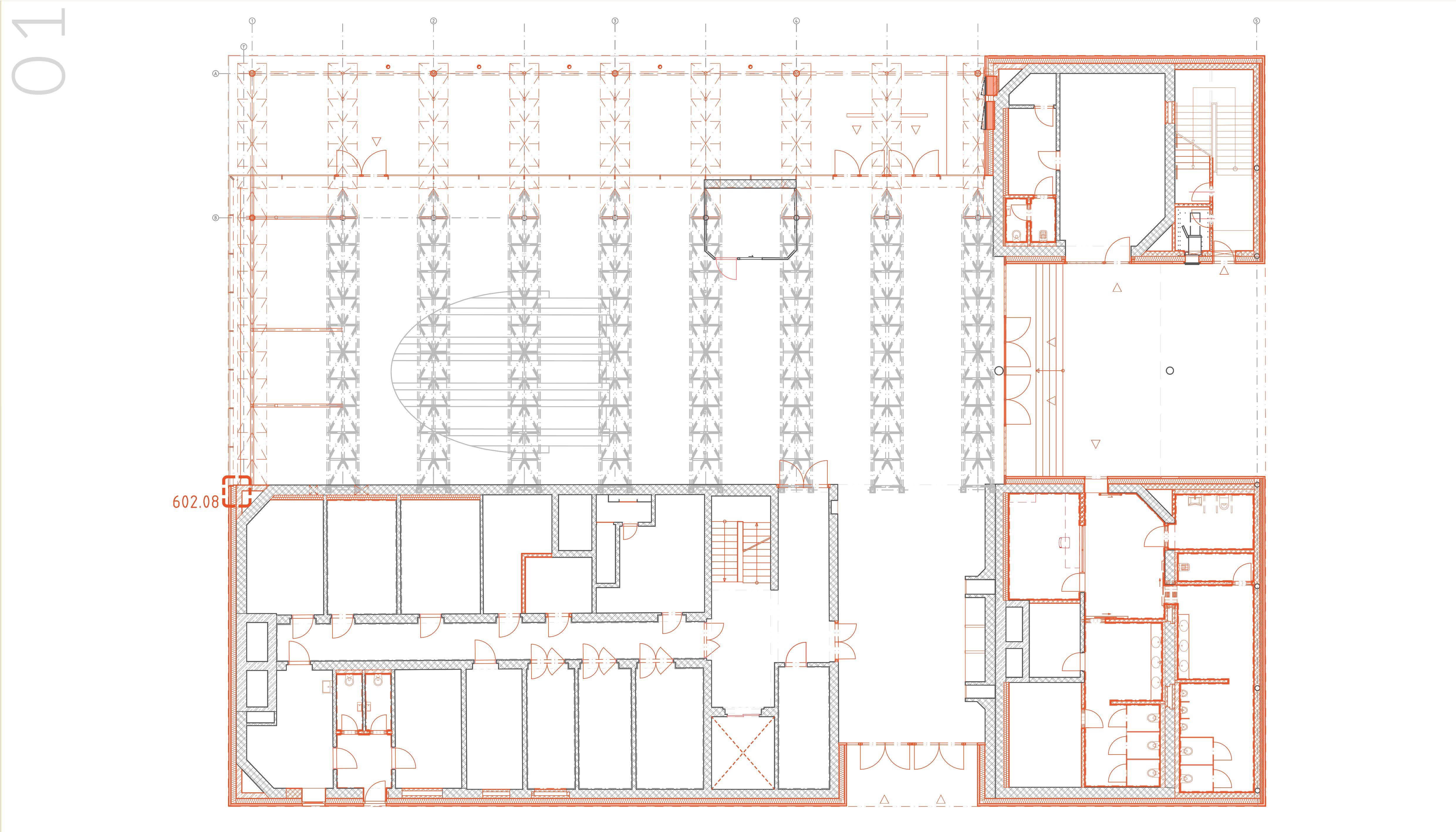
My professional architectural portfolio presents projects from my career, including my thesis work. It showcases diverse interiors, multifunctional offices, inspired living spaces, and public buildings that embody a thoughtful blend of design and functionality.