













![]()














arq Carlos Chichitz
arquitectura • coordinación • BIM

2025
Trabajos seleccionados


departamentos
Torre Tz’onte
| 04 usos mixtos Campo Capital | 10





Ubicación: San Pedro G.G., Nuevo León
Tipo: Vivienda vertical
Año: 2023
Ubicado dentro de Chipinque, este edificio de 5,600 m² de construcción presenta un diseño inspirado en las obras del artista David Umemoto. Su arquitectura busca potenciar los valores naturales del entorno, generando espacios de contemplación que se integran de manera orgánica con la pronunciada topografía del sitio.
Toma como referencia los principios del brutalismo, del mismo modo el proyecto configura áreas íntimas para ocultarse entre la vegetación, brindando refugio tanto a los usuarios como a la fauna local.





El proyecto se desarrolla en 6 niveles de departamentos, una planta baja de amenidades y un sótano de estacionamiento.
Los departamentos se dividen en tres tipos adaptándose a las necesidades dictadas por el mercado, siempre priorizando la accesibilidad y el tener vistas favorables para enriquecer la experiencia de los residentes.
De igual manera las áreas comunes buscan desarrollarse en conjunto con el entorno.

● emplazamiento


Cada decisión dentro del proyecto fue pensada para reforzar el recorrido y el reconocimiento del sitio, emplazar y refugiarse en el mismo, de esta manera acentuando la identidad del sitio creando un espacio para ser habitado y contemplado.
La diferencia de niveles dada por la topografía nos

● sección longitudinal

El proyecto se emplaza cuidadosamente en medio de la vegetación beneficiándose de la riqueza del paisaje. Se plantea un contraste armonioso entre los elementos pétreos de la arquitectura y la vida silvestre que lo rodea, enriqueciendo la experiencia espacial y aprovechando al máximo las cualidades del entorno.
El corazón del proyecto es un majestuoso árbol preexistente ubicado en el centro del volumen, que acompaña y guía el desarrollo arquitectónico. Este elemento funciona como eje rector del diseño, otorgando identidad al conjunto y reforzando la conexión con la fauna y el entorno natural que lo rodea.




usos mixtos
Ubicación: Torreón, Coahuila
Tipo: Torre departamentos sobre área comercial
Año: 2024
Este conjunto de usos mixtos se ubica dentro de un reconocido campo de golf en la ciudad. El proyecto, que combina vivienda, espacios recreativos, puntos de encuentro y comercio, tiene como objetivo convertirse en un punto de referencia para la comunidad local, ofreciendo espacios que sirvan como refugio ante las condiciones climáticas de la región, al tiempo que habilita actividades que hasta ahora no habían encontrado lugar en esta ciudad en constante crecimiento.
Campo Capital busca fomentar un sentido de comunidad dentro de uno de los proyectos de paisaje más emblemáticos del país, extendiendo sus cualidades al desarrollo arquitectónico y generando espacios que mantengan activa y cohesionada a la población local, buscando atraer a nuevas familias y personas que buscan un espacio de tranquilidad.

Campo Capital es un proyecto de largo plazo que se desarrollará en tres fases a lo largo de una década. Cada etapa contempla un conjunto de torres que crecerá de forma independiente, destacando siempre la orientación privilegiada hacia el campo de golf local.
La primera fase comprende cuatro torres ubicadas sobre una pasarela abierta al espacio público, coronada por una plazoleta de usos mixtos. Este espacio abierto busca integrarse de manera orgánica con su entorno, cediendo parte del proyecto a la comunidad y fomentando un ambiente accesible, amigable y atractivo para diversos tipos de usuarios.
La segunda fase incluye otro grupo de cuatro torres, esta vez apoyadas sobre un volumen de mayor escala destinado íntegramente a usos comerciales y gastronómicos. Una de estas torres estará destinada a uso hotelero, ampliando la oferta de servicios del complejo y consolidando su carácter urbano.
La tercera y última fase se ubicará en una zona más resguardada del terreno, aprovechando su carácter íntimo para desarrollar un conjunto exclusivamente residencial con sus propias amenidades. Esta etapa contará con accesos controlados, garantizando privacidad y confort a sus residentes.
● Isometría general

El proyecto que consta de estas tres fases, tienen diferentes propósitos, la fase 01 busca crear un hito urbano abierto al público, la fase 02 ser un elemento comercial, y la fase 03 un refugio ligeramente alejado del exterior que otorgue espacios de contemplación y tranquilidad.
Este parte del proyecto carga con la importante tarea de establecerse y crecer junto con la ciudad y que a la vez sea amable con la escala humana.
Aprovechando las áreas verdes existentes y propuestas.
Para este espacio se consideraron actividades relacionadas al espacio libre, desde pasarelas provistas de sombra natural y artificial, una propuesta de fauna que mimetizara con el preexistente y recorridos orgánicos para acceder y disfrutar del espacio.
Propuesta de vegetación fase 01: desiertos del norte grandes planicies sierras templadas















centro culinario
Ubicación: Monterrey, Nuevo León
Tipo: Académico
Año: 2020
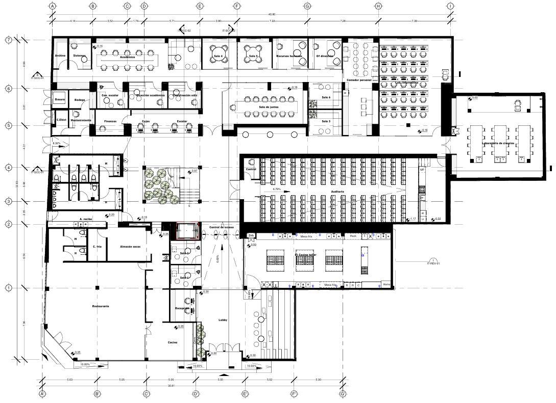
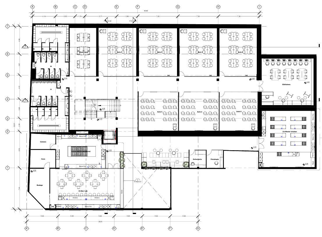
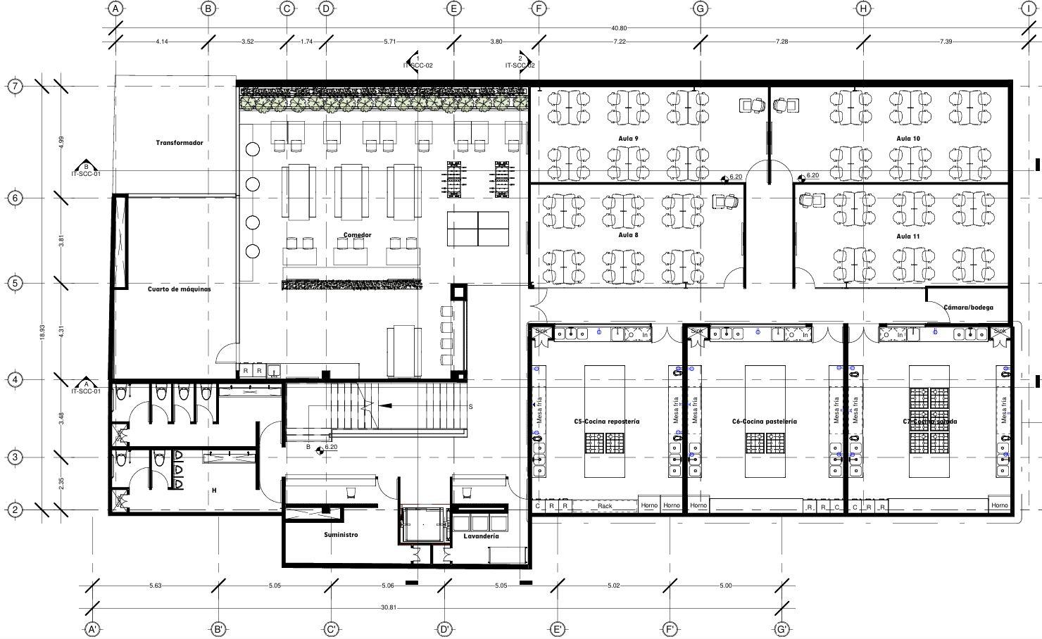
Esta escuela, ubicada en el centro del área metropolitana, fue adaptada dentro de un conjunto de edificios preexistentes. La solución arquitectónica responde a las necesidades de aulas, talleres y espacios académicos, integrando además áreas destinadas a restaurantes para complementar la experiencia educativa del centro.
Con una superficie de 3,930 m² distribuidos en cuatro niveles, el proyecto maximiza el aprovechamiento de los espacios renovados e incorpora un diseño interior contemporáneo que aporta carácter y funcionalidad al conjunto.
● plano llave de monterrey línea del metro 1 línea del metro 2




sección longitudinal
● planta nivel 2



nivel
La recepción del proyecto está destinada a estudiantes y usuarios interesados en la cocina, al ser un punto que funciona como esclusa a los talleres que se imparten en la institución busca ser un lugar amable y neutral para desempeñar tanto actividades académicas y a la vez ser un punto de encuentro
Este espacio multifuncional donde se imparten clases y talleres, además de ser un simulador de restaurante. Este ambiente dinámico se convierte en un nodo de actividad que conecta directamente el laboratorio con la cocina contigua, reforzando la interacción entre aprendizaje práctico y experiencia real.






Ubicación: Monterrey, Nuevo León
Tipo: Oficinas
Año: 2020
Adaptación de un edificio preexistente de un nivel con sótano, al cual se le añade un segundo nivel destinado a oficinas de alto nivel ejecutivo. Simultáneamente, se intervienen las áreas exteriores para desarrollar un concepto de oficina que se fusiona con la flora local, generando un entorno de trabajo gerencial que armoniza con el paisaje y el diseño exterior.
Además de integrar diseño interior y exterior, el proyecto busca realizar una intervención respetuosa con la arquitectura original del edificio, conservando su valor histórico dentro del contexto urbano.
El edificio, originalmente compuesto por un nivel y un sótano destinado a estacionamiento, fue adaptado para incorporar nuevos espacios con acabados y ambientaciones de alto lujo.
Para ello, se llevó a cabo un levantamiento detallado del sitio, un análisis estructural de la edificación existente y el desarrollo de una propuesta de materiales y acabados que respetara la estética y el carácter original. Asimismo, se planteó una solución versátil tanto en la distribución de los espacios como en las subestructuras, permitiendo la integración eficiente de las nuevas áreas y elementos constructivos.
El proyecto fue concebido de manera integral, abarcando arquitectura, diseño de interiores y diseño de paisaje. Paralelamente, se desarrollaron las ingenierias estructurales y de instalaciones necesarias para adaptar y ampliar las redes hidrosanitarias, eléctricas y de domótica, asegurando la funcionalidad y eficiencia de las nuevas intervenciones.

● isometría sala de espera

● isometría de escalera






La propuesta de fachada, busca resaltar los materiales existentes, tanto la elección de ladrillo como de herrería y cancelería buscaba mantener la apariencia del edificio, haciendo apenas obvia la intervención en el proyecto.

El proyecto ejecutivo buscó en todo momento plasmar las intenciones de mantener la apariencia en la ampliación y de manera contrastante renovar completamente los espacios interiores.











Ubicación: Monterrey, Nuevo León
Tipo: Usos mixtos
Año: 2024
Para este proyecto se colaboró en el proceso de modelado y coordinación utilizando la metodología BIM. En conjunto con diversas oficinas, se desarrolló un modelo estructural que se actualiza continuamente conforme avanza el diseño arquitectónico, permitiendo verificar en tiempo real la compatibilidad con las distintas ingenierías involucradas.
El modelo estructural está conformado por seis modelos distintos, todos georreferenciados en sitio, lo que facilita una coordinación precisa y eficiente entre disciplinas.



nivel 74-52
nivel 50-32
nivel 30-20
nivel 19-09
n08-01

¡Gracias!
