Selected Works 2019/2024

Page 1


CURRICULUM VITAE

OTTICA GERACI

Spazi espositivi per l’artigianato

SPERIMENTAZIONI TECNOLOGICHE PER L’EDILIZIA PORTUALE

Edifici e servizi alla nautica da diporto a Reggio di Calabria

MILLANGES

Una città industrale - Europan 15

LA ROSA DEI VENTI

Ristorante & Pizzeria

APPART MIRABEAU

Progettazione d’interni

APPARTAMENTO SULLO STRETTO DI MESSINA

Progettazione d’interni

ASD POLISPORTIVA GALAXY

Nuova identità della Società sportiva

VISUALIZZAZIONE ARCHITETTONICA

Alcuni render di interni ed esterni

01 03 04 05 06 07 08 02

Salve,

Vi contatto con la presente per propormi presso il Vostro studio. Laureato a ciclo unico all’Università Mediterranea di Reggio di Calabria nel 2019 e ho conseguito nel 2020 l’abilitazione all’esercizio della professione tramite l’esame di stato.

Durante il percorso di studi, quinquennale, ho collaborato presso lo studio di famiglia confrontandomi con la professione nelle sue declinazioni. Tra i progetti realizzati vi sono prettamente progetti legati alll’ horeca, la progettazione di attività commerciali e residenziali.

Discuto la tesi di laurea nel Marzo 2019 con una tesi denominata “Sperimentazioni tecnologiche per la nautica da diporto” avente ad oggetto retrofit materico e sperimentazioni tecnologiche di strutture industiali per il riuso a scopo commercialericettivo e la progettazione di una darsena turistica nel porto di Reggio di Calabria. Mio relatore di tesi fu il Prof.Arch. M. Milardi, docente alla Facoltà di Architettura di Reggio di Calabria e Manager del TCLab Testing Envelope_BFL, il quale, oltre all’aspetto progettuale mi ha aiutato fortemente a sviluppare l’aspetto più tecnologico del progetto.

Subito dopo la laurea primo progetto personale di un’attività commerciale, un negozio di ottica, seguito in tutte le sue fasi, fino alla consegna al cliente.

Poco dopo collaboro con lo studio Atelier CMJN a Parigi. Li lavoro a stretto contatto con i titolari dello studio per il concorso di progettazione EUROPAN15, sito Bordeaux, unitamente ad una serie di progetti d’interior design

Rientro in Italia per un breve periodo e per motivi pandemici inizio la mia attività professionale a Reggio Calabria. Da li instauro una serie di collaborazioni con studi a Reggio Calabria, Milano, Lecce, Monza e Pachino, che mi danno la possibilità confrontarmi in diversi ambiti lavorativi. Attraverso lo sviluppo di progetti personali e collaborazioni ho avuto esperienza nell’ambito della visualizzazione architettonica, progettazione retail, progettazione horeca, progetti di interior design, progettazione architettonica, direzione lavori e computo degli stessi.

Successivamente mi sono stabilito a Milano ed ho collaborato negli studi presenti nel CV.

Attualmente sono alla ricerca di nuovi ambienti che possano nutrire il mio percorso professionale e personale. Sono disponibile a lavorare full time, part-time, in collaborazione come freelance e da remoto. Parlo inglese e francese e sono aperto anche a trasferte internazionali.

Allego link che rimanda al portfolio: https://issuu.com/arch.cuzzocrea/docs/arch._a.cuzzocrea_portfolio

Ringrazio per l’attenzione e resto disponibile per un incontro.

Un saluto molto cordiale, Arch. Alessio Cuzzocrea

ALESSIO CUZZOCREA

ARCHITETTO

Via Felice Cavallotti

Sesto S.Giovanni(MI)20039 +39 3455199504 p.iva 03181840806 alessio.cuzzocrea@gmail.com alcuzzocrea@oappc-rc.it

ESPERIENZA

ARCHITETTO PROJECT MANAGER

Mazzei Architects srl, Milano|Giu24-ad oggi

Prog. d’interni, retail, DL retail e centri commerciali, prog. architettonica, ArchViz, verifiche HSE in cantieri infrastrutture e redazione pratiche.

ARCHITETTO SENIOR

Andrea Borri Architetti, Milano|Lug23-Giu24

Collaborazione per progetti residenziali, real estate, restauro e conservazione, progettazione architettonica e tecnica.

ARCHITETTO COLLABORATORE

Orbita Architettura, Milano|Oct22-Lug23

Collaborazione a progetto per progetti residenziali, modellazione 3D e visualizzazione architettonica.

ARCHITETTO COLLABORATORE

G.I.A.G.Group sc, Reggio C|Giu21-Lug23

Collaborazione a progetto per pratiche di SuperBonus 110%, Bonus Facciate, rilievi geometrici e termotecnici

ARCHITETTO ASSOCIATO

Cuzzocrea Architetti, Milano/Reggio C|Set19-Lug23

Progettazione architettonica, Ristrutturazioni, Interior design, Graphic Design

ARCHITETTO TRAINEESHIP

Atelier CMJN, Parigi (FR)|Apr19-Set19

Partecipazione Europan 15 Floriac, Bordeaux (FR), Disegnatore 2d/3d, Render, Graphic Design, Ritrutturazione unità residenziali

RICONOSCIMENTI

EUROPAN 15

Atelier CMJN, Parigi (FR)|Apr19-Lug19

Lo studio si aggiudica il 5° posto per il lotto Floriac, Bordeaux (FR)

40/40EUROPEAN DESIGN AWARD 2019

Atelier CMJN, Parigi (FR)|Apr19-Lug19

Lo studio è stato inserito nella lista dei 40under40 migliori studi professionali d’Europa under 40 /lex_czz /alessio-cuzzocrea

ISTRUZIONE

MASTER DI I LIVELLO

Università Dante Alighieri, Reggio C|Giu20-Dic20

“Metodologie didattiche, psicologiche, antropologhiche, teoria e metodi di progettazione”.

ABILITAZIONE PROFESSIONALE ARCHITETTO OAPPC, Reggio C|Nov19-Feb20

Iscrizione all’Ordine degli Architetti P.P.C. di Reggio di Calabria, Giu20

LAUREA IN ARCHITETTURA|LM-04

Università Medierranea di Reggio C|Mar19

Tesi di Laurea “Sperimentazioni tecnologiche per l’edilizia portuale - Edifici per servizi alla nautica da diporto a Reggio Calabria”.

TIROCINIO FORMATIVO

Comune di Reggio C|Giu18-Lug18

Addetti per Titoli abilitativi di edilizia privata

SOFT SKILLS

Le esperienze di studio e lavoro hanno consolidato capacità comunicative, relazionali e sinergiche nei gruppi di lavoro

L’esperienza militare e l’attività agonistica praticata a livello agonistico hanno rafforzato carattere, disciplina, autocontrollo e prontezza d’intervento

Creativo, curioso, determinato e puntuale

PROFESSIONAL SKILLS

Progettazione architettonica Interior design

Furniture design

Protocollo ITACA

HOBBIES

Retail design

Graphic design

Corso BIM Specialist Tecno3D|Feb23

Corso BIM Avanzato Tecno3D|Giu22

Corso BIM Base Tecno3D|Apr22

Att Corso Protocollo ITACA|Lug 21

Attestato BIM PuntoNet Revit|Ott20

Student Learn V-Ray 5SRW|Giu20

3DS Max Render - UNIRC|Nov17

Amm. di Condominio - ITAS RC|Feb10

ECDL - AICA|Nov09

SOFTWARE

Revit Inglese Technology Futsal

3ds Max

SketchUp

AutoCad

Photoshop

Illustrator

InDesign

Archicad

Music Table Tennis Travel

Italiano Madrelingua

Malta’s Linking School | 2007-2005

Fracese

04/10/2019

Lettre de recommandation : Alessio Cuzzocrea

Monsieur, Madame,

Je sous signé, François Lepeytre, gérant de la société SARL Atelier CMJN, ai dirigé le stage de Alessio Cuzzocrea au sein de notre entreprise pendant 6 mois entre avril et septembre 2019.

Alessio a eu l’occasion de participer à un projet en phase concours et plusieurs projet au cours de différentes phases ( ESQ – AVP – PRO). Il a démontré son sérieux et son savoir faire. Il a fait preuve d’une grande curiosité et d’une belle qualité d’apprentissage et d’adaptation tout au long du stage. Son dynamisme a eu un impact positif dans la vie de l’agence. Il n’a pas hésité a donné son avis afin de faire avancer le projet en gardant, sur chaque tache, un esprit critique plein de maturité

Il a été capable de dessiner en 2d et 3d pour l’agence de façon de plus en plus autonome. Ses facilités liassent entrevoir encore une belle marge de progression.

Je vous recommande chaudement de travailler avec lui.

Cordialement,

François Lepeytre Paris 04/10/2019

Selected Works

2019 | 2024

01 OTTICA GERACI

RETAIL DESIGN

| lug19

Realizzato

Reggio di Calabria, RC (IT) AutoCad, 3ds Max, V-Ray, SketchUp, Adobe Ps/Ai/Id Collaborazione “Studio 104” LOD 1:20 SUR

Il progetto prevede tre zone in cui mettere in evidenza tipologie di prodotti diversi.

L’attenzione cade sullo spazio dedicato ai prodotti artigianali del cliente mentre ai poli opposti sono stati pensati degli spazi per gli occhiali da sole e gli occhiali da vista.

Nel progetto d’interior design si è mantenuta l’identità del locale, lasciando le murature a vista in mattoni pieni con correnti in cls armato. Pavimentazione in cemento

ed espositori in cartongesso hanno contribuito all’identità industrialeminimale del locale. In linea con le esigenze temporanee della committenza si sono progettati anche gli espositori con le trasparenze del vetro, gli sfondi neutri dei pannelli il legno, la consistenza dei mordenti e gli accenti di luce dei led.

Nell’elaborazione del progetto si è creata una coordinazione tra la preesistenza e le necessità della nuova attività.

Lo spazio è semplice, pone l’accento sui prodotti e diviene fruibile anche alla chiusura ,lasciano la luce degli espositori alla vista dei futuri clienti anche nelle ore notturne.

di progetto _vista assonometrica _espositori con incasso _espositori di progetto

_sezioni di progetto

_pianta di progetto

02

SPERIMENTAZIONI

TECNOLOGICHE PER L’EDILIZIA PORTURALE

EDILIZIA PORTUALE | mar19

Tesi di laurea - UniRC - dArTe Reggio di Calabria, RC (IT) AutoCad, Cinema 4d, V-Ray, Adobe Ps Prof. Arch. M. Milardi co. Arch. S. Dattilo Individuale

LOD 1:10 SUR

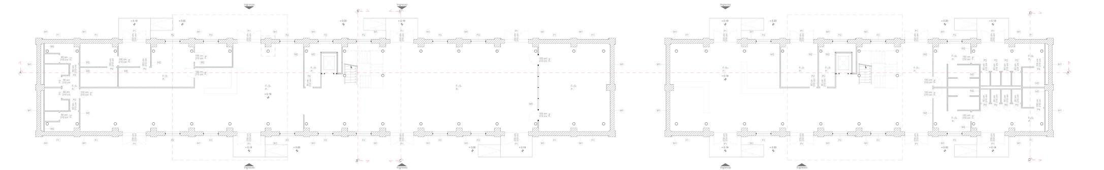
Progetto di Tesi di laurea sito nel porto di Reggio di Calabria. Allo stato di fatto, il porto ha una serie di funzioni confuse e senza il dialogo con la città, oltre alla difficoltà di fruizione dei servizi. Il progetto, propone un nuovo assetto funzionale di servizi, potenziando l’esiguo numero di posti barca, attualmente presenti in condivisione con le imbarcazioni delle forze dell’ordine, per poter realmente creare una vera darsena turistica per la città di Reggio di Calabria.

Partendo dal masterplan, si ha una riorganizzazione delle funzioni ed il potenziamento dei servizi, spesso assenti. Attraverso la creazione dei pontili per l’ormeggio di natanti, imbarcazioni e navi, si è riorganizzata la fruibilità ai collegamenti infrastrutturali, quali aliscafo che collega la città a Messina e la ferrovia. All’aumentare della disponibilità dei posti barca, per garantire i servizi annessi e connessi per i diportisti si è effettuato un intervento di retrofit sui

fondaci risalenti agli anni “50. Queste 2 strutture in muratura portante sono state riprogettate, realizzando una struttura interna in acciaio con copertura a falda con un sistema di capriata polonceau. Con questo intervento si è potuto realizzare un involucro vetrato, dove non veniva mantenuto l’esistente, così da collegare la storia della città alle nuove funzioni, anche attraverso ad un programma che potesse realmente soddisfare le necessita del diporto reggino.

_layout funzionali masterplan _masterplan di progetto

_layout funzionali

_pianta pt di progetto

_particolari di progetto

MILLANGES

EUROPAN15 | lug19

Europan 15 Floriac Floriac, Bordeaux Métropole (FR) AutoCad, Rhinoceros, SketchUP V-Ray, Adobe Id, Adobe Ps

Atelier CMJN

LOD 1:50 SUR

MILLANGES: UNE CITÉ INDUSTRIELLE

Progetto realizzato in occasione dell’Europan 15 per il sito di Floriac, Bordeaux (FR). Il bried richiedeva la bonifica di una vasta area a ridosso del fiume Garonna che vedeva la presenza di strutture industriali e per l’artigianato. L’area era già stata oggetto di qualche progetto, come la Arkèa Arena, che rappresentano l’esigenza di espansione della città di Bordeaux con il suo sviluppo metropolitano anche oltre la Garonne.

Il progetto, che va dalla scala urbana al dettaglio dell’involucro, comprende 3 concetti: L’impulso vorso il cambiamento di vocazione dell’area, l’inclusione e la bonifica. Attraverso questi concetti si è delineato uno progetti che connette Floriac alla rete metropolitana con una cable car line, linee di servizi pubblici fino all’aspetto più sostenibile. Oltre all’aspetto urbano si è progettata la struttura vera e propria di Millanges, una cità industriale che, in correlazione

con un piano di urbanizzazione di servizi e residenziale, riprende la vocazione industriale e di artiganato dell’area sviluppando anche l’aspetto naturalistico, terziario, commerciale e culturale. Il programma della città industiale comprende attività di ristorazione, sale espositive, aree commerciali, per l’industria e l’artigianato. Nell’ottica dei prodotti a km 0 si è prevista la produzione di birra locale sul piano più alto dell’edificio, riprendendo le tradizioni del luogo.

_render di progetto

_bar panoramico
_terrazza piano uffici
_sezione prospettica

LA ROSA DEI VENTI

RISTORAZIONE | set19

Realizzato

Reggio di Calabria, RC (IT) AutoCad, 3ds Max, SketchUp V-Ray, Adobe Id/Ps/Ai Collaborazione

LOD 1:20 SUR 200m²

La Rosa dei Venti, ristorante-pizzeria, che riprende il nome del precedente locale che per oltre 40 anni ha avuto sede sul lungomare della città di Reggio Calabria. Si è realizzato uno spazio in relazione all’ambiente ed al servizio che la committenza voleva offrire, spazio dinamico che possa essere ristorante con servizio pranzo/cena e pizzeria. Il locale, precedendemente deposito, si sviluppa su 3 aperture che erano destinate a garage, di cui una a servizio delle cucine. Il locale si presentava, dunque, con una vocazione completamente diversa.

Il progetto ha compreso sia la realizzazione delle cucine,la sala, comprendendo la realizzazione degli arredi di design, il bancone e la progettazione grafica per l’immagine del nuovo locale. Il progetto propone un ambiente semplice che si fonde con l’idea di accoglienza della committenza, dove la comunicazione con il cliente deve essere diretta e dinamica. Si sono previste anche delle lavagne per poter trasmettere quanto più possibile al cliente sia il menù alla carta che la varietà di offerta che non sempre possono essere ristampate celermente nei menu per quanto riguarda

il servizio per la cena.

Il locale, per il servizio pranzo, ha principalmente una clientela di dipendendi del vicino Consiglio della Regione Calabria ed agli studenti dell’Università Mediterranea di Reggio di Calabria. L’arredo di design, progettatto dallo studio, è stato realizzato a stretto contatto con gli artigiani di fiducia della committenza. E’ stata una esperienza di sinergie e di velocità realizzative che purtroppo è stata a ridosso della pandemia globale che ci ha coinvolti ed a oggi risulta parzialmente realizzato nonostante il ristorante sia in piena attività.

_logotipo

ROSA DEI VENTI

pizzeria ristorante

_vista sala ristorante
_prospetto di progetto area bancone
_dettaglio bancone
_vista bancone
_vista sala

APPART MIRABEAU

RESIDENZIALE | set19

Realizzato

Rue Mirabeau,Parigi (FR) AutoCad, SketchUp V-Ray, Adobe Id/Ps/Ai Atelier CMJN LOD 1:50 SUR 200m²

Ristrutturazione residenziale di un appartamento sito in un fabbricato che è a ridosso nella Senna, nel cuore di Parigi. I committenti, una coppia anziana di dottori, ha richiesto allo studio un approccio poco invasivo sull’esistente. La zona cucina-sala da pranzo prima era divisa in due ambienti che non risultavano essere funzionali per le loro esigenze. Seguendo il volere dei clienti si è pensato a realizzare un unico ambiente che potesse allargare e rendere più funzionale l’ambiente cucina, salvaguardando il più possibile il parquet esistente, oltre che a creare una correlazione diretta visivo-

spaziale con la sala da pranzo, che a detta della committenza, sarà popolata dai parenti e dai giovani nipoti. Nell’ottica di uno spazio che debba essere dinamico e polifunzionale, come deve essere la casa dei nonni, si è previsto anche un piccolo spazio studio, espressamente richiesto, corredato da due nicchie per l’archiviazione di documenti e libri.

I committenti ci hanno trasmesso la loro passione per la lettura e l’intenzione di poter ospitare amici e parenti temporaneamente. A tal proposito si sono realizzate delle librerie su misura per poter inserire tutto il patrimonio letterario

della coppia e ne soggiorno si è disposta un’area lettura con un divano-letto, che all’occorrenza potra accogliere gli ospiti della coppia. L’arredo è stato riportato dagli arredi della precedente residenza e quindi adattato al progetto per garantire gli aspetti di fruibilità e funzionalita quanto più possibile. La cucina è stata progettata sartorialmente sulle necessità della committenza, unitamente alla riprogettazione dei servizi igenici ormai vetusti.

SEJOUR

DÉGAGEMENT COULOIR

SALLE A MANGER SDB

CUISINE

CHAMBRE

DÉGAGEMENT ENTRÉE WC RANGEMENT

_vista prospettica _layout di progetto

prospettiche

_vista soggiorno
_vista cucina
_piante di dettaglio cucina
_vista cucina e sala da pranzo

APPARTAMENTO SULLO STRETTO

RESIDENZIALE

| gen21

Progetto Reggio di Calabria,RC (IT) AutoCad, SketchUp V-Ray, Adobe Id/Ps/Ai Collaborazione

LOD 1:20 SUR 154m²

Ristrutturazione residenziale di un appartamento sito in un fabbricato a Reggio di Calabria in fase di completamento, unità allo stato rustico, che gode di un’ottima esposizione e vista sullo stretto di Messina.

I committenti, una giovane coppia, in procinto di acquistare l’immobile, attualmente composto da due Sub che necessiteranno di una pratica di fusione. La giovane coppia, poste le necessità per poter trasferire la loro famiglia, insieme ai due figli, ha espresso l’esigenza di avere ampi spazi nella zona giorno e la possibilità di realizzare una veranda

che potesse dare ampio respiro, per poter godere della pregevole vista oltre alla espressa necessità di realizzare, in corrispondenza della canna fumaria esistente, un camino. Entrando nell’appartamento, vista l’esposizione e la profondità, si concentra un ingresso aperto che invita alla zona giorno ampia dove trovano posto i divani che racchiudono il cuore della zona multimediale, il camino e la parete attrezzata. Spostando lo sguardo verso le ampie vetrate che danno sulla veranda ricavata da un arretramento della muratura perimetrale vi è uno spazio dedicato al pranzo più comodo

e luminoso, rispetto alla cucina esposta a Nord. Il soggiorno, con un sistema a telaio con vetrate che funge da filtro, è collegato alla cucina. Dall’ingresso si accede anche alla zona notte dove, oltre ai servizi igienici sono previste 3 camere da letto con annesse cabine armadio o armadio a muro per lasciare quanto più spazio possibile per l’arredo e garantire la fruibilità degli spazi. La progettazione ha previsto una serie di arredi ed ambienti progettati su misura, come il soggiorno, la cucina e le cabine armadio, da realizzare a stretto contatto con i fornitori.

Superficie

_sezioni prospettiche

_dettaglio armadio camera da letto e vista

ASD POLISPORTIVA GALAXY REGGIO C.

GRAFHIC DESIGN | Ott20

Realizzato

Reggio di Calabria,RC (IT)

Illustrator, InDesign Individuale

In occasione della realizzazione ed istituzione della Scuola di Tennis Tavolo della ASD Pol. Galaxy Reggio Calabria, associata alla Fitet, si è realizzata la nuova identità della stessa. Il progetto ha coinvolto me in quanto socio e i collaboratori e fornitori per la realizzazione. L’iter progettuale ha visto il susseguirsi di revisioni e proposte varie per giungere al risultato finale comprendendo il logo design e brand design. Le foto riguardano tutto lo staff, i soci, direttivo e la presidenza della società. Per arrivare alla definizione dell’idea finale si è applicato il principio della

figura/sfondo della psicologia Gestalt, passando dal rapporto aureo per dare armonia e coerenza alle proporzioni. Il risultato finale è un logo semplice e minimale, facilmente riproducibile e applicabile con la maggior parte delle tecniche tipografiche per stampe su supporti cartacei, plastici e tessuti. Il messaggio è semplice e chiaro, trasmettendo l’idea della racchetta e richiamando la figura dell’alieno, soggetto utilizzato anche precedentemente dalla società.

I fornitori e la società, vista la semplicità di applicazione e versatilità, hanno

applicato, seguendo le indicazioni di progetto, sulle tute, manifesti, transenne, superfici della Scuola di Tennis Tavolo ed anche sui canali social per pubblicizzare la società.

LIGHT GREEN CHARCOAL

CMYK Code

C:53 M:0 Y:88 K:0

Hex Code: #8BBF43

R: 140 G: 191 B: 68

SMOKED WHITE

CMYK Code: C:17,66 M:12,37 Y:14,25 K:0,17

Hex Code: #D9D9D98 R: 217 G: 217 B: 217

CMYK Code: C:52,58 M:41,92 Y:42,35 K:26,36

Hex Code: #4D4D4D

R: 77 G: 77 B: 77

BLACK

Colore secondario

CMYK Code: C:82,36 M:72,28 Y:61,66 K:91,13

Hex Code: #000000

R: 0 G: 0 B: 0

VISUALIZZAZIONE ARCHITETTONICA

ArchiViz | 22

Realizzati ed incarichi AutoCad, Archicad, Sketchup, V-Ray, Lumion, Photoshop

Turn static files into dynamic content formats.

Create a flipbook
Issuu converts static files into: digital portfolios, online yearbooks, online catalogs, digital photo albums and more. Sign up and create your flipbook.
Selected Works 2019/2024 by Arch. Alessio Cuzzocrea - Issuu